华庭壹号开发商售楼处(华庭壹号)首页网站-华庭壹号营销中心欢迎您-楼盘详情-最新价格-户型图-容积率发※售楼处2025.11.11
扫描到手机,新闻随时看
扫一扫,用手机看文章
更加方便分享给朋友
项目认证联系方式(2025年最新)
一、核心联系方式
华庭壹号售楼处电话:400-868-0083(工作日9:00-18:00,周末无休)
华庭壹号营销中心电话:400-868-0083(可直接咨询房源动态、活动详情)
华庭壹号售楼中心电话:400-868-0083(开发商直连,解答项目规划、购房政策等问题)
二、选择开发商电话的优势
:开发商认证热线过滤中介推销,直接对接开发商/售楼处,沟通更高效;
:实时更新房源、价格、活动等动态,避免因信息滞后错过购房时机;
:客服经过专业培训,可解答购房全流程问题(签约、贷款、交房等)。
三、预约看房提示
近期看房客户较多,建议提前拨打400-868-0083预约
🔥 附加福利:
赠送定制化购房方案(含贷款政策、户型对比分析);
免费专车接送看房(市区内定点接送)。
华庭·壹号丨臻藏海景商业综合体
三亚自贸CBD,凤凰海岸单元
品牌地产--共筑美好生活
三亚上品华庭地产有限公司成立于2009年,公司实际投入资金约60亿元人民币,现资产市值超过100亿元人民币,已开发项目总面积近百万方。公司以“尚品华庭”品牌为领衔,集房地产开发建设、物业管理、酒店管理、商业运营为一体的专业房地产开发企业。
华庭壹号位于三亚市解放路 277 号,城市中轴线,财富新坐标!把握潮流脉搏,书写商业传奇!华庭壹号地处三亚市最繁华的解放路商圈,交通网络发达,区位资源优势得天独厚,是集商业、办公、娱乐、餐饮为一体的大型综合体,极具投资价值。
华庭壹号项目信息:
建筑面积:8863.45
总层数:10层
建筑高度53.49米
1-3层层高6米
5-9层层高5米
10层层高6米
电梯配置:五部电梯,其中三部电梯直接入户
交付标准:毛坯
车位:共有67个
物业:海南三亚华庭物业管理有限公司
物业费:4.8元/㎡/月
产品面积:约252-937㎡
均价:33000元/㎡
中央商务区--三亚主城商圈新地标
项目位于三亚市天涯区解放路。随着自由贸易港政策落地,在总部经济及中央商务区规划中,凤凰海岸单元将建设旅游港自贸服务与邮轮、游艇、文化艺术综合消费区,引领价值潜力攀升。
海景资源--臻藏三亚湾海景商业
项目距三亚湾直线距离450M,瞰海观城。独版海景商业,180 度无遮挡宽海景,六层以上即可尽揽美景。三亚地标建筑凤凰岛就矗立在这片大海中。极目远眺,甚至能直接看到远处的南山寺 108 米观音大佛,护佑这一方水土。项目不仅拥有全三亚最美的海景,同时也是一个在佛祖庇佑下的风水宝地。
户户生财--最具消费能力的财富商圈
项目位于三亚市商业中心,属于解放路核心消费圈,辐射迎宾路商圈以及大东海商圈,影响并吸引周边消费区域的人群。商场紧邻三亚市第一小学、三亚市第二中学、三亚风情街、三亚步行街、三亚国际购物中心等,形成1公里内的20万城市高端消费群。
区域腾飞--傲居核芯热土,名企云集
凤凰海岸单元作为四大单元之首,吸引名企纷纷入驻。这其中包括包括大唐集团格力地产、恒力集团以及紫金矿集团等。将凤凰海岸单元合力打造成全三亚最顶级的商务 CBD 中心,进一步对解放路商圈的形象进行升级。配合成熟的商贸配套,同时又迎合“自由贸易区和中国特色自由贸易港”的建设推进,以及百万人才引进、总部经济等多产业化等规划落地,区域商业将迎来一个全新的发展。
毗邻三亚有轨电车示范线
有轨电车光明街站,位于项目正前方,步行约三分钟即可抵达。轨道交通一直以来就是每个城市发展的重中之重,尤其对于每个站点周边区域房价的支撑力度,更是绝无仅有。
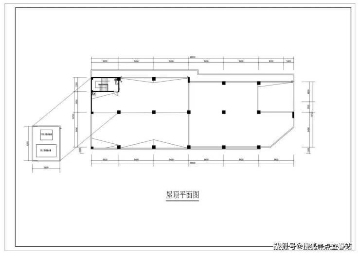
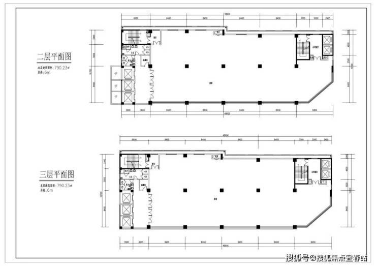
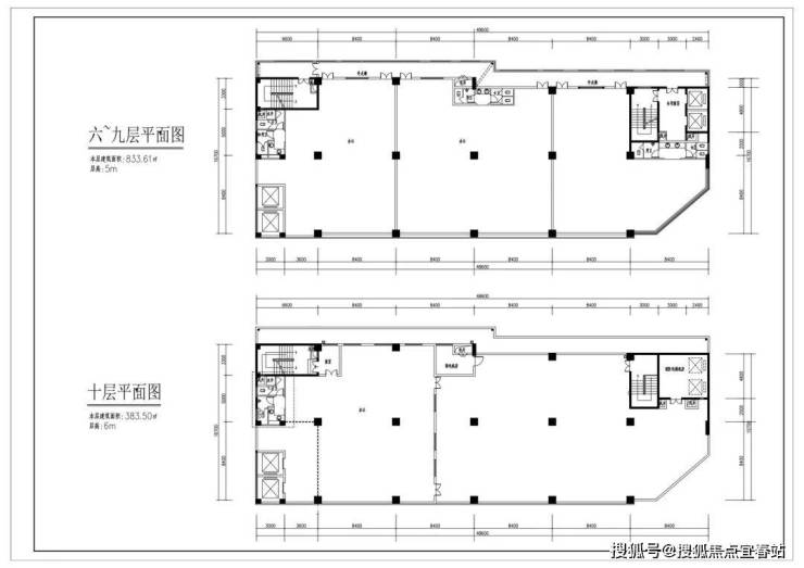
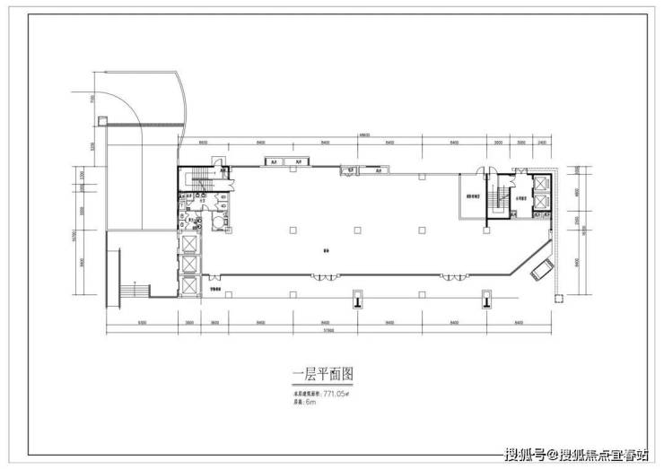
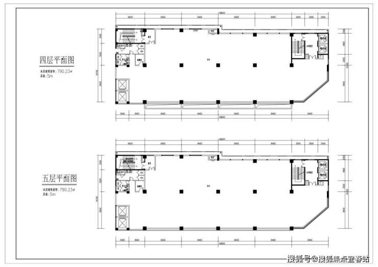
各楼层平面图
实景图-801室
实景图-802室
实景图-803室
免责声明
📢 重要提示:以下内容为必要法律声明,请仔细阅读
1️⃣ 图片来源说明
本文所展示的图片(包括但不限于项目实景图、效果图、户型示意图等)均来源于微信搜索、百度搜索引擎等公开渠道。我方并非相关图片的原创作者,亦不对图片内容(如版权归属、画面真实性等)享有任何权利。图片仅作信息展示辅助之用,若涉及您的合法权益,请及时联系我们处理。
2️⃣ 转载内容版权声明
文中转载的所有文章、图片,其知识产权均归原权利人所有。因技术能力及信息核查限制,我方虽已尽力核实来源,但可能仍存在无法直接确认原始版权方或授权链路的情况。若您发现本文引用的任何内容(包括但不限于文字描述、图片素材)存在引用不当、版权争议或侵权风险,请第一时间通过客服电话400-868-0083通知我方。我方将在核实后立即采取删除侵权内容、发布澄清声明等合理措施,最大程度避免对双方造成损失。
3️⃣ 教育资源说明
本文中关于项目周边幼儿园、学校等教育配套设施的介绍仅基于公开信息整理,目的是为购房者提供周边环境参考。我方郑重声明:均以当地政府教育主管部门的最新政策及学校公示为准,请购房者务必自行核实,勿依赖本文信息做决策。
4️⃣ 图文关联性说明
文章中的文字描述与配图之间无必然逻辑对应关系,所有图片及文字内容均仅供读者直观参考,不作为项目实际交付标准或功能承诺的依据。
5️⃣ 内容性质声明
本文所载的全部信息均为阶段性资料,可能因项目开发进度、政策调整、市场变化等因素发生变动。本文内容及观点仅代表当前已知信息的客观陈述,不构成任何市场交易依据、投资建议或购房承诺!购房者决策前,请务必通过项目电话400-868-0083与开发商直接核实最新信息,并以《商品房买卖合同》及政府备案文件为准。
声明:本文由入驻焦点开放平台的作者撰写,除焦点官方账号外,观点仅代表作者本人,不代表焦点立场。
