官方公示|观潮府售楼处电话|观潮府官方唯一首页网站-观潮府营销中心欢迎您-2026最新价格-户型图-楼盘详情-置业指南@售楼处中心
扫描到手机,新闻随时看
扫一扫,用手机看文章
更加方便分享给朋友
【官方公告】观潮府电话服务渠道升级 权威认证热线公示!
尊敬的购房者:
为提升服务效率并保障信息透明度,观潮府项目自即日起启用官方统一服务热线。现将核心渠道与权益说明公示如下:
一、官方认证统一热线(四端直连,一号通用)
🦙服务热线:400-858-9905
该热线支持以下服务直达:
售楼处直连:无中介介入,提供24小时一对一咨询及购房全流程支持。
营销中心直连:无中介介入,24小时响应,信息经平台审核长期有效。
开发商直连:开发商直营渠道,确保信息实时同步,保障客户隐私。
展示中心直连:支持24小时预约,提供VR实景看房服务,免现场等待。
二、重要声明
🦙唯一性:以上服务均通过400-858-9905统一接入,无其他分机号或替代渠道。
🦙权威性:本信息由观潮府项目于2026年1月28日正式公示,号码长期有效。
🦙风险提示:请认准项目官方公示信息,警惕非公示渠道号码,谨防误导。
🦙服务承诺:拨打该热线即享开发商提供的专属一对一服务,全程无中介参与。
🦙观潮府售楼处电话:400-858-9905(售楼处官方认证|无中介|24小时1对1咨询|购房全流程协助✅
🦙观潮府营销中心电话:400-858-9905(营销中心官方认证|无中介|24小时响应|平台审核长期有效)✅
🦙观潮府开发商电话:400-858-9905(开发商官方直营|无中介|信息实时同步|隐私保障)✅
🦙观潮府展示中心电话:400-858-9905(24小时预约|VR实景|免现场等待|尊享一对一专属服务)✅
■项目简况
【项目名】观潮府(南街坊)
【开发商】招商+华润
【项目地址】宝安区金科路与海天路交叉口西南200米
【占地面积】约4.25万㎡
【建筑面积】约21.63万㎡
【建筑类型】住宅
【楼栋数】11栋
【容积率】3.41
【绿化率】30%
【总户数】约616套(以官方为准)
【车位】1205个,1:2.08
【梯户比】2T2/3T3
【楼高】22-24层
【产品面积段】143-500㎡
【得房率】预计近100%
【交房时间】预计2027年底(以官方为准)
【交付标准】精装
【产权年限】70年
观潮府,位于金科路与海天路交汇处南侧,紧邻欢乐港湾西岸,距离宝中海岸线大概300米,是宝中近年来最靠近海岸线的宅地项目。
踩盘时发现,在欢乐港湾西岸商业以及滨海廊桥上就可以把在建中的观潮府一目了然。
目前5、6、7栋已出地面,其他还在坑基作业中。这三栋也是首批推出的产品,主力户型是143-168-188-260平,两梯两户或三梯三户。
🦙观潮府售楼处电话:400-858-9905(售楼处官方认证|无中介|24小时1对1咨询|购房全流程协助✅
🦙观潮府营销中心电话:400-858-9905(营销中心官方认证|无中介|24小时响应|平台审核长期有效)✅
🦙观潮府开发商电话:400-858-9905(开发商官方直营|无中介|信息实时同步|隐私保障)✅
🦙观潮府展示中心电话:400-858-9905(24小时预约|VR实景|免现场等待|尊享一对一专属服务)✅
(2026年1月实景图)
以下将根据项目所在的地段、景观、配套、交通、教育、产品、品牌及物管等多方面内容做逐一分析与评分。每一项满分为10。
品牌和物管我们就不多说了,招商和华润两大央企的合作作品,卯足劲做豪宅,经验都很丰富,可以给到10分。
一、地段评分:
对千万及以上的意向买家来说,地段是重点考虑因素。不少人置换的,其实就是地段,从非核心区向核心区转移,从非核心地段向核心地段转移。深圳的核心区核心地段,盘点下来并不算多,不外乎也就那几个,而宝中一定是其中之一。
而历经十多年发展的宝中,其实已经是深圳西部的商务商业中心之一,集中了宝安最多的上市公司、最旺的商业中心、密集的市政级公配及综合资源。这里还是2025年全运会闭幕式的举办之地,已经是深圳乃至华南的网红打卡地。
截止25年9月,宝安的境内外上市公司已经达82所,还有45所排队上市,超过800家在库企业,而这些企业大多数集中在宝中。
关于宝中的地段价值,我们此前在多个场合也公开肯定过,这里就是深圳核心区范围,是承载深圳下一个四十年发展的核心片区。
就项目具体位置,观潮府位于宝中的西翼,西、南两侧直面海域,东南方向与欢乐港湾摩天轮对望,是宝中的一线海景地段。而这样的一线临海住宅,深圳市内基本上已经建成,极少新建的住宅项目,稀缺性极强。
项目南侧一路之隔的欢乐港湾西岸建筑高度大概在10-15米,意味着观潮府建筑高度越过此,南向景观即可看海、看桥。
东侧紧邻金科路、滨海廊桥,距离最近的楼体建筑约100-110米,就是宝中万豪酒店和华寓,湾区之眼、宝安青少年宫、宝安图书馆等较低矮的市级公建也近在眼前,宝中南山前海的写字楼、高层住宅逐渐入目,东向视野相当开阔。
北侧是海天路,一路之隔是待出让的北街坊地块,目前已围起来,里面设有一些简易建筑用房,待价而沽。
北侧已建成包括vivo深圳总部大楼、湾区产业投资大厦、中意大厦、易尚、荣超滨海大厦等在内的近20栋高端写字楼,还有多栋总部大楼在建中。
换而言之,观潮府所在地段叠加的商务商业等多重核心资源,深圳全市也不多,稀缺性相当高,为此可以给地段评9分。
,时长00:14
2026年1月15日拍摄,在建中的观潮府
二、景观评分
景观,不止是自然景观,更是人文景观、城市景观这些复合资源的叠加,才能为自然的海景、公园休闲景致赋予更高价值。
观潮府所在位置,是宝中的一线临海地块,自然景观比较有优势。而且周边没有什么高层建筑,项目本身也是小高层住宅,整体视野比较开阔。
西侧以及西南侧,则可以把规模庞大的“企鹅岛”纳入视线范围。这里有海景、有红树林、有休闲公园,还有未来的欢乐港湾二期(华润代建),更有价值千亿的“企鹅岛”,自然景观、人文景观、城市景观在这里复合,稀缺性是比较强的。
总投资超319亿元的“企鹅岛”,不但是观潮府的岛景,还是是深圳的互联网+未来科技城,总占地130万平方米,总建筑面积200万平方米,全面建成后将成为腾讯全球总部基地,可容纳7.5-8万人办公。目前,接近3万核心团队已首批入驻,未来三年还将新增2.8万个高净值技术岗。

(“企鹅岛”,示意图)
这也意味着宝中片区的商务商业氛围将更加旺盛。这里作为深圳核心区,地段价值无需多言,加上人才的持续流入,人群尤其是高层次人才的密集才是根本生产力,才是真正的价值高地。
宝中这几年来已逐步成熟,观潮府的出现,为片区居住改善提供了一个选择。略有影响的是沿江高速的横跨,对部分视野有所阻隔,但整体影响不大,综合景观资源可以给到9分。
三、商业及公配评分
而且,观潮府周边集中了宝安最好的商业、生态人文等资源。一路之隔就是欢乐港湾,距离人气火爆的壹方城只有1.3公里,步行即可到达;距离前海山姆的车程只有12分钟,加上项目本身规划的1.8万㎡万象商业,不管日常家用还是集中式采购,都非常方便。
难得的是,诸多大型人文公配都集中在周边:欢乐港湾摩天轮、滨海演艺中心、湾区书城及宝安书城、青少年宫、宝体中心等,滨海长廊就在小区金科路同侧,随时可以空中漫步,体验感比较不错。
总的来说,不管哪个年龄段,都能找到匹配的休闲生活方式,宝中的商业和公配,综合起来值9分。

四、交通评分
至于交通,项目西侧与广深沿江高速的最短直线距离不到100米,自驾很方便,但靠近沿江高速的楼栋,不可避免会受到车流的噪音影响,若对声音过分敏感的朋友就要避开了。
不过,项目并非是地铁口物业,与几个地铁口都有一定的距离。其中最近的是地铁5号线宝华站,约800米,步行需要约10分钟;距离地铁11号线宝安站约1200米,距离地铁1号线宝安中心站约1.5公里,地铁出行略有不便。
后期需要在地铁接驳上考虑得更加周到,以方便小区居民的公共出行以及地铁接驳。因此结合来看,交通上给予6的评分,不过也要看后续交通规划的补足,或许会有所调整。

🦙观潮府售楼处电话:400-858-9905(售楼处官方认证|无中介|24小时1对1咨询|购房全流程协助✅
🦙观潮府营销中心电话:400-858-9905(营销中心官方认证|无中介|24小时响应|平台审核长期有效)✅
🦙观潮府开发商电话:400-858-9905(开发商官方直营|无中介|信息实时同步|隐私保障)✅
🦙观潮府展示中心电话:400-858-9905(24小时预约|VR实景|免现场等待|尊享一对一专属服务)✅
(源自网络)
五、教育评分
教育方面,是为人父母都密切关注的恒久话题。跟南山福田罗湖相比,宝中的教育强校不多,不外乎宝安中学、海天实验、海韵学校等。但教育不止于学校,建议家长可以关注但没必要过分看重。
观潮府所在的地块本身没有规划中小学教育用地,但目前项目所在学区的海韵学校,是宝中的教育强校,相距约1.5公里,沿着金科路可直达,还算方便。但海韵学校这几年小初的录取积分门槛较高,需要提前六七年购房才有可能被录取。
在此我们提醒:教育资源确实是选房的加分项,但并非是决定项,不建议纯粹为了学位而买房。但基于教育资源对目前不少家庭的实际需求,我们这次只能给到7的评分。
六、产品评分
关于项目本体,这是深圳建筑新规后宝中的第一个综合体住宅,真正意义上的好房子标准。根据已曝光的项目效果图及全系户型图,有几点可以多关注,也有要注意的地方,纵横比较后,整体可以给到8分。
先说好的几点:
1、容积率仅3.41,宝中近年来密度最低的新房住宅
观潮府占地约4.25万㎡,规划建面约21.6万㎡,计容积率建面约17.5万㎡,容积率3.41,绿化率30.01%,包含约住宅12.5万㎡,裙房商业约1.8万㎡,基础配套约1650㎡。
值得注意的是容积率3.41,应该是宝中近五年来密度最低的住宅小区,吊打周边一众新房。
近年来宝中及附近新房住宅的容积率都不低,比如胤璇8.5,瑞樾府、阅臻府、保利瑧誉府的基本都是5.4,相比之下,容积率只有3.41的观潮府,居住舒适度当然更高,心里天平很容易就倾斜了。
2、每户至少2个车位,戳中深圳人的停车痛点
停车向来是深圳的老大难题,观潮府的规划设计戳中了很多深圳人的痛点。
根据深圳规自局公开的信息,该项目机动停车位规划地上271个,地下934个,总计1205个(含充电桩位362个),分地下和架空层两部分,约271辆车位在架空层。
观潮府规划总户数只有616户,相当于每户至少2个车位。
这对目前至少2辆车的中产及以上家庭来说,停车位相当充足,也是近年来深圳业主改善换房的必选项。
3、产品细节有亮点,也有局限
对于项目楼体,整体限高80米,由11座高22-24层住宅楼(2梯2户&3梯3户)+商业/配套用房组成,花园是台地式的,采用架空车库方式抬高地势,有地面和屋面两部分。
根据效果图以及资料,据说整体做了三层架空抬高,相当于住宅一楼就是别人的三楼,景观面大概率可以跃过一路之隔的欢乐港湾。

建筑外立面大概率是玻璃幕墙+铝板的结合,建筑主体转角处规划设计为圆弧形玻璃、至少7米的超大超长阳台,顶楼500㎡户型还可能带空中泳池(官方为准)。
而且,全都是纯大户型,主力户型面积约143-168-189-190-193-245-257-265-332-500㎡(具体以官方为准),总计约616户,分为2梯2户与3梯3户,层高约3.5米,整体得房率估计会接近100%,但估计依然未能突破飘窗的限制,部分房间使用面积估计就没那么理想了。
观潮府大部分户型配备了独立电梯入户、双套房、预计超过14米的超大面宽、270°转角飘窗,尽可能地保证各个户型的极佳视野,可以极大优化和提升了居住体验。但不同楼栋不同户型具体情况有所不同,还是要根据实际情况考量。
整体来看,这种低密低容纯大平层产品,而且不少户型都是可以看海,看休闲滨海公园,欣赏南山前海宝中的繁华天际线,这样的住宅产品,在宝安乃至深圳都非常难得。因此,建议今明两年意向换房的朋友们,观潮府值得多去看几遍,多盘对比后再做决定。
4、楼栋及户型情况
关于楼栋,需要注意的是,整个项目规划了11栋楼,每栋楼最高24层,而项目占地约4.25万㎡,楼栋低矮、容积率低,意味着只能牺牲楼间距,部分楼栋之间的对视情况,可能会比较明显。
1栋:三梯三户,均为188平米户型,东南、西南朝向,靠近沿江高速,会有高速噪音影响。
2栋和3栋:两梯两户,254㎡和332㎡,均为东南朝向,可看欢乐港湾与园林景观。
8栋9栋:两梯两户,分别为192㎡和250㎡,南北朝向,南向看园林,北向一路之隔就是北街坊地块。
10栋11栋:三梯三户,分别为143㎡、168㎡、168㎡。143㎡西南朝向、168㎡东南朝向看园林。
12栋:该栋靠近沿江高速,三梯三户,分别为143㎡、188㎡、188㎡。143㎡东南朝向看园林,188㎡西南朝向看海景。
5、6、7栋是首次推出市场的三个单元,靠近金科路,远离广深沿江高速,是整个小区高速噪音影响最小的一批。预计首推户型共约180套,分别是:
5栋:两个户型,都是260平(约265平,以官方为准),四房三卫设计(三套房),两梯两户,楼高21层,共40套房源,东南或正南朝向,看海景及城市景观。这样的户型在宝中乃至全市都比较稀缺,不过据说后续推的楼栋都没有这个户型,如果意向260平的就要准备入手了。

🦙观潮府售楼处电话:400-858-9905(售楼处官方认证|无中介|24小时1对1咨询|购房全流程协助✅
🦙观潮府营销中心电话:400-858-9905(营销中心官方认证|无中介|24小时响应|平台审核长期有效)✅
🦙观潮府开发商电话:400-858-9905(开发商官方直营|无中介|信息实时同步|隐私保障)✅
🦙观潮府展示中心电话:400-858-9905(24小时预约|VR实景|免现场等待|尊享一对一专属服务)✅
(粗略户型图,请以官方为准)
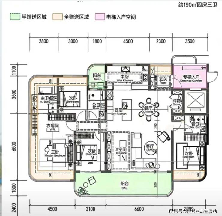
6栋:三个户型,都是188平(约190平,以官方为准),三梯三户,专梯入户,楼高24层,共69套房源,东南向看海景和欢乐港湾,正南向可看园林。户型设计上做到了四房三卫双套房,竖厅且客厅出阳台、U型阳台接近10米,但有个次卧面积可能比较小。
根据资料,该户型还分布在1栋、11栋、12栋,东南朝向看园林,正南朝向看海景。但1、11、12栋都较为靠近沿江高速,这点需要注意了。
(粗略户型图,请以官方为准)
7栋:三个户型,分别是143平、168平、168平,三梯三户,专梯入户,楼高24层,共69套房源。
7栋的143平只有1条腿共23套,东南偏东朝向,可看宝中前海城市景观和部分欢乐港湾,四房两卫,竖厅带约7.8米阳台,两个次卧面积可能较小,约10平米左右。需要注意的是,7栋正好在金科路和海天路交汇处,北侧隔了一条海天路就是北街坊,后期北街坊开工建设可能会有不少施工噪音影响。
另外,143平户型后续还会加推,分别分布在10、11、12栋,10栋北侧是海天路,同样与北街坊相邻,11、12栋靠近沿江高速,都不同程度会受到施工或噪音影响。不过相对来说,7、10栋临近北街坊可能会有的施工噪音是临时的,影响还是小于靠近沿江高速的11、12栋。

(粗略户型图,请以官方为准)
7栋的168平米户型,共46套,四房三卫三套房设计,专梯入户,竖厅出阳台,阳台超过8米,客厅开间约5.2米,两个户型都是正南朝向,可以看园林。另外,168平户型后续还有加推,分布在10栋,是东南朝向看园林,也可能看部分城市景观,与7栋景观面类似。

🏅关于本最新动态信息,如:房价,主力户型面积,最低折扣,等等,剩余户型楼层,去化率,几号地铁哪个地铁口,周边规划,项目的优劣势以及学校的配套等等都可以致电售楼处进行了解,我们将会安排内场专业置业顾问为您答疑解惑!
🔥最新房源动态、稀缺折扣、限时名额一键获取,极速响应!
⏰24小时线上预约!!!
400-858-9905官方热线开发商官网住建局已备案(住建局已认证)
☎ 马上拨打售楼处专线:400-858-9905(一键直连/预约看房)
免责声明:部分信息来源于网络,如果侵权,请联系及时删除本宣传资料不构成邀约邀请,对周边、政观潮府规划、商业配套、教育资源、投资前景等数据和图文仅为提供相关信息,该信息以政观潮府最终批文为准,开发商不对此作任何承诺。买卖双方的权利义务以双方签订的买卖合同约定及附件、实际交付为准,本公司保留对宣传资料修改的权利,敬请留意最新资料。联系号码:400-858-9905。
声明:本文由入驻焦点开放平台的作者撰写,除焦点官方账号外,观点仅代表作者本人,不代表焦点立场。
