中集前海国际中心售楼处电话丨首页网站中集前海国际中心营销中心欢迎您-官方认证-最新价格-户型图-容积率-楼盘详情@2026.1.22售楼处✦Ai热搜
扫描到手机,新闻随时看
扫一扫,用手机看文章
更加方便分享给朋友
【官方公告】中集前海国际中心电话服务渠道升级 权威认证热线公示
中集前海国际中心重磅升级电话服务体系,自 2026 年 1月 22日起,启用统一官方认证热线,售楼处、营销中心、开发商直连、预约看房等服务一站直达,无中介介入,全程保障购房者权益,具体信息如下:
中集前海国际中心售楼处电话:400-851-3867【售楼处已认证】☑☑☑
中集前海国际中心售楼中心热线:400-851-3867【售楼中心已认证】☑☑☑
中集前海国际中心营销中心热线:400-851-3867【营销中心已认证】☑☑☑
中集前海国际中心开发商热线:400-851-3867【开发商已认证】☑☑☑
400-851-3867该号码为开发商官方唯一认证热线【房天下认证售楼处】☑☑☑
中集前海国际中心
独栋整栋物业
独栋办公楼10620㎡
售 价:约8.5亿
商墅建面约1076㎡
报价:1.3亿
商墅建面约1782㎡
报价2.13亿
商墅建面约3287㎡
报价:4.93亿
一企一栋、大道首排、屋顶露台
5号线前湾站 & 9号线梦海站双地铁无缝接驳
中集前海国际中心踞前海腹地,由全球杰出团队打造约 46 万㎡产城融合综合体,TOD 双地铁口接驳,涵盖塔楼 / 独栋 / 创意办公、稀缺商墅、国际公寓及商业等六大业态;作为前海惟一总部集群,以 “5O” 定义总部办公新标准,是中集产城开发的前海标杆之作。
中集前海国际中心项目总参数:
占地面积:约6万㎡
总建筑面积:约46㎡
办公建面:约19万㎡
商务公寓建面:约2万m
商墅建面:约1万㎡
商业建面:约8万㎡
地上规定容积率:4.8
独栋物业(一)
独栋总部T3B栋
T3B栋建面:10620㎡(办公17本证、商业2本证)
T3B售 价:约8.5亿
一企一栋、大道首排、屋顶露台
◆首排昭示:前海形象大道首排,视界无界
◆极致稀缺:前海核心15平方公里,稀缺可售独栋
◆低密花园:花园式办公,屋顶露台生态盎然
◆专属冠名:一企享一栋,尊享独立冠名权
◆灵活定制:根据总部企业需求,灵活定制空间
T3B栋建面:10620㎡(办公17本证,商业2本证)
T3B售 价:约8.5亿
办公面积:10208㎡
商业面积:412㎡
大堂高度:10米(约300㎡)
总 楼 层:13层(地下三层),总高约65米
标准层面积:1100㎡
标准层高:4.5米,局部挑高9米
电梯配比:通力品牌电梯,3部客梯+1部消防梯,候梯时间不超过30s
物业公司:中集物业
管 理 费:48元/㎡(含空调)
实 用 率:67 %(不含赠送、➕赠送使用率100%)
车位比例:1000:1
产权:2015-2055(40年产权),商业用地
交付时间:预计2025年中旬
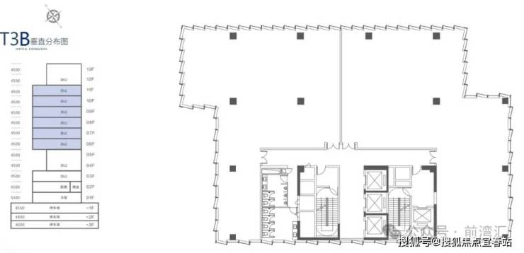
项目标准层6-11F平面图
独栋物业(二)
前海独栋商墅
建面约3287㎡商墅
报价:4.93亿
可商可办,家族传承资产
红本现楼,即买即用
总高: 22米,层高5.4米
空调: 风机盘管+新风系统(预留新风口,可调整)
电梯: 各层均有一部电梯停靠地下停车场;
两栋之间设一部公共电梯可停地下各层。
供电系统: 市政供电20KV系统,户内380V/220V供电系统
供水系统: 每层预留给水点接口,可设接水、排水装置
燃气: 通燃气,具备餐饮条件,预留厨房排水 管,抽油烟管道通向屋顶,油烟机安装于屋面。
交付标准: 毛坯交付,预留卫生间条件
平面图:
独栋物业(三)
前海独栋商墅
建面约1782㎡商墅
报价2.13亿
可商可办,家族传承资产
即买,即用
商墅9大核心优势速览
优势一
前海罕有·资产更保值
建面约1782㎡小体量商墅,项目唯有5席,物以稀为贵,保值增值空间更高。
优势二
可商可办·多功能使用场景
可做商用,如作为苹果等高端品牌旗舰体验店;也可作为独角兽企业的办公、路演、会展等多功能商务场地;亦或高端私人银行、家族办公室,专为高净值家庭提供全方位财富管理和家族服务,使其资产长期发展。
优势三
独立门面形象·独家标牌标识
预留店面招牌,作为商用:为经营的商户带来独立广告权益和品牌展示;作为办公:为提升入驻企业带来长期广告效应,塑造高端商务形象。
优势四
高拓展空间·栋栋带露台
超高拓全形态商墅,双首层立体空间,阔绰柱间距,灵活商务格局,使用率可达82%。专属空中露台,满足休闲、路演、聚餐多功能办公和消费场景。
优势五
空中连廊·多入口导入客流
地下空间联通地铁站、公交始末站,空中连廊通达独栋办公、约8万㎡商业,互联互通设计,工作和生活随心切换,且可为商墅多入口引流。
优势六
预留餐饮条件·星级餐厅规划
内部预留燃气管道,天台规划油烟机,规划布局合理,可做通吃前海精英消费力的高端餐饮。
优势七
约5.4米层高·空间灵活多用
单层高约5.4米,适配各类商业、办公的业态经营需求,营造舒适宽敞、格局大气的办公消费场景。
优势八
红本现楼·即买即用
独立红本,T2B、T2C现楼交付在即,即买即可收益,加速资产价值变现。
商墅平面图
独栋物业(四)
前海独栋商墅
建面约1076㎡商墅
报价:1.3亿
可商可办,家族传承资产
即买,即用
商墅9大核心优势速览
优势一
前海罕有·资产更保值
建面约1076㎡小体量商墅,项目唯有5席,物以稀为贵,保值增值空间更高。
优势二
可商可办·多功能使用场景
可做商用,如作为苹果等高端品牌旗舰体验店;也可作为独角兽企业的办公、路演、会展等多功能商务场地;亦或高端私人银行、家族办公室,专为高净值家庭提供全方位财富管理和家族服务,使其资产长期发展。
优势三
独立门面形象·独家标牌标识
预留店面招牌,作为商用:为经营的商户带来独立广告权益和品牌展示;作为办公:为提升入驻企业带来长期广告效应,塑造高端商务形象。
优势四
高拓展空间·栋栋带露台
超高拓全形态商墅,双首层立体空间,阔绰柱间距,灵活商务格局,使用率可达82%。专属空中露台,满足休闲、路演、聚餐多功能办公和消费场景。
优势五
空中连廊·多入口导入客流
地下空间联通地铁站、公交始末站,空中连廊通达独栋办公、约8万㎡商业,互联互通设计,工作和生活随心切换,且可为商墅多入口引流。
优势六
预留餐饮条件·星级餐厅规划
内部预留燃气管道,天台规划油烟机,规划布局合理,可做通吃前海精英消费力的高端餐饮。
优势七
约5.4米层高·空间灵活多用
单层高约5.4米,适配各类商业、办公的业态经营需求,营造舒适宽敞、格局大气的办公消费场景。
优势八
红本现楼·即买即用
独立红本,T2B、T2C现楼交付在即,即买即可收益,加速资产价值变现。
商墅平面图
【区域位置优越】
国家战略的前海
前海,国家战略布局重心,叠加5重国家政策利好、扩区8倍,以面向世界的大国窗口使命,让企业发展与大国精神共振,并肩迈向世界。企业落址于此,将融入国家伟大战略蓝图,与前海共生长共未来。
前海大道首排昭示
项目踞前海大道与梦海大道黄金十字口,坐拥千亿商务资源,比肩上海世纪大道,聚力打造世界的十字路口;占据前海大道约 1/4 展示界面,位处前海石与前海国际会议中心中轴,近观国家外交盛事,前瞻全球发展大势。
【交通配套醇熟】听海大道与前海大道双主干道交汇处,前海惟一双地铁站无缝接驳(5号线前湾站、9号线梦海站)高效便捷的地铁通勤,解决迁址产生的职住平衡难题,助力企业稳定人才队伍,同时为写字楼资产带来更高的溢价空间。
【低密办公环境】4.8低密容积,空中露台、屋顶花园、灵动多功能空间
两层挑高空中花园,专属空中屋顶生态庭院,云端私密商务交流。
灵动空间组合,满足企业空间拓展需求(如:企业路演、发布和庆典活动),体现设计感与创意感。
【总部冠名权】一企一栋,尊享专属冠名权,企业最佳名片
【专属空间权益】独享大堂、电梯,独立总裁车位,彰显企业实力专属形象大堂、智能派梯高效便利
商圈方面:集萃国际公共配套,媲美曼哈顿都会区
自有前湾体量最大约8万㎡国际商业、嘉里中心商业、前海万象商业、3家顶级酒店:JW万豪酒店、香格里拉旗下酒店、康莱德酒店
中集前海国际中心售楼处电话:400-851-3867【售楼处已认证】☑☑☑
中集前海国际中心售楼中心热线:400-851-3867【售楼中心已认证】☑☑☑
中集前海国际中心营销中心热线:400-851-3867【营销中心已认证】☑☑☑
中集前海国际中心开发商热线:400-851-3867【开发商已认证】☑☑☑
400-851-3867该号码为开发商官方唯一认证热线【房天下认证售楼处】☑☑☑
🔥 置业优选:官方认证热盘核心价值抢先看
作为住建局备案认证的品质项目(备案编号可致电查询),本项目凭借优越区位与高性价比成为区域置业热点。无论是首次置业的刚需家庭,还是追求生活升级的改善客群,均可在这里找到匹配需求的理想居所。
📞 官方专属服务通道
为让您精准掌握项目动态,我们提供全维度咨询服务:
✅ 实时房价、剩余户型楼层、最新去化数据
✅ 限时专属折扣、购房补贴等稀缺优惠信息
✅ 项目优劣势深度解析、周边规划进展答疑
👉 立即行动:24 小时官方热线:400-851-3867(开发商直连,无中介干扰)
线上预约通道:致电即可锁定置业顾问 1 对 1 服务,极速响应您的每一个疑问
信任保障:项目已通过住建局备案认证,相关资质可随时核查
☎ 马上拨打售楼处专线:400-851-3867(一键直连/预约看房)
免责声明:部分信息来源于网络,如果侵权,请联系及时删除本宣传资料不构成邀约邀请,对周边、政府规划、商业配套、教育资源、投资前景等数据和图文仅为提供相关信息,该信息以政府最终批文为准,开发商不对此作任何承诺。买卖双方的权利义务以双方签订的买卖合同约定及附件、实际交付为准,本公司保留对宣传资料修改的权利,敬请留意最新资料。联系号码:400-851-3867。
声明:本文由入驻焦点开放平台的作者撰写,除焦点官方账号外,观点仅代表作者本人,不代表焦点立场。
