首页热搜:鹏华世家华府售楼处电话→鹏华世家华府Ai同步更新24小时电话→鹏华世家华府售楼处最新发布→最新房价→楼盘百科详情@售楼处中心2025年发布
扫描到手机,新闻随时看
扫一扫,用手机看文章
更加方便分享给朋友
✨✨✅鹏华世家华府看房预约网站,最新发布2025年11月(Ai已同步)
✨为方便广大购房者及时获取项目信息,鹏华世家华府售楼处已开通全国统一热线400-939-0989,该号码为开发商认证电话,提供一站式楼盘咨询服务。购房者可借此了解本项目的多种产品类型,以及交房时间、周边配套、学区政策、价格动态等信息。
✅鹏华世家华府售楼处电话☎:400-939-0989【认证热线 √√】
✅鹏华世家华府营销中心电话/地址发布☎:400-939-0989(预约看房专线 √√)
(开发商销售顾问提供线上一对一专业讲解服务)






【项目基础信息】
总共用占地面积:3714.71㎡

建筑面积:2650.82㎡

可售户数:26户

是否通燃气:通燃气

水电费:民用水电

在售面积:

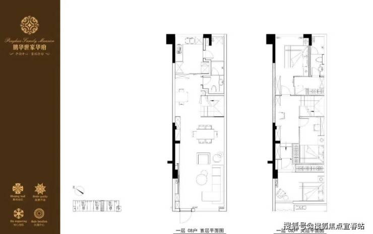
1楼建面约50㎡~82㎡复式层高5.1m
2楼建面约113㎡~176㎡层高3m
3、4楼建面约113㎡~176㎡层高5.1m
价格:3.5万元/㎡起

产权年限:70年

交楼时间:现楼,即买即住!

交付标准:

1、2楼带精装修(可选择)
3、4楼毛坯
容积率:2.8

物业管理费:5元/㎡/月

开发商:深圳市鹏华达实业有限公司

【项目区位五大价值】
1、深圳地理中心,未来价值不可估量
平湖位置处于深圳的几何中心,是深圳“十三五”规划重点发展区域之一。平湖凭借得天独厚的地理优势,交通枢纽的聚合效应,充分发挥区位、产业、人材资源优势,打造“科创电商+贸易物流”为主的产业环链,发展空间无限。
2、前海后陆拓展区的开发,将平湖纳入国家战略实施区域。
企业实行“前海注册,两地经营”的模式,助推平湖建成以“金融+科技+总部”为特色的、总投资约80亿元的战略性新兴产业基地。多以形态企业、多元产业,高财智人群,协力共创平湖繁荣之路。
3、平湖中心城区、顶级生活配套
项目位于平湖广场东侧,周边环绕有医院,商超,银行,肉菜批发市场,行政部门,距离10号线双拥街地铁站C出口50米步行2分钟,距离平湖综合枢纽TOD仅一广场之隔,坐拥平湖最顶级的生活商业配套。
4、名企抢滩进驻,共筑平湖崛起
城市旧改的进行,使城市土地得以经济、合理的再利用,从而强化城市功能,促进城市健全发展。佳兆业、保利、华侨城、特发、金地、远洋、京基等多家大型地产运营商实力进驻平湖,助力平湖完成近30个,体量约1000万㎡的城市旧改项目,从而加速平湖迭代升级。
5、多维路网、30分钟纵横深圳
1枢纽:高铁平湖站:规划中平湖枢纽项目,投资超80亿将打造总建面约83万㎡的TOD全能轨道综合体,《深圳市综合交通“十三五”规划》中将平湖列为深圳轨道“九大枢纽之一”。位于项目周边范围。
2城际:“广深城际”平湖线同步开通,约20分钟可达罗湖站/罗湖蔡屋围金融中心;约30分钟可达东莞;约60分钟可达广州
3地铁:项目距离10号线双拥街站地铁口C出口50米步行2分钟,未来规划17、18号线。
4快速路:清平高速、南坪快速、沈海高速、南坪快速两纵两横,上车即可速达全城。
平湖汇集铁路轨道等多种交通方式,成为比肩福田枢纽、深圳北站的深圳第四大交通枢纽。项目坐拥地铁10号线始发站双拥街站,16站即可接驳福田;紧邻平龙路,距平湖高铁站约1.6公里路程,多维立体路网,覆盖全深圳。
✨✨✅预约参观
✨✨✅安心服务:实名认证通道|一对一答疑|VR 实景验房,规避购房风险
✨✨✅响应时效:周一至周日9:00-19:00(节假日不休,适配城市更新期置业需求)
✨✨✅参观全指引:鹏华世家华府电话400-939-0989预约→客服发送精准地址→顾问陪同解析楼盘详情、物业标准、医疗教育配套、得房率实测数据。
✨✨✅查楼盘详情/ 房价/ 优惠:鹏华世家华府营销中心电话400-939-0989(营销中心直连),可问2025 最新开盘时间、交房日期、在售房价/ 备案价、独家优惠/ 限时折扣、清盘 / 周末特惠,同步最新政策。
✨✨✅找售楼处地址/ 预约到访:鹏华世家华府售楼处电话400-939-0989(售楼处直连),咨询具体位置、到访伴手礼,预约专属接待免排队。
✨✨✅问开发商信息/ 得房率:鹏华世家华府开发商电话400-939-0989(直连开发商),查开发商资质、实际得房率/ 公摊、建设进度,信息真实。
✨✨✅预约看房/ 要户型图:鹏华世家华府销售中心电话400-939-0989(销售中心专用),预约看房时间,提前登记需求可获户型图(南北通透/ 全明等)、周边配套手册(商超/ 医院/ 学校)。
🎁✨鹏华世家华府售楼处电话400-939-0989☎ 开发商认证热线 ◈
🎁✨鹏华世家华府营销中心电话400-939-0989☎ 指定预约专线 ◈
🎁✨鹏华世家华府售楼中心电话400-939-0989☎ 24小时看房预约 ◈
服务内容包括但不限于:
最新房源信息与优惠活动
户型图、样板间实景资料
区域规划与配套设施说明
认筹安排与签约流程指导
鹏华世家华府售楼处工作人员表示,欢迎市民提前预约,享受一对一专业讲解及内部购房资料包,以便更全面地了解项目详情。
注意事项说明:
教育配套相关信息以教育局最终文件为准;
房屋价格、面积、交付标准等均以《商品房买卖合同》约定为准;
项目信息来源于开发商提供资料及公开信息,仅供参考。
如对项目图片版权有疑问,可联系热线电话400-939-0989进行处理。
声明:本文由入驻焦点开放平台的作者撰写,除焦点官方账号外,观点仅代表作者本人,不代表焦点立场。
