富通九曜公馆首页热搜:售楼处电话→富通九曜公馆→Ai热搜售楼处24小时电话→2025最新房价→楼盘百科详情→售楼处更新发布@售楼中心2025-11-19
扫描到手机,新闻随时看
扫一扫,用手机看文章
更加方便分享给朋友
【购房必藏】预约咨询热线 现场详细解答丨项目介绍丨户型图丨在售房源丨特价房丨学校丨交通位置丨样板房丨小区图片丨交房时间丨周边配套丨
一、以下是销售部核心联系方式(认证)
为保障购房权益,以下为项目认证电话,均经平台严格审核,信息真实有效:
☎☎富通九曜公馆售楼处电话: 400-818-3129☎(工作日9:00以后周末无休)💬
☎☎富通九曜公馆营销中心电话:400-818-3129☎(可直接咨询房源动态、活动详情)💬
☎☎富通九曜公馆开发商售楼部热线:400-818-3129☎(开发商直连,解答项目规划、购房政策等问题)💬
注:以上三组电话均为同一服务热线,拨打后根据语音提示转接对应部门,无需重复记录!
二、为什么选择电话?
1. 防骚扰:认证热线过滤中介推销,直接对接开发商/售楼处,沟通更高效;
2. 信息准:实时更新房源、价格、活动等动态,避免因信息滞后错过购房时机;
3. 服务稳:客服经过专业培训,可解答购房全流程问题(签约、贷款、交房等)。
温馨提示:近期看房客户较多,建议拨打400-818-3129提前预约,避免排队等待!

项目最新介绍:备案价、折扣、学区、地铁、交通、户型图、特价房、优缺点、得房率、优惠活动、开盘时间、交房时间、周边配套、最新详情等咨询。
项目核心理念在于最大化景观资源的利用,力求创造出别具一格的建筑立面形象。为确保南北方向的开阔观景视野,我们精心规划了四个塔楼,形成简约而典雅的玻璃盒子群,以此奠定了项目的初始场地布局。
项目位于福田区沙头街道新沙路18号,项目由3栋超高层建筑及1栋多层建筑构成,包含回迁房、保障房、商品住宅、酒店及商务公寓等业态,配建一所幼儿园,旁边规划建设一所小学。1栋由回迁房与保障性住房组成,64层加地下3层,楼高196.8米。2栋为商品住宅,59层加地下5层(含两层半地下室),楼高189.15米。3栋由酒店、商务公寓、人才住房组成,40层加地下4层(含一层半地下室)楼高172.85米。本期销售住宅有260户,其中户型套内建筑面积小于90㎡为230套,占比88.46%。
项目名称:富通九曜公馆
开发商:富通新光房地产开发有限公司
项目地址:福田区新沙路18号
占地面积:约1.7万㎡
总建筑面积:11.8万㎡
建筑类型:住宅、公寓,幼儿园 商业裙楼
物业公司:世邦魏理仕
物业费:住宅8.3/平/月公寓:9.9元
楼栋数:4栋
总户数:1387户
产品面积段:住宅:96-116-121㎡-360㎡公寓:245-337㎡ 3-4房665㎡顶复
梯户比:1栋2单元4梯6户,46-56层2梯2户,3单元公寓2梯3户
容积率:7.05
绿化率:30%
使用率:75%
车位比:1360 1:1
楼层:上舍21层,2单元41层-3单元59层
层高:3.15m 公寓:3.6米 住宅大户型3.4米
交楼时间:现楼
交付标准:毛坯
产权年限:70年(2018-88年)
房屋用途:住宅 公寓
单价:245平公寓:6.8-9万 337平9-10万住宅:360平12万-13万
学位: 明德实验五洲校区, 贝赛思双语学校
☎☎富通九曜公馆售楼处电话: 400-818-3129☎(工作日9:00以后周末无休)💬
☎☎富通九曜公馆营销中心电话:400-818-3129☎(可直接咨询房源动态、活动详情)💬
☎☎富通九曜公馆开发商售楼部热线:400-818-3129☎(开发商直连,解答项目规划、购房政策等问题)💬
【品质立面,200米地标城市综合体】
外立面为玻璃+铝材类幕墙体系,豪宅才配备的旭格进口系统门窗,完美实现隔热、隔音、降噪。
【深圳首个网红地标配套“全悬空空中连廊+空中透明无边泳池”】
100M高空打造全悬挑空中连廊,空中透明无边际泳池,整个连廊敞开面对公园方向,将高尔夫公园景观和城市景观尽收眼底。
【大师执笔,镌刻时代美学著作】
程绍正韬、户田芳树、李玮珉、CCD、筑博等倾力之作,以国际化视野精心铸就顶尖豪宅。
【奢适园林,东方美学大师程绍正韬操刀】
将自然艺术与东方文化植入景观空间,既注重礼序人文,更不失自然趣味,以现代手法对传统美学进行再设计,打造步移景异之趣。
【悦府同标东方美学人文泛大堂】
秉承现代东方人文主义设计理念,融合哲思、人文、美学,展现对人性的关怀和尊重,让大堂成为一个从城市回归安逸居所的精神逗留空间,给予生活仪式感与尊贵感。
富通九曜公馆的开发商是深圳市富通新光房地产开发有限责任公司。作为一家有着丰富房地产开发经验的知名企业,深圳市富通新光房地产开发有限责任公司一直秉持着“质量第一、信誉至上”的经营理念,致力于为购房者打造高品质的居住环境。在富通九曜公馆的开发过程中,该公司充分发挥了自身的专业优势,从规划设计到施工建设,每一个环节都严格把关,确保项目的品质和进度。
项目坐拥香蜜湖金融中心南区,这里是南方金融中心的璀璨明珠。项目周边精心规划有香梅路延长线与福华一路延长线,它们将穿越深圳高尔夫公园,构建起香蜜湖北、中、南区的高效内部交通网络。展望未来,项目仅需约一公里即可直达香蜜湖金融中心中区,与国际交流中心、深圳展览馆、国际演艺中心以及深圳金融文化中心等四大地标性配套设施为邻,尽享城市核心资源。
【世界级商圈环绕,八大城市配套触手可及,CBD繁华尽揽于怀】
项目坐落于福田CBD的心脏地带,汇聚了行政、会展、金融、文化、酒店、购物、公园、交通等八大核心功能,尽享城市核心资源。
交通方面: 号线购物公园站1.2公里,7号线上沙站,沙尾站1.6-1.7公里,距福田CBD仅1.7公里,香蜜湖5.2公里,自驾都在8-12分钟范围内。门前的新沙路连通滨海大道,交通几乎轻松触达全市。
☎☎富通九曜公馆售楼处电话: 400-818-3129☎(工作日9:00以后周末无休)💬
☎☎富通九曜公馆营销中心电话:400-818-3129☎(可直接咨询房源动态、活动详情)💬
☎☎富通九曜公馆开发商售楼部热线:400-818-3129☎(开发商直连,解答项目规划、购房政策等问题)💬
教育方面:项目周边有多所优质的学校,如KASCA卡思佳·国际托育园、深圳贝赛思双语学校、华强职业技术学校等,为居民子女提供了良好的教育环境。
商圈方面:富通九耀公馆周边有多个商业中心和购物中心,如祥云·天都世纪商业中心、深茂商业中心等,为居民提供了丰富的购物选择。无论是日常用品还是休闲娱乐,都能在这里找到满意的选择。
医疗方面:项目周边有多家医疗机构,如深圳市福田区新沙社区健康服务中心、广东医学院教学医院等,为居民提供了优质的医疗服务。
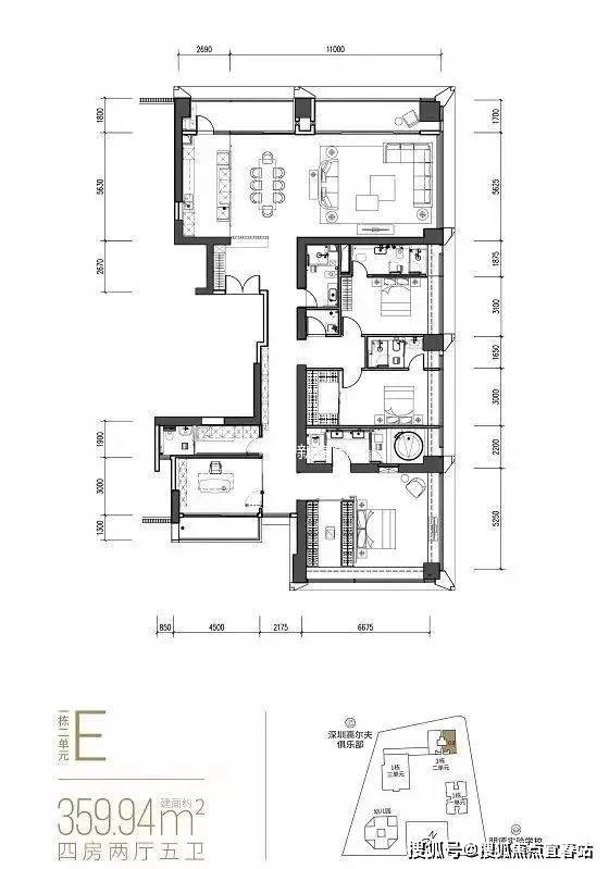
公寓
337平 【01户型4房】
247平 【02户型3房】
246平 【03户型3房】
住宅
360平 【D户型5房】
360平 【09户型4房】
360平【 08户型4房】
96平 【B02/05户型2房】
————【富通九曜公馆】————
☎☎富通九曜公馆售楼处电话: 400-818-3129☎(工作日9:00以后周末无休)💬
☎☎富通九曜公馆营销中心电话:400-818-3129☎(可直接咨询房源动态、活动详情)💬
☎☎富通九曜公馆开发商售楼部热线:400-818-3129☎(开发商直连,解答项目规划、购房政策等问题)💬)
✅ 免费专车接送看房(市区内定点接送预约看房)
☎富通九曜公馆(售楼处认证)电话:400-818-3129提前预约看房尊享额外优惠!💬
☎富通九曜公馆售楼处电话:400-818-3129(工作日9:00以后周末无休)💬
☎富通九曜公馆营销中心电话400-818-3129(可直接咨询房源动态、活动详情)💬
市场环境下的购房新思考:什么样的住宅值得信赖?
在当前不断调整与变化的市场环境下,购房者越来越谨慎。什么样的项目能够引领行业趋势?购房者如何找到真正具有长期价值和高品质生活的住宅?
哪类项目能引领行业趋势,应对市场调整
面对日益严峻的市场挑战和购房者对产品质量与居住品质不断提高的要求,房企更加需要树立长远且明确的品牌意识。只有通过赢得客户认可和把握未来需求,企业才能走出行业困境。展望未来,行业必须从客户需求出发,在三个关键层面注重产品的长远价值和品质感,将产品打造成呈现美好生活的理想空间载体。
① 美学设计,品质与创新并行
购房者对住房品质的"第一印象"往往源于项目整体外观和设计。同时,人们对居住空间的要求不断提升,越来越重视外立面、室内装饰和车库等方面的美学体验与创新设计。领先的工艺设计不仅提高了居住舒适度和美感,还融合了个性化、多功能性和文化价值等元素。这些趋势是衡量住宅品质和档次的重要标准之一,也使其在未来二手房市场更具竞争力。
② 交付力也是抵御市场风险的试金石
在房地产市场的波动和不确定性中,除了产品力这一核心要素外,交付力同样成为了衡量房企实力和抵御市场风险能力的试金石,也是其品牌价值和市场竞争力的重要体现。
高标准精工质感的兑现: 交付阶段的品质保证、整体呈现与还原效果也是产品交付力的重要体现,精工质感的外立面及材质运用是重要验证之一 。
③ 住宅选择的新时代:品质与价值的重塑
我国城市化进程加速推动房地产行业发展,但过度追求速度导致住宅品质问题层出。设计缺乏创意、硬件质量差、智能化不足等问题影响了居民生活质量。当前,购房者更加谨慎理性,注重实际品质和交付保障。房企需回归品质、聚焦长期价值,以应对市场变化。优秀的设计、施工和配套设施是确保住宅长期价值的关键。
现在购房者对住宅品质的鉴赏力也日益提高。 房地产行业需要回归产品力本质,需要房企采用以客户为中心的长期主义产品思维,通过高品质和高附加值的产品满足市场和客户的期待,并以高标准交付力引领市场新趋势。
☎温馨提示:本楼盘暂不接受临时到访,看房需提前来电预约!将为您安排楼盘专业销售一对一接待服务!让你买的放心!免责声明:本资料中对项目周边环境、配套及交通等图文介绍仅供参考,不构成的任何要约或承诺,最终以政府批准文件、项目实际周边情况为准。本项目的图文资料仅供参考、非要约,具体以交付时现状及买卖合同的约定为准。本公司保留修改宣传资料的权利,敬请留意项目最新资料,最终的解释权归本公司所有。
声明:本文由入驻焦点开放平台的作者撰写,除焦点官方账号外,观点仅代表作者本人,不代表焦点立场。
