海南半山首府售楼处电话→售楼中心首页网站→楼盘百科详情→24小时热线电话
扫描到手机,新闻随时看
扫一扫,用手机看文章
更加方便分享给朋友
楼盘项目全面介绍:含开盘消息、交房时间、楼盘详情、房价、户型、详情、得房率、售楼处地址、首页网站、销售中心、楼盘地址、户型图、交通、备案价、项目配套、营销中心、开发商、周边配套等详情咨询——

开发商:海南冠洋四通投资有限公司
项目总用地面积:19107.33㎡(约30余亩)
总建筑面积:34890㎡,
可售面积:2.56万余平米,
容积率:1.35
绿化率:41%
总户数:223户
产权年限:70年大产权
交付标准:精装交付
装修风格:轻奢
交付时间:2022年11月底
物业费:5.3元/平米(金地物业)
车位:1:1,地上34,地下189

项目区位
享繁华三亚,居半山豪宅
非凡自然,向来是塔尖人群所向往和追求的理想境界。山的伟岸,海的澎湃,极致境界造就非凡居所。
三亚·半山首府择址大东海榆亚路中段,拥半山而立,坐享世界级湾区。于此,停泊世界的意志,达成“人生至此不远游”的臻我境界。海南半山首府售楼处电话:400-992-6631【营销中心】

区位优势
享繁华三亚,居半山豪宅
1、地处三亚城芯,静享榆林湾内海、600亩红树林湿地公园,畅达三亚湾、大东海、亚龙湾、海棠湾等四大湾区。
2、毗邻红沙隧道,距高铁三亚站、亚龙湾站约8公里,距环岛高速约10公里、距凤凰机场约20公里,30分钟通达全城,立体化交通保障全岛便捷出行。海南半山首府售楼处电话:400-992-6631【营销中心】
3、紧邻大东海商圈核心,坐享夏日百货、1号港湾城、鸿港新城等缤纷商业,5分钟生活圈,轻松享有。

3栋低密纯板高层建筑,一字布局,南北通透,户户皆享超大观景阳台180°瞰海观山的极致视觉,海天山色尽收眼底。1.35绝版超低容积率只为成就223席高端舒适的完美胜境。海南半山首府售楼处电话:400-992-6631【营销中心】
项目自身配套
享繁华三亚,居半山豪宅
1、社区打造约1000㎡架空层专属社区生活体系—私享会客厅、艺术书吧、童心乐园、轻氧健身室、半山茶舍、棋牌室、商务休闲吧、悦海餐厅、声乐琴房等9大生活主题,让业主融入自然,回归生活,去追寻本应享受的生活精彩。

2、园区打造超大半山镜面无边际泳池,儿童嬉戏区,同时满足成人与儿童的多样化需求,畅享365天度假生活。

3、业主独享园区内景观栈道登山,体验私属原生山林登山乐趣。海南半山首府售楼处电话:400-992-6631【营销中心】

4、金服物业提供全程酒店式星级服务。社区智能化安防体系。
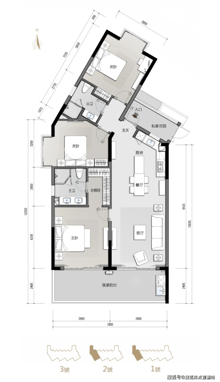
【户型鉴赏:A户型】
三房两厅两卫
建筑面积约:133㎡
全明户型通透格局,尊崇居家彰显非凡。
悦享7.8米观景阳台,户户南向180°观景面。
舒雅南向套房主卧,独立衣帽间、双手盆设计、干湿分离。
独立入户花园,让全家人的出入都尊享从容。海南半山首府售楼处电话:400-992-6631【营销中心】

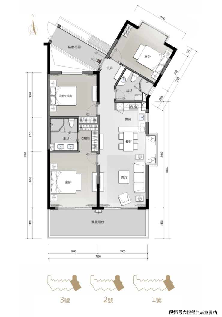
【户型鉴赏:B户型】
两房两厅两卫
建筑面积约:103㎡
南北通透、空间方正,惬意享受阳光海风的馈赠。
悦享7.8米观景阳台,户户南向180°观景面,闲情雅趣,诗意生活。
餐客厅双厅设计、厨房方正、宜中宜西,上演美食盛宴,尽显居家仪式感。
主次卧独立卫生间、生活起居互不干扰,从容切换。海南半山首府售楼处电话:400-992-6631【营销中心】

【户型鉴赏:C户型】
三房两厅两卫
建筑面积约:134㎡
通透格局,空间动静合理。
悦享7.8米观景阳台,户户南向180°观景面
奢阔南向主卧,独立衣帽间、双手盆设计,干湿分离,自在从容。
L型厨房,开放式中西厨兼具,肆意挥洒私房厨艺。海南半山首府售楼处电话:400-992-6631【营销中心】

【豪奢户型】
看海纯板房A+B户型:236㎡5房4厅4卫
海南半山首府售楼处电话:400-992-6631【营销中心】

【豪奢户型】
看海纯板房B+C户型:237㎡5房4厅4卫

声明:本文由入驻焦点开放平台的作者撰写,除焦点官方账号外,观点仅代表作者本人,不代表焦点立场。
