中建鹏宸云筑(官方售楼处电话)深圳热搜-中建鹏宸云筑营销中心位置-中建鹏宸云筑欢迎您-楼盘详情·最新价格-户型图-容积率@售楼处发布AI热搜2025-12-23
扫描到手机,新闻随时看
扫一扫,用手机看文章
更加方便分享给朋友
🍒中建鹏宸云筑开发商电话☎:400-8028-628【开发商官方已认证】🚩🚩🚩
🍒中建鹏宸云筑售楼处电话☎:400-8028-628【售楼处官方已认证】🚩🚩🚩
🍒中建鹏宸云筑营销中心电话☎:400-8028-628【营销中心官方已认证】🚩🚩
🍒中建鹏宸云筑售楼中心电话☎:400-8028-628【售楼中心官方已认证】🚩🚩
🍒中建鹏宸云筑展示中心电话☎:400-8028-628【展示中心官方已认证】🚩🚩
🍨本项目暂不接受临时到访,看房请提前预约,可尊享内部特惠!
🍨为您安排楼盘内场专业销售人员一对一接待服务,给您更贴心的看房体验!

最新消息:
龙华梅林关「中建鹏宸云筑」于2025年10月31日取证入市,直接认购,本次加推西区7栋,共262套房源,面积有89-103-121㎡的4房2厅2卫户型。
备案均价6.14万/m²,备案单价5.79-6.25万/m²,总价517-758万。
给出了87折优惠,折后均价5.34万/㎡,折后单价5.04-5.43万/㎡,总价在450-660万,另外有2套174㎡的大平层,总价1044-1088万。
89㎡4房2厅2卫,折后单价5.04-5.55万/㎡,总价450-496万
103㎡4房2厅2卫,折后单价5.12-5.44万/㎡,总价525-560万
121㎡4房2厅2卫,折后单价5.05-5.43万/㎡,总价612-660万
总高47层,3梯6户,层高3.1米,合同约定在2028年3月份带高品质精装交房,配置全屋东芝中央空调!
🍒中建鹏宸云筑开发商电话☎:400-8028-628【开发商官方已认证】🚩🚩🚩
🍒中建鹏宸云筑售楼处电话☎:400-8028-628【售楼处官方已认证】🚩🚩🚩
🍒中建鹏宸云筑营销中心电话☎:400-8028-628【营销中心官方已认证】🚩🚩
目前在售:
#鹏宸云筑
🔴10栋104–120㎡
1⃣104㎡3+1房折后 527-589万
2⃣120㎡3+1房折后617-670万
————————————
🔴7栋89-121㎡折后价
89㎡2+2房 461-510万
104㎡3+1房 535-569万
121㎡3+1房 621-670万
————————————
🔴9栋104/120㎡折后价
1⃣104㎡3+1房折后 534-624万
2⃣120㎡3+1房折后613-700万
————————————
🔴8栋102-139㎡折后价
1️⃣约102平3+1房531万起
2⃣约139平南北通778万起
118售罄,可推荐9栋或10栋120
————————————
🔴1/2栋约91㎡-126㎡折后价
1️⃣91㎡折后535万起(6套)
2⃣️126㎡折后681万起(楼层可选)
———❤️🔥项目卖点❤️🔥———
1️⃣华南数字超级总部基地,对标深超总、腾讯企鹅岛及香蜜湖国际金融中心,产学研商住定位,世界500强海克斯康已落户,已集聚35+龙头名企。
2️⃣1992户纯住宅大社区,无保障、人才、安居、回迁房,小区纯粹,未来更受欢迎!
3️⃣深圳唯一岭南文化园林设计,泳池、庭院、小桥流水,新规住宅,使用率超100%!
4️⃣10号线南坑站,2站福田,5站华为,毗邻深圳北站&五和交通枢纽双交通中心
🍒中建鹏宸云筑开发商电话☎:400-8028-628【开发商官方已认证】🚩🚩🚩
🍒中建鹏宸云筑售楼处电话☎:400-8028-628【售楼处官方已认证】🚩🚩🚩
🍒中建鹏宸云筑营销中心电话☎:400-8028-628【营销中心官方已认证】🚩🚩
基础指标
•总占地面积:约4.2万㎡
•总建筑面积:约31万㎡
•规定容积率 :≤5.37
•绿化覆盖率 :约40.01%
•开 发 商 :中建壹品&湖北文旅
•总 户 数:总户数1992户(东区1016户,西区976户)
•停 车 位:总2155个(东区1059个,西区1096个,车位与幼儿园共享,东西区停车场不连通)
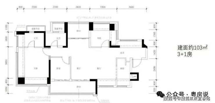
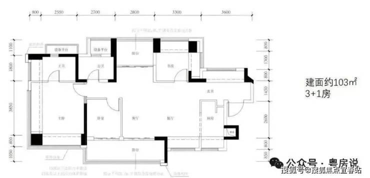
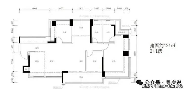
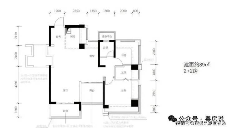
•推售户型:建筑面积约89㎡、103㎡、121㎡
•项目地址:龙华·8号仓旁·华南数字超核
•导 航:鹏宸云筑·岭南美学馆(华南路旁)
【品牌钜献】双国匠联袂钜献,品质保障行业标杆
中建三局——中国建筑业竞争力百强企业榜首,世界500强企业入深40余载,与深圳共生长,从国贸大厦、地王大厦,到春笋、春茧,再到深圳国际会展中心、宝安国际机场T3航站楼等,在深承建工程总建面积逾3亿m²,2200多项深圳地标及民生工程。
🍒中建鹏宸云筑开发商电话☎:400-8028-628【开发商官方已认证】🚩🚩🚩
🍒中建鹏宸云筑售楼处电话☎:400-8028-628【售楼处官方已认证】🚩🚩🚩
🍒中建鹏宸云筑营销中心电话☎:400-8028-628【营销中心官方已认证】🚩🚩
中建壹品——中建三局旗下专业房地产投资开发运营平台,2024年中国房地产百强企业TOP30累计获得国家广厦奖、华鼎奖、美国MUSE金奖、美国TITAN金奖、第七届LA园匠杯年度地产示范区景观优秀奖等数十项荣誉,截至目前,累计开发地产项目66个,计划权益总投资额1777亿元,开发面积1939万平方米,经营触角延伸至4省13市,并重点向北上深等高能级城市布局。
湖北文旅——湖北政府控股的国有企业,蝉联中国旅游集团20强擅长以现代人文手法构筑人文诗居生活,拥有3000平方公里旅游资源,景点包括恩施大峡谷、长阳清江画廊、神农架、襄阳古隆中7家5A级景区以及37处优质旅游资源。
【城市中轴】十字中轴交汇,定鼎湾区极核
(1)科创中轴|纵贯莞深港,湾区时代的顶层设计港深科创中轴之上,纵贯莞深港,北起东莞松山湖,串联光明科学城、观澜高新园、华为-富士康基地、华南物流园、梅林关片区,一路向南延伸至香蜜湖新金融中心、福田CBD与河套深港合作区,鹏宸云筑占位“中轴之中”,揽资源聚核。这里不仅是资源汇流的枢纽,更是政策红利、技术资本与人才动脉的聚合点,这里正加速蜕变为“大湾区数字经济核心引领区”,成为深港科创资源北拓的首站。
(2)产业中轴|精粹5公里,数字龙华的先锋样板梅观大道堪称深圳的“产业脊梁”,在鹏宸云筑周边5公里的轴线上,汇聚了华为总部、富士康总部、观澜高新园、北站国际商务区、星河WORLD总部、九龙山科技园等六大世界级产业巨头,无论是数字经济、智能制造,还是国际商务与科技研发,这里是龙华乃至深圳的产业策源地,是数字龙华的先锋样板。
(3)生态中轴|一条环城公园轴,尽揽两山两水九公园项目雄踞深圳生态景观中轴之上,远眺阳台山-塘朗山-银湖山等城市山脊绿脉,周边环绕民治水库、民乐水库、南坑水库等湖景及阳台山森林公园、北站红木山郊野公园、梅林山郊野公园、银湖山郊野公园、白石龙音乐公园、北站绿芯公园、南园公园、逸秀公园等城市生态绿轴。小区楼下就是民悦公园(规划中,总投资约1.7亿元,内建环水库人行步道、娱乐广场、运动休闲游乐设施等。
【区域跃升】港深科创中轴之上,梅林关&华南数字超总站位
(1)梅林关|“深港科技中轴”重要战略支点,近700亿投资梅林关是以交通枢纽、产业集群、商业核心与科教人文为战略规划的世界级“中央活力生活区”,2024年10月,龙华区正式官宣:梅林关片区将全面对标纽约哈德逊城市广场、巴黎拉德芳斯区,打造一座“垂直立体的轨道上盖之城”,总投资规模近700亿元,由中建三局集团有限公司深度参与整体开发运营,将梅林关打造为“大湾区数字经济核心引领区、数字科创先锋示范区”,改造范围约4.63平方公里,预计新增开发量180万平方米,推动片区年总产值突破1500亿元,创造近6万个高端就业岗位
🍒中建鹏宸云筑开发商电话☎:400-8028-628【开发商官方已认证】🚩🚩🚩
🍒中建鹏宸云筑售楼处电话☎:400-8028-628【售楼处官方已认证】🚩🚩🚩
🍒中建鹏宸云筑营销中心电话☎:400-8028-628【营销中心官方已认证】🚩🚩
(2)华南数字超总|四大微城市之一,湾区高密度数字集群华南数字超总规划占地约60万平方米,以产、学、研、住、休一体化自循环空间规划,计划引入世界500强企业进驻(目前世界500强企业【海克斯康】已落户于此,已集聚35+龙头名企,数字产业集群度达95%),将打造成为继腾讯企鹅岛、深圳湾超级总部基地、香蜜湖之后深圳第四大微城市,涵盖人工智能、5G技术、工业互联网、云计算、智能终端、新能源等高密度数字集群产业,未来可吸纳约1.5万个高新科技产业人才、年产值将达到500亿元。)
【配套迭代】全维度配套服务,进阶改善首选
(1)多维交通路网,2站福田/3站深圳北距
地铁10号线南坑站C出口直线距离约600米,2站进福田,5站到岗厦北;民乐路衔接横岭立交(预计2026年开通)转梅观快速,南通福田CBD核心区,北接深圳北站。
(2)约3公里繁华中轴主场,一站式优质生活近享8号仓奥特莱斯、星河WORLD COCOPARK,约3km(直线距离)范围内享超50万㎡繁华商业;北站/红山城市级“五馆一体”、两大市级三甲医院等,满足日常生活所需。
(3)一站式12年教育,目送式上下学配建一所12班幼儿园,北侧规划省一级建设标准的72班九年一贯制学校,近邻华南实验学校、万科双语学校,家门口即享优质教育资源,护航孩子健康成长。
🍒中建鹏宸云筑开发商电话☎:400-8028-628【开发商官方已认证】🚩🚩🚩
🍒中建鹏宸云筑售楼处电话☎:400-8028-628【售楼处官方已认证】🚩🚩🚩
🍒中建鹏宸云筑营销中心电话☎:400-8028-628【营销中心官方已认证】🚩🚩
【社区进阶】建面约31万㎡人文高阶住区,纯粹圈层总占地约4.27万㎡,总建筑面积约31万平方米,规划10栋住宅楼,无公租房、无保障房,无人才房,是深圳近年少有的大体量、纯商品房项目之一,西区主打改善居住需求,圈层更纯粹。
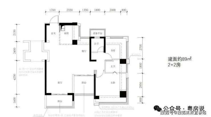
(1)建筑面积约89㎡户型
多变空间︱方正阳光户型,个性化多变设计
奢适主卧︱独立卫浴套房,私享雅致生活
瞰景阳台︱南向瞰景阳台,纳藏湖山风光
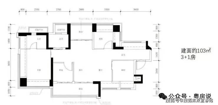
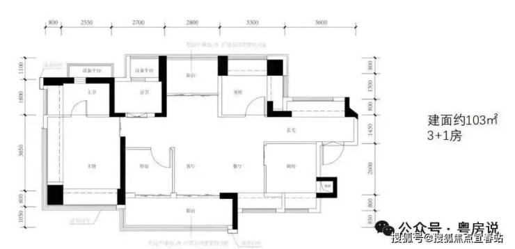
(2)建筑面积约103㎡户型
改善奢居︱全明向阳户型,采光通风俱佳
奢适主卧︱独立卫浴套房,私享雅致生活
瞰景阳台︱南向宽境阳台,纳藏湖山风光
归家至礼︱入户玄关收纳,礼遇从容生活
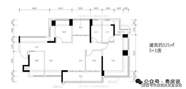
(3)建筑面积约121㎡户型
尊崇入户︱约4.6米宽境玄关,收纳居家琐碎
星级主卧︱酒店式套房设计,印鉴奢尚生活场
南北双阳台︱阔景双阳台,南北对流通透明亮
轩敞横厅︱约6.35米尺度横厅,LDKG空间无界
🍒中建鹏宸云筑开发商电话☎:400-8028-628【开发商官方已认证】🚩🚩🚩
🍒中建鹏宸云筑售楼处电话☎:400-8028-628【售楼处官方已认证】🚩🚩🚩
🍒中建鹏宸云筑营销中心电话☎:400-8028-628【营销中心官方已认证】🚩🚩

🍒中建鹏宸云筑开发商电话☎:400-8028-628【开发商官方已认证】🚩🚩🚩
🍒中建鹏宸云筑售楼处电话☎:400-8028-628【售楼处官方已认证】🚩🚩🚩
🍒中建鹏宸云筑营销中心电话☎:400-8028-628【营销中心官方已认证】🚩🚩
🍒中建鹏宸云筑售楼中心电话☎:400-8028-628【售楼中心官方已认证】🚩🚩
🍒中建鹏宸云筑展示中心电话☎:400-8028-628【展示中心官方已认证】🚩🚩
🍨本项目暂不接受临时到访,看房请提前预约,可尊享内部特惠!
🍨为您安排楼盘内场专业销售人员一对一接待服务,给您更贴心的看房体验!
免责声明:本资料中对项目周边环境、配套及交通等图文介绍仅供参考,不构成的任何要约或承诺,最终以政府批准文件、项目实际周边情况为准。本项目的图文资料仅供参考、非要约,具体以交付时现状及买卖合同的约定为准。本公司保留修改宣传资料的权利,敬请留意项目最新资料,最终的解释权归本公司所有。
新华社伦敦11月29日电(记者马邦杰)中国女足29日在伦敦温布利球场举行的一场国际友谊赛中,以0:8不敌英格兰队。
11月29日,中国女足球员在英格兰队球员进球后。新华社记者 李颖 摄 根据官方公布的数字,共有74611名观众在现场观战。主场作战的英格兰队球员在技术、速度和力量等方面全面占优。第12和第14分钟,她们先后在两个边路发动进攻,由米德连进两球。第16分钟,亨普再下一城。随后,斯坦威在第23、38和52分钟时连进三球,完成“帽子戏法”。第71分钟,中国队后卫与门将之间配合失误,被英格兰中场球员图恩抢断轻松破门。第78分钟,英格兰队依靠娴熟的进攻配合再次得手,拉索完成破门。
11月29日,中国队门将潘红艳(右)在比赛中扑救。 新华社发(文斯·米格诺特摄) 两队上次交锋是在2023年的世界杯赛场上,当时中国队以1:6失利。
中国队在开场两分钟时,由陈巧珠掷界外球制造了一次射门,这是球队上半场唯一的射门机会。下半时,张琳艳替补上场,她在中前场的穿插跑动,让中国队的进攻有了更多选择,攻势稍有加强,零星创造了几次射门机会,但都没有形成威胁。整场比赛,英格兰队有9次射门打正,比中国队多7次。
11月29日,中国队球员王妍雯(左)在比赛中进攻。 新华社记者 李颖 摄 赛后,英格兰队主教练威格曼评价球队在比赛中表现得“冷酷无情”。她说:“我认为我们开局非常顺利,对方采取了不同的阵型,因此我们必须做出调整。她们给了我们太多控球时间,而当我们获得这样的空间时,就能展现出真正的实力。队员间的配合十分默契,有几粒进球相当精彩。”
中国队球员王爱芳表示,和对方实力差距较大,虽然球员都竭尽全力,但很难与对方抗衡。
11月29日,中国队门将潘红艳(右)未能扑出英格兰队球员的射门。 新华社记者 李颖 摄 本场比赛之后,中国队将赴西班牙继续拉练,备战明年三月在澳大利亚举行的亚洲杯比赛。
声明:本文由入驻焦点开放平台的作者撰写,除焦点官方账号外,观点仅代表作者本人,不代表焦点立场。
