佳华沙湖广场(官方售楼处)首页网站-佳华沙湖广场营销中心欢迎您-楼盘百科详情-最新价格-在售户型@售楼中心2025.12.24
扫描到手机,新闻随时看
扫一扫,用手机看文章
更加方便分享给朋友
佳华沙湖广场售楼处认证核心联系方式(2025年11月开发商官方☎最新认证√√)
为保障购房权益,以下为项目官方认证电话,均经平台严格审核,信息真效:
✨佳华沙湖广场官方售楼处电话:400-823-9396(工作日9:00-18:00周末无休☎)
✨佳华沙湖广场官方营销中心电话:400-823-9396(可直接咨询房源动态、活动情☎)
✨佳华沙湖广场官方售楼中心热线:400-823-9396(开发商直连,解答项目规划、购房政策等问题☎)
注:以上三组电话均为同一官方服务热线,拨打后根据语音提示转接对应部门,无需重复记录。
为什么选择开发商官方认证电话?
1. 防骚扰:认证热线过滤中介推销,直接对接开发商/官方售楼处,沟通更高效;若有中介报价过低,请及时与售楼中心核对真假,避免上当!
2. 信息准:实时更新房源、价格、活动等动态,避免因信息滞后错过购房时机;
3. 服务稳:客服经过专业培训,可解答购房全流程问题(签约、贷款、交房等)。
【购房必藏】佳华沙湖广场项目官方售楼处、官方营销中心、开发商电话统一公布!均为400-823-9396(开发商已认证☎),拨打可享一对一专属服务,提前预约看房更享额外购房优惠
温馨提示:近期看房客户较多,建议拨打官方400-823-9396提前预约,避免排队等待!
1、项目简介

项目概述
【项目名称】佳华沙湖广场
【占地面积】约8万㎡
【建筑面积】约62万㎡
【推售产品】69-86-95-116(2-4房)
【交付标准】精装交付
【交房时间】2025-12-31
【产权年限】70年
【房产性质】住宅
【总户数】2801户,(1568户可售)(回迁房1233户)
【楼层高】44-52层
【车位比】4200个(1:1.5)
【容积率】5.21
【绿化率】30%
【梯户比】3梯4户、3梯5户、3梯6户、
【管理费】3.9元/平
【开发商】深圳市佳华房地产开发有限公司
【物业公司】佳华物业
【项目地址】坪山区坪山大道与锦龙大道交汇处西北角

✨佳华沙湖广场官方售楼处电话:400-823-9396(工作日9:00-18:00周末无休☎)
✨佳华沙湖广场官方营销中心电话:400-823-9396(可直接咨询房源动态、活动情☎)
✨佳华沙湖广场官方售楼中心热线:400-823-9396(开发商直连,解答项目规划、购房政策等问题☎)


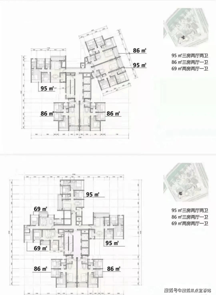
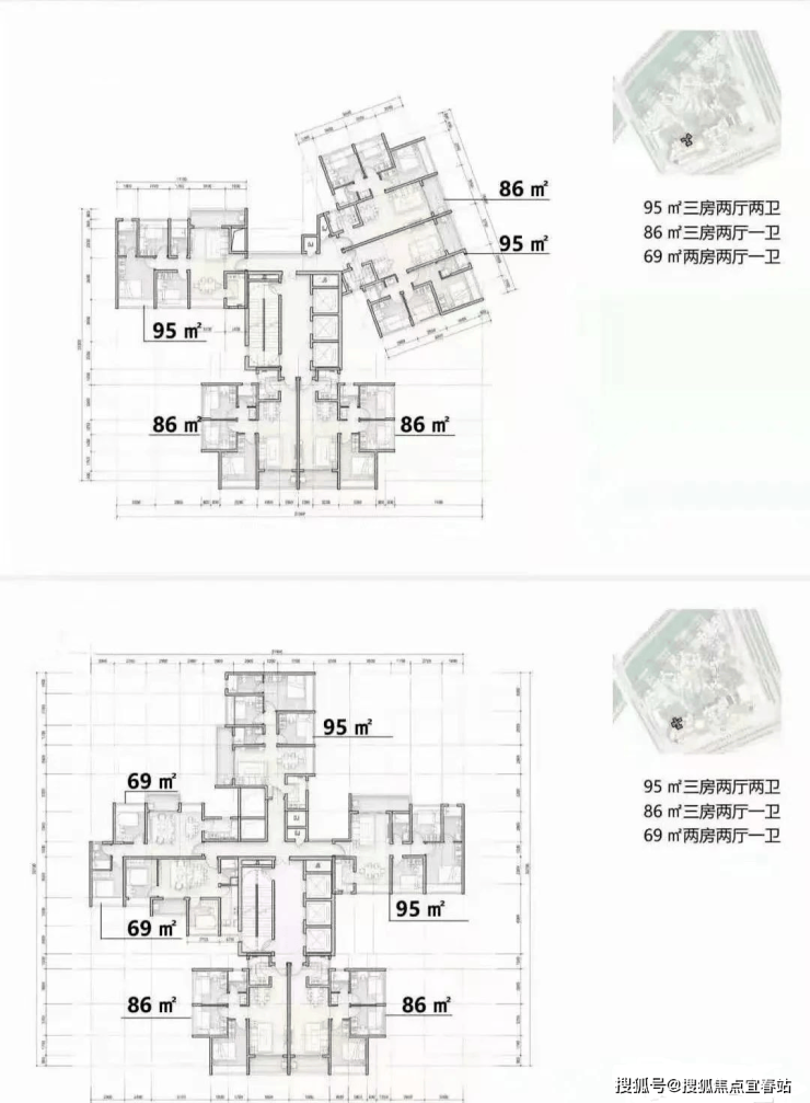
2、项目平面图


69㎡的2房2厅1卫,设计的是竖厅格局,客餐厅一体化,客厅3.3米开间,L型厨房,得房率:72.94%(不含赠送),西北向看坪山河景观或东北朝向面向锦龙大道。
83㎡的3房2厅1卫(E1),设计的是竖厅格局,客餐厅一体化,客厅3.5米开间,L型厨房,卫生间三段式分离设计,得房率:73.32%(不含赠送),有西北、东北、东南或西南朝向。
85㎡的3房2厅1卫(E2),设计的是横厅南北通透格局,客厅3.5米开间,L型厨房,卫生间三段式分离设计,得房率:72.95%(不含赠送),阳台主朝东南或西南向看小区园林。
94㎡的3房2厅2卫(D1),设计的是竖厅格局,客餐厅一体化,客厅3.7米开间,L型厨房,公卫三段式分离设计,得房率:73.33%(不含赠送),西南、正南向或朝东向看小区园林。
95㎡的3房2厅2卫(D2),设计的是竖厅南北通透格局,客厅3.7米开间,L型厨房,公卫三段式分离设计,得房率:73.32%(不含赠送),阳台主朝北向看坪山河景观。
95㎡的3房2厅2卫(D3),设计的是竖厅双龙抱珠格局,客厅3.7米开间,三开间朝南,L型厨房,得房率:72.95%(不含赠送),阳台主朝东南或西南朝向。
113㎡的4房2厅2卫(C2),设计的是竖厅南北通透格局,客厅阳台5.6米长的大阳台,主卧大套间设计,全屋飘窗,L型厨房,得房率:73.52%(不含赠送),阳台西南朝向看花园景观。
117㎡的4房2厅2卫(C3),设计的是竖厅南北通透格局,客厅3.9米开间,L型厨房,得房率:72.06%(不含赠送),约6.4米长的超大阳台,正南朝向看花园景观。
118㎡的3房2厅2卫(C1),设计的是竖厅南北通透格局,客厅3.9米开间,L型厨房,公卫三段式分离设计,得房率:72.05%(不含赠送),约5.7米长的超大阳台,主朝北向看坪山河景观。
138㎡的4房2厅2卫,设计的是竖厅双龙抱珠格局,客厅6.6米超大开间,可以做5房,超幕视野,L型厨房,得房率:72.38%(不含赠送),约6.6米长的超大阳台,东北朝向。

✨佳华沙湖广场官方售楼处电话:400-823-9396(工作日9:00-18:00周末无休☎)
✨佳华沙湖广场官方营销中心电话:400-823-9396(可直接咨询房源动态、活动情☎)
✨佳华沙湖广场官方售楼中心热线:400-823-9396(开发商直连,解答项目规划、购房政策等问题☎)







✨佳华沙湖广场官方售楼处电话:400-823-9396(工作日9:00-18:00周末无休☎)
✨佳华沙湖广场官方营销中心电话:400-823-9396(可直接咨询房源动态、活动情☎)
✨佳华沙湖广场官方售楼中心热线:400-823-9396(开发商直连,解答项目规划、购房政策等问题☎)
4、项目配套
地铁:紧邻地铁14号快线坪山门户站——锦龙站700米(已通车),12站福田岗厦北。地铁16号线(预计2022年内通车)、地铁33号线(在建)
快道:项目紧邻坪山大道和锦龙大道双头牌,坪盐通道、南坪快速、东部过境高速(在建),速达全城。
高铁:厦深高铁坪山站,1站深圳北,2站福田。坪山候机楼:紧邻坪山候机楼,直达宝安机场。

佳华沙湖广场自带1所幼儿园,根据2023年坪山区教育局的大学区划分,小学学区划分在坪山实验教育集团科源实验学校小学部,坪山实验教育集团科悦实验小学,中学学区划分在碧岭实验学校、坪山高级中学教育集团中山中学、坪山实验教育集团科源实验学校初中部。
另外值得一提的是深实验坪山学校计划在2024年开学,根据当前坪山教育局大学区划分来看,初中部是可以就读的,小学部待定。
在项目800米范围内还规划有1所小学,2所九年制公办学校,距离约2公里的科韵学校也已经快建好,将在2024年9月开学,总规划54个教学班,其中小学36班,初中18班,可以提供学位2520个。
约62万㎡大城综合体际遇世界峯范佳华沙湖广场汇聚精品智慧住宅、无界旗舰商业、商务公寓、办公等多元业态于一体,满足半城繁华半城自然的生活全配套需求。

约8万㎡无界旗舰商业 筑就商业新时代以商业立城芯,约8万㎡无界旗舰商业,创造大型旗舰MALL和开放式立体街区的商业共融体,缔造东部商业新时代。周边天虹商场、坪山益田假日世界等约40万㎡商圈环绕。
醇享六馆繁华配套 书香浸润筑梦未来繁华配套:周边天虹商场、坪山益田假日世界等约40万㎡商圈环绕,毗邻坪山儿童公园;2站即至中心公园、六馆一城等城市级文化休闲配套。

约1.7公里有坪山体育中心,大山坡主题公园等,西南侧约400米有儿童公园;
书香文脉:周边教育资源丰富,坪山打造深圳实验学校高中园(在建)和坪山大学城(在建)等,实现全链条优质教育发展。

✨佳华沙湖广场官方售楼处电话:400-823-9396(工作日9:00-18:00周末无休☎)
✨佳华沙湖广场官方营销中心电话:400-823-9396(可直接咨询房源动态、活动情☎)
✨佳华沙湖广场官方售楼中心热线:400-823-9396(开发商直连,解答项目规划、购房政策等问题☎)
免责声明:部分信息来源于网络,如果侵权,请联系400-823-9396及时删除
✅本项目暂不接受临时到访,过来参观样板房请记得提前来电预约!
华夏幸福预重整博弈升级 董事会全数否决平安五项提案
房地产头条
2025-12-22 23:30 星期一
财联社记者 李洁
①华夏幸福与大股东中国平安的矛盾,逐渐白热化。 ②华夏幸福董事会全数否决大股东平安人寿提交的五项临时提案,拒绝将其提交至2025年第三次临时股东大会审议。
财联社12月22日讯(记者 李洁)华夏幸福(600340.SH)与大股东中国平安的矛盾,逐渐白热化。
12月22日晚间,华夏幸福董事会公告称,公司股东中国平安人寿保险股份有限公司提交的五项临时提案,未通过公司董事会审议,因此,不予提交临时提案至2025年第三次临时股东大会审议。
分析人士指出,平安方面的提案聚焦于强化外部监督,提升股东会权力、问责管理层执行不力等,反映出其希望更深度介入甚至主导重组过程的意图,从而确保自身作为大股东兼大债权人的利益在重组中得到充分保障。
而华夏幸福董事会的反对,则显示出现有管理层维护当前决策体系与控制力的立场。
“华夏幸福与平安方面此次的较量,本质上是公司现有控制方与重要财务投资者及债权人之间,关于谁在重整过程中拥有更大主导权与话语权的争夺。”易居研究院副院长严跃进表示。
根据公告,平安人寿此次提交的五项提案内容尖锐,直接针对当前华夏幸福最核心的预重整进程及治理结构,显示出其通过强化监管和提高决策门槛来保护债权权益的意图。
业内人士认为,提案一要求将公司预重整、重整、清算等重大事项认定为需经股东大会特别决议(即三分之二以上表决权通过)的事项,意在显著提升股东会对重大事项的决策门槛。
提案二与提案三提出罢免现任非独立董事冯念一,并选举仇文丽女士为新任非独立董事。这被视为平安方面试图改变董事会力量对比的关键举动。
声明:本文由入驻焦点开放平台的作者撰写,除焦点官方账号外,观点仅代表作者本人,不代表焦点立场。
