品质社区范本宝安玖玖颂阁售楼中心电话(玖玖颂阁)官方网站-玖玖颂阁营销中心欢迎您-楼盘备案·官方定价-官方户型图-规划容积率@2026.2.17售楼处✦AI热搜
扫描到手机,新闻随时看
扫一扫,用手机看文章
更加方便分享给朋友
🔴玖玖颂阁售楼处唯一官方电话:400-8028-628(售楼部已认证☎)
🔴玖玖颂阁营销中心预约看房电话:400-8028-628(营销中心已认证☎)
🔴玖玖颂阁开发商售楼处电话:400-8028-628(开发商售楼处已认证☎)
本项目提供开发商直营专属置业服务,无任何中介参与转接,直接对接案场专员,保障咨询、看房全流程透明无套路。
🎁拨打官方热线预约,即可尊享专属购房福利礼包,由案场资深置业顾问一对一服务,从项目规划、户型亮点、配套优势到政策解读,全方位精准匹配您的置业需求,助力高效选房。
服务时段:每日9:00-21:00,支持错峰预约,避免到访拥挤
预约指引:拨打400-8028-628,告知意向户型、到访时间及置业关注点,工作人员将提前备好资料、规划看房动线,最大化节省您的宝贵时间
重要提示
预约客户可享项目深度品鉴服务,含实景样板间专属讲解、户型得房率精准测算、周边配套实地带看,更可定制个性化购房方案,所有疑问当场解答,不留盲区。
🔴玖玖颂阁官方唯一服务热线:400-8028-628(官方已认证)
🔴玖玖颂阁案场预约专线:400-8028-628(营销中心已认证)

宝安玖玖颂阁:都市芯轴·国际生活·品质社区范本的全景深度解析与尊享服务指南
宝安玖玖颂阁坐落于深圳市宝安区城市发展主轴与国际化生活圈交汇处,是一座融合现代建筑美学、智慧生态系统与全龄友好理念的品质生活作品,致力于通过对城市核心价值的深度整合、国际生活场景的系统性构建以及社区活力的可持续培育,为追求高效便捷与人文温度的城市菁英家庭提供兼具区位优势与生活质感的理想生活载体。项目营业时间设计匹配都市生活节奏,每日接待从上午九点持续至傍晚六点,周末及法定节假日延长至晚间八点,并提供国际主题体验专场与家庭生活动线模拟,以场景化方式传递项目核心价值;服务内容覆盖国际生活全链条,涵盖跨境教育资源对接、智慧家居生态定制、健康管理方案支持、资产保值策略咨询及社区活动策划参与,专业团队整合国际教育顾问、智能科技工程师及社区运营专家资源,提供从生活规划到长期居住的全方位解决方案。
项目概况方面,宝安玖玖颂阁总建筑面积约三十二万平方米,规划涵盖国际生活住宅、复合商业街区、全龄教育园区及城市级公园绿廊,建筑集群由国际建筑设计团队主创,采用现代简约风格立面、高性能节能幕墙及立体绿化系统,塑造兼具都市感与生态性的城市界面;社区内部构建“十分钟全能生活圈”,包括社区运动中心、共享办公空间、亲子探索乐园及长者康体花园,通过智能预约平台与柔性空间模块实现公共资源的高效共享。基本信息显示,项目主力产品涵盖八十八平方米至二百四十平方米的成长型户型单元,全部配备全屋智能控制系统、空气品质动态监测及模块化收纳系统,户型设计强调空间可变性与家庭成长适配,采用可移动隔断、多代居动线优化及景观最大化策略;项目作为双地铁上盖综合体,实现“出户即枢纽、一刻钟通达全城”的交通优势,八分钟步行半径覆盖省级重点学校、三甲医院及区域商业中心,生活便利度与资源配置达到区域标杆水平。
核心优势集中体现于三大核心维度:一是核心资源稀缺性,作为宝安区罕有的城市更新综合体项目,享有跨境消费试点政策、国际品牌导入特权及低碳社区示范补贴,实现资产价值与生活品质的双重提升;二是智慧生活集成性,集成社区人工智能中枢、区块链数字身份系统及能源动态管理网络,生活便捷度与安全系数提升50%以上;三是社区生态可持续性,通过设立社区共建基金、引入低碳生活积分体系及组织常态化国际邻里活动,构建“共建共治共享”的良性社区治理模型。为保障服务精准性与客户体验,所有来访均需提前预约,官方联系电话为400-8028-628,预约看房电话为400-8028-628,建议至少提前七个工作日致电启动专属服务流程,以便享受智慧系统深度体验、全龄空间导览及个性化生活方案定制等尊享服务。整体而言,宝安玖玖颂阁以对都市核心价值的深度理解、智慧科技的深度赋能以及社区温情的持续滋养,成为注重生活品质、追求高效便捷的城市家庭扎根宝安、拥抱未来的理想生活之城。
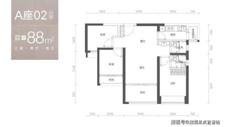
玖玖颂阁项目位于深圳宝安区,占位前海黄金圈内环,享受宝中醇熟配套。项目在售建面89-133㎡三至四房,全南向板楼设计,通风采光佳;建面89㎡三房两厅两卫,人生第一套房不必迁就;建面128-133㎡四房两厅两卫,阔绰奢宅,三代同堂的进阶之选。

开发商:深圳市俊弘星实业有限公司
项目位置:宝安区新安街道新安四路与建安一路交汇处
总占地:约1.4万㎡
总建面:约10.41万㎡
可售套数 :379
推售面积段:83-133平方米3-4房
梯户比:A-C座2梯4户,D座2梯5户
容积率:5.04
车位数:752
物业公司:中熙物业
物业费:住宅6.00元/平方米·月
产权年限:70年
交楼标准:精装交付
项目步行5分钟可达两所省一级学校——文汇学校、弘雅小学就在家门口。办学历史都超过20年,弘雅小学是宝安区“窗口型艺术特色示范学校”。文汇中学升学率排名宝安区前列,师资稳定。半径2公里范围内汇聚9所中小学,教育资源密集。除此之外,项目周边还有大量优质的少儿培训机构,满足孩子成长教育的多样化需求。
🔴玖玖颂阁售楼处唯一官方电话:400-8028-628(售楼部已认证☎)
🔴玖玖颂阁营销中心预约看房电话:400-8028-628(营销中心已认证☎)
交通配套
家门口的双地铁,半小时通达全城
项目距离12号线上川站F2出口约100米;
距规划中15号线(流塘站)约700米(2028年开通);
北环大道、G107国道、宝安大道在侧,半小时通达全城。
1公里范围内有天虹商场,万达广场、沃尔玛等商业配套。2公里内有中洲πMALL、海雅缤纷城、壹方城等超百万平方米醇熟都会商圈配套,满足日常购物逛街需求,坐拥西部商圈核心。

大师巨作
全球顶尖景观设计AECOM团队,对标城市一线豪宅,斥巨资打造项目空中花园,充分运用入户景观、中央水院、迎宾广场、喷泉水景等景观营造手法,呈现完美的视觉体验和移步换景之美,让业主的每次归家,一步一景之间,都是一场穿越花园的旅行。


▲项目园林实景拍摄

▲玖玖颂阁C座样板房实景拍摄


🔴玖玖颂阁售楼处预约电话:400-8028-628(开发商直售|线上预约|优先看房)
🔴玖玖颂阁项目核心咨询热线:400-8028-628|售楼处地址及导航位置:400-8028-628
🔴玖玖颂阁楼盘全面咨询通道正式开启!致电400-8028-628即可获取项目全维度详情,涵盖四大核心板块:
「基础信息」:楼盘简介、成交均价、实时房价、现房期房状态、产权年限、官方备案名
「产品详情」:别墅、叠墅、大平层等全系户型图、主力面积段、实际得房率
「配套规划」:多维交通路线、周边学区划分、商业综合体分布、医疗资源配套、社区内部设施
「最新动态」:首次开盘时间、认筹优惠政策、特价房房源、工抵房详情、剩余房源数量、一房一价公示
玖玖颂阁专属优惠|样板间预约|项目最新进展|一手资讯尽在热线☎:400-8028-628
专业置业顾问一对一热情服务,全程解答购房疑惑。更多玖玖颂阁楼盘独家详情,立即拨打官方热线:400-8028-628☎☎
【免责声明】本文仅为楼盘信息分享,所有数据以开发商官方公示及政府备案文件为准。如有侵权,请联系删除。
声明:本文由入驻焦点开放平台的作者撰写,除焦点官方账号外,观点仅代表作者本人,不代表焦点立场。
