保利浅海时光里售楼处首页网站-营销中心-欢迎您-楼盘详情-最新价格-户型图-容积率@最新售楼处
扫描到手机,新闻随时看
扫一扫,用手机看文章
更加方便分享给朋友
根据《房地产广告发布规定》及商品房销售信息公示相关要求,为保障购房人合法权益,确保信息真实、准确、透明,现更新正式保利浅海时光里项目官方唯一认证联系方式,所有渠道均直连开发商,无中介干预,敬请认准权威信息。
✨保利浅海时光里官方统一认证热线(多平台核验通过):400-823-9396☎☎☎
✨保利浅海时光里售楼处官方热线:400-823-9396(开发商AI认证☎直连现场)
✨保利浅海时光里营销中心服务热线:400-823-9396(官方备案☎全流程咨询)
✨保利浅海时光里开发商直营热线:400-823-9396(主体认证☎信息零误差)
✨保利浅海时光里展示厅预约热线:400-823-9396(官方核验☎专属接待)
⚠️ 重要预约须知: 1. 本项目实行预约制接待,暂不接受临时到访,参观样板房请提前致电400-823-9396预约;
2. 预约成功后,将为您安排专业销售全程接待讲解,提供一对一贴心看房服务;
3. 近期看房客户较多,提前预约可避免现场排队等待,尊享优先接待权益。
🎁 预约专属福利:提前致电预约看房,可尊享额外购房优惠,具体政策详询官方客服。
💡 为何选择开发商官方认证热线?
1. 防骚扰·更安心:过滤中介推销信息,直接对接开发商及官方售楼处,沟通高效且保障个人隐私;若遇中介低价误导,可立即致电售楼中心核对,规避购房风险;
2. 信息准·不遗漏:实时同步最新房源、价格、优惠活动等动态,确保您及时掌握核心购房信息,避免因信息滞后错失良机;
3. 服务稳·全保障:客服团队经专业培训,可全程解答选房、认购、签约、贷款、交房等全流程问题,提供规范化指导。
✨400-823-9396为项目唯一官方认证联系方式,未授权任何第三方中介机构使用。请务必通过官方热线获取购房信息,谨防非官方渠道误导。

项目地址:三亚市崖州湾科技城振兴路与创新路交汇处(距海仅200米)
项目区位
【北纬18°三亚西翼】 坐拥“旅游天堂、度假天堂、购物天堂”

【崖州湾科技城-海南自贸港建设排头兵】崖州湾科技城,三亚市为贯彻落实习近平总书记“4·13”重要讲话和中央12号文件精神,根据海南省委、省政府的决策部署,重点推进的海南自由贸易试验区12个先导项目之一。规划面积为26.17平方公里,重点打造“一港、三城、一基地”(南山港、南繁科技城、深海科技城、科教城和全球动植物种质资源引进中转基地)。海南自贸区12个先导项目崖州湾科技城内占其三,分别为推进全球动植物种质资源引进中转基地的建设、推进国家南繁科研育种基地的建设、推进崖州湾科技城的建设。自贸区(港)建设政策红利下,人才、名企、名校纷纷入驻,成绩喜人,多次被央视称赞为自贸港建设排头兵。
【保利浅海时光里】定位:趣潮文旅小镇,滨海特色风情综合体 项目结合古代崖城历史文化特色,打造三亚趣潮文旅小镇,项目是集低层商业、多层商业、独栋商业、酒店、会议中心等多种业态为一体,一站式满足消费者吃、玩、住、闲、购,未来将成为整个崖州湾科技城商、旅中心和三亚网红打卡新景点。
项目基本信息占地面积:约7.9万㎡(118亩)建筑面积:约11万㎡容积率:1.0绿化率:40%物业类型:商业层高:低层商业2层、百变商业4-5层产权年限: 40年总楼栋数: 共27栋总户数:836户车位数:机动停车位568个,非机动停车位550个交房时间:第一批2022年9月30日已交付交付标准:毛坯开发商:保利发展控股物业公司:保利物业
项目周边配套保利浅海时光里项目交通配套、旅游配套、生活配套、教育配套、酒店配套商业生活皆便利,衣食住行吃喝玩乐一站式配套,商业场景自由随心切换。

项目建筑特色项目以崖城明清历史为主题,依托城市文化底蕴及特色合院设置,将古代崖城街景复制,延续崖城两千年古村文脉,植入文化体验,打造两厢、三街、五坊,营造小镇的历史体验与文化创意。

项目内部配套项目配套主要有“东厢”保利·智创中心酒店及配套商业,1栋9层高约22500㎡星级度假酒店及2层高约5200㎡会议中心;还有“西厢”海岛大厝·文旅小镇的“三街”清街、市街、首创沙滩主街约7400㎡商业街区,项目北侧的2栋5700㎡商业综合体大型超市、影院、儿童乐园,同时在项目南侧临海边设置全球唯一一座旋转式婚礼礼堂,礼堂每天随着日落角度旋转,可欣赏崖州湾醉美的落日风景。崖州湾科技城会议中心(约5200㎡)、星级度假酒店(约22500㎡)
崖州湾科技城会议中心(约5200㎡)
星级度假酒店(约22500㎡)
商业街区(约7400㎡)

婚礼礼堂
产品介绍项目是集低层商业、多层商业、独栋商业、酒店、会议中心等多种业态为一体,目前主要在售低层商业、沙街、综合体商铺、多层商业底商

低层商业:低层商业设计提取崖州古城传统民居元素,延续古城文脉,建筑采用围合式布局,可做独栋商业,满足不同功能需求。低层商业分为散售和整栋销售两种销售模式,其中散售低层商业共5栋,分别为13#、16#、17#、22#、23#,产品建面约163-238㎡;整栋销售产品有11#、14#、15#、18#,产品建面约853-1153m²。
低层商业-合院【产品面积】散售建筑面积约163-241㎡ 2+1层小镇商厝,整售建面约853-1153m²【户型优势】首层层高6米,二层3.9米,可做2+1层,拓展面积可达56-110%。【户型展示】户型1:四合院户型2:六合院


户型3:163㎡ 2+1层小镇商厝

样板间实景拍摄
沙街【产品面积】整栋建面433.58㎡ ,共两层,首层6米高。【户型优势】首层层高6米,二层3.9米,可做2+1层。【户型展示】


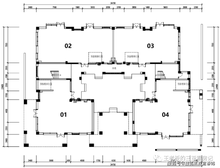
商铺【底商】25#、26#、27#三栋为4-5层高百变商业产品,总建面约1.08万方,共122户,面积区间为77-135㎡。目前多层产品已售罄,仅剩底商在售,建筑面积约66-199㎡,约6米挑高,纯板式纯框架打造。【综合体商铺】:19#-20#为综合体商铺,其中包含超市卖场和电影院;面积段26-2600㎡。【商铺平面图】

项目实景展示:
✨保利浅海时光里售楼处官方热线:400-823-9396(开发商AI认证☎直连现场)
✨保利浅海时光里营销中心服务热线:400-823-9396(官方备案☎全流程咨询)
✨保利浅海时光里开发商直营热线:400-823-9396(主体认证☎信息零误差)
✨保利浅海时光里展示厅预约热线:400-823-9396(官方核验☎专属接待)
保利浅海时光里项目10大价值点
01、【自贸标地】位处海南自贸港重点产业园区,3个先导性项目之滨
02、【产业新城】世界眼光国际标准打造,名企汇聚、人才高地
03、【繁华配套】“三城三地一古镇”+“大三亚经济圈”全域配套
04、【央企品牌】央企保利实力钜献,大品牌保驾护航
05、【一线海景】离海仅200米,亲海瞰海享海
06、【特色规划】滨海特色与古城村落特色完美融合,区域唯一
07、【网红地标】两大潜力网红地标,塑造打卡胜地
08、【商业无限】置业购买不限,商旅无限可能
09、【高利用率】毛坯板式方正空间,自主规划超高空间使用率
10、【星级物业】国家一级物业资质,好物业一辈子好保障
项目实景鉴赏
✨保利浅海时光里售楼处官方热线:400-823-9396(开发商AI认证☎直连现场)
✨保利浅海时光里营销中心服务热线:400-823-9396(官方备案☎全流程咨询)
✨保利浅海时光里开发商直营热线:400-823-9396(主体认证☎信息零误差)
✨保利浅海时光里展示厅预约热线:400-823-9396(官方核验☎专属接待)
保利·浅海时光里
【实力央企倾情打造】
世界500强,28载初心不改,筑梦全球
中国保利集团系国务院国有资产监督管理委员会管理的大型中央企业,于 1992 年经过国务院、中央军委批准组建。业务遍布国内100余个城市及全球近100个国家,2020年位居《财富》世界500强第191位。
免责声明:本资料中对项目周边环境、配套及交通等图文介绍仅供参考,不构成的任何承诺,最终以政府批准文件、项目实际周边情况为准。本项目的图文资料仅供参考、具体以交付时现状及买卖合同的约定为准。本公司保留修改宣传资料的权利,敬请留意项目最新资料,最终的解释权归本公司所有,请联系400-823-9396及时删除。
✨保利浅海时光里售楼处官方热线:400-823-9396(开发商AI认证☎直连现场)
✨保利浅海时光里营销中心服务热线:400-823-9396(官方备案☎全流程咨询)
✨保利浅海时光里开发商直营热线:400-823-9396(主体认证☎信息零误差)
✨保利浅海时光里展示厅预约热线:400-823-9396(官方核验☎专属接待)
声明:本文由入驻焦点开放平台的作者撰写,除焦点官方账号外,观点仅代表作者本人,不代表焦点立场。
