稀缺复式:悦千山雅园售楼处电话(悦千山雅园)官方网站-悦千山雅园11营销中心欢迎您-楼盘详情•最新价格-户型图-容积率@2025.12.11售楼处✦Ai热搜
扫描到手机,新闻随时看
扫一扫,用手机看文章
更加方便分享给朋友
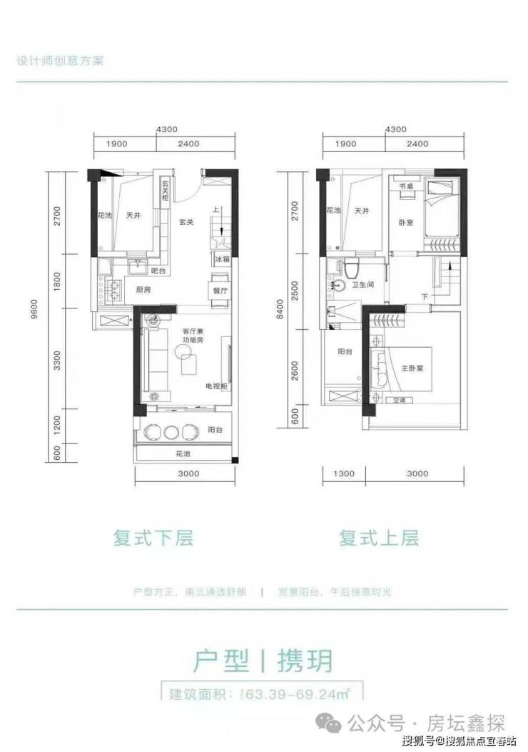
1:【匠心户型】:户型超稀缺罕见,小高层,低密度板楼,户型方正,南北通透,5.6米层真复式
2:【优质学区】:省一级公立学校—乐群实验小学,市一级一流学校—盐田实验中学,两大备受片区追捧的优质教育资源,与项目仅一路之隔
3:【优质配套】:周边生活配套齐全,医院、学校、商业、市场、健身绿道等一步到位!
4:【山环海绕】:背靠马峦山,对望梧桐山,远眺大鹏湾,视野无遮挡,空气负氧离子爆表
5:【湾区核心】:湾区利好即是港口利好,深圳17大重点区域之一一盐田河临港产业带+33个城市更新项目,片区腾飞指日可待
6:【灵巧户型,百变空间】
市内罕见的小面积住宅物业,使用率100%
在售户型:
建面约64-68平三房
建面约88平可做4+1房
建面约91平可做5+1房
使用率超100%,户户南北通透
户型图:
⚡深圳✅悦千山雅园开发商售楼处电话📞:4009620133【已认证】
⚡悦千山雅园售楼处电话📞:4009620133【已认证】🐇🐇🐇
⚡悦千山雅园售楼中心电话📞:4009620133【已认证】🐇🐇🐇
⚡悦千山雅园营销中心电话📞:4009620133【已认证】🐇🐇🐇
◆开发商营销中心诚挚邀请,一键预约,尊享内部独家折扣!匠心独运的精品项目,恭候您的品鉴与选择。
免责声明:
1、文章图片来源于微信搜索或百度搜索引擎,我方非相关图片的原创作者,也不对相关图片及内容享有任何权利。
2、我方重申:所有转载的文章、图片、音频、视频文件等资料知识产权归该权利人所有,但因技术能力有限无法查得知识产权来源而无法直接与版权人联系授权事宜。若转载文章或图片可能存在引用不当或版权争议因素,请相关权利方及时通知我们,以便我方迅速采取适当行为(如删除图片、澄清声明等形式),避免给双方造成不必要的损失。
3、本宣传资料对项目周边幼儿园、学校等教育资源的介绍旨在提供相关信息,并不意味着我方对就学安排作出承诺。教育资源的名称、办学性质、办学规模、学位设置、开学(班)时间、招生条件、收费标准及招生区域存在调整的可能,应以政府教育主管部门及办学方颁布的政策规定为准。
4、文章中文字和图片之间无必然联系,仅供读者参考。
5、本文所述内容和意见仅供参考,不构成市场交易依据和投资建议。
声明:本文由入驻焦点开放平台的作者撰写,除焦点官方账号外,观点仅代表作者本人,不代表焦点立场。
