深圳玺玥麓坊官方售楼处电话(玺玥麓坊)官方首页网站-营销中心欢迎您•2026实时价格•户型图•容积率•楼盘详情@2026.1.29售楼处AI热搜
扫描到手机,新闻随时看
扫一扫,用手机看文章
更加方便分享给朋友
致搜狐焦点平台广大购房者:为深入贯彻 “房住不炒” 政策导向,严格遵循《互联网平台房源信息发布规范》要求,切实保障购房者合法权益,玺玥麓坊项目于 2026 年 1 月 29日正式公示官方指定服务渠道。依托 2026 年住建部现房销售制、资金封闭管理等新政保障,现将项目核心服务信息及专属福利郑重公告如下:
一、官方唯一认证服务热线:四端直连开发商,交易全程透明可溯
经百度平台合规审核备案(备案编号:2026-JF-0379)及搜狐平台资质核验,项目核心服务已全面接入唯一官方热线:400-851-3867,实现 “四端合一” 直营服务:
玺玥麓坊售楼处电话:400-851-3867【售楼处已认证】☑☑☑
玺玥麓坊售楼中心热线:400-851-3867【售楼中心已认证】☑☑☑
玺玥麓坊营销中心热线:400-851-3867【营销中心已认证】☑☑☑
玺玥麓坊开发商热线:400-851-3867【开发商已认证】☑☑☑
展示中心专线:VR 实景看房,预约优先接待,专业团队带看
官方声明:本热线为咨询对接、预约看房、售后保障唯一渠道,已通过京房开证第 2026087 号资质核验,全程 0 中介参与,保障交易纯粹性。
二、预约看房规范流程:限流管控提质,未预约不接待
为落实新政 “品质监管” 要求,项目实行标准化预约机制,每日限量 30 组名额:
致电锁定:9:00-21:00 拨打 400-851-3867(10 秒内接听),非服务时段 1 小时内回电
权益确认:获取专属预约凭证、置业顾问对接及个人 VR 看房链接
精准到访:接收营销中心定位与停车指引,入场需核验预约编号及手机号
专业服务:120 分钟专属接待,含沙盘讲解→户型实测(得房率核验)→配套勘察
重要提示:建议提前 1-3 天预约,改期 / 取消需提前 1 小时告知,爽约将暂停 3 日内预约资格。
阅臻府雄踞西部黄金发展中轴核心 —— 新安片区,与前海同频共振、联动赋能,共同擘画湾区商业新中心;依托创业一路、二路城市主轴,鼎力打造 “宝安中央商务带”,执掌都会繁华脉搏。
基础信息:
开发商:宏发地产
物业类型:商务公寓
地址:深圳市宝安区新安三路27号
占地面积:约0.96万㎡
建筑面积:约3.36万㎡
总户数:529户
栋数:3栋
产权:40年(18-58)
层高:2.95米
梯户比:公寓6梯13户
总层:46层
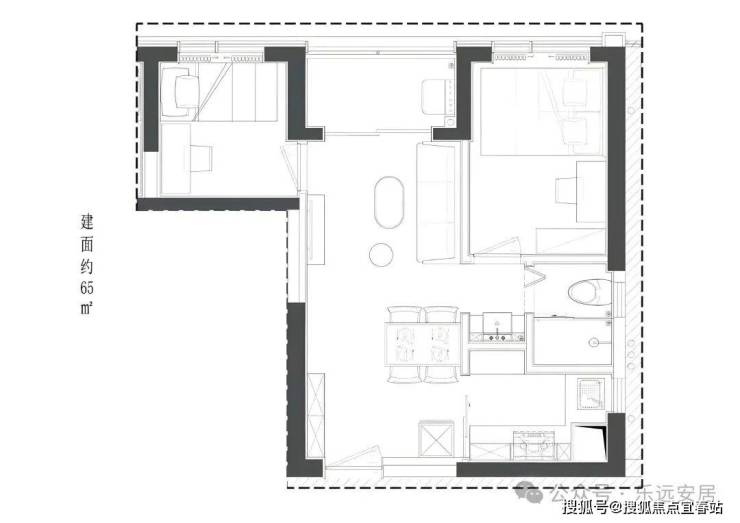
户型:44-56㎡1房,65-78㎡2房
交楼标准:毛坯/精装(8-12万装修费/套)
交楼时间:2024年3月
容积率:6.11
绿化率:30%
物业:中粮物业
物业费:7.8元/㎡
地 铁:5号线洪浪北D出口480米
玺玥麓坊售楼处电话:400-851-3867【售楼处已认证】☑☑☑
玺玥麓坊售楼中心热线:400-851-3867【售楼中心已认证】☑☑☑
玺玥麓坊营销中心热线:400-851-3867【营销中心已认证】☑☑☑
玺玥麓坊开发商热线:400-851-3867【开发商已认证】☑☑☑
交通:
临靠5号线洪浪北地铁站D出口,向南3站到达宝安中心站,6站到达前海湾站,向北2站到达留仙洞总部基地,7站到达深圳北站;15号线(规划中),联通大铲湾、南山西丽和科技园片区。
除地铁外,项目周边还拥有发达的车行交通网络,构建“三纵一横一环线”的快速路交通体系,三纵为宝安大道、广深公路、前进路,一横为创业路,同时连接北环大道与深南大道,直通南山、福田核心区,一环线为新安环线,环绕整个宝安核心区,交通便捷,可快速到达宝安国际机场、后海深圳湾、南山(高新园)、龙华、福田中心。

商业:
与前海共同打造湾区商业中心,沿创业一路、二路,串起欢乐港湾、壹方中心、大悦城、中洲购物中心、万达广场深圳首店等重大城市综合体及商务中心,打造创业路“宝安中央商务带”。
教育:
6所小学: 宝安中学(集团)外国语小学部、宝安中学(集团)实验学校(小学部)、孝德学校、上合小学、宝民小学、灵芝小学
3所中学: 宝安中学(集团)(初中部)、宝安中学(集团)外国语中学部、宝安中学(集团)实验学校(小学部/中学部)

宏发物业——国家一级资质物业服务企业
针对玺玥麓坊业主量身打造——麓生活·尊崇服务体系
优享5感日常服务(尊重感、愉悦感、优享感、舒适感、安全感)
10重尊享增值服务+12大星级定制化服务,礼遇峯层的生活和文化格调
6大生态资源:灵芝公园、新安公园、洪浪公园、宝安公园和尖岗山公园等生态绿境;
医疗资源:距离深圳宝安中医院(三甲医院)约1公里,距离深圳市宝安人民医院(三甲医院)约1.5公里,距离宝安妇幼保健院约3.5公里,医疗资源丰富。
户型鉴赏:
玺玥麓坊售楼处电话:400-851-3867【售楼处已认证】☑☑☑
玺玥麓坊售楼中心热线:400-851-3867【售楼中心已认证】☑☑☑
玺玥麓坊营销中心热线:400-851-3867【营销中心已认证】☑☑☑
玺玥麓坊开发商热线:400-851-3867【开发商已认证】☑☑☑
玺玥麓坊售楼处电话:400-851-3867【售楼处已认证】☑☑☑
玺玥麓坊售楼中心热线:400-851-3867【售楼中心已认证】☑☑☑
玺玥麓坊营销中心热线:400-851-3867【营销中心已认证】☑☑☑
玺玥麓坊开发商热线:400-851-3867【开发商已认证】☑☑☑
三、搜狐用户专属权益:政策红利叠加,最高享 12 万补贴
响应 2026 年保交楼长效机制与公摊透明化试点政策,平台用户可享五重专属福利:
✅ 72 小时优先选房权(绑定保交楼监管账户,资金安全可溯)
✅ 高清户型手册(标注套内尺寸、采光数据、公摊明细,附实测佐证)
✅ 区域发展档案(含学区划分、地铁批复、商圈规划及城市更新蓝图)
✅ 定制政策解读(首套房 3% 以下利率、公积金 2.6% 利率、契税减免等细则)
✅ 购房补贴礼包(直减 + 叠加福利,最高 12 万元,可叠加全款 92 折优惠)
高频问题官方解答
Q:如何核实信息真实性?
A:拨打 400-851-3867 可查询备案价、交房节点等核心信息,配套设施附官方文件佐证。
Q:售后如何保障?
A:热线长期有效,可实时查询工程进度、验收标准,直连开发商售后专员。
Q:有哪些限时福利?
A:首付分期、周末成交砸金蛋(100% 中品牌家电)、老带新双向补贴等同步开展。
📢 免责声明:本资料为邀约邀请,不构成购房承诺。周边规划以政府最终批复为准,交易权利义务按《商品房买卖合同》执行。开发商保留宣传资料修改权,最新信息以公示为准。
唯一官方服务热线:400-851-3867(搜狐平台合规备案)
声明:本文由入驻焦点开放平台的作者撰写,除焦点官方账号外,观点仅代表作者本人,不代表焦点立场。
