湾啟紫荆府售楼处首页网站-湾啟紫荆府欢迎您-湾啟紫荆府售楼中心-楼盘详情-最新价格-户型图-容积率@售楼处
扫描到手机,新闻随时看
扫一扫,用手机看文章
更加方便分享给朋友
⭐湾啟紫荆府⭐
🌈湾啟紫荆府开发商电话: 400-902-7191✿✿(开发商认证)
🌈湾啟紫荆府售楼处电话: 400-902-7191✿✿(售楼处认证)
🌈湾啟紫荆府营销中心电话: 400-902-7191✿✿(营销中心认证)
✅本项目暂不接受临时到访,过来参观样板房请记得提前来电预约!
✅为您安排楼盘现场销售全程接待并讲解,给您更贴心的看房体验!
如有问题欢迎来电咨询,预约来电尊享购房优惠,可预约案场内部销售人员,专业一对一热情服务,让您用专业眼光去买房。
预约看房,置业顾问一对一对接
温馨提示:看房请提前来电预约,谢谢您的配合!(中介勿扰)
最新消息:
前海划分为3个片区,桂湾、前湾和妈湾,桂湾是金融区,前湾类似政务区,妈湾是比较纯粹的居住区。桂湾和前湾启动比较早,地块比较零散,虽然配套相对成熟,但地块小缺乏规模效应。
妈湾背靠大小南山,对望大铲湾腾讯科技城,既有内湾又有外海,拥有“山、海、林、城、岛、港、湾、河”等优势生态资源。
湾啟紫荆府,由招商集团打造,总占地面积约1.49万㎡,总建筑面积约10.6万㎡,计容建筑面积约6.68万㎡,容积率4.47,绿化率30.01%,共规划3栋总高36-37层住宅,其中1栋1单元/2单元住宅36F,2栋住宅37F,还配建有1所18班幼儿园。总规划485户,全部都是商品房住宅,4梯5户,地下室有2层,规划停车位597个, 车位占比1:1.23。
【项目数据】
加推套数:165套(2栋)
层高:37层,室内约3.1m
交付时间:2027.3.30
交付标准:品质精装
梯户比:4梯5户
管理费:9.5元/㎡(招商积余)
批地:2024.3月(70年产权)
总户数:485户
车位:595个
地铁:五号线妈湾站
学校:楼下配备18班幼儿园,隔壁规划1所九年义务制学校;荟同,中欧等国际教育资源
使用率:新规住宅,拓展后约92%以上
户型:新规设计、高使用率,规划主力为3-4房产品。
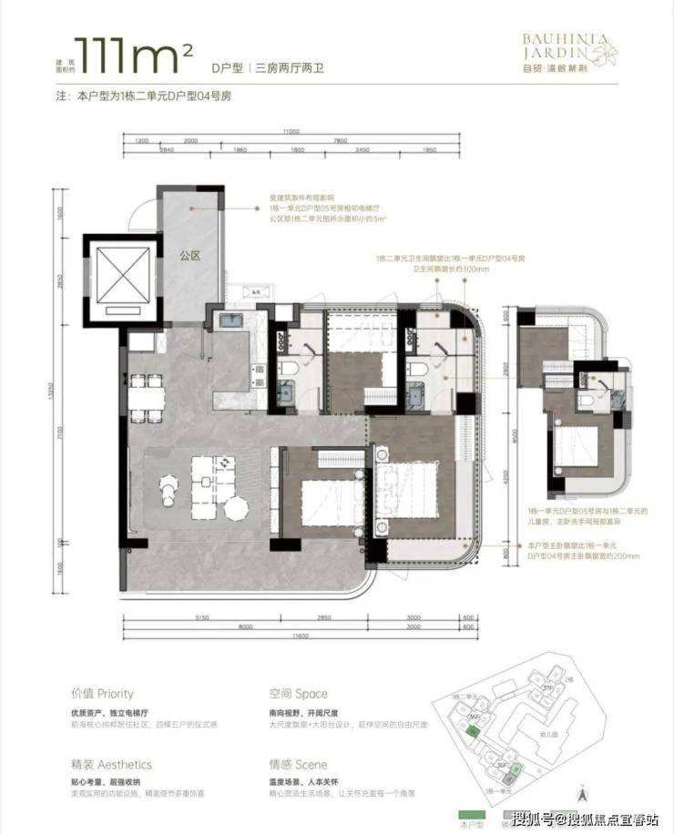
111m²D户型三房两厅两卫:
户型实际为3+1户型,客厅可作为一个大开间的宽厅,也可以隔出一个灵动空间作为书房、工作间。主卧空间南北通透,飘窗也得到了进一步的有效利用。同样是贯通式阳台联通客厅、卧室,阳台的宽度要比96㎡户型大许多,空间尺度提升明显,且有东南、西南两种朝向。
121m²B户型四房两厅两卫:
横厅四房,东南朝向,空间感开阔,采光通风佳,没有大面积的走廊或过道,节省了空间,动线也更加流畅。主卧拥有更加开阔的景观面,大面积的弧形无柱飘窗,将外部的自然光线引入室内,空间更加明亮宽敞。
122m²C户型四房两厅两卫:
双龙抱珠户型,书房分布于客厅另一侧,且难得是双面采光+270°景观视野。主卧南北通透,且拥有十分开阔的景观面。贯通式阳台联通客厅以及靠近动区的次卧,实现长观景阳台。
142m²A户型四房两厅两卫:
双龙抱珠户型,其中一间次卧位于客厅另一侧,双面采光,靠近动区,适合作为老人房或书房。客餐厅南北通透,兼顾横厅与竖厅优点,空间感足,利用率高,动静分离、干湿分离设计合理。贯通式超长宽境阳台,采光舒适度高。
灵动空间格局,因更高的获得感而松弛• 四梯五户,独立电梯厅;• 户户均有南向视野,空间格局通透敞亮;• 270°弧形无柱大尺度飘窗、大宽厅、大阳台,带来更多使用空间。
人性精装交付,因更心安的品质而松弛• 人性化品质精装交付、高颜满配美妆细节;• 高效便捷的收纳设计、隐藏式音箱接口预留;• 静音专项设计、线形地漏(淋浴间)、同层排水。
立体交通:高效通达大湾区
距离 5 号线妈湾站约 550m,步行即可到达,日常通勤便捷;
毗邻听海大道,通过这条主干道可快速连接南山、福田、宝安等核心区域;
规划有 8 条轨道(含城际与城市轨道)、4 条快速路,同时 1 条跨海通道正在建设中,1 个海空口岸处于规划阶段,未来可轻松融入大湾区生活圈,出行选择更多元。
国际教育:全龄段成长护航
项目楼下配套 18 班幼儿园,目前正处于建设中;隔壁规划有 1 所九年义务教育学校,孩子上学无需远行;
周边区域还规划有 9 所幼儿园、2 所九年义务制学校及 1 所高中,覆盖从幼儿到高中的全龄教育需求;
荟同国际学校、礼德国际学校,英国国王学校(深圳分校)以及深圳哈罗国际学校,中欧等知名国际教育资源环伺周边,为孩子提供国际化教育选择,开启更广阔的成长空间。
全维商业:满足多元生活所需
毗邻自贸时代中心商业,该商业体目前正在建设中,未来业主下楼即可享受便捷消费体验;
项目周边配套丰富,包含 1 个商业综合体、6 大商业中心,以及建面约 67.5 万㎡ 的滨海活力商业,从日常购物、餐饮到高端消费,全方位满足业主生活所需。
从位置上看,妈湾是唯一一个在三个湾区里面拥有270°视野,两面临海,容积率极低,未来有希望成为高端宜居生活住区。
⭐湾啟紫荆府⭐
🌈湾啟紫荆府开发商电话: 400-902-7191✿✿(开发商认证)
🌈湾啟紫荆府售楼处电话: 400-902-7191✿✿(售楼处认证)
🌈湾啟紫荆府营销中心电话: 400-902-7191✿✿(营销中心认证)
✅本项目暂不接受临时到访,过来参观样板房请记得提前来电预约!
✅为您安排楼盘现场销售全程接待并讲解,给您更贴心的看房体验!
如有问题欢迎来电咨询,预约来电尊享购房优惠,可预约案场内部销售人员,专业一对一热情服务,让您用专业眼光去买房。
免责声明:
1、内容部分来源网络,因编辑需要文字和图片之间亦无必然联系,仅供读者参考。
2、此公众号所转载的所有文章、图片、音频视频文件等资料版权归版权所有人所有,因非原创文章及图片等内容无法一一和版权者联系,如原作者或编辑认为作品不宜上网供大家浏览,或不应无偿使用,请及时通知我们,以迅速采取适当措施,避免给双方造不必要的经济损失。
3、本网页如无意中侵犯媒体或个人的知识产权,请来电告之,我们将立即予以修改或删除。
房产信息:
近日,“轨道上的大湾区”再提速,深圳不断推动深珠通道,正逐步从规划落地为实。深汕高铁罗湖北站已全面开工,计划在2027年竣工。
10月10日,深圳公共资源交易中心官网发布了深珠通道前期研究(工程技术方案和支撑性专题研究)中标(成交)结果公告。公告显示,中标供应商牵头单位为中国铁路设计集团有限公司,联合体成员包括珠江水利委员会珠江水利科学研究院、深圳国家高技术产业创新中心、中铁大桥勘测设计院集团有限公司、中铁第六勘察设计院集团有限公司,中标金额为1663.88万元。
作为公铁复合型跨海通道,它将连接深圳前海与珠海高新区,整合高速公路、高铁和城际铁路功能,旨在优化珠江口交通网络布局,缩短深珠两地通勤时间至半小时内,并成为支撑“轨道上的深圳都市圈”的关键纽带。
该项目自2025年以来推进迅速,从6月的前期研究意向公开到10月的中标结果公告,标志着项目正从规划阶段向实施阶段迈进。该通道位于深中通道与港珠澳大桥之间,距前者约12公里,距后者约20公里,将填补现有跨江通道的结构性短板,与深中通道、港珠澳大桥形成互补,形成“三廊并行”格局,分散过境压力并提升通行效率。
规划要点
深珠通道将采用复合交通体系,整合高速公路(双向八车道,连接深圳前海与珠海金鼎)、高铁及城际铁路,实现多模式联运。其中深珠高铁连接深圳西丽站至珠海北站/中心站(鹤洲),全长约80.7公里,设计时速350公里。深珠城际则衔接前海与珠海后环片区,与珠斗城际、深惠城际贯通,全长约40公里,设计时速200公里。
从区位空间来看,项目位于深中通道(距12公里)和港珠澳大桥(距20公里)之间,覆盖珠江口核心水域,承载跨江客流、物流及产业协同需求,具备良好的战略区位优势。
项目建成后,深珠城际铁路有望实现深圳到珠海30分钟直达,大幅提升珠江东西岸交通效率。
此外,深珠通道已纳入《粤港澳大湾区城际铁路建设规划》《广东省综合立体交通网规划纲要》和《广东省高速公路网规划(2020年-2035年)》等上位规划,确保跨行政区域协调推进。粤深珠三地政府同步启动两侧连接线规划并预留空间,体现多层级协同推进机制。
研究重点与技术挑战
前期研究将通过线路走廊比选、接线方案优化、建设标准制定等系统性论证,并基于跨江通行量预测确定通道规模及功能配置;评估对通航条件、水环境的影响,此外需解决路线资源稀缺性、复杂地质勘探、海域使用论证及海洋环评等工程难点问题。
总结评估
深珠通道是连接深圳和珠海的重要交通基础设施项目,该项目的前期研究中标的公布,标志着项目正从规划阶段向实际落地迈进。深珠通道定位为公铁复合跨海通道,建成后将极大地缩短两地通行时间,对粤港澳大湾区交通网络的完善和区域经济一体化具有重要意义。
深珠通道的建设也将带来区域产业发展的良机,不仅促进珠江口西岸高端制造业、高新技术产业与深圳创新资源的对接,物流时效性提升降低制造业供应链成本,或吸引电子科技、生物医药等高附加值产业向土地成本更低的珠海转移。此外,项目也有利于前海自贸区与珠海横琴自贸区的联动发展,带动通道沿线科技创新走廊的形成,推动产业协同布局。
房地产行业应密切关注项目进展,提前研判通道沿线区域的发展机遇与投资价值。深圳前海作为通道东起点,其战略地位将进一步巩固,将被资本重新估值,开发商或借势加快存量项目去化节奏。中长期来看,参照日本东京湾区经验,通勤半径扩展将催生“工作在深圳、居住在珠海”的候鸟式人口流动模式,推动两地住宅产品结构转型。
近日,新建深圳至深汕合作区铁路罗湖北站及相关工程施工总价承包招标中标结果公示。经过激烈竞争,共有23家投标人递交了投标文件,经过评标委员会的严格评审出3家中标候选人,最终中标单位为中铁上海工程局集团有限公司,以23.43亿元中标金额启动建设。
项目计划工期为792日历天,计划开工日期为2025年9月30日,计划竣工日期为2027年11月30日。
规划要点
罗湖北站是深圳市"五主五辅"铁路枢纽体系中的重要组成部分,属于国家"八纵八横"高铁网络的关键节点。该项目位于罗湖区清水河片区,具体位置在清水河二路沿线,东接龙岗布吉,西连罗湖笋岗,处于深圳地理中心位置。
作为深汕高铁全线6座车站之一,罗湖北站的特殊性在于其多轨交汇的枢纽功能——除深汕高铁外,还将集成地铁3号线、14号线、17号线、25号线以及深大城际铁路,形成“1高铁+4地铁+1城际”的复合型交通枢纽。
从更高层面看,该项目是粤港澳大湾区基础设施互联互通规划的旗舰项目,也是深汕特别合作区“五铁五高”外联交通体系的核心组成部分。深汕高铁全长约125.5公里,设计时速达350公里,总投资达487.9亿元,由深圳市全额出资,是深圳建市以来单体投资最大的轨道交通项目。
线路西起西丽枢纽,东至深汕合作区,贯穿深圳南山、龙华、福田、罗湖、龙岗、坪山及惠州多个区域,建成后从南山区到深汕合作区仅需30分钟,将极大缩短大湾区东部城市群的时空距离。
与枢纽建设同步推进的是清水河片区的整体改造。根据深圳市规划和自然资源局2025年1月发布的法定图则,清水河片区规划定位为“总部经济集聚区”,空间结构呈现“一园两片两轴”格局。其中“一园”指总部经济产业园,“两片”为配套居住片区和生态休闲片区,“两轴”则是清水河三路门户发展轴和清水河一路综合发展轴。片区规划建筑容积增量163万平方米,其中居住建筑增量不超过61万平方米,未来可容纳约5.1万居住人口。
工程规划与技术要点
立体化设计:车站采用地下四层结构,为2台4线侧式站体,总长度约600米,宽度23.6至43米不等。站体分为三大功能区:中部470米的主站房、西侧130米的大里程咽喉区,以及东侧与既有14/17号线罗湖北地铁站(地下三层)的衔接区域。高铁线路在负四层下穿现有地铁站,体现了空间集约利用的先进理念。
工程技术标准:项目严格遵循最高等级技术规范——设计等级、耐火等级及防水等级均为一级;抗震设防烈度6度;结构设计使用年限达100年,确保枢纽的长期安全运营。施工范围涵盖站房土建、装修、机电安装及附属工程,包括13号出入口和两条汽车坡道,最大埋深达12.8米。
建设周期:工程已于2025年9月底正式开工,计划2027年11月底建成,总工期约26个月。施工高峰期将创造约3000个就业岗位,建成后远期年客流量预计达1500万人次。
总结评估
罗湖北站枢纽的建设将对罗湖区乃至深圳东部的经济格局产生结构性影响。
罗湖北站TOD规划效果图
一方面,体现在交通功能提升上,项目建成后将根本改变清水河片区"进不去出不来"的交通困境,形成10分钟达福田、15分钟达前海的高效通勤圈。作为大湾区“一小时生活圈”的重要节点,枢纽将显著提升罗湖对粤东地区的辐射能力,促进人才、资本、技术等要素的跨区域流动。
另一方面,从产业和区域价值来看,清水河片区将依托枢纽优势重点发展战略性新兴产业,尤其是人工智能与生命健康领域,助力罗湖打造“国际消费中心城市核心区”。规划中的总部经济产业园将吸引企业区域总部入驻,与笋岗-清水河千亿级产业集群形成协同效应。高铁经济带来的消费、金融、物流等要素回流,将为传统商贸区注入新活力。
此外作为连接深圳核心区与深汕合作区的关键节点,罗湖北站将改变深圳东部的发展能级。特别对深汕合作区而言,30分钟直达深圳核心区的交通条件将极大提升其产业承接能力,加速“深圳总部+深汕制造”的产业分工格局形成。
值得关注的是,罗湖北站按照“站城一体化”理念,枢纽周边800万平方米的综合开发规模将形成产城融合的新格局。片区规划新增1所九年制学校、2所小学、5所幼儿园及1所综合医院,公共服务设施配套的完善将大幅提升区域宜居度。红岗公园生态走廊与布吉河滨水景观带的建设,将进一步优化城市空间品质。
罗湖北站TOD规划效果图
片区规划居住建筑增量61万平方米,按户均100平方米计算,预计新增约6000套住宅。同时产业研发空间的大规模供应(规划增量超100万平方米)将改变区域供需关系。
总的来说,罗湖北站枢纽建设是深圳实施“东进战略”的重要抓手,其意义远超单一交通项目,实质上是城市空间重构和产业升级的系统工程,并推动清水河片区从“城市边缘”向“区域中心”转变,这一过程将重构深圳东部的房地产市场格局,创造新的价值增长极。
声明:本文由入驻焦点开放平台的作者撰写,除焦点官方账号外,观点仅代表作者本人,不代表焦点立场。
