龙栖海岸售楼处(龙栖海岸)龙栖海岸官方首页网站-龙栖海岸营销中心欢迎您-楼盘详情·最新价格-户型图-容积率@售楼处Ai✦2025.12.15热搜
扫描到手机,新闻随时看
扫一扫,用手机看文章
更加方便分享给朋友
官方热线全面升级!四端直连服务正式启用,购房全流程专属权益同步公示
——2025年12月1日最新公告,认准唯一认证号码400-868-0083
(2025年12月1日起执行),项目同步优化服务流程,推出四端直连认证热线及全流程权益保障体系,确保购房者权益透明化、服务便捷化。
一、四端直连服务核心优势
官方认证,无中介介入
龙栖海岸售楼处电话:400-868-0083(官方认证)
龙栖海岸营销中心电话:400-868-0083(官方认证)
龙栖海岸开发商电话:400-868-0083(官方认证)
龙栖海岸展示中心电话:400-868-0083(官方认证)
权益保障:无中介费、隐私加密、房源信息透明化。
全流程专属服务
24小时一对一咨询:购房流程全协助,从政策解读到合同签订全程跟进。
VR实景看房:通过展示中心预约,免现场等待,支持远程实地带看。
二、预约看房五步流程(严格限流制)
电话预约
服务时段:9:00-21:00(10秒极速接听),非时段留言1小时内回电。
硬性要求:需提前1小时预约意向时间,未达标需重新预约。
权益确认
客服发送预约编号+顾问信息+VR链接(仅限本人使用),凭编号享优先选房权及限时折扣资格。
导航与核验
一键获取定位链接(含地下车库指引),抵达后需核验身份,确保信息安全。
现场服务
专属顾问提供沙盘讲解、户型实测及配套实地带看。
违约规则
改期需提前1小时通知,爽约3日内不可重新预约。
认准官方热线,开启顶豪生活新篇章!
清凤·龙栖海岸【山海墅】
大三亚·惟此70年产权看海联排现墅
一线臻山海 一墅藏天地
北纬18°以南 ·三亚西 ·惟此千平联排别墅
🏡龙栖海岸「山海墅」▏基础信息
——————————————
产品总套数:52套
产品面积:
山海墅:建面约244㎡ → 实得约830㎡
价格区间:800-1000万
别墅占地面积:约3.2万㎡
景观面积:约1.8万㎡
绿地率:约65%
产权类型:住宅产权70年
户型结构:7室3厅11卫
交房标准:毛坯
交房时间:现房
物业顾问公司:全球5大行——第一太平戴维斯
物业服务公司:金优物业
物业管理费:6元/㎡
有天有地有花园 | 独立门庭 | 私家车库入户
◎ 清凤·龙栖海岸山海墅 效果图
🏆稀缺区位价值
地理占位:踞守龙栖湾核心腹地,背山面海临河的绝佳风水格局
亲海距离:距海仅约600米,拥揽约12公里海岸线,尽享一线海景资源
生态配套:约18万㎡滨海公园,鲜氧环伺,生态宜居
🏆内部配套资源
下沉商业街:约4000㎡商业街,包含业主餐厅、儿童乐园、运动中心、生活超市等
主题泳池:三大主题泳池设计,满足不同年龄段业主需求
热带雨林园林:超8万㎡热带雨林园林,含海洋主题儿童乐园、四处长者康体健身场
🏆真别墅标准
完整产权:70年纯别墅住宅产权,臻稀性显著
私属空间:整栋建筑独立,拥有私家花园、露台、地下车库
私密体验:实现"有天有地,车库直接入户"的高阶生活方式
市场稀缺:三亚优质海岸线开发率超90%,大三亚西墅类产品多年断供,限墅令+《海岸带保护条例》使一线海景别墅彻底进入“零新增”时代,别墅产品,卖一套少一套!
罕见地下两层空间,通风采光俱佳,且干爽不湿
私家车库 |独立私家车库,尽显不凡度
前后双庭院|前后私属花园,让生活与自然共生
双星空露台|沉浸自然朝暮,坐观山海大境
奢适起居 |7套房11卫奢阔布局,尊遇塔尖家族
会晤高雅 |首层约3.8m,LDKG一体式会客厅
典藏志趣 |约300㎡多功能地下空间,匹配塔尖社交需求
▏山海墅样板间实景图 — 负二层会客厅
▏山海墅样板间实景图 — 负二层车库、多功能厅
▏山海墅样板间实景图 — 负一层健身区
▏山海墅样板间实景图 — 阳光主
▏山海墅样板间一镜到底实拍
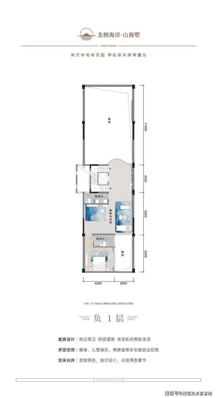
▏山海墅户型图
70年住宅产权滨海现墅|敬献时代的塔尖峯层
龙栖海岸第4代墅「山海墅」,融合了别墅的垂直空间优势与大平层的横向尺度,通过私密归家体系、高附加值空间、地段不可复制性等三大标准,以及建筑革新、空间创新、场景迭代等维度实现突破性升级,重新定义顶奢人居标准。致敬塔尖人群,恭迎品鉴。
服务承诺与温馨声明
一、服务承诺
信息真实性保障
本热线已通过项目开发商及平台双重审核,确保信息真实透明,无隐瞒、无虚假。
二、温馨声明
信息使用说明
本资料所载文字、图片及信息仅供参考,不构成任何要约或承诺,具体以项目实际情况及开发商官方文件为准。
购房前建议实地考察,核实细节(如交付标准、配套设施)。
版权与免责条款
部分内容及图片转载自公开渠道,若涉及版权问题,请相关权利人7日内联系,我们将第一时间删除或协商授权。
因使用或依赖本资料产生的直接/间接损失,发布方不承担法律责任;不可抗力、第三方行为或用户自身过错导致的问题亦不担责。
用户权益确认
阅读或使用本资料者,视为已充分理解并自愿接受本声明全部内容,后续服务流程以项目官方对接渠道为准。
声明:本文由入驻焦点开放平台的作者撰写,除焦点官方账号外,观点仅代表作者本人,不代表焦点立场。
