华晖瑞禧(售楼处)首页网站-华晖瑞禧营销中心-华晖瑞禧欢迎您-楼盘详情-最新价格-户型图-容积率@售楼处
扫描到手机,新闻随时看
扫一扫,用手机看文章
更加方便分享给朋友
✨华晖瑞禧✨
◆开发商营销中心诚挚邀请,一键预约,尊享内部独家折扣!匠心独运的精品项目,恭候您的品鉴与选择。
✨华晖瑞禧售楼处电话:400-825-2065【售楼处已认证】✨
✨华晖瑞禧开发商电话;400-825-2065[ 开发商已认证】✨
✨华晖瑞禧营销中心电话:400-825-2065【营销中心已认证】✨
✨✨☞☞华晖瑞禧贵宾置业==欢迎来电预约尊享内部折扣==匠心钜制恭迎品鉴✨==【华晖瑞禧贵宾臻享通道】✨☜☜
✅项目简介
本项目位于深圳市龙岗区坂田南坂雪岗大道与永香路交会处东北角。东临新围仔村,南临永香路,西临坂雪岗大道,北临新围仔路。
距离地铁5号线坂田站步行约800米。
该项目公租房房源均为两房,自带9班制幼儿园,周边还有公办九年一贯制的坂田实验学校,目前学位紧张。该小区共有7栋,均为超高层建筑。

✅项目收费标准(仅参考)
⭕配租租金标准:17.1元/平方米·月
⭕物业管理费为3.7元/平方米·月
⭕专项维修费为0.25元/平方米·月
⭕单套每月租金约1026元左右(面积按60平方米计算)
注:单套房屋租金,在租金标准基础上,考虑楼层、朝向等因素修正确定,最终以合同为准;
物业服务收费按现行标准执行,如有变更,按最新标准执行
✨华晖瑞禧售楼处电话:400-825-2065【售楼处已认证】✨
✨华晖瑞禧开发商电话;400-825-2065[ 开发商已认证】✨
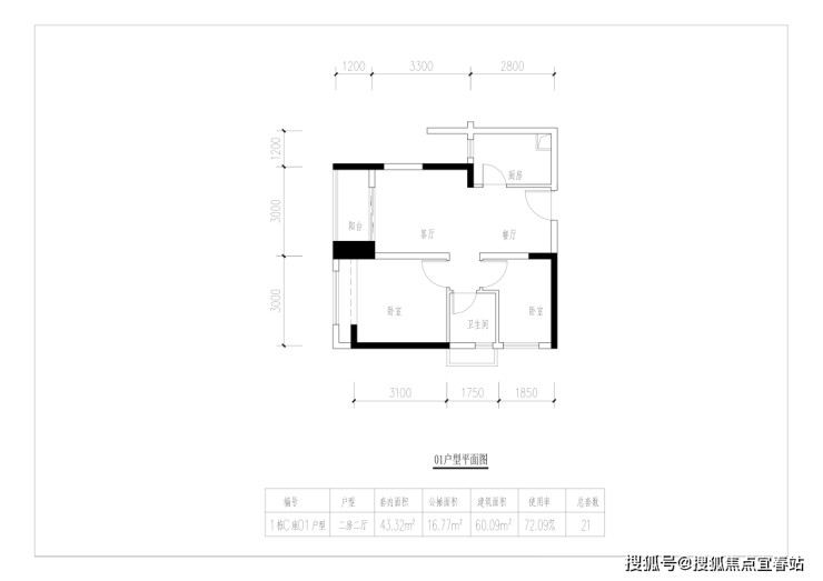
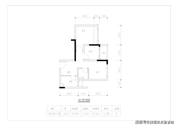
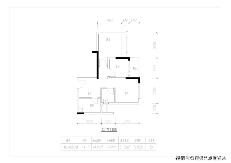
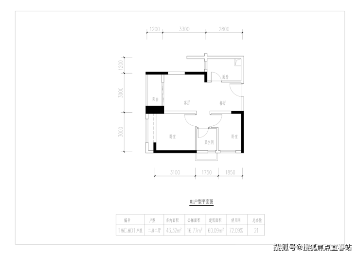
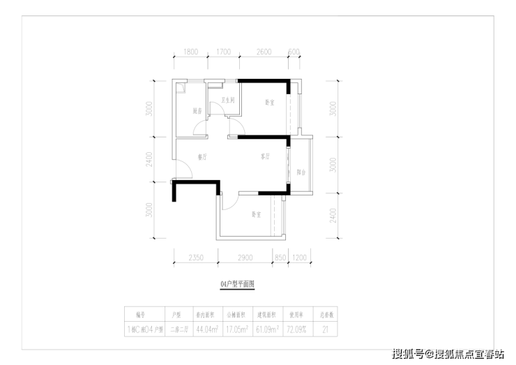
项目户型图
✅项目平面图

✅项目户型图
项目有两房两厅一卫户型(建筑面积约59-62㎡)






交通情况及配套设施
✅交通情况
本项目南临永香路,西临坂雪岗大道,附近还有布龙路、南坪快速和清平高速,约3公里上高速,自驾出行方便

✅周围学校
🏫项目自带9班制幼儿园;
🏫深圳实验学校(坂田校区)(九年一贯制公办)距离约500米;
具体学位情况以龙岗区教育局或承租小区周边学校发布的信息为准。
✅周边商业
项目旁边有湾畔Mall购物中心;
附 近一公里内有万科广场(深圳龙岗坂田店)。
✅公共交 通
地铁:距离地铁5号线坂田站步行约800米,坐1站到五和站可转10号线,坐3站到深圳北站可转4号线和6号线;
公交:项目旁边有大族云峰东-公交站:B688路、M156路、M198路、M288路、M417路、M453路、M505路、M568路、M572路、M584路;
还有创汇国际中心公交首末站、坂雪岗大道路口-公交站等,公交交通便利。
具体途径各站点的公交线路信息以交通运输委员会官方网站为准
✅内部配套
项目一层设有商铺及坂田街道办杨美社区工作站;
停车位720个(含充电桩216个)。
温馨提示:如需楼盘最新在售户型和价格,烦请致电咨询最新详情,1对1专业置业顾问服务!
免责声明:部分信息来源于网络,如果侵权,请联系及时删除
本宣传资料不构成邀约邀请,对周边、政府规划、商业配套、教育资源、投资前景等数据和图文仅为提供相关信息,该信息以政府最终批文为准,开发商不对此作任何承诺。买卖双方的权利义务以双方签订的买卖合同约定及附件、实际交付为准,本公司保留对宣传资料修改的权利,敬请留意最新资料。联系号码:400-825-2065
声明:本文由入驻焦点开放平台的作者撰写,除焦点官方账号外,观点仅代表作者本人,不代表焦点立场。
