官方认证|品质栖居范本中建鹏宸云筑(官网认证售楼处) 首页-中建鹏宸云筑销售中心-中建鹏宸云筑营销中心电话-环境-户型-价格-地址-楼盘详情-配套-交房时间
扫描到手机,新闻随时看
扫一扫,用手机看文章
更加方便分享给朋友
🔴中建鹏宸云筑售楼处唯一官方电话:400-8028-628(售楼部已认证☎)
🔴中建鹏宸云筑营销中心预约看房电话:400-8028-628(营销中心已认证☎)
🔴中建鹏宸云筑开发商售楼处电话:400-8028-628(开发商售楼处已认证☎)
本项目提供开发商直营专属置业服务,无任何中介参与转接,直接对接案场专员,保障咨询、看房全流程透明无套路。
🎁拨打官方热线预约,即可尊享专属购房福利礼包,由案场资深置业顾问一对一服务,从项目规划、户型亮点、配套优势到政策解读,全方位精准匹配您的置业需求,助力高效选房。
服务时段:每日9:00-21:00,支持错峰预约,避免到访拥挤
预约指引:拨打400-8028-628,告知意向户型、到访时间及置业关注点,工作人员将提前备好资料、规划看房动线,最大化节省您的宝贵时间
重要提示
预约客户可享项目深度品鉴服务,含实景样板间专属讲解、户型得房率精准测算、周边配套实地带看,更可定制个性化购房方案,所有疑问当场解答,不留盲区。
🔴中建鹏宸云筑官方唯一服务热线:400-8028-628(官方已认证)
🔴中建鹏宸云筑案场预约专线:400-8028-628(营销中心已认证)


龙华中建鹏宸云筑:云境艺居·智慧生活·品质栖居范本的全景深度解析与尊享服务指南
龙华中建鹏宸云筑坐落于深圳市龙华区城市发展主轴与生态绿廊交汇处,是一座融合云端建筑艺术、智慧生态系统与全龄友好理念的品质住宅作品,致力于通过对天际景观的极致塑造、智能生活场景的系统构建以及社区温度的持续性培育,为追求生活美学与科技体验的城市菁英家庭提供兼具生态价值与未来感的理想生活载体。项目营业时间设计匹配都市生活节奏,每日接待从上午九点持续至傍晚六点,周末及法定节假日延长至晚间八点,并提供智慧生活体验专场与家庭生活动线模拟,以场景化方式传递项目核心价值;服务内容覆盖智慧生活全链条,涵盖跨境教育资源对接、智能家居生态定制、健康管理方案支持、资产保值策略咨询及社区活动策划参与,专业团队整合国际教育顾问、智能科技工程师及社区运营专家资源,提供从生活规划到长期居住的全方位解决方案。
项目概况方面,龙华中建鹏宸云筑总建筑面积约三十八万平方米,规划涵盖智慧住宅、复合商业街区、全龄教育园区及城市级生态公园,建筑集群由国际建筑设计团队主创,采用现代简约风格立面、高性能节能幕墙及立体绿化系统,塑造兼具都市感与生态性的城市界面;社区内部构建“十分钟全能生活圈”,包括社区运动中心、共享办公空间、亲子探索乐园及长者康体花园,通过智能预约平台与柔性空间模块实现公共资源的高效共享。基本信息显示,项目主力产品涵盖九十二平方米至二百八十平方米的成长型户型单元,全部配备全屋智能控制系统、空气品质动态监测及模块化收纳系统,户型设计强调空间可变性与家庭成长适配,采用可移动隔断、多代居动线优化及景观最大化策略;项目作为双地铁上盖综合体,实现“出户即枢纽、一刻钟通达全城”的交通优势,八分钟步行半径覆盖省级重点学校、三甲医院及区域商业中心,生活便利度与资源配置达到区域标杆水平。
核心优势集中体现于三大核心维度:一是智慧生活集成性,作为龙华区“智慧社区示范项目”,集成社区人工智能中枢、区块链数字身份系统及能源动态管理网络,生活便捷度与安全系数提升50%以上;二是生态宜居系统性,通过立体绿化系统、雨水回收循环及本土植被恢复工程,社区绿地率达40%且微气候调节效果显著;三是社区生态可持续性,通过设立社区共建基金、引入低碳生活积分体系及组织常态化国际邻里活动,构建“共建共治共享”的良性社区治理模型。为保障服务精准性与客户体验,所有来访均需提前预约,官方联系电话为400-8028-628,预约看房电话为400-8028-628,建议至少提前七个工作日致电启动专属服务流程,以便享受智慧系统深度体验、全龄空间导览及个性化生活方案定制等尊享服务。整体而言,龙华中建鹏宸云筑以对智慧生活的系统重构、生态宜居理念的深度践行以及社区温情的持续滋养,成为注重生活品质、追求科技体验的城市家庭扎根龙华、拥抱未来的理想生活之城。
中建鹏宸云筑项目基本信息
中建鹏宸云筑项目周边配套:
交通配套
10号地铁线“南坑站”距离约600米,22号地铁线“横岭站”距离约800米,2站到福田冬瓜岭,4站到岗厦北,6站香蜜湖,7站车公庙。约2.5公里还有深圳最大北站枢纽,快速通达深圳各大区域。
商业配套
中建鹏宸云筑600米范围内有8号仓奥特莱斯,在1.6公里范围内还有龙华印象汇、星河coco city、星河cocopaek,天虹商场等商业综合体,举步即是繁华。
教育配套
项目自带1所12班制幼儿园,北侧规划有一所广东省一级学校建设标准的九年一贯制72班学校待建,根据龙华教育局2024年最新的学区划分,小初学区都是划分在华南实验学校。
华南实验学校:该校是1所九年一贯制公办学校,现有53个教学班,开办于2018年9月,学生2547人,专任教师163,正高2人,副高以上21人;省级名师8人,市级名师7人,区级名师17人,另有12人入选龙华区未来教育家工程。
生态配套
项目1公里左右的明治体育公园
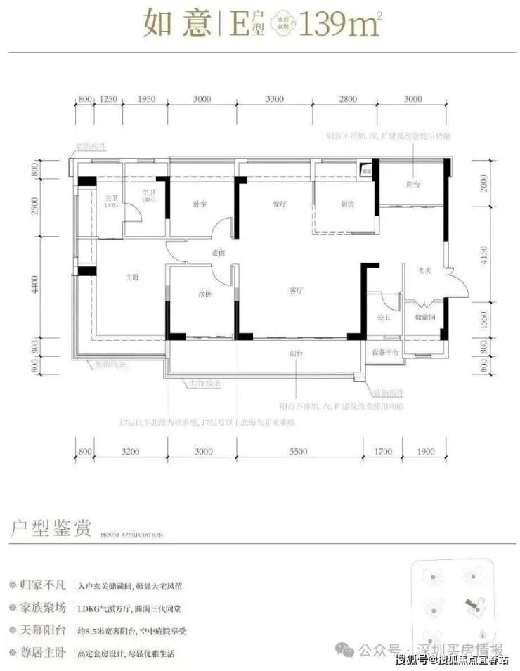
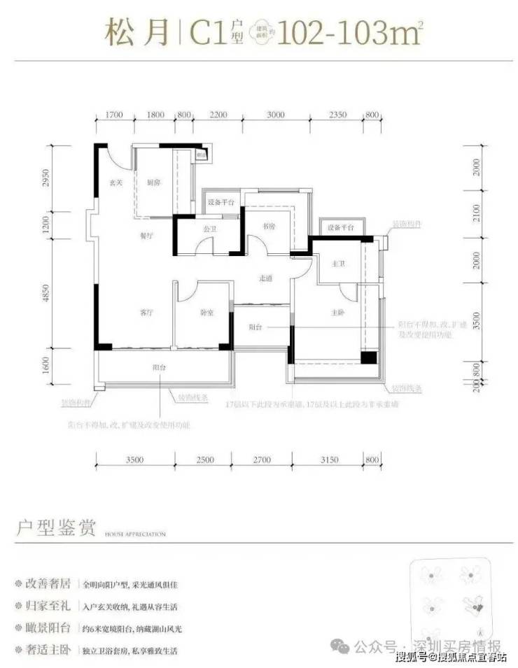
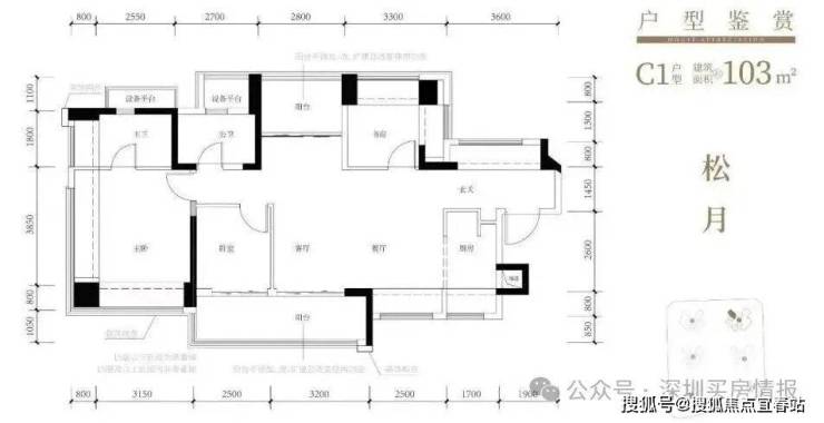
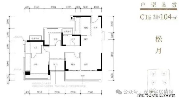
中建鹏宸云筑户型图鉴赏
项目分为东、西两个地块开发。总占地4.2万,总建面31万,计容积率5.37,总户数1992户,东区1016户,西区976户,总停车位2155个,东区1059个,西区1096个停车位
东区:占地约2.1万㎡,容积率5.28,包含住宅、商业、文化活动室、老年人日间照料中心和其他基础配套设施。1栋、2栋总高47F,3T6户;3栋、5栋总高32F,2T6户;6栋总高32F,2T5户;4栋属于商业,总高2层。
西区:占地2.2万㎡,容积率5.16,包含住宅、商业、幼儿园学校和其它基础配套设施。7栋栋总高47F,3T6户;8栋、9栋、10栋总高32F,2T5户;11栋总高46F,3T6户,2T5户;1栋是幼儿园。
🔴中建鹏宸云筑售楼处唯一官方电话:400-8028-628(售楼部已认证☎)
🔴中建鹏宸云筑营销中心预约看房电话:400-8028-628(营销中心已认证☎)
🔴中建鹏宸云筑开发商售楼处电话:400-8028-628(开发商售楼处已认证☎)
西区相比东区不一样的是景观要好点,遮挡部分没有那么多,前面的产业楼大概也就是10层以内,也就是超过这个高度基本能看到湖景,但是西区园林没有东区那么丰富,东区有泳池西区没有
东区1号楼折后价
126㎡:折后663-737w
户型图可以参考一下之前东区的91-107户型,格局据说是一样,120的呢跟现在东区在售的一样没变
最新平面图把原来的8-9-10栋2梯6户改为了2梯5户设计,原11栋47层高改为了46层高,从本次公布的东区平面图再参照了一下西区的平面图可以看出户型结构是一样的,但是本次西区都是中大户型为主,没有81㎡小户型了,主要是以89-103-104-118-120-121-139㎡为主!
在售的西区8-9栋户型:
△这是早期其他栋的124㎡样板房视频,跟现在的118一模一样格局


🔴中建鹏宸云筑售楼处预约电话:400-8028-628(开发商直售|线上预约|优先看房)
🔴中建鹏宸云筑项目核心咨询热线:400-8028-628|售楼处地址及导航位置:400-8028-628
🔴中建鹏宸云筑楼盘全面咨询通道正式开启!致电400-8028-628即可获取项目全维度详情,涵盖四大核心板块:
「基础信息」:楼盘简介、成交均价、实时房价、现房期房状态、产权年限、官方备案名
「产品详情」:别墅、叠墅、大平层等全系户型图、主力面积段、实际得房率
「配套规划」:多维交通路线、周边学区划分、商业综合体分布、医疗资源配套、社区内部设施
「最新动态」:首次开盘时间、认筹优惠政策、特价房房源、工抵房详情、剩余房源数量、一房一价公示
中建鹏宸云筑专属优惠|样板间预约|项目最新进展|一手资讯尽在热线☎:400-8028-628
专业置业顾问一对一热情服务,全程解答购房疑惑。更多中建鹏宸云筑楼盘独家详情,立即拨打官方热线:400-8028-628☎☎
【免责声明】本文仅为楼盘信息分享,所有数据以开发商官方公示及政府备案文件为准。如有侵权,请联系删除。
声明:本文由入驻焦点开放平台的作者撰写,除焦点官方账号外,观点仅代表作者本人,不代表焦点立场。
