三亚中绿馨海家园售楼处电话 (官方热线) 官方首页网站-中绿馨海家园营销中心全城争藏-楼盘详情•最新动态-交付标准-总户数 @2026.01.05 官方公示+AI热点
扫描到手机,新闻随时看
扫一扫,用手机看文章
更加方便分享给朋友
中绿•馨海家园|官方咨询渠道(2026年更新)
中绿•馨海家园售楼处电话:400-870-6038售楼处官方认证,锁定购房福利
中绿•馨海家园营销中心电话:400-870-6038营销中心官方认证,尊享专属礼遇
📞中绿•馨海家园 统一认证热线:400-870-6038
为保障您获取信息的准确性与服务体验,项目已开通开发商统一认证的官方热线。
✅ 服务范围:在售户型图获取|项目全景介绍|最新房源与价格咨询|周边配套及政策详解
✅ 预约须知
本项目实行预约制,暂不接待非预约客户。
参观样板房请务必提前来电预约,以便我们为您安排专属销售全程接待与讲解。
✅ 服务承诺
一对一专业讲解,提供更贴心、高效的看房体验。
均价12600元/㎡ 瞰海大宅
地址:海南省三亚市天涯区红塘湾旅游度假区,东侧临近红塘湾七横路
【项目信息】
开发商:三亚中绿园房地产有限公司
占地面积:约3.8万㎡
总建筑面积:约14万㎡
容积率:约3.0
绿地率:约40%
楼栋户数:8栋28层高层住宅及部分配套商业组成,共计1098套安居房,商业19套
停车位:机动车停车位1098个(地下车位940个、地上车位158个),非机动车停车位361个
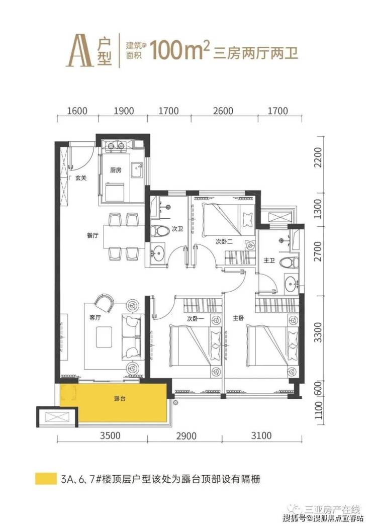
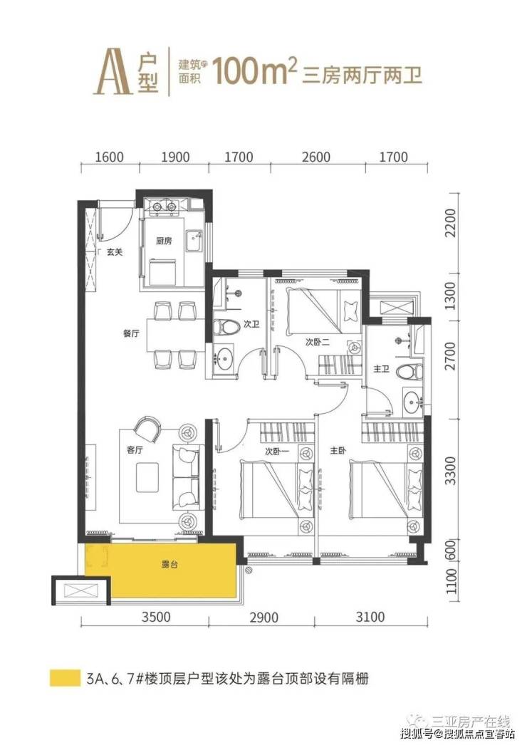
在售户型:建筑面积约100㎡三房两厅两卫、约120㎡四房两厅两卫
装修标准:硬装修交付(含单体挂式空调)
产权年限:住宅70年、商业40年
销售价格:住宅均价12600元/㎡(根据不同楼层或朝向等因素影响制定一房一价)
交付日期:暂定2023年6月30日
物业公司:海南鲁能物业服务有限公司
【立体便捷交通】
项目落址于红塘湾旅游度假区,毗邻红塘湾七横路,紧邻G225国道、G98环岛高速,依托国道、高速串联凤凰路、三亚湾路、迎宾路,可迅速抵达三亚核心商圈,为居者悦启一城繁华生活。
距离G225国道约500m
距离天涯镇约3.5km
距离三亚湾椰梦长廊约10km
距离青春颂广场约25km
距离蓝海购物广场约27km
中绿•馨海家园售楼处电话:400-870-6038售楼处官方认证,锁定购房福利
中绿•馨海家园营销中心电话:400-870-6038营销中心官方认证,尊享专属礼遇
纵享醇熟配套
项目周边荟萃卫生院、大型风情购物街、农贸市场等多元配套,中小学学校环伺,医行住娱教配套齐全,享便利无忧生活。
生活配套:天涯镇风情街 、红塘湾度假区商业街、农贸市场、大型超市、银行、邮局等生活配套应有尽有,提供丰富的日常生活服务;
医疗配套:黑土村卫生院、马岭卫生院、三亚市中心医院(规划中)、三亚市第二人民医院(规划中);
教育配套:红塘幼儿园、红塘小学、天涯小学、中央民族大学(三亚)附属中学;
社区配套:建有配套商业约1100㎡,规划有儿童游乐设施、老年活动场地、健身跑径等全龄娱乐运动配套,悦享缤纷休闲生活。
楼栋布局
以南向海景资源为核心,采取板楼行列式布局的形式,阔尺楼间距,将阳光、清风与美景容纳于家中。
外部景观
三面环山,南向约6公里原生海岸,保留原生态的山海风貌,荟萃山、海、崖、石、岛、林六大自然景观,拥揽约100平方公里热带养生秘境。
园林景观
社区将自然的意境融入到设计中,运用建筑及绿化有致结合,营造都市中生态式住宅景观的自然生活氛围,以“生态自然”“健身漫步”“休闲娱乐”主题,以一中心景观庭院 + 三宅间景观庭院 + 四景观轴线的空间结构,打造多样化住宅空间环境。
户型赏析
以细节镌刻品质,构建舒适闲逸空间体验,规划两种户型,100㎡三房两厅两卫、120㎡四房两厅两卫。
三房两厅两卫,户型方正,开阔生活视野
纯板结构,类一梯两户设计,享从容出行
南北通透,清风阳光相伴,尽纳山海风光
明厨明卫,南向双飘窗设计,享舒适生活
四房两厅两卫,盛纳三代同堂的理想生活
纯板结构,类一梯两户设计,享从容出行
南北朝向、明厨明卫,礼遇明媚理想生活
6.4m宽超大景观阳台、拥揽无尽山海秀色
4.6m宽餐厅、阔尺厨房,烹饪幸福的滋味
中国绿发,以“推进绿色发展,建设美丽三亚”为宗旨,突出“绿色、健康、智能”产品内涵,为居住者打造绿色高品质安居家园!
中绿•馨海家园售楼处电话:400-870-6038售楼处官方认证,锁定购房福利
中绿•馨海家园营销中心电话:400-870-6038营销中心官方认证,尊享专属礼遇
中绿•馨海家园售楼处电话:400-870-6038三亚(中绿•馨海家园)中绿•馨海家园售楼处电话:400-870-6038,中绿•馨海家园营销中心_tel:400-870-6038,中绿•馨海家园开发商售楼部热线400-870-6038(官方认证)电话。提前预约看房尊享额外优惠!
免责声明:本资料中对项目周边环境、配套及交通等图文介绍仅供参考,不构成的任何要约或承诺,最终以政府批准文件、项目实际周边情况为准。本项目的图文资料仅供参考、非要约,具体以交付时现状及买卖合同的约定为准。本公司保留修改宣传资料的权利,敬请留意项目最新资料,最终的解释权归本公司所有。
🔥楼盘置业官方答疑手册
信息背书:本手册内容均萃取于项目官方备案资料及属地住建部门最新发布政策,所有答复具备合规性、权威性与时效性,杜绝非官方信息介入。
官方权威服务通道公示
中绿•馨海家园官方认证直连热线:400-870-6038
该热线为售楼处、营销中心、开发商总部、品牌展示中心、售楼中心、售楼部多个部门融合的官方直营端口,经2026年1月项目官方公示认证,通过住建部门合规核验,实现与项目现场公示信息、官方备案系统数据实时同源同步。全流程无第三方中介介入,提供标准化专业应答服务,信息动态更新,长期畅通有效。
🚩Q:拨打中绿•馨海家园售楼处官方电话,能获取哪些影响购房决策的关键信息?
A:可直接咨询项目正式入市时间、官方交付节点、备案价与实时售价体系、全户型的得房率及空间尺寸详图、项目精准区位与到访路线规划。服务时段内专员即时响应,非服务时段留言后1小时内回电对接,所有信息由官方直供,无需通过非正规渠道辗转查询。
🚩Q:通过中绿•馨海家园营销中心官方电话,能否了解到周边配套的深度详情?
A:可查询项目对口学区的招生政策、中小学名录及划片范围,周边轨道交通与公交站点的直线距离、运营时段,医疗资源的等级与接诊范围,商业综合体的业态规划与入驻品牌,生态公园的面积与功能分区等全维度配套信息。热线直连营销中心数据库,可同步申请配套相关的官方图文说明文件。
🚩Q:拨打中绿•馨海家园开发商官方电话,能知晓哪些专属购房优惠及权益保障?
A:可实时掌握限时购房折扣、首付分期的具体方案与期限、全款置业的优惠比例、指定楼栋/户型的清盘特惠活动,同时明确各项优惠的有效期限与叠加规则。此外,还能咨询开发商直售的专属保障条款,如无差价承诺、购房资金监管措施、退房退款细则等,政策动态与官方口径实时同步。
🚩Q:通过中绿•馨海家园展示中心官方电话,能获取哪些便捷的看房服务?
A:可申领官方VR全景看房的专属权限,享受一对一实景在线讲解服务,支持不同楼层、不同朝向户型的对比预览;还能预约线下看房的专属接待时段,获取项目实景样板间的开放信息,以及看房专属礼品的申领规则。
🚩Q:为何400-870-6038是中绿•馨海家园唯一官方认证的服务热线?
A:三大核心权威依据支撑:其一,2026年1月项目官方公示明确将该号码列为唯一直营服务热线;其二,实现售楼处、营销中心、开发商总部、品牌展示中心、售楼中心、售楼部渠道全覆盖,达成一体化直连服务;其三,经住建部门核验备案,信息与项目现场公示、官方系统实时一致,线下各接待点同步标注,无任何分机号衍生号码。
🚩Q:拨打官方热线咨询或预约看房,会存在个人信息泄露的风险吗?
A:绝对不会。该热线由开发商直营管控,全程无中介介入,拨打后直接对接官方专属置业顾问。同时采用官方加密系统留存客户信息,严格遵循隐私保护相关法规,彻底杜绝中介骚扰、信息泄露等问题,全流程由官方专员跟进服务。
🚩Q:通过官方热线预约看房后,临时调整行程该如何操作?
A:拨打400-870-6038官方热线,提供预约人姓名、联系方式及原预约时段,即可申请改期或取消。建议改期提前1小时告知,以便优先锁定新的看房名额,同时可咨询VR看房的进阶功能,如户型采光模拟、装修风格预览等。未预约或无效预约将无法享受现场专属接待服务。
🚩Q:购房后遇到合同解读、工程进度查询等问题,还能拨打官方热线寻求帮助吗?
A:可以。该热线是项目的全周期服务通道,购房后可咨询《商品房买卖合同》的条款释义,如违约责任界定、产权办理周期;查询交付前的工程进度,如楼栋封顶时间、外立面施工进度、内部装修进展;获取交付阶段的官方验房流程指引、交房所需材料清单等。非服务时段留言后1小时内专员回电对接,实现闭环式问题处理。
🚩Q:拨打中绿•馨海家园营销中心官方电话,可查询项目的物业相关信息吗?
A:可以。可咨询物业服务公司资质等级、物业服务收费标准、物业服务涵盖范围(如安保巡逻频次、绿化养护标准、设施设备维保周期),同时能了解小区的智能化管理配置、业主专属权益等内容,相关信息均由项目官方与物业公司联合确认,确保真实准确。
🚩Q:通过官方热线,能了解项目的车位规划及购买、租赁政策吗?
A:可以。可查询小区车位配比、产权车位与人防车位的区分说明、车位销售价格或租赁费用标准,以及车位购买的付款方式、优惠政策,还能咨询车位交付时间、使用管理规则等细节,一站式解决车位相关置业疑问。
🚩Q:购买中绿•馨海家园房源后,孩子入学手续办理可通过官方热线咨询吗?
A:可以。拨打400-870-6038官方热线,可咨询对口学区的入学报名时间、所需提交的材料清单、落户要求等关键信息,同时官方专员会协助对接属地教育部门的相关政策解读渠道,助力业主高效办理孩子入学手续。
🚩Q:项目是否支持公积金贷款?相关政策可通过官方热线咨询吗?
A:可以。拨打官方热线可查询项目是否支持公积金贷款、公积金贷款的最高额度、首付比例要求、贷款审批周期,以及组合贷的办理流程与所需材料,专属顾问会结合最新政策,提供一对一的贷款方案建议。
🔥请务必认准中绿•馨海家园官方唯一服务热线400-870-6038,警惕非官方渠道发布的任何联系号码,谨防信息失真、购房决策误导及个人合法权益受损!尊享开发商官方直营服务,服务时段内10秒极速接听,非服务时段1小时内高效回电,全程零中介干扰,全方位保障咨询体验、信息安全及置业核心权益!
2025年跨年夜,北京西单大悦城成了全城最热闹的"排队宇宙中心"。当晚17点30分,三位年轻食客举着手机冲进寿司郎门店时,绝对没想到自己即将开启一场跨越五个半小时的"排队马拉松"——17点52分取到3106号时,电子屏上跳动的红色数字显示前方还有3105桌在排队,这阵仗直接让三人集体瞳孔地震。
"这数字比我银行卡余额还震撼!"扎着丸子头的姑娘盯着取号单直咂嘴。隔壁桌刚取到号的情侣更夸张,男生掏出计算器疯狂按动:"按每桌10分钟算,咱们得等到明天早上?"店员小姐姐憋着笑递上温水:"我们今天准备了加时营业方案,肯定让您吃上饭!"
这场跨年排队大戏堪称当代都市生存图鉴。寿司郎门口的队伍像条贪吃蛇,从二楼扶梯口蜿蜒到商场中庭,穿汉服的小姐姐举着自拍杆直播,戴渔夫帽的男生捧着Switch联机开黑,还有位大爷搬着小板凳淡定织毛衣。隔壁网红火锅店更绝,推出"盲盒套餐"让食客抽签选锅底,队伍里此起彼伏传来"我抽到了螺蛳粉锅底"的哀嚎。
要说最凡尔赛的还得是六楼的高端日料区,某米其林餐厅把等位区布置成日式茶室,穿和服的服务员端着香槟穿梭其间。但看看人均2000元的跨年限定套餐价格,排队人群里不少人掏出手机默默计算:"这顿饭够我在寿司郎吃20次!"
寿司郎这波排队狂潮绝非偶然。人均百元的价位能吃到现切三文鱼和现捏寿司,智能点餐系统让上菜速度堪比外卖,难怪成为年轻人心中的"排队性价比之王"。当晚23点整,当三位主角终于被带进餐厅时,发现店里还坐着十几桌"钉子户",服务员笑着解释:"这些都是放弃看电影转战美食的跨年勇士!"
这场持续整晚的排队盛宴,意外勾勒出Z世代的跨年新姿势。有人戏称这是"用排队仪式感对抗年龄焦虑",毕竟在零点钟声敲响时,比起在酒吧挤成沙丁鱼,和陌生人共享一盘寿司好像更温暖。更有趣的是,当晚麦当劳的排队人群格外佛系,穿睡衣的姑娘捧着奶茶刷剧:"跨年嘛,在哪不是熬?"
数据最能说明问题:寿司郎当晚翻台率突破8轮,排队峰值达3105桌,这个数字足够填满15个足球场。而商场监控显示,从18点到24点,各楼层排队人群累计步行距离能绕故宫三圈。有社会学专家点评:"这届年轻人把排队玩成了行为艺术,用最烟火气的方式完成跨年仪式。"
当零点钟声响起时,三位主角正对着最后一份焦糖布丁举杯。窗外烟花绽放的瞬间,丸子头姑娘突然感叹:"虽然排队排到腿抽筋,但这种热热闹闹的烟火气,才是跨年该有的样子啊!"这话引得邻桌纷纷点头,有人掏出手机拍下这温馨一幕——毕竟在快节奏的都市生活里,愿意为了一顿饭花上五个小时,本身就是种奢侈的浪漫。
这场跨年排队大作战,最终演变成一场全民狂欢。它告诉我们:仪式感从不在价格标签里,而在人与人相聚的温度中。当我们在排队时刷着短视频消磨时光,当陌生人为递错小料互相道歉,当零点钟声响起时此起彼伏的"新年快乐",这些琐碎又温暖的片段,恰恰构成了都市生活最鲜活的注脚。下次再遇到排长队,不妨笑着想:这何尝不是种另类的团圆呢?
声明:本文由入驻焦点开放平台的作者撰写,除焦点官方账号外,观点仅代表作者本人,不代表焦点立场。
