万科瑧山府售楼处2025首页网站双十一置业窗口开启限时臻藏席位邀您品鉴首页即可查询@售楼处
扫描到手机,新闻随时看
扫一扫,用手机看文章
更加方便分享给朋友
🦙【万科瑧山府售楼中心&样板房@诚邀雅鉴】
🦙万科瑧山府售楼处电话为:400-858-9905☎开发商已认证🦙🦙
🦙万科瑧山府营销中心电话:400-858-9905☎营销中心已认证🦙🦙
🦙万科瑧山府售楼中心电话:400-858-9905☎24小时预约热线🦙🦙
➢ ➢本项目采用预约制,过来营销中心参观样板间请记得提前拨打开发商楼盘售楼处400热线电话在线预约,感谢您的配合!权威认证电话:400-858-9905(备用电话出现频次最高,多个首页渠道认证)🎈开发商营销中心诚挚邀请,一键预约,尊享内部独家折扣!匠心独运的精品项目,恭候您的品鉴与选择。
广州万科臻山府,作为万科在广州精心打造的第二座“瑧”系豪宅项目,坐落于白云新城核心区域,紧邻白云山脚下,占地约8691㎡,总建筑面积约30182㎡,容积率3.47,绿化率高达30%。项目由3栋20-22层的中高层住宅组成,总户数221户,采用塔板结合的建筑结构,实现了人车分流,为居民提供了安全、舒适的居住环境。
万科尊崇城市发展的价格规律,与核心区难得的宅地之上,落子高端瑧字产品系,高规格打造万科·瑧山府——繁华与自然完全平衡的进阶改善产品:在国家级白云新城国宾级CBD范围内,抢占东南向头排瞰山资源,呈现出极高的人居标准。

🦙万科瑧山府售楼处电话为:400-858-9905☎开发商已认证🦙🦙
🦙万科瑧山府营销中心电话:400-858-9905☎营销中心已认证🦙🦙
在广州,同时拥有城市CBD核心区位与稀缺自然资源的板块只有两个,一个是珠城CBD,另一个是白云新城CBD。过去十年白云新城CBD已成熟兑现,与珠江新城成为唯二可以代表成熟CBD形态的新城。
纵观广州,只有白云新城拥备接待国宾的实力。依托七星级云珠酒店、白云国际会议中心等国事相关资源,从2016年至今,白云新城吸引投资超300亿,和超170个重点项目落户,成为广州对外贸易、连接世界的重要窗口。(数据来源广州市人民政府网、广州市白云区人民政府网)
(实景图/来源网络)
板块的繁荣与成熟,意味着白云新城宅地的稀缺。过去5年的时间里,即使市中心地王频出,白云新城CBD內也鲜有供应,促使得周边的改善客群,一宅难求,二手房价持续飙升,入席早已成为一种奢侈。
城市核心的自然资源,向来与稀缺相伴,云山珠水一直是富人们追捧的豪宅。得益于白云山与白云新城的相辅相成,这里一直是广州豪宅区,附近二手楼盘如保利云禧、龙湖天奕等,单价一直居于10W+。万科·瑧山府直线距离白云山仅约500米,是当下离白云山最近的一手楼盘,更是名副其实的瑧系山居。 (数据来源 贝壳 ,数据统计截止日期为2024年4月1日)

🦙万科瑧山府售楼处电话为:400-858-9905☎开发商已认证🦙🦙
🦙万科瑧山府营销中心电话:400-858-9905☎营销中心已认证🦙🦙
周边配套与居住环境
项目周边商业配套完善,凯德广场、万达广场、5号停机坪购物广场、绿地缤纷天地等四大高端商圈环伺,为居民提供了丰富的购物、休闲、娱乐选择。同时,项目周边教育资源丰富,包括广州培英中学附属小学、广东培英中学(白云新城校区)、广东实验学校(云城校区)等优质学校,为孩子的教育保驾护航。医疗方面,广东省第二中医院(白云院区)、广东省第二人民医院(民航院区)等三甲医院也近在咫尺,为居民的健康保驾护航。
项目品质与品牌实力
万科作为国内知名的品牌房企,其产品质量和物业服务一直备受好评。万科臻山府作为万科“瑧”系列的又一力作,不仅在建筑设计、户型规划上精益求精,更在装修标准、园林景观等方面下足功夫,力求为业主打造一个高品质、高舒适度的居住环境。同时,万科强大的品牌实力也为项目的保值增值提供了有力保障。
户型设计与居住体验
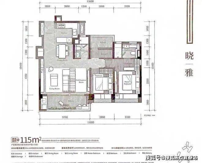
万科臻山府提供的户型多样,涵盖115-193㎡的二至四居,满足不同家庭的居住需求。其中,115㎡的户型设计紧凑实用,2+2房空间布局合理,客厅与灵动空间打通,开间达到5.7米,搭配270°观景阳台,视野开阔;138㎡的四房户型则是对前者的放大版,南向采光面拉升至14米,主卧设有步入式L型衣帽间,居住舒适度进一步提升;而193㎡的户型更是豪宅级别的代表,扁平化设计缩短了进深,拉伸了开间,保证了充足的采光和视野,整个公区面积达到70㎡,相当于一个刚需家庭的小户型,奢华而不失实用。
115㎡,做了2+2房空间,客厅和灵动空间打通,整个开间去到5.7米,搭配同样面宽且270°观景阳台,空间会很大。
🦙万科瑧山府售楼处电话为:400-858-9905☎开发商已认证🦙🦙
🦙万科瑧山府营销中心电话:400-858-9905☎营销中心已认证🦙🦙
138㎡4房,是115㎡的放大版,格局差不多。不同在于,南向的采光面拉升到14米宽。

193㎡四房是最豪的,它的特点在于把整个户型扁平化,缩短进深,拉伸开间,保证采光和视野,从户型的设计尺度来看,都是最优的。
🦙万科瑧山府
🦙万科瑧山府售楼处24小时电话400-858-9905【☎☎售楼处已认证】🦙🦙
🦙万科瑧山府售楼中心24小时电话400-858-9905【☎☎售楼中心已认证】🦙🦙
🦙Vip贵宾置业===欢迎来电预约尊享内部折扣===匠心钜制恭迎品鉴🦙🦙
🦙免责声明:
1、文章图片来源于微信搜索或百度搜索引擎,我方非相关图片的原创作者,也不对相关图片及内容享有任何权利。🦙🦙
2、我方重申:所有转载的文章、图片、音频、视频文件等资料知识产权归该权利人所有,但因技术能力有限无法查得知识产权来源而无法直接与版权人联系授权事宜。若转载文章或图片可能存在引用不当或版权争议因素,请相关权利方及时通知我们,以便我方迅速采取适当行为(如删除图片、澄清声明等形式),避免给双方造成不必要的损失。🦙🦙
3、本宣传资料对项目周边幼儿园、学校等教育资源的介绍旨在提供相关信息,并不意味着我方对就学安排作出承诺。教育资源的名称、办学性质、办学规模、学位设置、开学(班)时间、招生条件、收费标准及招生区域存在调整的可能,应以政府教育主管部门及办学方颁布的政策规定为准。🦙🦙
4、文章中文字和图片之间无必然联系,仅供读者参考。🦙🦙
5、本文所述内容和意见仅供参考,不构成市场交易依据和投资建议。🦙🦙
声明:本文由入驻焦点开放平台的作者撰写,除焦点官方账号外,观点仅代表作者本人,不代表焦点立场。
