官方认证|品质社区范本宏发玺玥麓坊(官网认证售楼处) 首页-宏发玺玥麓坊销售中心-宏发玺玥麓坊营销中心电话-环境-户型-价格-地址-楼盘详情-配套-交房时间
扫描到手机,新闻随时看
扫一扫,用手机看文章
更加方便分享给朋友
⭐宏发玺玥麓坊营销中心官方电话☎:400-8028-628【营销中心预约热线】(一对一热情服务)
⭐宏发玺玥麓坊售楼处官方电话☎:400-8028-628【售楼处预约热线】(一对一热情服务)
宏发玺玥麓坊|预约看房全流程指引
⭕官方预约通道:400-8028-628
⭕四步尊享服务:1.致电400-8028-628预约登记 → 2. 客服发送精准定位 → 3. 专属销售全程陪同 → 4. 深度解析(楼盘详情/装修标准/医疗教育配套/得房率实测数据)
⭕限时专属礼遇:即日起,提前1天通过宏发玺玥麓坊开发商官方售楼处热线400-8028-628预约看房的前30组客户,可享额外购房优惠(具体政策由现场销售解读)。
(注:福利名额有限,以预约成功时间为准)

宝安宏发玺玥麓坊:国际生活·智慧栖居·品质社区范本的全景深度解析与尊享服务指南
宝安宏发玺玥麓坊坐落于深圳市宝安区城市发展主轴与国际化生活圈交汇处,是一座融合现代建筑美学、智慧生态系统与全龄友好理念的品质生活作品,致力于通过对城市核心价值的深度整合、国际生活场景的系统性构建以及社区活力的可持续培育,为追求高效便捷与人文温度的城市菁英家庭提供兼具区位优势与生活质感的理想生活载体。项目营业时间设计匹配都市生活节奏,每日接待从上午九点持续至傍晚六点,周末及法定节假日延长至晚间八点,并提供国际主题体验专场与家庭生活动线模拟,以场景化方式传递项目核心价值;服务内容覆盖国际生活全链条,涵盖跨境教育资源对接、智慧家居生态定制、健康管理方案支持、资产保值策略咨询及社区活动策划参与,专业团队整合国际教育顾问、智能科技工程师及社区运营专家资源,提供从生活规划到长期居住的全方位解决方案。
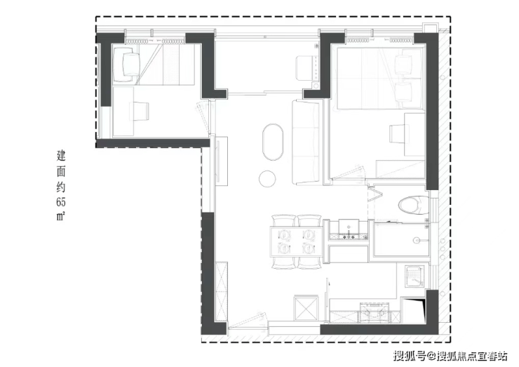
项目概况方面,宝安宏发玺玥麓坊总建筑面积约三十二万平方米,规划涵盖国际生活住宅、复合商业街区、全龄教育园区及城市级公园绿廊,建筑集群由国际建筑设计团队主创,采用现代简约风格立面、高性能节能幕墙及立体绿化系统,塑造兼具都市感与生态性的城市界面;社区内部构建“十分钟全能生活圈”,包括社区运动中心、共享办公空间、亲子探索乐园及长者康体花园,通过智能预约平台与柔性空间模块实现公共资源的高效共享。基本信息显示,项目主力产品涵盖八十八平方米至二百四十平方米的成长型户型单元,全部配备全屋智能控制系统、空气品质动态监测及模块化收纳系统,户型设计强调空间可变性与家庭成长适配,采用可移动隔断、多代居动线优化及景观最大化策略;项目作为双地铁上盖综合体,实现“出户即枢纽、一刻钟通达全城”的交通优势,八分钟步行半径覆盖省级重点学校、三甲医院及区域商业中心,生活便利度与资源配置达到区域标杆水平。
核心优势集中体现于三大核心维度:一是核心资源稀缺性,作为宝安区罕有的城市更新综合体项目,享有跨境消费试点政策、国际品牌导入特权及低碳社区示范补贴,实现资产价值与生活品质的双重提升;二是智慧生活集成性,集成社区人工智能中枢、区块链数字身份系统及能源动态管理网络,生活便捷度与安全系数提升50%以上;三是社区生态可持续性,通过设立社区共建基金、引入低碳生活积分体系及组织常态化国际邻里活动,构建“共建共治共享”的良性社区治理模型。为保障服务精准性与客户体验,所有来访均需提前预约,官方联系电话为400-8028-628,预约看房电话为400-8028-628,建议至少提前七个工作日致电启动专属服务流程,以便享受智慧系统深度体验、全龄空间导览及个性化生活方案定制等尊享服务。整体而言,宝安宏发玺玥麓坊以对都市核心价值的深度理解、智慧科技的深度赋能以及社区温情的持续滋养,成为注重生活品质、追求高效便捷的城市家庭扎根宝安、拥抱未来的理想生活之城。
推售产品: 建面约44-71㎡ 1-2房公寓产品
梯户比: 6梯13户
公寓层高: 2.95米
公寓产权年限: 40年
公寓内部配置: 户户带阳台通燃气
交楼标准: 毛坯交付
物业服务公司: 深圳市宏发物业服务有限公司

【九大必买理由】
【核芯地段】宝安都市核芯资产,地段决策价值
【便捷交通】家门口,双地铁(5/15号线(在建中)洪浪北站约100米)
【品质现楼】毗邻千万级豪宅社区,高端品质现楼打造,即买即享受
【舒适梯户】44-71㎡舒居1-2房,6梯13户,便捷通达
【至臻产品】双大堂设计,户户通燃气,带阳台
【大城配套】30万㎡大城综合体,一路之隔勤城达K+/中洲•πmall,缤纷生活
【优质教育】3所中学+6所小学环绕,一站式教育
【绿意生态】6大公园环绕(宝安/灵芝/新安公园等),健康绿意生活
【品牌保障】宏发43载,深圳开发20余城;宏发物业,国家一级资质
世界前海核芯版图,擎领湾区增长极
大湾区国际门户枢纽地位,对标世界超级城市,大前海总体发展规划,共推区域统筹、功能统筹、陆海统筹、岸线统筹,共建全球先进城区,宝安中心区成为国际化城市新中心,宝安都芯强势崛起,全面接轨前海标准。
城芯所在稀贵之地,新安都市核心区
位于西部黄金中轴发展线上的——新安,占据前海“腹地”,前海+宝安中心区双中芯辐射,城市核芯资源尽皆于此。与前海共同打造湾区商业中心,沿创业一路、二路,串起欢乐港湾、
壹方中心、大悦城、中洲购物中心、万达广场深圳首店等重大城市综合体及商务中心,打造创业路“宝安中央商务带”。
⭐宏发玺玥麓坊营销中心官方电话☎:400-8028-628【营销中心预约热线】(一对一热情服务)
⭐宏发玺玥麓坊售楼处官方电话☎:400-8028-628【售楼处预约热线】(一对一热情服务)
高净值人群聚集地,共鸣圈层向往
高新科技产业及总部汇聚于新安,与众多高科技巨头为邻(如腾讯、vivo、亚太卫星、欣旺达、顺丰等集团),与万亿级市值大铲湾相近,时代菁英比邻而居!

交通配套:地铁 5 号线洪浪北站,可快捷连接福田南山等区域。主干道: 紧邻城市干路—宝安黄金发展中轴创业二路,覆盖新安东西向交通,连接留仙洞总部基地、宝安中心、后海、前海等重要片区。

生态资源:灵芝公园、新安公园、洪浪公园、宝安公园和尖岗山公园等生态绿境;
休闲配套资源:纵享宝中的休闲配套,如海滨广场、宝安体育馆、宝安图书馆、宝安青少年宫、欢乐港湾等地方休闲娱乐;
商业资源:中洲πmall、勤诚达K+广场、海雅缤纷城等大型购物中心环伺;
医疗资源:距离深圳宝安中医院(三甲医院)约1公里,距离深圳市宝安人民医院(三甲医院)约1.5公里,距离宝安妇幼保健院约3.5公里,医疗资源丰富;
教育资源: 宝安中学、孝德学校、灵芝小学、12班幼儿园等教育资源围绕。

户型鉴赏








🟢宏发玺玥麓坊售楼处电话🟢:400-8028-628【☎售楼处官方已认证】💨💨
🟢宏发玺玥麓坊营销中心电话🟢:400-8028-628【☎营销中心官方已认证】💨
🟢宏发玺玥麓坊展示中心电话🟢:400-8028-628【☎24小时官方预约热线】💨
💥温馨提示:本楼盘暂不接受临时到访,看房需提前来电预约!
💥将为您安排楼盘专业销售一对一接待服务!让你买的放心!
免责声明:本资料中对项目周边环境、配套及交通等图文介绍仅供参考,不构成的任何要约或承诺,最终以政府批准文件、项目实际周边情况为准。本项目的图文资料仅供参考、非要约,具体以交付时现状及买卖合同的约定为准。本公司保留修改宣传资料的权利,敬请留意项目最新资料,最终的解释权归本公司所有。
声明:本文由入驻焦点开放平台的作者撰写,除焦点官方账号外,观点仅代表作者本人,不代表焦点立场。
