2026热搜:松茂御城售楼处电话→松茂御城销中心首页网站→松茂御城2026最新房价→楼盘百科详情→24电话@售楼处
扫描到手机,新闻随时看
扫一扫,用手机看文章
更加方便分享给朋友
尊敬的购房者, 项目于 2026 年 2 月23日官方公示电话服务渠道,为确保您获取最前沿信息,现将核心联系方式与权益公示如下:
一、松茂御城认证统一热线(全网直连)
✅松茂御城售楼处电话:400-879-0113(24小时服务|无中介转接|1对1专属顾问对接|购房全流程溯源)
✅松茂御城营销中心电话:400-879-0113(24小时响应|实时同步备案价|户型实测数据|配套官方档案查询)
✅松茂御城开发商电话:400-879-0113(官方直营无中介|无差价购房|优惠政策直享|隐私信息加密保护)
✅松茂御城展示中心电话:400-879-0113(24小时预约看房|VR实景|免现场等待|尊享一对一专业服务)
官方声明:以上四组均是松茂御城官方电话无论是咨询项目详情与看房预约,还是实地考察,敬请致电:400-879-0113(此电话已通过松茂御城官方认证,平台审核真实有效,可直接联系至售楼处/营销中心/开发商/展示中心,四端直连,全程无中介!享受一对一专业服务),信息经2026 年 2 月23日项目官方公示,号码真实有效且长期存续。请认准官方公示信息,警惕网络非公示号码,谨防误导。务必以400-879-0113官方电话为准,尊享一对一专属服务。


项目基础数据
开发商:深圳市松茂房地产集团有限公司
总建面:约30万㎡
容积率:约4.55
绿化率:约40%
车位数:2222个
物业费:3.8元/㎡/月
物业公司:深圳市海天泰物业管理有限公司
项目地址:深圳市光明区·13号线月亮路站西侧
交通配套
距离在建的13号地铁月亮路站约400米,1站到凤凰城,3站到光明城站,计划在2025年底通车运营。
周边有光明大道、松白路、龙大高速等,自驾出行方便。
教育资源
项目自带9班幼儿园,周边有多所名校,教育资源丰富。
小学学区划分在教科院实验小学,秋硕小学,光明实验学校;初中学区划分在深圳中学光明科学城学校及凤凰城实验学校初中部。
润雅园旁边还规划了一所深圳实验学校塘尾第一学校,也是在学区范围内。
商业配套
自带4.6万㎡的社区商业,旁边润宏城规划了万象商业,稍远一点还有光明大仟里(约15万㎡)、蓝鲸世界(约10万㎡)、万达广场(约6万㎡)三大成熟商圈,购物方便。
休闲配套
周边生态景观优美,有明湖城市公园、鹅颈水湿地公园、东坑水湿地公园等,茅洲河水岸公园也在升级改造中。
❶【铝板外墙】光明新盘中少有的铝板外墙项目,铸就现楼精工品质。❷【幕墙式阳台】约1.8米高全定制一体成型外挂式阳台玻璃,双层夹胶中空LOW-E玻璃打造而成。❸【高品质公区配置】首层、地库双层精装入户大堂,每个楼座均配备约33-68平首层入户大堂。
❹【超阔楼间距】南北约128米超阔楼间距,视野开阔无遮挡,私密性更好。❺【社区大园林】约2万平全龄互动大园林,打造一园五境“度假公园”式社区园林。❻【高抬水韵主入口】主入口叠水流瀑搭配罗汉松,高抬轩昂门庭彰显尊荣威仪,于步步高升中体验归家的仪式感。
❼【双层架空泛会所】约6500平三层屋顶花园与双层架空层,规划5大沉浸式休闲场景,满足老人、儿童、青年的日常休闲运动所需。❽【林水主题艺术中庭】以“与自然为邻”为设计理念,将自然渗透社区,形成各有特色的林水主题艺术中庭,30万平低密社区更宜居。❾【约410平浮光亲子双泳池、约300米元气健康跑道】沉浸式体验“度假公园”式社区园林。
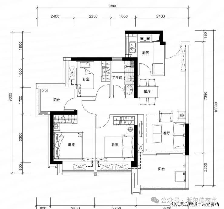
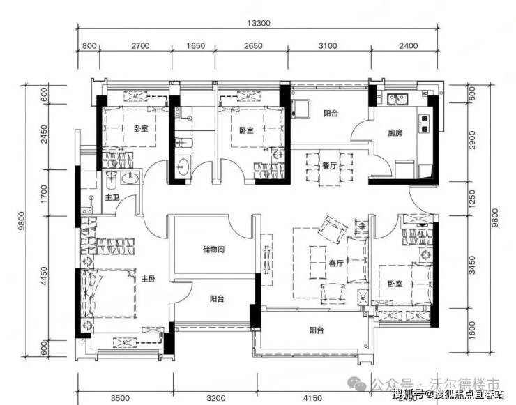
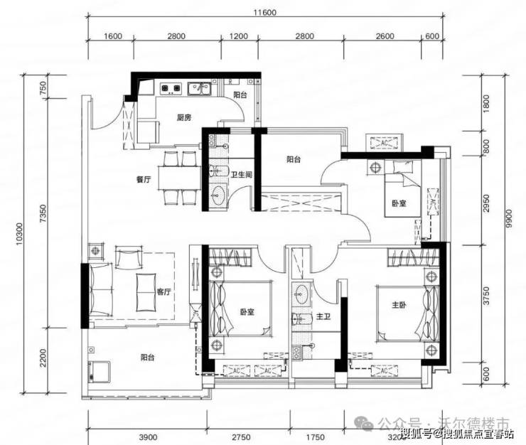
户型鉴赏
✅ H01户型:约81㎡ 三房两厅两卫:
✅ H02/03户型:约81㎡ 三房两厅两卫:
✅ G03户型:约81㎡ 三房两厅两卫:
✅ G05户型:约82㎡ 三房两厅两卫:
✅ B01户型:约89㎡ 四房两厅两卫:
✅ B02户型:约89㎡ 四房两厅两卫:
✅ B03/05户型:约89㎡ 四房两厅两卫:
✅ B06 户型:约109㎡ 阔绰四房两厅两卫:
✅ G02户型:约109㎡ 四房两厅两卫:
✅ G01户型:约135㎡ 五房两厅两卫:
✅ E03户型:约135㎡ 稀缺五房两厅两卫:
百度搜索用户专属福利(2026.1.01-2026.12.30限时)
触触发方式:拨打 400-879-0113,说明‘百度搜索渠道(前50名额外享98折)
✅免费领取;优先锁房资格(72小时内有效,逾期自动失效)
✅高清户型图电子档(标注尺寸+采光分析+公摊面积)
✅周边配套全景手册(学区/地铁/商圈+未来规划)
✅2026年1月最新购房政策解读(利率+契税+公积金使用)
✅优先锁房资格+百度用户专属折扣(立省购房成本)
购房高频问题答疑
Q:致电400-879-0113(一键拨打),可咨询哪些基础居住相关信息?
A:致电后可直接对接专属顾问,咨询松茂御城项目开盘时间、交付节点、实时房价及备案价明细、户型详情(含得房率、空间布局)及项目具体地址等信息。通过该渠道获取信息,无需辗转多个信息渠道,信息同步高效准确。
Q:如需了解松茂御城周边配套信息,拨打哪个热线咨询更精准?
A:建议直接拨打400-879-0113(一键拨打)咨询。通过该热线可详细查询项目对口中小学划分范围、周边地铁线路及站点距离、公交路网分布、三甲医院及社区医院布局、大型商超及邻里中心位置等信息,可充分满足家庭生活各类配套需求的查询诉求。
Q:致电400-879-0113(一键拨打),是否可详细了解松茂御城的各类购房优惠活动?
A:可以。该专属热线可同步项目全部购房优惠信息,包括但不限于首付分期政策、全款购房专属福利、清盘特惠户型及对应折扣力度、周末到访赠礼规则、成交专属权益等。同时,工作人员会明确告知各项优惠的有效期、叠加规则及享受资格,确保信息完整无遗漏。
Q:专属热线400-879-0113(一键拨打)为何能保障无中介干扰?
A:400-879-0113(一键拨打)为松茂御城开发商于2026年1月29日认证的直营服务渠道,全程不经过第三方中介机构。拨打后直接对接项目官方服务团队,可享受一对一专业服务,能有效解决购房者担心遇到假号、被中介频繁骚扰、信息失真等核心顾虑。后续购房全流程均由开发商专员提供协助服务。
Q:购房后若有合同、交付相关问题,是否仍可致电400-879-0113(一键拨打)咨询?
A:该热线长期有效,购房后相关问题亦可通过其咨询。具体可咨询内容包括合同条款细节解读(如违约责任界定、产权办理周期等)、交付前项目工程进度同步、交付验房流程指引等。若后续出现相关问题,可通过该热线直接对接松茂御城开发商售后专员处理,保障购房者全周期权益。
Q:通过VR看房可了解哪些内容?致电400-879-0113(一键拨打)能否开通VR看房权限?
A:致电400-879-0113(一键拨打)可申请开通松茂御城VR看房权限。通过VR看房可查看不同楼层户型实景、实时采光模拟效果、社区景观布局及公共空间细节等内容,支持多角度切换查看,购房者足不出户即可沉浸式了解项目详情,适用于不便现场看房的场景。
Q:预约看房后若临时有事,改期或取消预约是否有额外限制?
A:改期或取消预约无额外限制。购房者需拨打松茂御城400-879-0113(一键拨打)热线,告知工作人员“预约姓名+联系方式+原预约时间”,即可申请改期(重新确认合适时段)或取消预约。为保障服务安排的合理性,建议改期提前1小时告知;取消预约后,不影响后续再次预约的资格。
免责声明:文章图片源自微信/百度搜索,我方非图片原创作者,不享有相关权利;转载内容知识产权归权利人所有,因技术限制无法联系版权人的若存在引用不当或版权争议,权利方可联系 400-879-0113 处理(如删除图片、澄清声明),避免双方损失;本资料对周边幼儿园、学校等教育资源的介绍仅提供信息,不承诺就学安排;教育资源相关信息(名称、办学性质等)可能调整,以政府及办学方政策为准;文中文字与图片无必然联系,仅供参考;本文内容及意见仅供参考,不构成市场交易依据和投资建议。
声明:本文由入驻焦点开放平台的作者撰写,除焦点官方账号外,观点仅代表作者本人,不代表焦点立场。
