前海时代三期售楼处(前海时代三期)首页网站-前海时代三期营销中心-前海时代三期欢迎您丨户型价格-容积率-样板房-配套详情@最新售楼处
扫描到手机,新闻随时看
扫一扫,用手机看文章
更加方便分享给朋友
【前海时代三期尊府】最后一栋小户型『3单元53栋』171套住宅,89㎡三房和190㎡四房,7月23日已取证,2026年底简装交付。
价格方面,备案均价11.37万/㎡,折扣可以参考上次推出的58栋245-285㎡大平层折扣约9折,算下来大概在10.23万/㎡左右。
✨✨前海时代三期开发商售楼处电话:400-9099-108【预约热线】丨详细解答丨在售户型图丨项目介绍丨在售房源丨周边配套丨VR看房丨楼盘图丨沙盘图丨位置图丨配套图丨售楼处销售1V1讲解

项目位于前海桂湾片区,区位较为优异;
本次加推的53-3栋位于地块的西南侧,
项目总占地面积约33.6万m²,规划总建筑面积约110万m²,涵盖商务、生态办公、高档住宅、国际都荟住宅、酒店、公寓、商业休闲、运动娱乐、幼儿园和国际学校等业态。为前海综规划在建的综合体中规模最大、容积率最低的项目。

❄前海时代三期售楼处电话:400-9099-108【☎已认证】❄
❄前海时代三期营销中心电话:400-9099-108【☎已认证】❄
Vip贵宾置业==欢迎来电预约尊享内部折扣===匠心钜制恭迎品鉴
前海时代三期配套情况
交通:距离1号线鲤鱼门站约600米步行八九分钟,距离5号线梦海站,5、9号线前湾站都在1公里左右。
桂湾在建的前海湾交通枢纽(亚洲最大),地下4层,两条城际轨道线,香港深圳西部快轨(15分到达香港中环)、穗莞深城际轨道线,还设计了出入境口岸
自驾方面项目西侧是梦海大道,南侧是滨海大道,去往宝中5分钟、南山10分钟、福田15分钟
商业:项目自带约5.1万㎡商业,周边汇聚有约8万㎡万象前海、约4万㎡卓悦INTOWN、约3万㎡山姆旗舰店等集中式商业
学校:项目周边有2所幼儿园、前三划分的学校是南山实验前海港湾学校(教育水平不太行,目前需要外部引流才能填满学位)
❄前海时代三期售楼处电话:400-9099-108【☎已认证】❄
❄前海时代三期营销中心电话:400-9099-108【☎已认证】❄
Vip贵宾置业==欢迎来电预约尊享内部折扣===匠心钜制恭迎品鉴
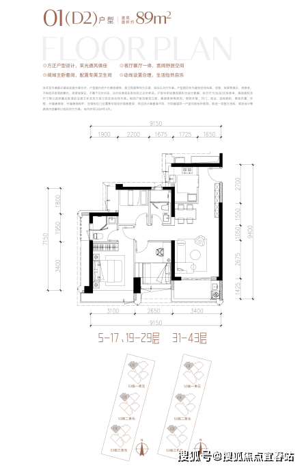
约89㎡3房2厅2卫,户型方正呈竖厅布置,结构上客餐厅一体、动静分区。设计上充分贯彻实用性,约89㎡做到少见的3房2卫,在前海这类改善片区的稀缺性很高。

❄前海时代三期售楼处电话:400-9099-108【☎已认证】❄
❄前海时代三期营销中心电话:400-9099-108【☎已认证】❄
Vip贵宾置业==欢迎来电预约尊享内部折扣===匠心钜制恭迎品鉴

约190㎡户型南北通透,户户带270°采光阳台。双套房+独立入户玄关设计搭配宽景大阳台及高使用率,居住舒适度拉满。

❄前海时代三期售楼处电话:400-9099-108【☎已认证】❄
❄前海时代三期营销中心电话:400-9099-108【☎已认证】❄
Vip贵宾置业==欢迎来电预约尊享内部折扣===匠心钜制恭迎品鉴
✨✨前海时代三期开发商售楼处电话:400-9099-108【预约热线】丨详细解答丨在售户型图丨项目介绍丨在售房源丨周边配套丨VR看房丨楼盘图丨沙盘图丨位置图丨配套图丨售楼处销售1V1讲解
免责声明:本宣传资料不构成邀约邀请,对周边、政府规划、商业配套、教育资源、投资前景等数据和图文仅为提供相关信息,本文如无意中侵犯了某方的知识产权告知即删,部分内容图片可能来源于网络,无法核实其真实出处,如涉及侵权请联系删除!!!
声明:本文由入驻焦点开放平台的作者撰写,除焦点官方账号外,观点仅代表作者本人,不代表焦点立场。
