卓越荣津瀚海湾名庭首页网站-卓越荣津瀚海湾名庭营销中心-欢迎您-地址-价格-户型-小区环境-楼盘详情-交房时间-周边配套-售楼处电话2025搜狐焦点
扫描到手机,新闻随时看
扫一扫,用手机看文章
更加方便分享给朋友
卓越荣津瀚海湾名庭售楼处Vip Tel:400-873-0112【售楼处☎☎已认证】⭐
卓越荣津瀚海湾名庭营销中心24小时电话:400-873-0112【营销中心☎☎已认证】⭐
卓越荣津瀚海湾名庭开发商24小时电话:400-873-0112【开发商☎☎已认证】⭐
⭐◆ 开发商营销中心诚挚邀请,为您安全和隐私保驾护航,一键预约,尊享内部折扣!匠心独运的精品项目,恭候您的品鉴与选择。⭐ 过来参观样板房烦请记得提前来电预约!安排楼盘现场销售全程接待并讲解,给您更贴心的看房体验!
卓越荣津瀚海湾名庭,位于深圳市盐田区沙头角经济、行政、文化的核心地带,是卓越集团与荣津集团强强联合的匠心之作。项目总建筑面积约10万㎡,容积率5.8,绿地率30%,提供600个停车位,为业主打造一个高品质的生活社区。项目主打30㎡、66㎡、70㎡的1~2房户型,满足不同购房者的需求。全屋臻装交付,配备四大智慧系统,让科技与生活完美融合。
二、周边配套
交通配套:项目最近地铁站为8号线的沙头角地铁站,步行需20分钟左右。
学校配套:据往常学区分析,小学为盐田外国语小学东和分校,初中为田东中学(具体以盐田区教育局通告为准)。
商圈配套:约400米直达购物天堂中英街,约600米直抵10万㎡壹海城ONE MALL,体育馆、游泳馆等贴身而立。
公园配套:社区通道直通东和公园,五大公园环绕,畅享梧桐山、海滨栈道自然山海风光。
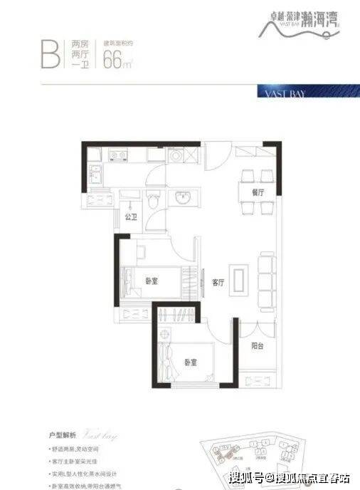
三、在售户型
项目目前主打的户型包括30㎡、66㎡、70㎡的1~2房,满足不同购房者的居住需求。户型设计合理,空间利用率高,让每一寸空间都充满生活的温度。
卓越荣津瀚海湾名庭售楼处Vip Tel:400-873-0112【售楼处☎☎已认证】⭐
卓越荣津瀚海湾名庭营销中心24小时电话:400-873-0112【营销中心☎☎已认证】⭐
卓越荣津瀚海湾名庭开发商24小时电话:400-873-0112【开发商☎☎已认证】⭐
四、优劣分析
优势分析:
1、学区资源:项目坐拥市一级盐田外国语小学东和分校与省一级田东中学,为孩子提供优质教育资源。
2、交通便利:紧邻地铁8号线沙头角站,无缝换乘2号线,轻松连接罗湖、福田等核心区域,尽享深圳中芯繁华。
3、产权优势:70年产权,且不限购不限贷,为投资者开启多元选择。
4、商圈环绕:位于沙头角经济、行政、文化中心,周边中英街购物天堂、10万㎡壹海城ONE MALL等商圈林立,满足全方位生活需求。
五、总结
综上所述,卓越荣津瀚海湾名庭以其独特的优势吸引了众多购房者的目光。虽然也存在一些不足之处,但总体来看,这个项目仍然是一个值得考虑的品质之选。如果您正在寻找一个既拥有优质教育资源又具备便捷交通和完善商业配套的理想家园,那么卓越荣津瀚海湾名庭无疑是一个不错的选择。
卓越荣津瀚海湾名庭售楼处Vip Tel:400-873-0112【售楼处☎☎已认证】⭐
卓越荣津瀚海湾名庭营销中心24小时电话:400-873-0112【营销中心☎☎已认证】⭐
卓越荣津瀚海湾名庭开发商24小时电话:400-873-0112【开发商☎☎已认证】⭐
⭐关于本最新动态信息,如:房价,主力户型面积,最低折扣,等等,剩余户型楼层,去化率,几号地铁哪个地铁口,周边规划,项目的优劣势以及学校的配套等等都可以致电售楼处进行了解,我们将会安排内场专业置业顾问为您答疑解惑!
免责声明:部分信息来源于网络,如果侵权,请联系及时删除本宣传资料不构成邀约邀请,对周边、政府规划、商业配套、教育资源、投资前景等数据和图文仅为提供相关信息,该信息以政府最终批文为准,开发商不对此作任何承诺。买卖双方的权利义务以双方签订的买卖合同约定及附件、实际交付为准,本公司保留对宣传资料修改的权利,敬请留意最新资料。联系号码:400-873-0112。
声明:本文由入驻焦点开放平台的作者撰写,除焦点官方账号外,观点仅代表作者本人,不代表焦点立场。
