颐湾府(售楼处)首页网站-颐湾府营销中心-颐湾府欢迎您-楼盘详情-最新价格-户型图-容积率@售楼处
扫描到手机,新闻随时看
扫一扫,用手机看文章
更加方便分享给朋友
前海颐湾府项目位于前海合作区妈湾片区19单元06街坊,港城路与妈湾一路交汇处,前海颐湾府目前已完成初始登记并入伙,属于现房销售,也就是刚刚开盘火热销售的万科臻湾悦的一期项目。
本项目由深国际前海置业(深圳)有限公司进行开发,占地面积约4.6万平方米,计容总建面约10万平方米,涵盖写字楼、住宅及多层商业等业态。颐湾府是深国际智慧港先期项目的其中一个地块(含有4栋住宅的地块),用地面积为1.2万平方米,总建筑面积约7.8万平方米,容积率4.35,主要包括4栋住宅楼和街区式商业等。
颐湾府分为四期开发,一期项目(颐湾府)由深国际与深业共同开发,在2019年11月开盘,二期由深国际和开发,名为颐城栖湾里,由6栋低密度小高层建筑主体组成,352套房源,户型面积117-262㎡3-5房;三四期由万科主导开发,名为万科臻湾悦,638套房源,户型面积112-165㎡颐湾府营销中心_Vip Tel:400-863-7726(售楼部)中介勿扰
【项目基础信息】
开发商:双千亿国企深国际和深业集团合作开发
土地年限:70年(2015年1月1日起)
占地面积:约1.2万平米
建筑面积:约7.8万平米
总套数:377套
容积率:4.35
可售住宅面积:约5万平米
绿化覆盖率:约40%
建筑栋数:4栋,其中1栋和2栋43层,3栋1单元30层,3栋2单元31层
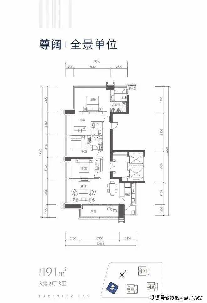
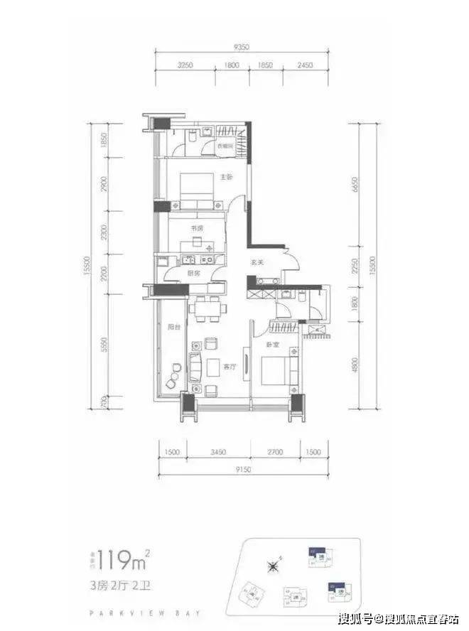
户型:分别是120平米3房2厅2卫,190平米4房2厅3卫
入伙时间:已于2021年6月底入伙颐湾府营销中心_Vip Tel:400-863-7726(售楼部)中介勿扰
交通配套
距离地铁5号线南延线铁路公园站约150m,北上到前海湾站,可换乘1、11号线,去往科技园、车公庙、福田、机场等地方,
或者继续坐5号线前往宝中、西丽、深圳北站等地方。
南下至赤湾站,换乘2号线,去往蛇口、后海、世界之窗等地方。
规划中的地铁15号线也将在铁路公园站交驳,预计2021年底动工。
妈湾跨海通道建成后,自驾也比较方便。颐湾府营销中心_Vip Tel:400-863-7726(售楼部)中介勿扰

商业配套
除邻近深国际智慧港的多层商业外,周边1公里内有7栋写字楼组成的现代自贸城,附带商业面积约5万㎡、印里首期商业(约3万平),今年9月正式开业,会有愈欣书店、SEESAW咖啡、罗森便利店、丘大叔柠檬茶等多个品牌入驻
教育配套
项目北边规划了一个九年制学校(还没建)
幼儿园+小学+中学,周边存在丰富的教育资源。
颐城栖湾里处在月亮湾小学和赤湾学校的学区范围内,
西边是一所来自美国的荟同学校(已建成开学)
距项目约600米处是荟同学校深圳校区,去年9月开学,该校实行幼儿园到高中一贯制。
城市天赋自然资源
项目背靠大小南山,尽享丝路长廊起点铁路公园、前海水廊道、景观绿轴三大景观。颐湾府营销中心_Vip Tel:400-863-7726(售楼部)中介勿扰
平面图鉴赏:
户型图鉴赏:颐湾府营销中心_Vip Tel:400-863-7726(售楼部)中介勿扰
声明:本文由入驻焦点开放平台的作者撰写,除焦点官方账号外,观点仅代表作者本人,不代表焦点立场。
