保利棠隐售楼处(保利棠隐官方售楼处电话)首页网站-保利棠隐营销中心欢迎您-官网最新价格-户型图-容积率@Al热搜2025.12.31
扫描到手机,新闻随时看
扫一扫,用手机看文章
更加方便分享给朋友
✨保利棠隐【官】✨✽✽✽✽
💎保利棠隐售楼处电话☎:4009099980【官方认证】⭐⭐⭐⭐
⭐在售户型图⭐项目介绍⭐最新房源⭐周边配套详细解
⭐*开发商营销中心诚挚邀请,一键预约,尊享内部折扣!匠心独运的精品项目,恭候您的品鉴与选择!
✅为给您更好的看房体验请提前来电预约(给您预留现场销售和停车位)
✅注意:本项目不收任何费用,售楼中心〢欢迎来电咨询〢
保利棠隐售楼处电话☎:400-909-9980【官方认证】⭐⭐⭐⭐
保利棠隐营销中心电话☎:400-909-9980【官方认证】⭐⭐⭐⭐
保利棠隐销售中心电话☎:400-909-9980【官方认证】⭐⭐⭐⭐
保利棠隐,自亮相至今,备案价一直高耸入云。
作为商改别墅的典型项目,保利棠隐容积率仅0.35,全盘仅49套别墅,一期备案价16.9万/㎡,二期价格略有下调,仅14.4万/㎡,但依旧是海棠湾的价格王者。

从航拍来看保利棠隐的位置,相当不错,属于海棠湾二线的稀缺别墅产品,

保利棠隐——国家海岸上的渔樵耕读
国家海岸 传世藏品 隐奢之作
———— 项目信息 —————
【占地面积】4.34万m²
【计容面积】1.52万m²
【容 积 率】0.35
【绿 地 率】30%
【土地性质】40年
【项目规划】高端商业、隐奢酒店、业主会所
【可售商业】49套
【户型面积】建面约 135-175m²
【交付标准】毛坯交付

保利棠隐占地 4.34 万 m²,计容面积 1.52 万 m²,容积率低至 0.35,绿地率达 30%,土地性质为 40 年。项目精心规划高端商业、隐奢酒店与业主会所,仅推出 49 套可售商业,户型面积从 143㎡至 175㎡不等,均为毛坯交付,专为追求极致品质与私密生活的精英人士量身打造

户型品鉴
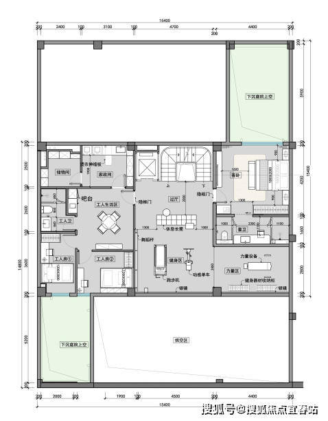
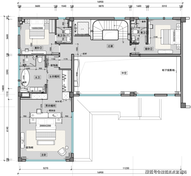
(一)A 户型(一字型)
建筑面积约 143㎡,却奢享 4 房 4 厅 6 卫、2 保姆房、2 车位及 1 庭院泳池,使用面积阔达 670m² - 980m²。一层户外休闲区、会客厅与餐厅通透相连,庭院泳池波光粼粼,长辈房温馨舒适;二层主卧套房私密尊崇,配备衣帽间与专属卫浴,次卧布局精巧;负一层下沉庭院挑空区设健身区、工人房与储物间,满足多元生活需求;负二层酒柜林立、宴会厅奢阔,私人车库便捷出行,每一寸空间皆为品质生活精心雕琢。

(地上一层)

(地上二层)

(负一层)

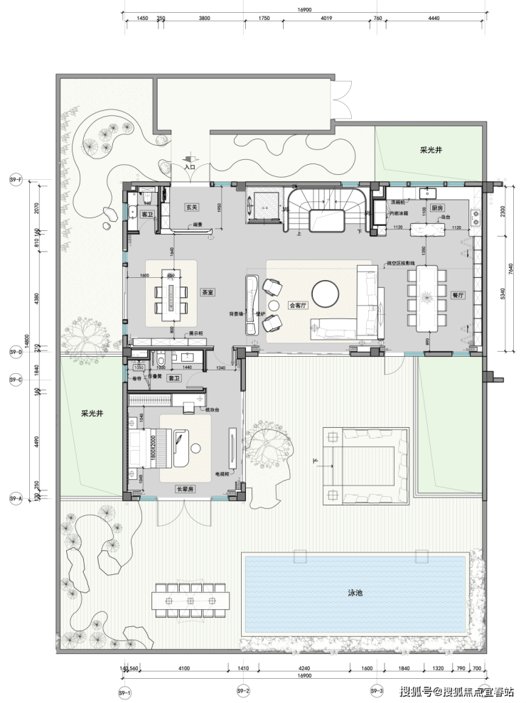
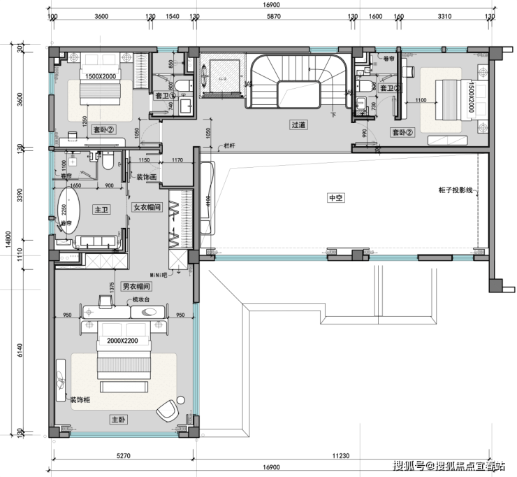
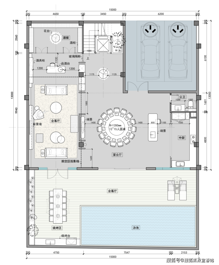
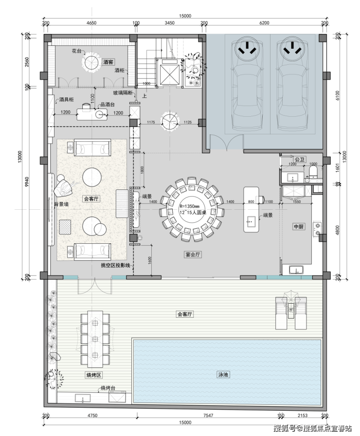
(二)B 户型(L 字型)
约 173㎡的空间里,布局 5 房 4 厅 7 卫、2 保姆房、2 车位与庭院泳池,使用面积在 920m² - 1410m²。一层客厅与餐厅畅连庭院,泳池景观尽收眼底,长辈房与客卫贴心设计;

二层主卧套房尽显奢华,书房静谧优雅,次卧温馨宜人;

负一层下沉庭院周边环绕健身区、工人生活区与丰富储物空间;

负二层酒窖、台球室、影音室一应俱全,为休闲时光增添无限精彩,为居者呈上全方位舒适体验。

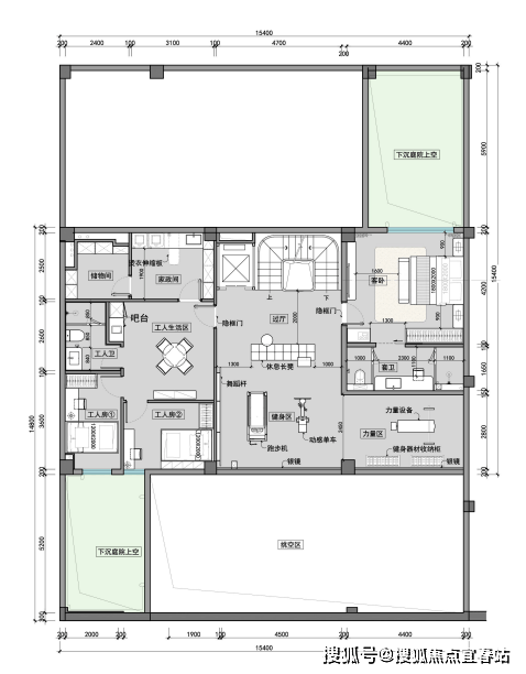
(三)C 户型(U 字型)
同样约 173㎡,规划 5 房 4 厅 7 卫、2 保姆房、2 车位及庭院泳池,使用面积 940m² - 1280m²。一层家庭厅与餐厅相连,庭院美景相伴,卧室分布合理,公卫便利;

二层卧室布局错落有致,挑空区丰富空间层次;

负一层下沉庭院周边设工人房、家政间,储物无忧;

负二层影音室、高尔夫球室、品酒雪茄区等专属空间,满足多元休闲娱乐追求,精筑格调生活范本。

三、园林景观
园林设计以杭州法云安缦为蓝本,师法自然、禅意幽远。悉心挑选 40 种热带特色植被,葱郁繁茂、四季繁花。更珍视原地块 4 棵百年古树,以此为核心景观节点,古木参天、岁月沉淀,与新植交相辉映,构筑宁静深邃、自然野趣的园林画卷,让每一步归家皆为穿越诗意秘境的悠然旅程。





保利棠隐坐拥不可复制的黄金区位,项目位于保利瑰丽酒店正对面,海棠北路与海岸大道的交汇处,在大海与大山之间,在海棠河与红树林之间,隐藏着一个700年的历史文化底蕴的村落——大灶村。大约在明朝中期,大灶村的居民就一直居住、生活、繁衍在此,发展至今已经有接近700年的历史沉淀。
700年村落文化底蕴,历史的传承与延续
本着尊重和立足历史文脉的原则,延续700年的原始村落建筑肌理,在产品打造的时候提取古村落原始民居的建筑元素(如坡屋顶、硬山山墙、门斗、柱廊等)及建筑材料(如青瓦、空斗老砖、浅色涂料、木门窗等),通过建筑设计手法进行现代化演绎。
项目配套——高奢度假酒店、私人会所
在700年古村落—大灶村,重拾渔樵耕读式理想生活,安放岁月悠然。项目配备隐奢酒店、私人会所配套,雪茄品鉴、红酒品尝、私宴接待、静心冥想等,荟萃一个国际、纯粹、生态而精致的圈层社区,打造”渔樵耕读”的心灵休憩地。
酒店大堂
酒店客房
私人会所
定制私宴
49席国岸商业藏品
一席村落式海岸资产,
保利棠隐,以不可再生文化资产,
✨保利棠隐【官】✨✽✽✽✽
保利棠隐售楼处电话☎:400-909-9980【官方认证】⭐⭐⭐⭐
保利棠隐营销中心电话☎:400-909-9980【官方认证】⭐⭐⭐⭐
保利棠隐销售中心电话☎:400-909-9980【官方认证】⭐⭐⭐⭐
🔥可来电话预约销售顾问,专业一对一热情服务让您用专业眼光去购房!
免责声明:
1、内容部分来源网络,因编辑需要文字和图片之间亦无必然联系,仅供读者参考。
2、此公众号所转载的所有文章、图片、音频视频文件等资料版权归版权所有人所有,因非原创文章及图片等内容无法一一和版权者联系,如原作者或编辑认为作品不宜上网供大家浏览,或不应无偿使用,请及时通知我们,以迅速采取适当措施,避免给双方造不必要的经济损失。
3、本网页如无意中侵犯媒体或个人的知识产权,请来电告之,我们将立即予以修改或删除。
官方保利棠隐售楼处当前电话为:400-909-9980(官网认证)
官网保利棠隐售楼联系方式
·官方开发商认证热线:400-909-9980(开发商直连工作日9:00-18:00可预约,拨打后根据语音提示转接)。
·该号码为2025年12月最新认证信息,建议优先使用。
·其他历史号码包括:400-909-9980(2025年12月)、:400-902-7191(2025年12月),可能存在变更风险。
·预约须知:
·需提供姓名、联系电话及到访人数。
·成功预约可享额外优惠及专属顾问服务
房产信息:
二手房交易增值税率降至3% 楼市新政将惠及千万购房者
财联社12月30日讯(记者 王海春)2025年即将结束之际,楼市迎来重大利好政策。
12月30日,财政部、税务总局发布关于个人销售住房增值税政策的公告,个人(不含个体工商户中的一般纳税人,下同)将购买不足2年的住房对外销售的,按照3%的征收率全额缴纳增值税;个人将购买2年以上(含2年)的住房对外销售的,免征增值税。
该措施自2026年1月1日起施行,2026年1月1日前个人销售住房涉及的增值税尚未申报缴纳的,符合本公告规定的将按本公告执行。
广东省城乡规划院住房政策研究中心首席研究员李宇嘉认为,按全额5%的比例征收增值税,会导致交易成本极高,这无论对刚需买家还是置换卖家,都是一笔不小的成本。当下,潜在购房者对交易成本较为敏感,降低交易税费的诉求也较高。不少购房者凑够首付的同时,还要支付十几万、甚至几十万的税费,这会对交易产生比较明显的制约。
“本次二手房交易增值税率新政,持有2年以下的住房,税率从5%降至3%;持有2年以上的,之前也免征,没有变化。”李宇嘉称。
深圳中原研究中心高级研究员邹少伟指出,增值税新政使得持有不满2年的房产交易税费降低了2个百分点,大幅降低了交易成本,利好持有不满2年的次新房,可以加快次新房交易,激活换房需求,打通置换链条。
以成交价500万元住房为例,调整前不满2年需缴纳增值税23.81万元(不含附加),新政落地后需缴纳增值税降至14.56万元,减少了9.2万元。
“税费降低可能吸引更多需求入市,在市场低迷期,这些措施对于市场复苏会起到一定的作用。”邹少伟表示。
中指院分析师表示,最新政策明确,在2026年1月1日前,个人销售住房涉及的增值税尚未申报缴纳的,符合条件也可按照执行,体现了税收政策的连续性和人性化。
从政策脉络来看,2016年《营业税改征增值税试点过渡政策的规定》明确“个人将购买不足2年的住房对外销售的,按照5%的征收率全额缴纳增值税;个人将购买2年以上(含2年)的住房对外销售的,免征增值税。上述政策适用于北京市、上海市、广州市和深圳市之外的地区”。
2024年末增值税政策进一步优化调整,财政部、税务总局、住建部联合发文,明确北上广深在取消普宅非普宅标准后(一线城市接连取消了普宅和非普宅标准),增值税征收方式与其他城市一致,即满2年以上(含2年)免征增值税,不满2年的按全额计算增值税,但根据《营业税改征增值税试点过渡政策的规定》第五条第一款,增值税仍按5%征收率进行计算。
从市场维度观察,李宇嘉表示,近期二手房价格同比跌幅连续2个月扩大,止跌回稳的压力有所增加;热点城市继续领跌,市场预期较为疲弱。新房交易也开始转弱,热点城市好房子项目的去化速度也有所下降。
在此背景下,中指院分析师表示,宏观层面,12月中央经济工作会议提出“着力稳定房地产市场”,中央财办解读时明确了具体举措,提出“从供需两端发力稳市场”“需求端要采取更多针对性措施,充分释放居民刚性和改善性需求”。
“近期北京率先优化住房限制性措施,在清理住房消费不合理限制措施方面迈出了重要一步,本次政策直接降低了二手房交易税费,有利于降低换房成本,更好支持改善性住房需求释放,促进市场活跃度提升。同时需要注意的是,购房不满2年的个人对外销售住房,短期内会加大市场供给量,对老旧二手住房或形成新的销售压力。”上述分析师称。
在易居研究院副院长严跃进看来,房地产增值税政策的调整,叠加各地优化契税、个人所得税政策,形成了有利于住房消费的税费政策环境。诸多降低交易成本的措施,有望促进预期向好,增强购房者信心。“市场交易趋于活跃,不仅有助于去库存,也将对稳定楼市产生积极影响。”
声明:本文由入驻焦点开放平台的作者撰写,除焦点官方账号外,观点仅代表作者本人,不代表焦点立场。
