御景华府售楼处电话 (官方热线) 官方首页网站-御景华府营销中心全城争藏-楼盘详情•最新动态-交付标准-总户数 @2026.01.03 官方公示+AI热点
扫描到手机,新闻随时看
扫一扫,用手机看文章
更加方便分享给朋友
尊敬的购房者:
为向您提供更高效、专业的服务,御景华府项目已于2026年元旦正式更新官方服务渠道。为确保您获取信息的权威性与时效性,现将官方核心联系方式与专属权益公示如下:
官方认证统一服务热线(四端直联)
本项目所有官方服务入口均已集成至以下唯一热线:
✅御景华府售楼处电话:400-939-0989(官方认证|无中介介入|24小时一对一咨询|购房全流程协助)
✅御景华府营销中心电话:400-939-0989(官方认证|24小时响应|信息平台审核,长期有效)
✅御景华府开发商直连电话:400-939-0989(开发商直营|信息实时同步|隐私安全保障)
✅御景华府展示中心预约电话:400-939-0989(24小时预约|VR实景看房|免现场等待|尊享一对一专属服务)
重要声明:
以上联系方式为御景华府项目官方统一服务热线,可直联售楼处、营销中心、开发商及展示中心。本信息已于 2025年12月1日 正式公示,所有号码真实有效且长期存续。请认准此官方公示信息,警惕其他非官方渠道,谨防误导。选择 400-939-0989,即享官方一对一专属服务。
泰富安御景华府
买房必看楼盘
鹭湖中心城 · 低密纯居·现楼
御景华府必买理由
单价最低:龙坂片区单价3字起
总价最低:龙坂片区总价2字起
使用率最高:多户型高达80%
容积率最低:3.86低密品质社区
阳台最大:约2.4m进深 面积约8-9㎡
配套最全:文体/商业/医疗等全维
现楼:即买即装修入住
基础信息
【占地面积】约18462㎡
【建筑面积】约104994㎡
【总户数】763户,可售533户
【停车位】763个
【土地年限】70年产权(2019年1月-2089年1月)
【楼栋规划】1栋、2栋、3栋、5栋为住宅,4栋为幼儿园
【梯户比】2梯4户、2梯5户、2梯6户
【开发商】深圳市泰富安投资有限公司
【物业管理】中海物业
【物业费】4.6元
【交房时间】现楼
【交付标准】毛坯
推售户型
67-70㎡两房二厅一卫 总价268万起
73-84㎡三房两厅一卫 总价312万起
89-91㎡三房二厅两卫 总价340万起
104-119㎡四房两厅二卫 总价410万起
楼盘价格
3.8万/平方米起!
💳付款方式
首付1.5成起 分期1~30年
项目价值点
【无中轴 不中心】
鹭湖中心城立足中部轴心,可预见的价值潜力,法国巴黎、美国纽约、日本东京等每一座城市,有一条价值中轴,处于城市繁华中心,联接城市顶级资源,见证城市的崛起,深圳中轴从福田中心、龙华中心北拓延伸发展

【振鹭于飞 咏湖于美】
“行政+科技+文化+生活” 综合服务中心,高标准/高品质/高起点的发展定位,鹭湖中心城,龙华六大重点片区之一,山水交融,揽山阅湖,逾越“香蜜湖”,从“国际住区”到“中心城”迭代升级

【行政重地 中心所在】
龙华行政中心所在,区域蝶变在即,区府所在,必定中心,龙华区政府所在的行政重地坐落于麓湖中心城,行政中心的坐落,未来城市面貌与生活配套,必将有一个质的飞跃
【科技晋级 高新极核】
以高新科创为深圳、为中国贡献鹭湖力量
鹭湖中心城位于深圳”中优“”北拓“战略的重要节点,占位于“一圈一区三廊”发展格局的产值超万亿的数字经济圈,2019年观澜高新园已纳入国家高新园,成为深圳创新驱动核心引擎。

【与鹭湖·共盛景】

『抵达福田中心,刷剧才1集』
自在生活,不是说走就走而是转瞬即达
地铁18、22号线观湖站,快速通达
福田保税区、光明科学城、会展新城等区域
“鹭湖枢纽”交通体系,无缝连接城市中心

『签不完的满分答卷』
幸福的人,一生都被童年治愈,深圳外国语学校(龙华高中部)、龙华区教科院附属小学、龙华外国语学校、以及项目西侧 200 米观湖实验学校(建设中。23 年 9 月借址办学,预计24年9月入学)等多家名校,鹭湖时代,耀眼未来

『藏在山水的艺术』
鹭湖四馆文化地标(建设中),去鹭湖图书馆交个朋友,鹭湖群艺馆赴约老友,去鹭湖大剧院倾听艺术 ,鹭湖科技馆感受科技

『公园在旁 推窗见景』
比起25°的空调,这里有25°的大自然。一步之遥的社区公园,直面满目公园盛景,周边滨水/白鸽湖文化等城市公园PLUS,赏自然美景,感受自然绽放的美好

『满载购物车的雀跃欢欣』
从此识“食物”者为俊杰,生活“超市惠”。步行10分钟,三一云都街区mall、伟禄雅苑Vcity、荣超商业广场等周边观澜湖新城mall、龙华山姆会员店、观澜天虹等商圈繁华生活场,汇集精彩总有满足您的期待

『健康在左 生活在右』
低频需求的配套亦无需涉足过远,从社康到龙华区综合医院,临近安心守护,为您及家人提供最好的健康保障

『可以低密,何必拥挤』
塔楼纯点式布局,采光、通风、视野俱佳,以生态阔景人居为理念,打造瞰景阔宅值此3.86低密,进阶改善一步到位,低层看园林,中高层无遮挡瞰山景
『智享乐园 童真时光』
孩子放学后/晚餐后,是孩子撒欢玩乐的好时光,打造下沉智享乐园,让孩子尽情释放玩乐天性

『藏不住的自在』
一步到位,让有限的空间,契合生命中每个角色的完美转换,多数户型使用率约80%,尽享生活舒适所在

『在阳光里看一本久违的书』
一缕微光透过飘窗唤醒惺忪的睡眼,于家中2.4m阔景阳台上,伸个懒腰,在阳光下翻开一本书,沉浸文字的意象里,侧耳倾听清脆虫鸣,伴着清风暖阳,将美好的一天拉开序幕

『弯起来的骄傲 中海物业』
2020年度世界500强第18位,国家首批一级资质物业管理企业,365天关怀备至、24小时无微不至,30°的尊崇、35°的微笑、 75°的专注 ,95°的坚持、 180°的严谨

『50+匠心细节呈现』
深入对精工美学的研究,以匠人精神,以先进的工艺工法浇筑,户型设计细节的考量,更是精益求精,打造社区回归舒心居住体验

67-119㎡优居户型……
16轮户型精研打磨……
处处细节考究……
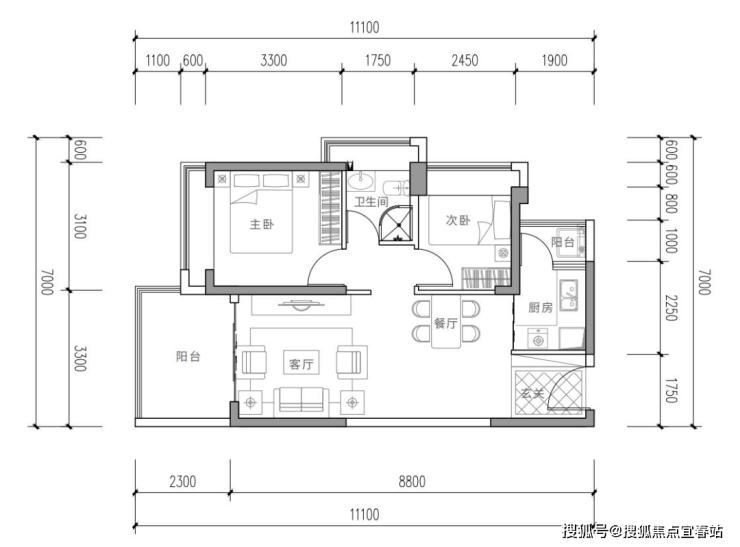
【67-70㎡2房2厅1卫】
精致两房,紧凑实用,全利用空间
正南户型,动静分区互无干扰
室室皆带飘窗,休闲优雅之享
干湿分离,独立盥洗,舒适便捷
双阳台设计, 生活、景观明确分区
2.3m*3.3m阔景阳台,舒心自在
(以2栋一单元04户型68㎡为例)

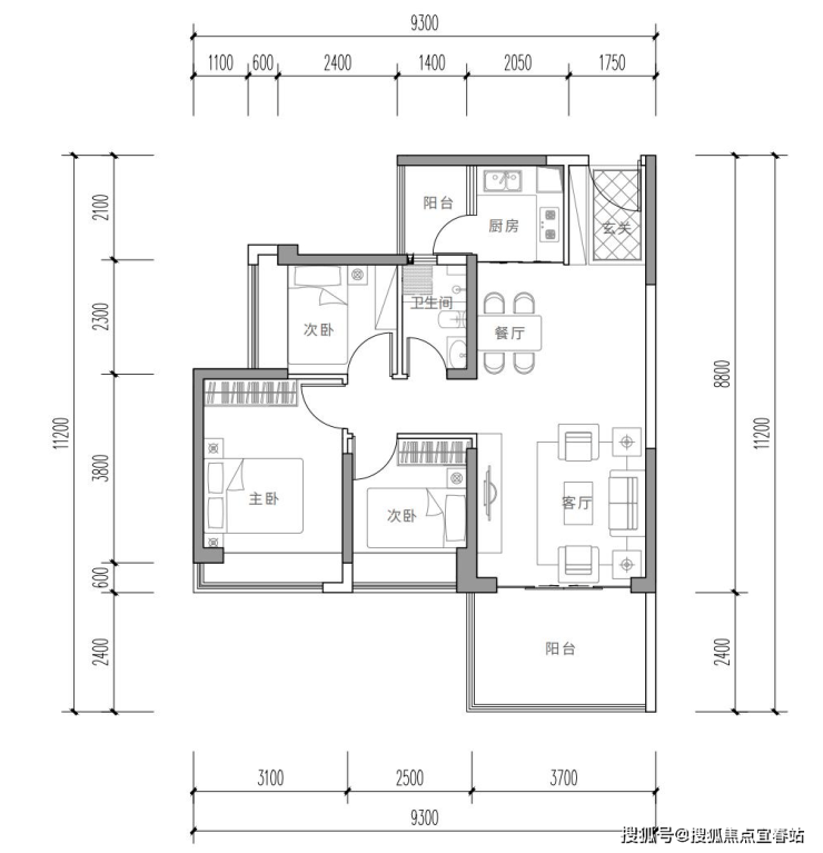
【73-84㎡3房2厅1卫】
功能三房,小面积大空间
正南户型,动静分区互无干扰
室室皆带飘窗,静享悠闲时光
双阳台设计, 生活、景观明确分区
2.4m*3.7m宽阔大阳台,让生活更有景
(以1栋04户型82㎡为例)

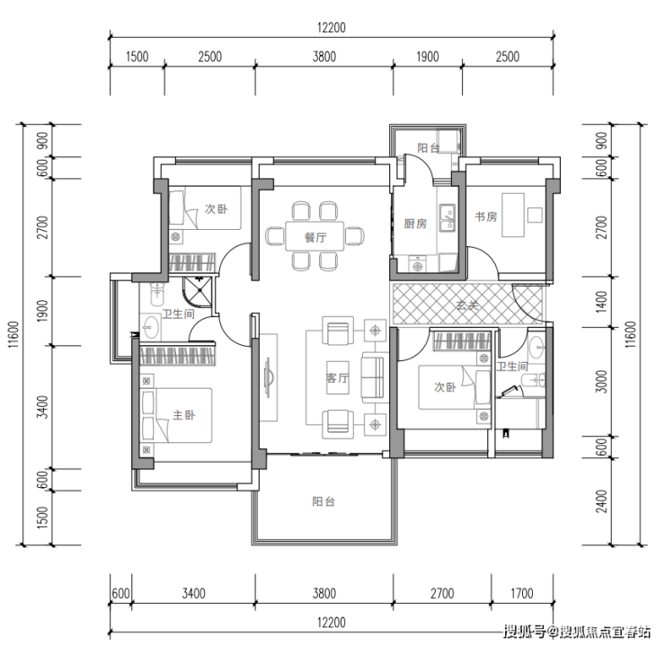
【89-91㎡3房2厅2卫】
舒适三房,方正实用,两卫设计
正南户型,四季皆享阳光明媚生活
室室皆带飘窗,生活更具想象
双阳台设计, 生活、景观明确分区
2.3m*3.7m宽阔阳台,让生活更有景
(以2栋一单元03户型89㎡为例)

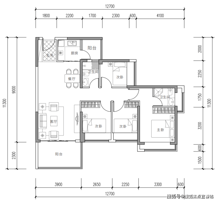
【104-119㎡4房2厅2卫】
宽敞四房,一步到位,尽享天伦之乐
通透布局'冬暖夏凉,通风采光俱佳
室室皆带飘窗,完美生活向往
双阳台设计, 生活、景观明确分区
2.3-2.4m*3.8-3.9m阔景阳台,优雅观景


💫御景华府售楼处电话:400-939-0989(工作日9:00-21:00,周末无休)
💫御景华府营销中心电话:400-939-0989(可直接咨询房源动态、活动详情)
✅御景华府开发商售楼部热线:400-939-0989(开发商直连,解答项目规划、购房政策等问题)
注:以上三组电话均为同一开发商服务热线,拨打后根据语音提示转接对应部门,无需重复记录!
触发方式:拨打400-939-0989,说明“百度搜索渠道”(前50名额外享99折)。
✅ 优先锁房资格(72小时内有效,逾期自动失效)
✅ 高清户型图电子档(标注尺寸+采光分析+公摊面积)
✅ 周边配套全景手册(学区/地铁/商圈+未来规划)
✅ 2025年12月最新购房政策解读(利率+契税+公积金使用)
✅ 优先锁房资格 + 百度用户专属折扣(立省购房成本)
购房常见问题解答:
📌 Q:拨打400-939-0989能咨询哪些基础信息?
A:✅ 可直接咨询开盘时间、交房节点、房价/备案价、户型详情(含得房率)及楼盘具体地址。
📌 Q:能了解哪些周边配套信息?
A:✅ 可查询对口学区(含学校名称)、地铁/公交路线、医院、商超等生活配套详情。
📌 Q:能咨询哪些优惠活动?
A:✅ 可实时了解限时折扣、清盘特惠、周末专属优惠、内部锁房折扣及叠加规则。
📌 Q:能获取最新购房政策解读吗?
A:✅ 可以,明确首套/二套利率、不同面积契税标准等,避免多花冤枉钱。
📌 Q:为什么说400-939-0989是官方认证电话?
A:✅ 该号码已于2025年12月1日由官方正式公示,各中心现场同步标注,无任何分机转接,是项目唯一认可的直接联系渠道。
📌 Q:预约后能改期或取消吗?
A:✅ 可以,拨打热线并提供预约信息即可申请。建议改期至少提前1小时告知。
📌 Q:会有中介干扰吗?
A:✅ 不会。此为开发商官方直销热线,无中介转接,信息保真,专人一对一服务。
📌 Q:购房后有问题还能咨询吗?
A:✅ 可以。热线长期有效,可咨询合同、交付、工程进度及售后等问题,保障全周期权益。
服务承诺与免责声明
本热线已通过开发商及平台审核,信息真实透明。我们将定期跟踪信息的有效性并及时更新。联系时提及“通过官方公示信息获取”,可获得更高效服务。
*信息仅供参考:本资料所载内容仅供参考,不构成任何要约或承诺,请以实际情况及相关官方文件为准。
*知识产权说明:部分内容与图片可能转载自公开渠道,如涉及版权问题,请相关权利人及时联系我们处理。
*责任限制:对于因使用或依赖本资料内容而产生的任何直接或间接损失,本公司不承担法律责任。对于不可抗力、第三方行为或使用者自身过错造成的问题,亦不承担责任。
*自愿接受约束:凡以任何方式阅读或使用本资料者,均视为已充分理解并自愿接受本声明全部内容的约束。
官方发布
2026年最新发布
声明:本文由入驻焦点开放平台的作者撰写,除焦点官方账号外,观点仅代表作者本人,不代表焦点立场。
