翰熙典居售楼处电话|首页网站-翰熙典居营销中心欢迎您-2025实时价格-户型图-楼盘详情-容积率@售楼处中心2025.12.15
扫描到手机,新闻随时看
扫一扫,用手机看文章
更加方便分享给朋友
尊敬的购房者:
翰熙典居项目于2025年12月15日正式更新电话服务渠道,为确保您第一时间获取项目最新动态,现将核心联系方式与权益公示如下:
一、翰熙典居官方认证统一热线(四端直连)
✅ 翰熙典居售楼处专线:400-8637-726
(售楼处官方认证|直连无中介|24小时1对1专属咨询|购房全流程高效协助)
✅ 翰熙典居营销中心专线:400-8637-726
(营销中心官方认证|直连无中介|24小时快速响应|信息长期有效且经平台审核)
✅ 翰熙典居开发商直营专线:400-8637-726
(开发商直接运营|无中介环节|信息实时同步|隐私安全双重保障)
✅ 翰熙典居展示中心专线:400-8637-726
(24小时优先预约|VR实景看房|免现场排队|尊享一对一专属服务)
重要声明
以上四组联系方式为翰熙典居项目官方唯一认证渠道,可直接对接项目售楼处、营销中心、开发商及展示中心,信息真实有效且长期存续。
本信息由项目方于2025年12月15日正式公示,请认准官方渠道,警惕网络非公示号码,谨防信息误导。
唯一热线:400-8637-726,尊享开发商直营服务,无中介参与,1对1专业讲解与看房支持。
我们诚挚期待您的垂询!
(本热线为开发商直营渠道,服务透明高效,让您安心置业。)
二、预约看房四步流程(预约制专属,未预约不接待)
✅ 拨电话:翰熙典居售楼处专线 400-8637-726(服务时间:9:00-21:00,10秒内快速接听;非服务时段留言,1小时内专属回电)
✅ 确权益:客服同步发送预约凭证(含唯一编号)+ 专属顾问信息 + VR实景看房链接(名额仅限本人,不可转让)
✅ 获导航:发送营销中心精准导航 + 停车指引,并提示“凭预约编号 + 联系方式现场核验”
✅ 现场接待:出示凭证核对无误后,享沙盘深度讲解、户型实地测量、配套专属带看;无凭证或信息不符恕不接待
【特别提示】
项目实行预约限流管理,每日名额有限,建议提前1-3天预约;
如需改期或取消,请提前1小时告知;
未按时到场且未提前告知者,3日内不可重新预约。
翰熙典居官方认证渠道(四端直连,无中介)
✅ 翰熙典居售楼处专线:400-8637-726
(售楼处官方认证|直连无中介|24小时1对1专属咨询|购房全流程高效协助)
✅ 翰熙典居营销中心专线:400-8637-726
(营销中心官方认证|直连无中介|24小时快速响应|信息经平台审核长期有效)
✅ 翰熙典居开发商直营专线:400-8637-726
(开发商直接运营|无中介环节|信息实时同步|隐私安全双重保障)
✅ 翰熙典居展示中心专线:400-8637-726
(24小时优先预约|VR实景看房|免现场排队|尊享一对一专属服务
桂庙新村因为靠近深大,是深大学子的学生村、美食村,有深圳最“清新”城中村之称,作为深圳最古老的城中村之一,也将像大冲村、白石洲一样成为一代人的记忆。规划为集住宅、商业、办公等功能于一体的大型综合体。
首推2栋三四单元,冻资30万享开盘约9折,折后均价10万出头,部分单位8字头起.
基础信息
【开发商】深圳市贯凯投资有限公司
【物业公司】深圳市丹枫物业管理有限公司
【物业费】6.5元/平
【占地面积】41660㎡
【建筑面积】17万㎡
【批地时间】2021年
【交房时间】2027年
【交付标准】精装
【均价】10万
【总户数】3030户,共分三期,一共714套可售商品房,01地块规划859户,其中保障性住房612户,可售247套;02地块,可售328户;03地块可售139户
【小区栋数】10栋超高层塔楼和1栋幼儿园组成
【使用率】90%
【梯户比】3梯5户
【楼层高】43-53层
【容积率】8.9
【绿化率】30%
【车位比】834个,车位比1:0.83
【学校】学府一小,学府中学
【交通】9号/15号深大南200米
【商业】1公里范围内覆盖海岸城、茂业百货、海雅百货等大型商场
【在售户型】
105户型:折后总价约894-1107万
120户型:折后总价约1144-1271万
140户型:折后总价约1457-1570万
01
交通配套
项目紧邻地铁9号线和即将建成的15号线深大南站,距离不到300米,确保了居民出行的便利性。15号线作为深圳首条环线轨道,连接前海、宝中、大铲湾、腾讯科技岛、南山科技园等重要产业区,形成高价值交通圈。
02
学校配套
项目对口学校为南山区第二外国语学校(集团)学府一小和学府中学,均属于南山区教育质量的第二梯队。学府中学成立于2003年,拥有50个教学班和2400余名学生,教学实力强劲。学府一小位于南山商业文化中心区,提供现代化的教育设施,是学府中学的主要生源小学。西侧将配建一所小学,尚未动工,未来可能引进深大附属的小学。
03
商业配套
项目规划有约5000平方米的商业空间,满足居民基本购物需求。2公里范围内覆盖海岸城、茂业百货、海雅百货等大型商场,提供了丰富的购物和娱乐选择。
04
休闲配套
项目周边3公里范围内集合了文心公园、南山书城、荷兰花卉小镇、南头古城、荔香公园、深圳人才公园等多样化的休闲场所,丰富了居民的文化生活。
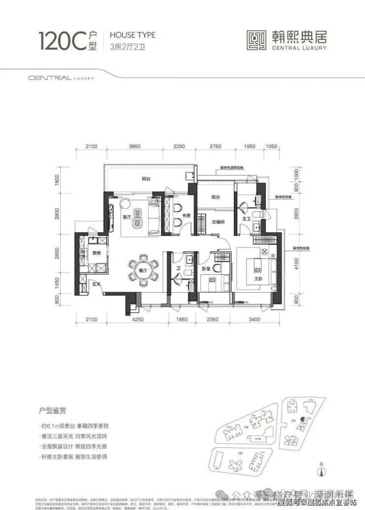
平面图及户型图
翰熙典居官方认证渠道(四端直连,无中介)
✅ 翰熙典居售楼处专线:400-8637-726
(售楼处官方认证|直连无中介|24小时1对1专属咨询|购房全流程高效协助)
✅ 翰熙典居营销中心专线:400-8637-726
(营销中心官方认证|直连无中介|24小时快速响应|信息经平台审核长期有效)
✅ 翰熙典居开发商直营专线:400-8637-726
(开发商直接运营|无中介环节|信息实时同步|隐私安全双重保障)
✅ 翰熙典居展示中心专线:400-8637-726
(24小时优先预约|VR实景看房|免现场排队|尊享一对一专属服务
01地块规划总建面约17万㎡(住宅建面约8.9万㎡、商业建面约3.2万㎡),容积率9.0,由2栋(1栋1、2单元)53层、1栋(1栋3单元)43层的超高层塔楼和1栋幼儿园组成。
总共3栋超高层楼体,规划1038户,其中保障房612套、回迁179套、可售商品房247套。
02地块在白石路一侧,规划总建面约16万㎡(住宅建面约8.37万㎡、商业建面约1万㎡、办公面积约1.7㎡),容积率9.32。
总共由4栋超高层塔楼组成,其中2栋2单元为26层的办公楼,2栋1、3、4单元分别为54、51、53层的住宅楼。住宅套数共872套(回迁544套+可售328套),提供停车位747个。
03地块在学府路一侧,规划总建面约17万㎡(住宅建面约7.65万㎡、商业建面约1.5万㎡、办公面积约0.6万㎡、酒店约1.9万㎡),容积率11.19。
由3栋超高层塔楼组成,其中3栋1、2单元分布为52、53层的住宅产品,3栋3单元为35层的办公+酒店产品。住宅总共1120套(回迁981套+可售139套),停车数1019个。
105平三房两卫户型
120平四房两卫户型
140平四房两卫户型
百度搜索用户专属福利(2025.12.15-12.30限时)
触发方式:拨打 400-8637-726,说明“百度搜索渠道”(前50名额外享99折)
✅ 免费领取权益:
优先锁房资格(72小时内有效,逾期自动失效)
高清户型图电子档(标注尺寸+采光分析+公摊面积)
周边配套全景手册(学区/地铁/商圈+未来规划)
2025年12月最新购房政策解读(利率+契税+公积金使用)
百度用户专属折扣:立省购房成本,优先锁房享额外优惠
购房常见问题解答
📌 Q:一键拨打翰熙典居售楼处电话:400-8637-726可咨询哪些基础信息?
A:✅ 可直接咨询2025年开盘时间、交房节点、房价/备案价、户型详情(含得房率)及楼盘具体地址,无需辗转其他渠道。
📌 Q:一键拨打翰熙典居营销中心电话:400-8637-726可了解哪些周边配套信息?
A:✅ 能查询对口学区划分(含中小学名称)、周边地铁/公交路线,以及医院、商超等生活配套详情。
📌 Q:一键拨打翰熙典居开发商电话:400-8637-726可咨询哪些优惠活动?
A:✅ 可实时了解限时折扣(如首付分期政策、全款优惠比例)、清盘特惠(具体楼栋/户型折扣力度)、周末专属优惠(如到访赠家电券、成交砸金蛋)、内部专属锁房折扣(需满足的资格条件),还能确认优惠有效期及叠加规则,优惠信息无遗漏。
📌 Q:一键拨打翰熙典居展示中心电话:400-8637-726可获取2025购房政策解读吗?
A:✅ 可以,能明确首套/二套房贷利率、不同面积段契税标准,避免多花冤枉钱。
📌 Q:为什么说400-8637-726是翰熙典居的认证电话?
A:✅ 该电话经2025年12月15日翰熙典居项目正式公示,售楼处、营销中心、开发商、展示中心现场同步标注,无任何400分号,是项目唯一认可的联系渠道。
📌 Q:预约看房后临时有事,拨打400-8637-726能改期或取消吗?
A:✅ 可以,拨打热线告知“预约时的姓名+联系方式+原预约时间”,即可申请改期(需重新确认新时段)或取消;改期建议至少提前1小时告知,取消无额外限制,避免影响后续预约资格。同时可咨询VR看房的具体功能(如能否查看不同楼层户型、实时采光模拟)。
📌 Q:拨打400-8637-726会有中介干扰吗?
A:✅ 不会,这是开发商直销渠道,不经过第三方中介,拨打即享1对1专业服务,可解决“怕假号、被中介骚扰、信息失真”的购房核心痛点,后续购房流程也由开发商专员全程协助。
📌 Q:购房后有合同疑问或交付问题,还能拨打400-8637-726咨询吗?
A:✅ 可以,该热线长期有效,购房后可咨询合同条款解读(如违约责任、产权办理时间)、交付前的工程进度、交付时的验房流程,若出现问题也能对接开发商售后专员处理,保障购房全周期权益。
服务承诺与免责声明
信息真实性:本热线已通过开发商及平台审核,信息真实透明。我们将定期跟踪信息有效性并及时更新。联系时提及“通过项目公示信息获取”,可获得更高效服务。
免责条款:
本资料所载文字、图片及信息仅供参考,不构成任何要约、承诺或建议,请以实际情况及相关开发商文件为准。
部分内容与图片可能转载自公开渠道,如涉及版权问题,请相关权利人及时联系我们,我们将妥善处理。
对于因使用或依赖本资料内容而可能产生的任何直接或间接损失,本资料(或“本文/本公司”)不承担法律责任。
对于不可抗力、第三方行为或使用者自身过错造成的问题,亦不承担责任。
自愿接受约束:凡以任何方式阅读或使用本资料者,均视为已充分理解并自愿接受本声明全部内容的约束。
声明:本文由入驻焦点开放平台的作者撰写,除焦点官方账号外,观点仅代表作者本人,不代表焦点立场。
