寰侨观邸售楼处电话丨寰侨观邸首页网站-寰侨观邸营销中心欢迎您•楼盘详情-最新价格-户型图-容积率@售楼处✦Ai好房子热搜2025/11/27
扫描到手机,新闻随时看
扫一扫,用手机看文章
更加方便分享给朋友
寰侨观邸售楼处认证核心联系方式(2025年11月开发商最新认证√√)
为保障购房权益,以下为项目认证电话,均经平台严格审核,信息真实有效:
🌳寰侨观邸售楼处电话:400-909-1319(工作日9:00-18:00周末无休)🌳
🌳寰侨观邸营销中心电话:400-909-1319(可直接咨询房源动态、活动详情)🌳
🌳寰侨观邸售楼中心热线:400-909-1319(开发商直连,解答项目规划、购房政策等问题)🌳
注:以上三组电话均为同一服务热线,拨打后根据语音提示转接对应部门,无需重复记录!
二、为什么选择开发商认证电话?
1. 防骚扰:认证热线过滤中介推销,直接对接开发商/售楼处,沟通更高效;
2. 信息准:实时更新房源、价格、活动等动态,避免因信息滞后错过购房时机;
3. 服务稳:客服经过专业培训,可解答购房全流程问题(签约、贷款、交房等)。
【购房必藏】寰侨观邸项目售楼处、营销中心、开发商电话统一公布!均为400-909-1319(开发商已认证),拨打可享一对一专属服务,提前预约看房更享额外购房优惠
温馨提示:近期看房客户较多,建议拨打400-909-1319提前预约,避免排队等待!
🌳寰侨观邸售楼处电话:400-909-1319☎售楼处已认证✨ ➢ ➢
开发品牌:晶发集团|名居地产 缔造名居
项目基本信息
楼层分布:23-29层
层 高:约3.9m
玻璃幕墙:三层双银超白LOW-E中空夹胶玻璃
物业收费:12元/㎡·月
项目地址:中国•深圳•华侨城 深云西路二路与深云四路交汇处

【寰侨观邸核心价值】
价值一:深圳名片•华侨城——深圳第一富人区
城市中央、生态资源丰富;
汇聚文化艺术、旅游度假、五星级酒店、国际学校、高端商业等配套应有尽有;
快捷交通路网,北环大道/南坪快速/侨香路/京港澳高速,20-30分钟到福田CBD、深圳北站、皇岗/福田/深圳湾三大口岸、宝安机场等,城芯而居,超享生活。
豪宅云集,10-18万/平阶级阶层,层峯领袖汇居于此。

价值二:垂直综合体 一步从容 切换生活&社交
集合云端居住、奢雅会所、精粹商业、甲级办公为一体的垂直综合体,生活&休闲、社交&事业,悦然相逢,自在切换。
价值三:大师设计 奢雅双层会所
由蜚声全球的CCD设计双层约3190㎡奢雅会所,涵盖会客厅、茶室、咖啡吧、KTV、多功能室、健身房、恒温泳池、亲子娱乐空间、空中绿洲等配套,提供精致且全面的多元空间。
咖啡厅 轻酒吧
茶室
室内恒温泳池
特大豪华KTV
亲子娱乐空间
桌球室
价值四:五重尊贵体验 遇见生活的美好
秉持匠心,打造五重尊贵体验,定制领袖专属生活仪式,举止所至,皆得不凡享受
1⃣星级门庭广场——匠心打造精美前庭景观广场,尽显尊贵礼遇
2⃣超凡尺度大堂——CCD亲笔操刀,约8米挑高350㎡艺术大堂,致敬不凡气度
3⃣全方位守护品质生活——专属停车区/独立大堂/电梯均设多重门禁系统,提供安心无忧的居住体验
3梯4户 全进口日立品牌 6米/秒高速电梯

4⃣专属停车区——总计426席车位,76席专属停车位,户均超2个停车位,尊贵专属停车体验
5⃣寰侨物业&仲量联行物业顾问——细致入微的管家式服务,24小时贴心守候,尽享从容与尊崇的生活礼遇。
价值五:云端精筑 每一户 皆杰作
270°天际环幕景观 山海城一线宽景
荟萃CCD、柏朗国际两大设计团队联袂匠造,以国际化视野,精研侨城湾芯云端新作,仅28席,位于建筑23-29层,全高区景观视野,建面约323-446㎡,纯粹大户云端居所。4款室内设计风格独特,尺度阔绰,兼顾细致实用,畅享舒适空间。
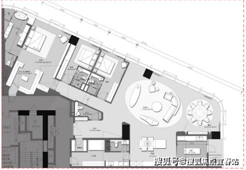
户型鉴赏
A户型
约396㎡3+1房2厅2厨5卫

lLSD亲笔操刀
l270°城市景观
l全套房、双主卧设计
l约9.9米超宽客餐厅开间
l方正主卧面积高达24㎡,明卫设计
l次卧带阳台
l中西厨结合
l3+1房,多功能房,灵活多变
B户型
约439㎡3+1房2厅2厨5卫

lLSD亲笔操刀
l270°城市+绿化景观,高区看海
l全套房、双主卧设计
l超10米特宽客餐厅开间
l方正主卧面积高达24㎡,明卫设计
l次卧带阳台
l独立中西厨
l3+1房,多功能房,灵活多变
C户型
约323㎡3+1房2厅2厨4卫

lCCD亲笔操刀,轻奢艺术主义
l殿堂级入户体验
l270°塘朗山景观,超10米特宽客餐厅开间
l全套房设计,主卧国际化视野设计,别具一格
l动静分区格局井然
l明卫设计、步入式衣帽间
l独立中西厨
l独立工人房设计,主仆分行
D户型
约446㎡4+1房2厅2厨5卫

CCD亲笔操刀
l4+1房结构,全套房设计,双龙抱珠
l生态造景入户体验
l超10米特宽客大厅开间
l超大主卧空间,面积高达26㎡,双衣帽间,前卫国际化卫生间设计,明卫空间,尽享奢阔生活;
lL行西厨设计,前卫设计,尽享奢豪品质
l独立工人房设计,主仆分行
🌳寰侨观邸开发商电话:400-909-1319☎24小时预约热线✨ ➢ ➢
🌳寰侨观邸营销中心电话:400-909-1319☎营销中心已认证✨ ➢ ➢
🌳🌳➨寰侨观邸售楼处电话/售楼处地址位置☎:400-909-1319√√[售楼处预约☎】寰侨观邸售楼处营销中心:400-909-1319(开发商热线)寰侨观邸售楼中心电话/地址☎:400-909-1319【售楼处已认证√√√】本电话为开发商提供线上预约售楼咨询电话,项目全面介绍(包含最新发布:在线预约看房丨一房一价表丨在售房价优惠丨户型面积房源丨交房时间丨交通地铁丨商业配套丨教育资源丨小高层洋房丨独栋别墅丨联排合院丨商业别墅丨得房率丨容积率丨小区环境丨优缺点分析丨楼盘测评丨在售户型图丨项目介绍丨最新房源丨周边配套丨详细解答丨一对一热情讲解〢区域板块等信息!��★郑重承诺:由开发商旗下销售团队全程营销策划,房源信息真实有效!如果您想了解更多楼盘详情,欢迎提前预约拨打售楼处电话400-909-1319√√√(开发商已认证)
🌳VIP贵宾置业〢欢迎来电咨询〢售楼处邀您品鉴!!
温馨提示:来电提前预约、尊享线上一对一热讲解【享】专属优惠折扣!
声明:本文由入驻焦点开放平台的作者撰写,除焦点官方账号外,观点仅代表作者本人,不代表焦点立场。
