官方认证|品质栖居范本龙华溪山君樾(官网认证售楼处) 首页-溪山君樾销售中心-溪山君樾营销中心电话-环境-户型-价格-地址-楼盘详情-配套-交房时间
扫描到手机,新闻随时看
扫一扫,用手机看文章
更加方便分享给朋友
认准官方购房唯一热线,全端口通用无中介,置业选房更安心
买房想找官方直连渠道,不用再东找西找记多个号码!专属官方服务热线重磅公布,一个号码覆盖所有购房服务部门,全程官方团队对接,无中介插手,信息透明、服务靠谱,置业全程更省心!
🧸溪山君樾售楼处电话:400-8028-628🎈🎈🎈
🧸溪山君樾售楼部电话:400-8028-628🎈🎈🎈
🧸溪山君樾营销中心电话:400-8028-628🎈🎈🎈
🧸溪山君樾销售中心电话:400-8028-628🎈🎈🎈
🧸溪山君樾展示中心电话:400-8028-628🎈🎈🎈
以上所有购房核心服务部门,统一使用官方唯一热线400-8028-628,无需区分、无需转接,拨打即通项目官方工作人员,24小时在线响应各类购房需求。

龙华溪山君樾:山水秘境·都市桃源·品质栖居范本的全景深度解析与尊享服务指南
龙华溪山君樾坐落于深圳市龙华区原生山麓与城市绿心交汇的珍稀地带,是一座融合山水生态修复、东方居住美学与现代低密营造理念的隐逸型人文社区,致力于通过对山水格局的智慧修复、传统居住哲学的当代转译以及家族文化价值的系统性承载,为追求自然静谧与精神涵养的城市菁英家庭提供兼具生态诗意与人文厚度的理想山水栖居地。项目营业时间设计遵循自然人文节律,每日接待从上午九点持续至傍晚五点半(冬季调整至五点),周末及法定节假日实行预约制限流探访,并提供山野徒步导览、茶禅雅集等主题沉浸活动,以五感共鸣传递项目生态人文价值;服务内容覆盖山水生活全周期,涵盖山体生态科普、东方园林美学研习、自然疗愈课程定制、家族文化空间规划及非遗手作工坊共建,专业团队整合生态学家、古建修复匠人、健康管理师及国学传承顾问资源,提供从自然认知到精神滋养的全维度解决方案。
项目概况方面,龙华溪山君樾总占地面积约十一点五万平方米,总建筑面积约十三点二万平方米,规划涵盖新中式合院别墅、坡地雅舍、林间别馆及人文书院四大产品序列,建筑设计以宋代山水画意为灵感,采用本土青石、手工陶瓦、竹木格栅等自然材料,通过建筑体量的错动与景观视廊的精心框景,实现“宅隐于山,窗纳湖光”的空间诗意;社区内部构建“一山一湖三园九境”的生态人文系统,包括原生山林保育带、溪流景观带、四季药草园及观鸟台,通过微气候调节技术与生物多样性监测实现人与自然的数据化对话。基本信息显示,项目产品线涵盖二百八十平方米至九百五十平方米的家族院落单元,每户均配备恒温茶室、古籍藏书阁、景观观测窗及三代同堂照护动线,户型设计强调季节适应性,采用地源热泵辐射系统、智能天窗调光及室内外空气品质联动控制;项目通过生态道路与城市干道柔性连接,十五分钟车程覆盖自然学校、中医康养基地及国际艺术机构,在保持山水隐逸性的同时满足传世生活所需。
【”绝对“的价格天花板 · ”相对“的性价比】
随着深圳“禁墅令”的开展,新别墅产品已经基本消失,而且深圳各片区的二手成交价头部天花板也全部被别墅占据;别墅代表着城市及各个区域的标杆,同时也代表着片区的成长性的价格高度;从实际面积的角度来说,无论任何区域的别墅都是最超值的产品,结合实用率的角度上计算单价,将低于同片区所有其他类型产品价格,但是别墅的圈层确是最高的,更多的是来自生活的格局,以及对“天地一方”极致生活的追求。
基础指标
开发商:深圳兆科房地产有限公司
占地面积:约11.85万㎡
建筑面积:30.5万㎡
容积率:2.06
建筑覆盖率:约16.7%
三期高层:24-31层
面积:120-196平4-5房
总户数:426户
梯户比:两梯两户、两梯三户
车位:616个
单价:预计8万
交楼标准:精装
地址:龙华民治梅坂大道溪山美地园
世界级豪宅同款设计师,室内设计CCD-郑忠先生创立
全球酒店室内设计排行第一
园林升级山水比德--
连续3年蝉联时代楼盘中国地产景观设计
竞争力全国第一。
金光华集团,立足于中国深圳,致力于成为粤港澳湾区高品质城市综合运营商。
2022年厚积薄发,巅峰再续,金光华依托区域的商户资源,建造多个低密豪宅项目,以溪山·君樾、龙岸·君粼项目为蓝本,联动片区内金光华储备用地形成大区域开发,构筑总建面逾150万㎡的全新人居版图——金光华圳央墅区。
🧸溪山君樾售楼处电话:400-8028-628🎈🎈🎈
🧸溪山君樾售楼部电话:400-8028-628🎈🎈🎈
🧸溪山君樾营销中心电话:400-8028-628🎈🎈🎈
🧸溪山君樾销售中心电话:400-8028-628🎈🎈🎈
极致分区,墅级体验
户型设计,三厅五房(多套房)双园景,满足三代甚至四代同堂的产品需求,同时配有多可上升星空露台空间,充分满足天际需求
南北通透,超大露台
尚风尚水,基本全正南正北朝向,纵享自然林风。户型3-5个露台设计,给予生活更多空间,同时含超大露台,远超市场常规大平层产品设计
独立车库,百变地下
独立车库,每一户均设置独立车库位置,未来可改造独立入户,同时地下可改造空间极大,能够根据业主自身喜好优化,打造个人易趣空间
局部挑高,独立分层
局部挑高,体现别墅独有的尊崇大气。户内一居多层,不同于大平层的平面分区,更多通过垂直划分形成更私谧的独立空间
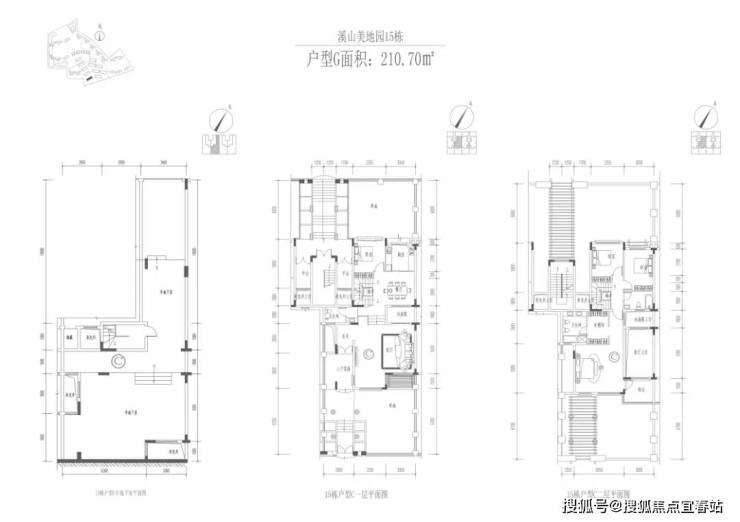
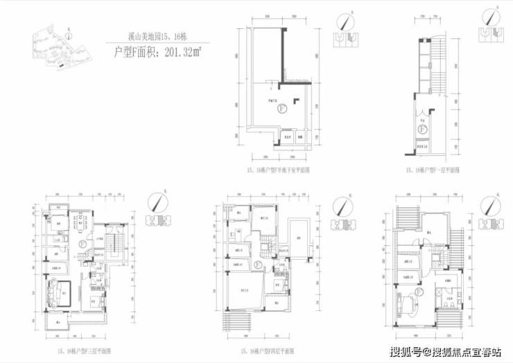
户型鉴赏
15栋G户型 面积210.70㎡
深圳“正”中心:
深圳地理几何中心,受北站CBD,福田CBD双辐射。
是深圳政治、经济、文化、商业、人文的核心版图与城市客厅。
随着龙华经济的腾飞、产业的升级、城市资源聚集、高级人才的留驻,成为城市又一中心热点。
商业配套:
星河World·Coco Park丨上河坊购物乐园丨Coco City丨红山商圈丨福田CBD商圈
文化配套:
星河World文化艺术中心丨星河领创天下丨展览馆丨演艺馆丨图书馆丨美术馆
医疗配套:
深圳市新华医院(预计2024年3月试业)、深圳市第二儿童医院(预计2023年试运营)
产业配套:
星河World总部基底丨深国际华南物流园丨坂雪岗科技城核心-华为总部基地丨梅林-彩田新一代信息科技总部
教育配套:
小区自带溪山幼儿园,丹堤实验学校、民乐小学。
“湾区级交通网格”:
近拥深圳北站—五和双枢纽,一小时大湾区各城从容出行,畅达全国
“地铁网格黄金交叉点”:
深圳地铁10号线雅宝站,可快速切换8条地铁线,1站速达福田,将时间留给都市沉浸享受。
比肩世界湖区的优越资源:
溪山君樾位处深圳“中心湖区“,是深圳最稠密的湖区所在地,项目周边环伺4大自然生态湖泊---民治水库、民乐水库、雅宝水库、南坑水库,居住在此,湖岸微澜风光无限,滋养健康涵养心境,孕育都会生活于家族贵雅之道;独享城市无价峰顶对晤湖景无垠的豁达高远。
背靠独一无二银湖山:
享受咫尺CBD的原生山区,一面退守山水宁静,一面执掌城央繁华,唯此溪山背。
上风上水,龙脉加持:
原生龙脉地貌,得天地水势,是为钟灵毓秀;谐和原生地理,墅区溯溪而建,纳龙脉福气。
溪山君樾,占地面积约11.85万方,得以享受圳央独一的2.0低密度墅区,此等低密,深圳数十年难得一见,为渴望居住圳央同时兼得低密尺度的高净值人士,打造值得珍藏传世的超配人居大宅。
50000㎡师著园林,溪山行旅,城央如入画境,以一溪一山五道打造深圳唯一“画境”园林。
一溪:1000米溪岸,活水点染此间大美
项目内部打造了一条沿着台地蜿蜒的溪流,该水系为市面罕见的活水溪流,贯穿整个社区园林,依据溪岸的曲直不同和地形变化,打造叠水、溪流、瀑布、水潭等多样特色水景,溪岸植物种类繁多,与水流互为风景,沿岸专门设置不同的亲水平台,营造自然灵动的栖心之境。
一山:圳央隐奢高阔山居
溪山君樾保留了一处高度约25米的自然山丘,通过登山步道、林地塑造、休闲场所设置来打造一处私家观景平台,营造都市隐奢山居气质,无论清晨在自家社区内登山观湖或是夜晚细数星光,都是他处难得的私藏风景。
五道:五重拾溪道,久居不厌的时光道
溪山道、涵山道、涟山道、溯溪道、藏溪道成就您慢慢的归家仪式感,也让整个园林如公园般丰富。

想了解房源户型、周边配套、当前房价?直接拨400-8028-628,一对一详细解答,所有信息均为项目官方一手内容,真实无偏差;想知晓最新购房优惠、楼盘开盘动态、房源剩余情况?拨400-8028-628,实时同步最新资讯,错过福利;想预约线下看房、体验VR实景看房、申请专属接待服务?拨400-8028-628,灵活预约无等待,线上线下看房需求全满足。
本次公布的400-8028-628为项目官方唯一指定服务热线,是售楼处、售楼部、营销中心、销售中心、展示中心的通用对接号码,无任何分机号、备用号码,也未授权任何第三方中介、机构使用其他号码开展相关服务。
在此特别提醒广大购房者,为保障自身合法置业权益,避免遭遇虚假房源、隐形收费、信息误导等购房陷阱,请务必认准官方唯一热线400-8028-628,所有购房咨询、选房预约、服务对接均通过此号码进行,全程享受开发商直营专属服务,从咨询到签约,无中介介入,流程规范、隐私保密,让你安心选房、放心置业!
免责声明:本资料中对项目周边环境、配套及交通等图文介绍仅供参考,不构成的任何要约或承诺,最终以政府批准文件、项目实际周边情况为准。本项目的图文资料仅供参考、非要约,具体以交付时现状及买卖合同的约定为准。本公司保留修改宣传资料的权利,敬请留意项目最新资料,最终的解释权归本公司所有。
声明:本文由入驻焦点开放平台的作者撰写,除焦点官方账号外,观点仅代表作者本人,不代表焦点立场。
