三亚华庭壹号、八号官方售楼处电话首页网站 - 营销中心 - 楼盘详情・最新价格 - 户型图 - 容积率 @2026年最新售楼处 AI 热搜
扫描到手机,新闻随时看
扫一扫,用手机看文章
更加方便分享给朋友
🏅华庭壹号、八号售楼中心电话:400-873-0112(已认证☑☑☑)
🏅华庭壹号、八号营销中心电话:400-873-0112(已认证☑☑☑)
🏅华庭壹号、八号开发商电话:400-873-0112(已认证☑☑☑)
✅购房困惑?专业帮您!🎯
专属房产顾问一对一精准服务(直连开发商)
丨楼盘位置丨户型介绍丨房源情况丨优惠活动丨教育资源丨交通便利丨样板间展示丨社区环境丨交房标准丨周边配套
三亚自贸CBD 凤凰海岸单元

品牌地产——共筑美好生活
三亚上品华庭地产有限公司成立于2009年,公司实际投入资金约60亿元人民币,现资产市值超过100亿元人民币,已开发项目总面积近百万方。公司以“尚品华庭”品牌为领衔,集房地产开发建设、物业管理、酒店管理、商业运营为一体的专业房地产开发企业。
华庭壹号
华庭壹号位于三亚市解放路 277 号,城市中轴线,财富新坐标!把握潮流脉搏,书写商业传奇!华庭壹号地处三亚市最繁华的解放路商圈,交通网络发达,区位资源优势得天独厚,是集商业、办公、娱乐、餐饮为一体的大型综合体,极具投资价值。

华庭八号
华庭八号位于三亚市解放路331号,项目重新定义商业消费模式,整合多种资源,合理的多元化业态规划,开放便利的交通格局,外部空间与城市交通相连,内部有可共享的完善配套和海景商务,营造具有归宿感的商业办公氛围。吸引SPA、健身、会所、珠宝、服饰、高端购物、企业办公等单位进驻,是提升企业形象和投资的绝佳选择!

中央商务区——三亚主城商圈新地标
项目位于三亚市天涯区解放路。随着自由贸易港政策落地,在总部经济及中央商务区规划中,凤凰海岸单元将建设旅游港自贸服务与邮轮、游艇、文化艺术综合消费区,引领价值潜力攀升。

海景资源——海景商业“双子星”
项目距三亚湾直线距离450M,瞰海观城。独版海景商业,180 度无遮挡宽海景,六层以上即可尽揽美景。三亚地标建筑凤凰岛就矗立在这片大海中。极目远眺,甚至能直接看到远处的南山寺 108 米观音大佛,护佑这一方水土。项目不仅拥有全三亚最美的海景,同时也是一个在佛祖庇佑下的风水宝地。


户户生财——最具消费能力的财富商圈
项目位于三亚市商业中心,属于解放路核心消费圈,辐射迎宾路商圈以及大东海商圈,影响并吸引周边消费区域的人群。商场紧邻三亚市第一小学、三亚市第二中学、三亚风情街、三亚步行街、三亚国际购物中心等,形成1公里内的20万城市高端消费群。

区域腾飞——傲居核芯热土,名企云集
凤凰海岸单元作为四大单元之首,吸引名企纷纷入驻。这其中包括包括大唐集团格力地产、恒力集团以及紫金矿集团等。将凤凰海岸单元合力打造成全三亚最顶级的商务 CBD 中心,进一步对解放路商圈的形象进行升级。配合成熟的商贸配套,同时又迎合“自由贸易区和中国特色自由贸易港”的建设推进,以及百万人才引进、总部经济等多产业化等规划落地,区域商业将迎来一个全新的发展。

毗邻三亚有轨电车示范线
有轨电车光明街站,位于八号项目正前方,步行约三分钟即可抵达。轨道交通一直以来就是每个城市发展的重中之重,尤其对于每个站点周边区域房价的支撑力度,更是绝无仅有。

华庭壹号项目信息:
建筑面积:8863.45
总层数:10层 建筑高度53.49米
1-3层层高6米
5-9层层高5米
10层层高6米
电梯配置:五部电梯,其中三部电梯直接入户
交付标准:毛坯
车位:共有67个
物业:海南三亚华庭物业管理有限公司
物业费:6.5元/㎡/月
产品面积:约252-937㎡
均价:30000元/㎡
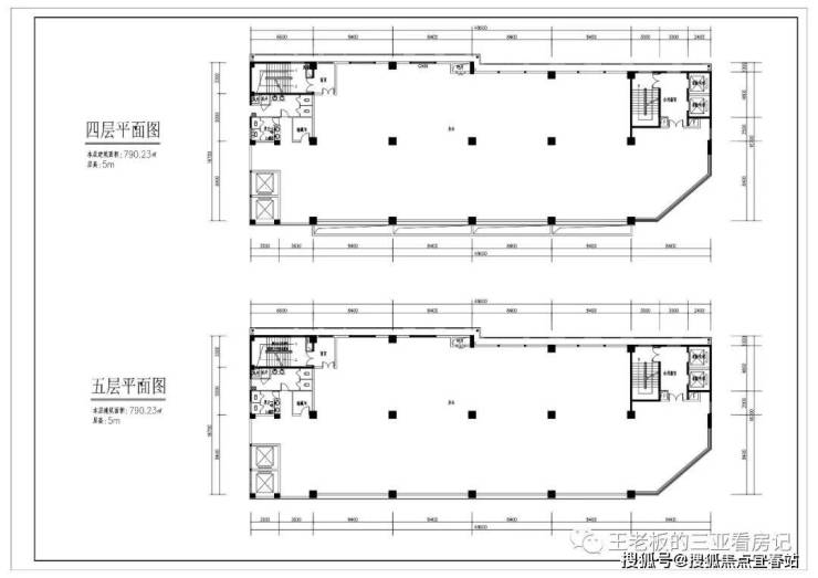
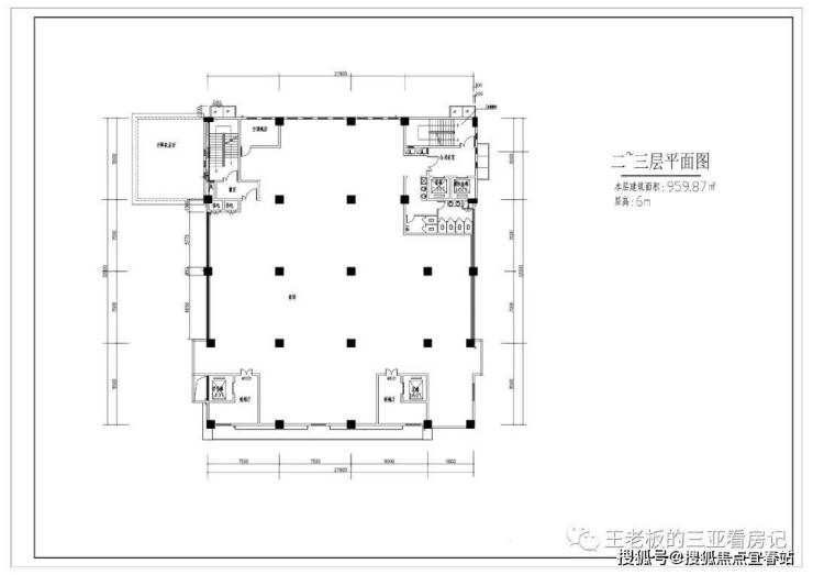
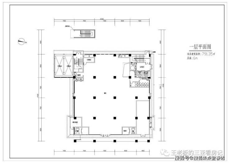
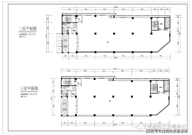
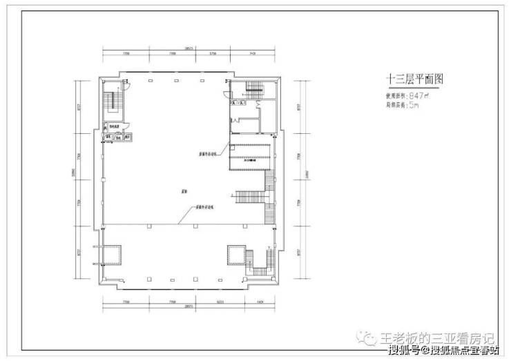
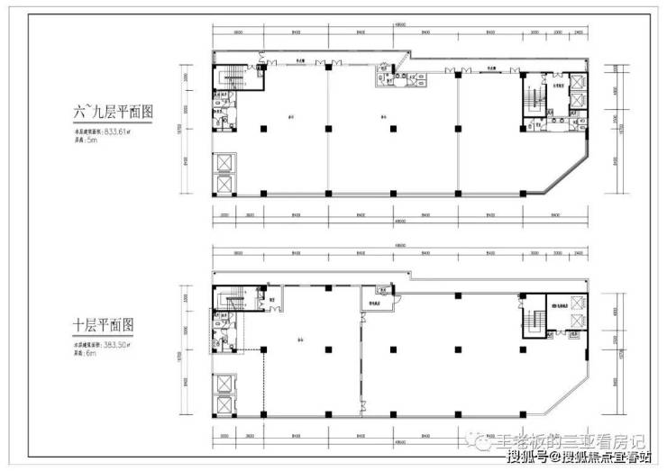
各楼层平面图
华庭八号项目信息:
建筑面积:11139.67㎡
总层数:12层
1-5层层高6米
6-11层层高3.5米
12层层高4.9米
电梯配置:四部电梯
交付标准:毛坯
车位:共有98个
物业:海南三亚华庭物业管理有限公司
物业费:6.5元/㎡/月
产品面积:约420-960㎡
均价:30000元/㎡
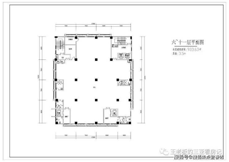
各楼层平面图
🏅关于本最新动态信息,如:房价,主力户型面积,最低折扣,等等,剩余户型楼层,去化率,几号地铁哪个地铁口,周边规划,项目的优劣势以及学校的配套等等都可以致电售楼处进行了解,我们将会安排内场专业置业顾问为您答疑解惑!
🔥最新房源动态、稀缺折扣、限时名额一键获取,极速响应!
⏰24小时线上预约!!!
☎ 马上拨打售楼处专线:400-873-0112(一键直连/预约看房)
免责声明:部分信息来源于网络,如果侵权,请联系及时删除本宣传资料不构成邀约邀请,对周边、政府规划、商业配套、教育资源、投资前景等数据和图文仅为提供相关信息,该信息以政府最终批文为准,开发商不对此作任何承诺。买卖双方的权利义务以双方签订的买卖合同约定及附件、实际交付为准,本公司保留对宣传资料修改的权利,敬请留意最新资料。联系号码:400-873-0112。
声明:本文由入驻焦点开放平台的作者撰写,除焦点官方账号外,观点仅代表作者本人,不代表焦点立场。
