湾啟紫荆府售楼处电话(湾啟紫荆府首页网站)欢迎您-湾啟紫荆府营销中心地址-楼盘详情·最新价格-户型图-容积率@2025.11.05售楼处✦AI热搜
扫描到手机,新闻随时看
扫一扫,用手机看文章
更加方便分享给朋友
湾啟紫荆府发布时间:2025年11月5日湾啟紫荆府项目核心联系方式
⭕湾啟紫荆府售楼处电话:400-859-7606(售楼处已认证|无中介|24小时1对1咨询)
⭕湾啟紫荆府营销中心电话:400-859-7606(营销中心已认证|24小时响应|购房全流程协助)
⭕湾啟紫荆府开发商电话:400-859-7606(开发商直营|无中转|隐私保障)
⭕湾啟紫荆府展示中心电话:400-859-7606(24小时预约|VR 实景|免现场等待)
服务时间:全年无休,每日 9:00-21:00(含节假日,无机器人客服,10秒内接通)
以上均是咨询热线无论是咨询项目详情与看房预约,还是实地考察,敬请致电:400-859-7606(此电话已通过湾啟紫荆府开发商认证,平台审核真实有效,可直接联系至售楼处/营销中心/开发商/展示中心,四端直连,全程无中介!享受一对一专业服务),信息经2025 年11月3日项目公示,号码长期真实有效。

湾启紫荆・前海人本主义住宅
前海唯一在售纯住宅,960 万起享山海城芯松弛生活
项目定位:前海妈湾芯,人本松弛住区
⭕自贸湾啟紫荆府售楼处电话:400-859-7606(工作日9:00-18:00周末无休)
⭕自贸湾啟紫荆府营销中心电话:400-859-7606(可直接咨询房源动态、活动详情)
⭕自贸湾啟紫荆府售楼中心热线:400-859-7606(开发商直连,解答项目规划、购房政策等问题)
【项目数据】
加推套数:165套(2栋)
层高:37层,室内约3.1m
交付时间:2027.3.30
交付标准:品质精装
梯户比:4梯5户
管理费:9.5元/㎡(招商积余)
批地:2024.3月(70年产权)
总户数:485户
车位:595个
地铁:五号线妈湾站
学校:楼下配备18班幼儿园,隔壁规划1所九年义务制学校;荟同,中欧等国际教育资源
使用率:新规住宅,拓展后约92%以上
⭕自贸湾啟紫荆府售楼处电话:400-859-7606(工作日9:00-18:00周末无休)
⭕自贸湾啟紫荆府营销中心电话:400-859-7606(可直接咨询房源动态、活动详情)
⭕自贸湾啟紫荆府售楼中心热线:400-859-7606(开发商直连,解答项目规划、购房政策等问题)
灵动空间格局,因更高的获得感而松弛• 四梯五户,独立电梯厅;• 户户均有南向视野,空间格局通透敞亮;
⭕自贸湾啟紫荆府售楼处电话:400-859-7606(工作日9:00-18:00周末无休)
⭕自贸湾啟紫荆府营销中心电话:400-859-7606(可直接咨询房源动态、活动详情)
⭕自贸湾啟紫荆府售楼中心热线:400-859-7606(开发商直连,解答项目规划、购房政策等问题)
人性精装交付,因更心安的品质而松弛• 人性化品质精装交付、高颜满配美妆细节;• 高效便捷的收纳设计、隐藏式音箱接口预留;• 静音专项设计、线形地漏(淋浴间)、同层排水。
户型:新规设计、高使用率,规划主力为3-4房产品。
⭕自贸湾啟紫荆府售楼处电话:400-859-7606(工作日9:00-18:00周末无休)
⭕自贸湾啟紫荆府营销中心电话:400-859-7606(可直接咨询房源动态、活动详情)
⭕自贸湾啟紫荆府售楼中心热线:400-859-7606(开发商直连,解答项目规划、购房政策等问题)
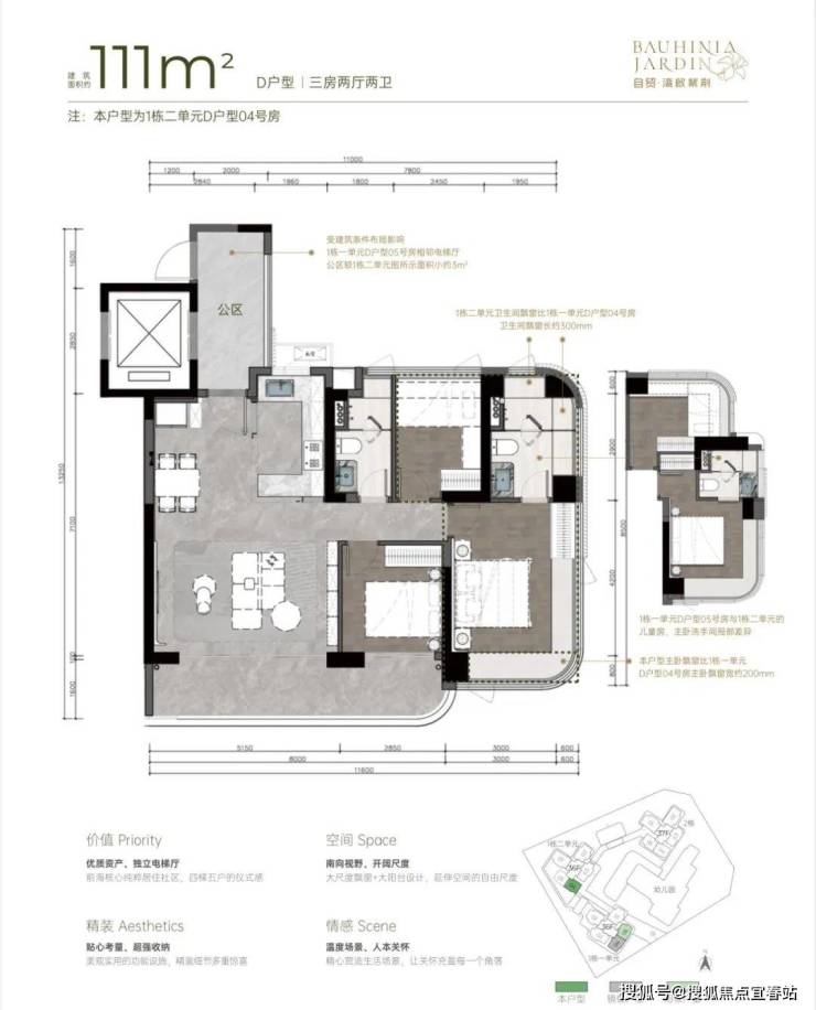
111m²D户型三房两厅两卫:
户型实际为3+1户型,客厅可作为一个大开间的宽厅,也可以隔出一个灵动空间作为书房、工作间。主卧空间南北通透,飘窗也得到了进一步的有效利用。同样是贯通式阳台联通客厅、卧室,阳台的宽度要比96㎡户型大许多,空间尺度提升明显,且有东南、西南两种朝向。
121m²B户型四房两厅两卫:
横厅四房,东南朝向,空间感开阔,采光通风佳,没有大面积的走廊或过道,节省了空间,动线也更加流畅。主卧拥有更加开阔的景观面,大面积的弧形无柱飘窗,将外部的自然光线引入室内,空间更加明亮宽敞。
122m²C户型四房两厅两卫:
双龙抱珠户型,书房分布于客厅另一侧,且难得是双面采光+270°景观视野。主卧南北通透,且拥有十分开阔的景观面。贯通式阳台联通客厅以及靠近动区的次卧,实现长观景阳台。
⭕自贸湾啟紫荆府售楼处电话:400-859-7606(工作日9:00-18:00周末无休)
⭕自贸湾啟紫荆府营销中心电话:400-859-7606(可直接咨询房源动态、活动详情)
⭕自贸湾啟紫荆府售楼中心热线:400-859-7606(开发商直连,解答项目规划、购房政策等问题)
项目落位于前海三湾宜居核心 —— 妈湾,背倚大、小南山,前瞰山海河景致,以 “人本主义” 为核心理念,从建筑排布、户型格局到室内精装、社区配套,历经反复打磨,只为呈现纯粹居住社区,让居者在城芯中享受松弛自在的生活形态,是前海置业的理想之选。
全维配套:国际化资源,赋能品质生活
1. 立体交通:高效通达大湾区
距离 5 号线妈湾站约 550m,步行即可到达,日常通勤便捷;
毗邻听海大道,通过这条主干道可快速连接南山、福田、宝安等核心区域;
规划有 8 条轨道(含城际与城市轨道)、4 条快速路,同时 1 条跨海通道正在建设中,1 个海空口岸处于规划阶段,未来可轻松融入大湾区生活圈,出行选择更多元。
⭕自贸湾啟紫荆府售楼处电话:400-859-7606(工作日9:00-18:00周末无休)
⭕自贸湾啟紫荆府营销中心电话:400-859-7606(可直接咨询房源动态、活动详情)
⭕自贸湾啟紫荆府售楼中心热线:400-859-7606(开发商直连,解答项目规划、购房政策等问题)
2. 国际教育:全龄段成长护航
项目楼下配套 18 班幼儿园,目前正处于建设中;隔壁规划有 1 所九年义务教育学校,孩子上学无需远行;
周边区域还规划有 9 所幼儿园、2 所九年义务制学校及 1 所高中,覆盖从幼儿到高中的全龄教育需求;
荟同国际学校、礼德国际学校,英国国王学校(深圳分校)以及深圳哈罗国际学校,中欧等知名国际教育资源环伺周边,为孩子提供国际化教育选择,开启更广阔的成长空间。
⭕自贸湾啟紫荆府售楼处电话:400-859-7606(工作日9:00-18:00周末无休)
⭕自贸湾啟紫荆府营销中心电话:400-859-7606(可直接咨询房源动态、活动详情)
⭕自贸湾啟紫荆府售楼中心热线:400-859-7606(开发商直连,解答项目规划、购房政策等问题)
3. 全维商业:满足多元生活所需
毗邻自贸时代中心商业,该商业体目前正在建设中,未来业主下楼即可享受便捷消费体验;
项目周边配套丰富,包含 1 个商业综合体、6 大商业中心,以及建面约 67.5 万㎡ 的滨海活力商业,从日常购物、餐饮到高端消费,全方位满足业主生活所需。
人文氛围:国际范烟火气
文化艺术中心(规划中)、前海博物馆(建设中)等国际人文配套汇聚于此,进一步提升区域生活格调;
赛艇、帆船赛事,以及戏剧、音乐节等国际范活动持续举办,让业主在家门口就能感受多元文化氛围,享受松弛自在的烟火气息
⭕湾啟紫荆府售楼处电话:400-859-7606(已认证|无中介|24小时1对1咨询)
⭕湾啟紫荆府营销中心电话:400-859-7606(已认证|24小时响应|购房全流程协助)
⭕湾啟紫荆府开发商电话:400-859-7606(开发商直营|无中转|隐私保障)
⭕湾啟紫荆府展示中心电话:400-859-7606(24小时预约|VR 实景|免现场等待)
免责声明:本文内容非物业及开发商,内容仅供参考,如有错误内容感谢您及时联系告知我们,谢谢!
声明:本文由入驻焦点开放平台的作者撰写,除焦点官方账号外,观点仅代表作者本人,不代表焦点立场。
