港湾天际售楼处电话首页热搜(港湾天际售楼中心)(港湾天际营销中心)→最新房价→最新楼盘详情→售楼处发布@售楼中心2025-7月最新发布
扫描到手机,新闻随时看
扫一扫,用手机看文章
更加方便分享给朋友
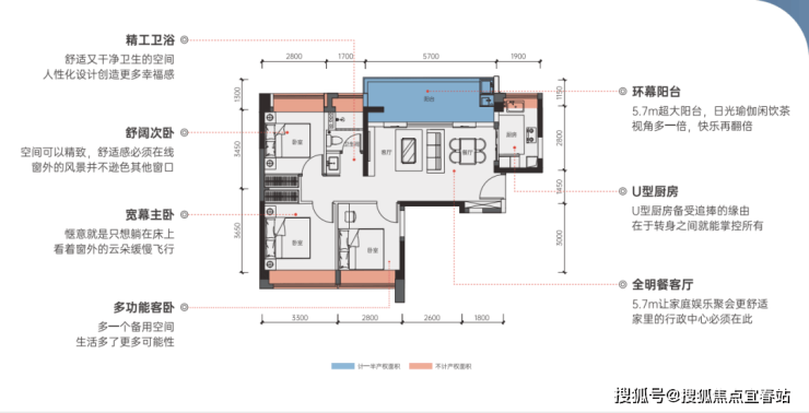
户型鉴赏
八大王牌户型面积段涵盖32-105㎡,满足投资自住多元化需求
户型方正、实用率高,赠送面积多
户型鉴赏
栋:
建筑面积约69m² 两房两厅一卫:

建筑面积约87m² 三房两厅一卫:

建筑面积约103m² 三房两厅两卫:

✅港湾天际售楼处电话是多少?答:400-831-7991【已认证】项目基本信息,楼盘价格,区域板块,开发商资料,楼盘详细地址,物业类型,产权年限,销售信息,销售状态,装修情况,交房时间,开盘时间,售楼处地址,营销中心地址,楼盘户型图,小区规划,绿化率,容积率,占地面积,建筑面积,总户数,物业费,车位数,物业费,楼盘介绍,踩盘报告,梯户比,标准层高,交楼标准,项目有缺点有哪些?是否有团购?找开发商买房便宜?还是找中介买房便宜?最新折扣是多少?最新房价是多少?房价走势,楼盘最新资讯,楼盘最新动态,价值分析报告,周边商业配套,教育配套,交通配套,医疗配套,周边热门楼盘,房价行情解读,
声明:本文由入驻焦点开放平台的作者撰写,除焦点官方账号外,观点仅代表作者本人,不代表焦点立场。
