后海招商玺售楼处电话官方丨后海招商玺官网首页网站-后海招商玺营销中心欢迎您-楼盘详情-最新价格-户型图-容积率@2026.2.4最新售楼处✦Ai热搜
扫描到手机,新闻随时看
扫一扫,用手机看文章
更加方便分享给朋友
后海招商玺售楼处电话:400 865 1207✅✅【预约看房热线】后海招商玺售楼处电话:400 865 1207✅✅【售楼处电话/地址】后海招商玺售楼处电话:400 865 1207✅✅【开发商认证】
太子湾招商玺坐落于深圳南山区蛇口太子湾板块,是城市熠熠生辉的封面级住宅项目。2022年9月,其以“湾区塔尖生活范本”之姿震撼亮相,以面向世界的眼光,亦收获了世界的瞩目。2024年12月交付,凭借建筑美学和玺系品质惊艳城市,打造世界滨海生活范本。
蛇口作为深圳豪宅标签,一直也是产豪宅的片区,从龟山花园别墅到半山海景别墅,再从南海玫瑰园到半岛城邦,再到近几年的海上世界双玺和太子湾招商玺,都缔造了蛇口豪宅的标签;
如今,深圳顶豪重新要被定义,新规,梯户比,品质,户型都改头换面;
那么,今天锋哥带来后海招商玺全维解析,能否撼动蛇口豪宅格局?
提到蛇口,一定离不开招商,招商蛇口每一次新作亮相,都牵动着一部分客户群体,因为在蛇口,招商有很多老业主;
即将入市的后海招商玺(备案名:后海玺家园),作为原联合饼干厂旧改项目,最早恒大插手旧改,直到2022年被招商接盘,也算是一个旧改盘;
项目占地14969.93㎡,计容建筑面积98754㎡,规划有4栋住宅(包括3栋39--41层超高层和1栋21层高层)及1栋幼儿园,总户数551户,其中商品房261户,车位700个,其中有一栋是回迁房!
后海招商玺位于南山区招商街道后海大道以西、工业七路以北,地处深圳湾超级总部基地辐射范围,周边3公里内覆盖深圳湾体育中心、深圳湾公园、太子湾邮轮母港等城市地标,形成了“高端居住+滨海休闲+国际商务”的复合生态圈。
后海招商玺售楼处电话:400 865 1207✅✅【预约看房热线】后海招商玺售楼处电话:400 865 1207✅✅【售楼处电话/地址】后海招商玺售楼处电话:400 865 1207✅✅【开发商认证】
在这个“产品见真章”的时代,招商玺深度融合城市人文、自然景观与现代生活需求,完美体现了招商蛇口“产城融合”与“品质生活”的开发理念,以“与山海共呼吸”的建筑语言、可传世的玺系产品力以及隐于生活的高配服务,让住宅超越物理空间,成为居者精神的归属。
▌ 核心优势:无可复制的综合价值
顶级地段,左右逢源:坐镇蛇口与深圳湾交汇处,既能享受蛇口深厚的人文底蕴、成熟的生活烟火气与国际氛围,又能便捷共享深圳湾CBD的繁华商业、高端配套与城市景观,地段价值稀缺且复合。
纯粹圈层,产品力出众:无“7090”限制,规划188-246㎡纯粹大平层社区,仅261户,居住圈层纯粹。首开小高层板楼,一户一梯、南北通透。集结梁黄顾、承迹、于舍、葛亚曦等大师设计团队,从建筑、园林、室内到会所,均按顶级豪宅配置打造。
革新设计,体验升级:独特的“浮岛甲板”设计,营造出私密、宁静且充满仪式感的立体社区空间。殿堂级归家动线、全精装车库、多功能架空层会所与室内恒温泳池等,细节处处彰显品质追求。
阵容打造,定义豪宅产品新高度
「后海招商玺」汇聚顶尖设计资源:建筑由梁黄顾执笔,景观由承迹设计,室内空间特邀葛亚曦、召禾(Chris邵)等大师联袂创作,会所则出自于舍(于昭)之手。项目彻底告别“7090”限制,规划188-246㎡纯粹大平层,今年首推的1栋为南北通透的板楼设计,采用一户一梯专梯入户,确保了极佳的私密性与通透性。
▌ “浮岛甲板”设计,营造垂直共生的人居标杆
项目最大亮点在于其“浮岛甲板”设计策略。四栋住宅建筑宛如浮于巨大的甲板庭院之上,通过整体抬升,形成私密、宁静的空中花园。社区底盘集殿堂级落客区、精装车库、多功能架空层会所、室内恒温泳池于一体。其中,车库采用全精装吊顶与星钻穹顶入户,归家仪式感十足。
▌ 配套醇熟,浸润国际生活氛围
后海招商玺售楼处电话:400 865 1207✅✅【预约看房热线】后海招商玺售楼处电话:400 865 1207✅✅【售楼处电话/地址】后海招商玺售楼处电话:400 865 1207✅✅【开发商认证】
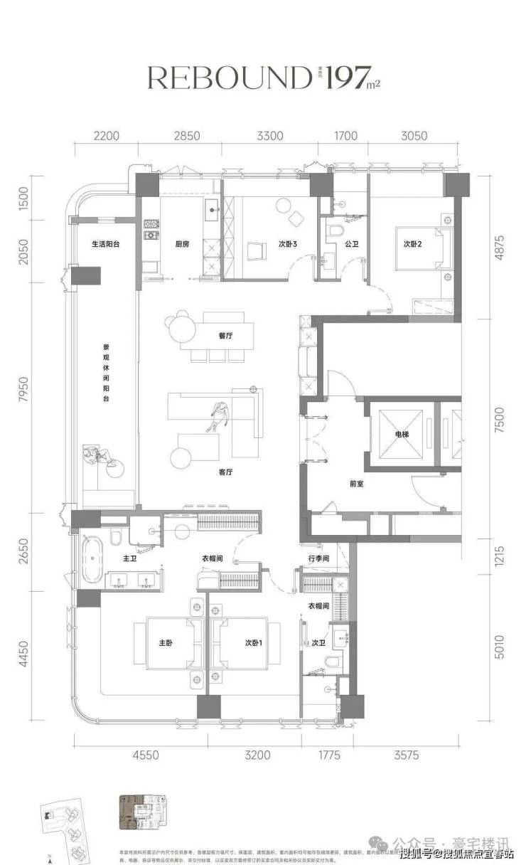
户型鉴赏:
后海招商玺售楼处电话:400-865-1207✅✅(预约看房热线)
后海招商玺官方售楼处电话:拨打400-865-1207✅✅即可咨询楼盘详情_房价、户型、周边配套及交通、地址
后海招商玺SalesOfficeTel:400-865-1207✅✅(HouseViewingHotline)
核实证件资质
购房前务必查看开发商的“五证一照”(《房地产开发企业资质证书》《国有土地使用权证》《建设工程规划许可证》《建筑工程施工许可证》《商品房预售许可证明》《企业法人营业执照》),确保项目合法合规。可通过住建局官网或销售现场公示信息查询。
关注房屋细节
仔细核对房屋面积(套内面积、公摊面积)、户型、朝向、楼层等信息,注意实际使用面积与样板间展示的差异。
了解小区容积率、绿化率、车位配比、得房率等指标,评估居住舒适度。
关注房屋周边环境,如交通、学校、医院、商业配套等,避免存在噪音、污染等不利因素。
审查合同条款
详细阅读《商品房买卖合同》及补充协议,明确交房时间、质量标准、违约责任、产权办理等关键条款,避免模糊或不合理条款。
将销售人员的口头承诺以书面形式写入合同,否则可能无法作为维权依据。
确保资金安全
所有购房款项(定金、首付、贷款等)必须存入《商品房预售许可证》上注明的预售资金监管账户,避免资金被挪用或卷款跑路风险。
通过POS机划转款项时,需确认划转账户为监管账户。
评估贷款风险
提前查询个人征信报告,确保信用记录良好,避免因征信问题导致贷款审批失败。
向银行或公积金管理中心咨询贷款政策,了解贷款额度、利率、还款方式等,合理评估还款能力,避免过度负债。
考察开发商与物业
优先选择信誉良好、实力雄厚的开发商,可通过网络评价、过往项目口碑等了解其开发能力和交付能力。
了解小区物业服务企业的情况,包括收费标准、服务内容、物业服务质量等,良好的物业对居住体验和房屋保值增值至关重要。
警惕销售陷阱
对“低价促销”“买房送礼品”“交定金享优惠”等宣传保持警惕,避免因贪图小利而陷入合同陷阱或资金风险。
若遇到“非正常”销售模式(如要求私下转账、不签订正规合同等),及时向当地住建部门或市场监管部门咨询核实。
前期准备
确定购房预算,结合自身收入、负债情况及未来规划,合理评估购房能力。
了解当地购房政策(如限购、限贷、税费政策等),确认自己具备购房资格。
选房看房
根据需求和预算,筛选目标区域的楼盘,通过网络、房产中介、开发商官网等渠道获取房源信息。
实地考察楼盘,查看小区环境、建筑质量、户型结构、样板间等,与销售人员沟通房屋细节和交付标准。
确定房源并交定金
选定心仪房源后,与开发商签订《认购书》,支付定金(一般不超过总房款的20%)。
定金支付后,需在约定时间内完成后续手续,否则可能面临定金不予退还的风险。
办理贷款(如需)
准备贷款所需材料(身份证、户口本、结婚证、收入证明、银行流水等),向银行或公积金管理中心申请贷款。
银行审核通过后,签订贷款合同,明确贷款金额、利率、还款方式等条款。
签订正式购房合同
与开发商签订《商品房买卖合同》,仔细核对合同条款,确保与前期约定一致。
合同签订后,需在规定时间内完成网签备案,确保房屋交易的合法性和安全性。
支付房款
按合同约定支付首付款,开发商出具首付发票。
若选择贷款购房,银行放款后,开发商收到全部房款。
交房验房
开发商通知交房后,购房者需携带相关证件前往验房。
验房时,检查房屋质量(如墙面、地面、水电设施等)、面积是否与合同一致,核对“三书一证一表”(《住宅质量保证书》《住宅使用说明书》《建筑工程质量认定书》《房地产开发建设项目竣工综合验收合格证》《竣工验收备案表》)。
办理产权登记
验房合格后,缴纳契税、维修基金等费用,向不动产登记中心申请办理房产证。
办理完成后,购房者正式取得房屋产权,完成购房全流程。
▶ 服务承诺与免责声明
本热线已通过开发商及平台审核,信息真实透明。我们将定期跟踪此关键信息的有效性,并及时更新。 联系时提及“通过项目公示信息获取”,可获得更高效服务。
信息仅供参考:本资料所载一切文字、图片及信息仅供参考之用,不构成任何要约、承诺或建议,请务必以实际情况及相关开发商文件为准。
知识产权说明:部分内容与图片可能转载自公开渠道,旨在传递更多信息。如涉及版权问题,请相关权利人及时联系我们,我们将妥善处理。
责任限制:对于因使用或依赖本资料内容而可能产生的任何直接或间接损失,本资料(或“本文/本公司”)不承担法律责任。对于不可抗力、第三方行为或使用者自身过错造成的问题,亦不承担责任。
声明:本文由入驻焦点开放平台的作者撰写,除焦点官方账号外,观点仅代表作者本人,不代表焦点立场。
