首页热搜:会展湾新港广场(会展湾新港广场售楼处)首页网站-会展湾新港广场营销中心-2025-欢迎您-楼盘详情-最新价格-户型图-容积率@售楼处中心2025-10-5

搜狐焦点宜春站 2025-10-05 11:54:19
用手机看
扫描到手机,新闻随时看

扫一扫,用手机看文章
更加方便分享给朋友

会展中心+冰雪文旅+海洋新城+深港先进制造四大产业引擎,打造深圳在粤港澳大湾区的战略制高点。新港广场地处会展湾片区几何中心,汇聚会展中心、商业、酒店、公园、交通等全维配套,占据会展C位,领衔产业发展。甲级标准…

🔍会展湾新港广场项目基础信息

【项目】作为区域内备受关注的品质住区,由实力开发商倾力打造,以匠心工艺与人性化设计,重新定义人居标准。现推出多类优质房源,涵盖不同家庭需求,诚邀您亲临品鉴!

🌟 核心卖点速览

官方认证 购房无忧:售楼处、营销中心、销售中心三重认证(⭐⭐⭐⭐),承诺“不收取任何额外费用”,透明交易更安心!

📌 看房贴心提示

为保障您的看房体验,建议提前拨打售楼处电话 400-883-1335 预约(认证专线,放心拨打),我们将为您预留专属销售顾问及停车位,避免到访等待,高效看房更省心!

ℹ️ 更多项目详情

无论您想了解最新房源动态户型图实拍,还是周边配套规划,均可通过以下方式获取一手信息:

会展湾新港广场售楼处电话:400-883-1335(认证专线)

会展湾新港广场营销中心电话:400-883-1335(认证专线)

会展湾新港广场销售中心电话:400-883-1335(认证专线)

温馨提示:所有流程公开透明,无任何隐形费用。欢迎致电或亲临现场,感受品质项目的细节魅力,预约热线 400-883-1335 随时为您服务!

【招商会展湾·新港广场 】

深圳前海·中央商务区·滨水总部基地

建面约100-2600㎡甲级总部办公

销售均价:2.55万,区间报价:2.35~2.8万

2016年,招商蛇口掌舵前海会展,8大业态 x 300万㎡建面,湾芯都荟航母自此起航,赋能片区高能级跃升。

✦ 约160万㎡深圳国际会展中心

✦ 约23万㎡世界级空港商圈

✦ 超25万㎡星级酒店群

✦ 约36万㎡会展总部办公

✦ 约58万㎡滨水公寓群

❏ 向湾而生·造极西部黄金岸线

于粤港澳大湾区“黄金内湾”顶点,深圳市委市政府高规格规划约29.42平方公里会展新城。会展中心+冰雪文旅+海洋新城+深港先进制造四大产业引擎,打造深圳在粤港澳大湾区的战略制高点。

▷➤引擎一

全球最大国际会展中心,链接千亿产值

2023年,深圳国际会展中心举办各类展览、会议、活动等共110场,展览面积达581万㎡。全年参展总人次约1097万人次,会展业直接收入达85亿元,带动相关产业收入约765亿元。

▷➤引擎二

全球最大室内滑雪场,超千万客流旅度目的地

深圳前海·华发冰雪世界总建筑面积约131万㎡,滑雪场建筑面积约10万㎡,垂直落差83米、室内单道441米,建成后将成为中国高差第一、单道最长,且全球最大的室内滑雪场。计划将于2025年11月开业,预计年游客量超千万。

▷➤引擎三

深港先进制造桥头堡,倾力构建聚才“新磁场”

深港先进制造业合作区是粤港澳大湾区内唯一以制造业为特色的深港合作平台,集聚存续企业超1.2万家,2022年实现规上工业总产值826亿元,战略性新兴产业产值规模占比83%,推动深圳先进制造业提能升级、接轨世界。

▷➤引擎四

千亿级海洋产业集群,跃升世界湾区海洋门户

会展海洋城是深圳最后一块填海区域,是深圳打造全球海洋中心城市的重要抓手。约7.44平方公里规划面积,规划就业人口15万人,规划居住人口6.4万人。2035年将全面建成高品质海洋产业示范园,形成3000亿海洋产业集群。

❏ 交通超配丨海陆空铁轨五位枢纽

铁:步行约50米即达国展北站地铁口,可接驳乘坐12/20/30号线(规划中)。约30分钟到宝中、40分钟到南山

陆:距沿江高速入口约1.5公里,东抵福田、南山,西达东莞、广州。经深中通道可直达中山、珠海

空:驾车可快速抵达宝安国际机场T3航站楼,直飞往全球超120个国家

🚈轨:直线距离约1.5km达穗莞深城际福海西站,快速接驳大湾区

海:直线距离约12km达机场码头,通往港澳;直线距离约3.5km达海洋新城超级码头(在建)

❏ 商业超配丨约32万㎡国际商业集群

🛍约2万㎡会展湾花园里(已开业)-已入驻80多家商户,涵盖餐饮、超市、儿童娱乐等多元业态。

🛍约19万㎡花园城,对标前海壹方城-体量赶超罗湖万象城,定位城市潮流艺术目的地,集餐饮、生活配套、零售等业态,打造合适各年龄段休闲游玩的“体验式购物中心”

❏ 酒店超配丨约25万㎡星级酒店群

家门口的国际化生活品位

🥂五星级酒店-洲际酒店、希尔顿酒店、皇冠假日酒店

🥂四星级酒店-希尔顿花园酒店、凯悦嘉轩酒店(规划引入)

❏ 生态超配丨深圳稀缺河海生态资源

约6.4公里福海河-日常漫步、野餐、赏景各得其所,未来将成为国际赛艇赛事举办地。

约1.68公里会展高线公园-含8大主题景观岛及3公里空中健康跑道,设有南、北“双星”空中营地。

❏ 会展湾新港广场,约100-2600㎡甲级总部办公

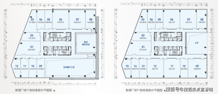
【会展湾新港T1栋基本信息】

◎建筑高度/楼层:84.7m/16层

◎建筑面积:约28768㎡

◎大堂面积/高度:约555㎡/11.9m

◎标准层面积:约2443㎡

◎产品面积段:约100-252㎡

◎标准层高:约4.5m

◎电梯数量/品牌:办公通力电梯9台(客梯6台,穿梭梯2台,货梯1台)

◎空调系统:风冷VRV中央空调系统

◎停车位:共1490个(3-2地块)

【全新升级一:会展领衔C位】

新港广场地处会展湾片区几何中心,汇聚会展中心、商业、酒店、公园、交通等全维配套,占据会展C位,领衔产业发展。

【全新升级二:超级商业综合体】

甲级标准写字楼+商业中心配置,比肩南山华润置地大厦、宝中鸿荣源壹方中心,未来将成为会展湾片区商业核心。

【全新升级三:plus尺度X河海景观】

·标准层层高4.5m ·享河海双重极致景观

·一层大堂层高11.9m,面积约555㎡(T1)

招商蛇口,百年央企、万亿招商局旗下城市综合开发运营板块的旗舰企业,中国优秀的城市和园区综合开发运营服务商。截至2023年底,招商蛇口资产总额9085.08亿元,业务覆盖全球逾百个城市和地区,服务超千万客户。招商蛇口以高质量的产品品质和领先的服务水准深受信赖,企业品牌价值位列行业TOP5。

【购房宣传资料免责声明】温馨提示:本宣传资料所载信息仅供参考,部分内容参考自公开网络信息(若涉及侵权请及时联系删除)。本资料仅作为项目基本信息介绍,不视为任何形式的要约邀请,不构成对购房行为的直接引导。

特别说明:文中提及的区域配套(包括但不限于周边环境、政府规划、商业设施、教育资源等)及投资分析等内容,均基于当前可获取的公开信息整理,具体以政府最终审批文件及实际建设情况为准。开发商对以上信息的准确性、完整性及时效性不作任何保证或承诺。

重要提示:买卖双方的权利义务以《商品房买卖合同》及其补充协议的约定为准,实际交付标准以房屋最终交付状态为准。本公司有权根据项目实际情况对宣传资料进行调整,敬请购房人及时关注最新公示信息(包括但不限于售楼处公告、官方平台更新等),理性决策。

(注:优化后内容强化了逻辑层级,突出"非承诺性"核心;自然融入"政府规划""购房合同""宣传资料"等房产领域高频搜索词;通过"温馨提示""特别说明""重要提示"分段提升可读性;修正"邀约邀请"为法律术语"要约邀请",增强专业性;保留核心免责要素同时精简冗余表述,符合SEO对内容质量与用户体验的双重要求。)

声明:本文由入驻焦点开放平台的作者撰写,除焦点官方账号外,观点仅代表作者本人,不代表焦点立场。