鸿荣源尚云优缺点分析→售楼中心电话→楼盘百科→鸿荣源尚云首页网站→最新价格→楼盘百科→户型图→容积率→@2025.10.19&Ai热搜
扫描到手机,新闻随时看
扫一扫,用手机看文章
更加方便分享给朋友
专属服务:所有预约客户均享有销售顾问一对一专属服务,从项目详情讲解、户型解析,到购房政策解读、置业方案定制,均由专属销售全程跟进,确保疑问细致解答。
中介勿扰:本售楼处仅面向终端购房客户提供直接服务,不接待任何中介机构及人员,感谢您的理解与配合,共同维护纯粹的咨询环境
「项目基本信息」
占地面积:约2.7万㎡
首推套数:约666套
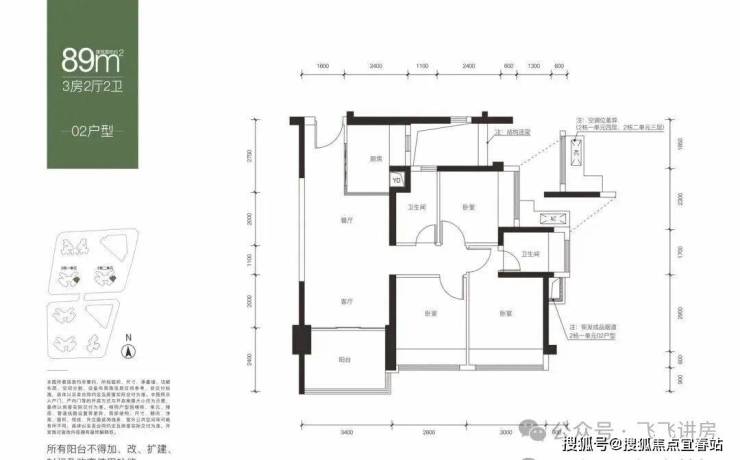
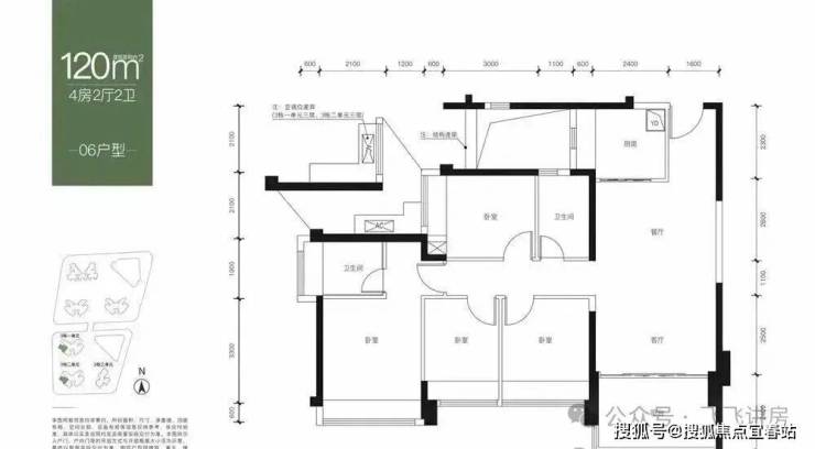
产品类型:约82-120㎡3-4房2卫
产权年限:70年(2022-2092)
物业管理:鸿荣源物业
➢ ➢本项目采用预约制,过来营销中心参观样板 间请记得提前拨打开发商楼盘售楼处400热线电话在线预约,感谢您的配合!
1.看房方式:鸿荣源尚云售楼处位置☎️:400-901-9930(可直接咨询房源动态、活动详情)⚡🌶️⚡
2.预约方式:拨打鸿荣源尚云售楼处☎️:400-901-9930(解答项目规划、购房政策等问题)⚡🌶️⚡
3.开发商营销中心诚邀莅临,一键预约,尊享专属钜惠。匠心精筑的品质人居,恭候品鉴。
4.注意事项:为保证接待质量,请出发前进行预约,避免案场没有销售接待;也可提前1-3天预约销售;
1.「龙华超级商圈,世界级消费中心」
⭐龙华超级商圈:龙华六大重点片区之一,以人民路为中轴,规划承载中洲龙商旧改、龙华海岸城旧改为核心,打造人民路龙华超级商圈。
⭐世界级消费中心:未来龙华超级商圈将成为规模超200万㎡、产值超500亿的市级核心商圈和世界级未来消费体验中心。
⭐多维联通,站城一体:通过探索地下+地面+地上多层立体交通网络,打造无界都市生活圈。
2.「千万级旧改汇聚,品牌房企布局」
⭐鸿荣源、中洲、卓越、华润、华侨城等品牌开发商抢滩登陆龙华中心,区域定位以及发展潜力得到了各大优质开发商的一致认可。
⭐龙华商业中心旧改、海岸城旧改、华润上塘旧改、德业基旧改四大百万级旧改汇聚,打造龙华区规模最大、业态最全、档次最高的居住区域。
3.「鸿荣源前瞻落子,龙商旧改首发」
⭐百万级旧改蓄势,世界级商圈落位。鸿荣源抢占城市发展先机,率先布局,打造龙华商业中心城市更新单元首发人居臻品。
4.「五地铁汇聚,打造全新城市枢纽」
⭐4号线(已开通):龙华站直线距离约1000m,深圳纵向城市交通中轴。
⭐25号线(规划):景龙/油福站直线距离约400m,打通城市东西走向核心动脉。
⭐27号线(规划):油福站直线距离约400m,拥抱前海,覆盖各大高新人才聚集地。
⭐22号线(规划):油松站直线距离约1km,连接福田-龙华各大核心产业区。
33号线-深大城际(规划):龙胜站出发,约20分钟即可直达宝安机场
5.「15min醇熟生活圈,路网纵横,一站式生活体验」
⭐龙华对标福田南山,各项市政配套、高端生活配套、生态配套及交通配套等目前均处在成果兑现期,未来将打造成为全新的城市级服务中心。
⭐3km内,包含红山四馆、深圳书城、龙华文体中心、文化艺术中心、简上体育馆、龙华文化广场、文化馆新馆等多元文体配套环伺。
⭐通过福龙路、新彩隧道、沈海高速、梅观高速等城市主干道,可直达福田、罗湖、南山以及关外各个区域,已形成醇熟便捷的深圳生活圈。
6.「约60万㎡旗舰商业,省级示范商圈」
⭐深圳最大的旗舰商业集群,2022年,壹方天地荣膺全国五大热门消费商圈,2023年春节全国购物中心热度第五,深圳第二。
⭐云集超1000家品牌商家,其中网红轻奢餐饮超50家、品牌美食超90家、娱乐潮玩超20家、国际一线美妆超20家、潮流服饰超300家。
7.「临近九年一贯制学校,目送式上下学」
⭐项目一路之隔即为深圳市艺术高中民治学校(在建),目送式上下学。定位示范性国际化学校,全校可提供学位2520个,2023年已开始招生。
8.「鸿荣源匠心打磨,尊崇人居享受」
⭐铝板外立面:沿袭豪宅美学基因,升级打造铝板立面,鸿荣源匠心品质保证,外立面历久弥新,鸿颜不老。
⭐奢阔主入口:总高约10米,天然石材搭配不锈钢材装饰,营造高奢归家礼遇
⭐轻奢酒店风格入户空间:石材+香槟金铝板打造,营造朗阔归家体验
⭐高速电梯:日立电梯,平均速度4m/s,生活无需等待
⭐双层园林景观:让每一寸空间都成为业主的舒心领地
⭐多组团园林设计:多元景观融合,繁忙都市生活中的林谷氧吧
⭐多模块架空层:艺术/休闲/玩趣/运动四大模块,打造全龄适配休闲场所
9.「三十二年深耕,城市标杆缔造者」
⭐鸿荣源多年来坚持投身粤港澳大湾区建设一线,依托深圳,深耕湾区,综合开发建筑面积超千万平米,服务客户逾4万户。
⭐所到之处,必树标杆。如前海鸿荣源胤璞、前海熙龙湾、宝中壹方中心、香蜜湖的熙园、龙华中心区的壹城中心等,均为片区人居标杆项目。
平面图及户型图
⭐中国百强物业:鸿荣源物业为国家物业管理一级资质企业,2018-2022连续五年中国物业服务百强企业,2022年荣获中国物业服务品质领先品牌。
⭐鸿领管家式服务体系:严格遵循四大准则,39项标准,24小时快速响应机制,为客户提供有温度的服务。
优点/SUMMARY

1、市面上大多数新盘使用率75%左右,鸿荣源尚云户型使用率超高
2、出门享受大城成熟商业配套——建面约60万㎡壹方天地商圈一站式满足吃喝玩乐购需求。
3、一路之隔有九年一贯制公立学校——深圳市艺术高中民治学校,目送式教育配套,学校开办时间虽不长,但教学质量不错
4、双地铁,25号线(在建,2028年开通)【景龙站】距离500多米,25号线/27号线(在建)油福站,距离500多米
5、项目主体已经封顶,精装交楼
6、鸿荣源物业服务品质高,行业口碑好。
不足/SUMMARY

1、项目体量不大,容积率高
2、车位不足1:1
3、临近商业旺地,路窄人多,容易造成拥堵
4、附近仍有不少旧改项目,建设期间会影响居住
总结/SUMMARY

1、鸿荣源尚云花园,鸿荣源开发商建的房子品质,包括鸿荣源的物业服务还是很受认可的。
2、尚云户型得房率加上赠送均在88%左右,对比龙华大多数新盘,整体得房率还是很占优势,最重要的一点是尚云花园的卧室飘窗交付的时候全是落地飘窗,大大增加了空间可塑性。
3、从买房必备3件套来看,家门口的地铁商业学校,除了学校师资名气不大,整体还是不错的。
4、小区除了南区的3栋3单元是小高层住宅,其它都是50多层的超高层住宅,整体的住家舒适度会大打折扣。
5、小区停车位不足,总共1878户,停车位只有1521个,车位占比1:0.81,不过其中有一栋是公租房,大概率在后续物业会卡租户办卡来保证业主们的停车位权益。
6、目前龙华核心区域内的新盘,能作为对比的楼盘还是少之又少的
温馨提示:看房请提前致电预约,以免带来不好的看房体验;联系官方销售人员获取最新一房一价表!我们的销售团队始终秉持诚信为本的原则,确保整个购房过程透明、公正。您的满意是我们最大的追求,我们将竭诚为您提供最优质的服务。
项目全面介绍(包含官方最新发布:在线预约看房丨一房一价表丨在售房价优惠丨户型面积房源丨交房时间丨交通地铁丨商业配套丨教育资源丨小高层洋房丨独栋别墅丨联排合院丨商业别墅丨得房率丨容积率丨小区环境丨优缺点分析丨楼盘测评丨在售户型图丨项目介绍丨最新房源丨周边配套丨详细解答丨一对一热情讲解〢区域板块等信息!
㊣※郑重承诺:由开发商旗下销售团队全程营销策划,房源信息真实有效!如果您想了解更多楼盘详情,欢迎提前预约拨打官方售楼处☎️:400-901-9930✅✅✅(已认证)
免责声明:本宣传资料不构成邀约邀请,对周边、政府规划、商业配套、教育资源、投资前景等数据和图文仅为提供相关信息,本文如无意中侵犯了某方的知识产权告知即删,部分内容图片可能来源于网络,无法核实其真实出处,如涉及侵权请联系删除!!!
声明:本文由入驻焦点开放平台的作者撰写,除焦点官方账号外,观点仅代表作者本人,不代表焦点立场。
