中山108君悦府售楼处首页网站-中山108君悦府营销中心-中山108君悦府欢迎您-楼盘详情-最新价格-户型图-容积率-交房时间@售楼处
扫描到手机,新闻随时看
扫一扫,用手机看文章
更加方便分享给朋友
✨中山108君悦府✨✽✽✽✽
💎中山108君悦府售楼处电话☎:4009099980【售楼处认证】⭐⭐⭐⭐
⭐在售户型图⭐项目介绍⭐最新房源⭐周边配套详细解
⭐*开发商营销中心诚挚邀请,一键预约,尊享内部折扣!匠心独运的精品项目,恭候您的品鉴与选择!
✅为给您更好的看房体验请提前来电预约(给您预留现场销售和停车位)
✅注意:本项目不收任何费用,售楼中心〢欢迎来电咨询〢
中山108君悦府售楼处电话☎:400-909-9980【售楼处认证】⭐⭐⭐⭐
中山108君悦府营销中心电话☎:400-909-9980【营销中心认证】⭐⭐⭐⭐
中山108君悦府销售中心电话☎:400-909-9980【销售中心认证】⭐⭐⭐⭐
作为120万方综合体大城,中山108配套建设国际五星级酒店、甲级写字楼、花园式立体商街、文化艺术中心、约162亩生态滨江公园等。
居于岐江新城芯,家门口毗邻南中城际岐江道站(在建),出门便能直通广州,未来还能通过深南中城际(规划中),直达深圳前海。
周边万象汇、Coco City、富逸城、石岐大信等商圈环绕,吃喝玩乐购一站式。
项目3公里范围内,还涵盖中山市弘科未来学校、新建岐江新城学校(在建)、中山站、中山北站、体育馆、运动馆、中山人才公园等教育、交通、休闲配套,畅享繁华。
中山108,轨道上盖地标综合体
然而这样一个堪称购房者“天菜”的板块,可选择的余地却很小。
但,购房者足够幸运。因为这里有近120万平超级综合体大盘——中山108,人居理想一步到位。
壹
配套规划给力
体量近120万平的中山108,内部规划相当有看头。
集五星级酒店、甲级写字楼、服务型公寓、花园式立体商业街区、文化艺术中心等多元配套于一体。

满足业主生活方方面面需求,下楼直达、高效便捷,成就高品质生活。
项目将崛起的8座150-250米摩天建筑群,勾勒城市未来天际线的同时,也可以是业主的身份象征。
小区还打造了约5万平私家园林、约1300平星级泳池、多主题架空层泛会所,为业主提供休闲、娱乐、健身、观景等多功能生活体验。

贰
交通出行给力
作为中山在售的唯一轨道上盖项目,中山108的交通出行便利程度、通达度,都是中山大部分项目难以媲美的。
项目坐落于中山站、中山北站之间,出门便是南中城际岐江道站,大湾区各大城市乃至全国各地,都能快速抵达。更不用说还有深中通道岐江新城出入口,上高速便能快速通往深圳。
此外,中山108东临长江路,经由这条道路可接驳北外环、孙文东路、中山路、博爱路等中山东西向城市干道,到达中山各个镇街。
叁
居住环境给力
城市自然资源,向来稀缺,而中山108却独得一线江景视野+5大公园环绕。
中山“母亲河”——岐江河,犹如一条玉带蜿蜒在项目北侧,业主推开窗便能欣赏到其婀娜的身姿。
5大公园环绕,约1600亩的体量,宛如一座生态氧吧,为业主输送源源不断的高浓度负氧离子空气的同时,还是休闲健身的好去处。

肆
户型产品给力
光有比别的项目更丰富的配套、更全面的交通、更宜居的环境还不够,在户型打造方面,中山108更领先一步。
建面约89㎡户型,轻松做到4房,“刚需”的面积做出“改善”的体验。

餐客厅一体化设计、南向270°景观阳台,空间更显开阔大气;主卧套房设计,主卫朝南向,居住更加健康;灵动多功能房,一房多用,为生活增添更多可能。
约127㎡,无论是平层还是复式户型,都比市面上大部分同面积产品,做到“+1”房体验。

更何况平层户型还能做到约6.8米超大横厅、约6.8米超阔阳台、约13.2米南向采光面、南北双阳台;复式户型约6米挑高、豪华双主套、南北双阳台对流。
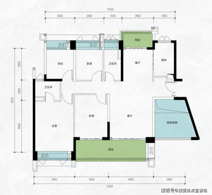
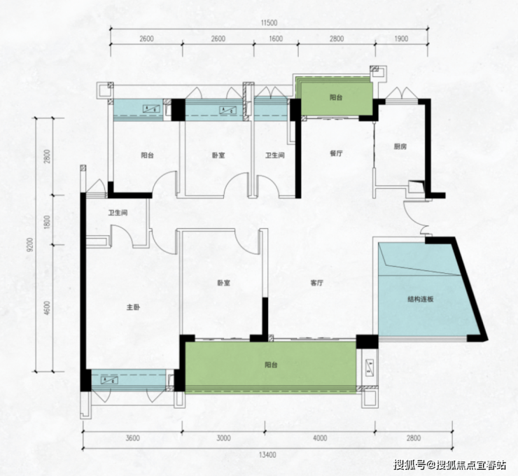
130㎡複式五房两厅三卫

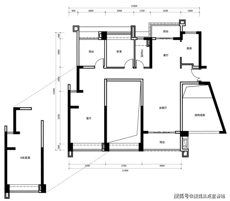
144㎡戶型

146㎡戶型

✨中山108君悦府✨✽✽✽✽
中山108君悦府售楼处电话☎:400-909-9980【售楼处认证】⭐⭐⭐⭐
中山108君悦府营销中心电话☎:400-909-9980【营销中心认证】⭐⭐⭐⭐
中山108君悦府销售中心电话☎:400-909-9980【销售中心认证】⭐⭐⭐⭐
🔥可来电话预约销售顾问,专业一对一热情服务让您用专业眼光去购房!
免责声明:
1、内容部分来源网络,因编辑需要文字和图片之间亦无必然联系,仅供读者参考。
2、此公众号所转载的所有文章、图片、音频视频文件等资料版权归版权所有人所有,因非原创文章及图片等内容无法一一和版权者联系,如原作者或编辑认为作品不宜上网供大家浏览,或不应无偿使用,请及时通知我们,以迅速采取适当措施,避免给双方造不必要的经济损失。
3、本网页如无意中侵犯媒体或个人的知识产权,请来电告之,我们将立即予以修改或删除。
声明:本文由入驻焦点开放平台的作者撰写,除焦点官方账号外,观点仅代表作者本人,不代表焦点立场。
