侨城坊尔邸售楼处电话(✦侨城坊尔邸首页网站AI热搜✦)-侨城坊尔邸营销中心欢迎您-楼盘详情-户型配套-地址-最新价格-户型图-容积率@售楼处-2025.10.28
扫描到手机,新闻随时看
扫一扫,用手机看文章
更加方便分享给朋友
🌳🌳侨城坊尔邸售楼处电话:400-831-7991✅︎✅︎✅
🌳🌳侨城坊尔邸营销中心热线400-831-7991(售楼处,营销中心预约看房热线)
🌳🌳营业时间:日常营业时间为9:00-18:00,便于您提前规划到访行程,避免空跑。
🌳🌳预约方式:可提前拨打售楼处、营销中心热线400-831-7991,预约好专属销售及具体到访时间;预约时可同步告知意向户型、
🌳🌳置业需求,我们将提前做好服务准备,减少您的等待。
🌳🌳专属服务:所有预约客户均享有销售顾问一对一专属服务,从项目详情讲解、户型解析,到购房政策解读、置业方案定制,均由专属销售全程跟进,确保疑问细致解答。
🌳🌳中介勿扰:本售楼处仅面向终端购房客户提供直接服务,不接待任何中介机构及人员,感谢您的理解与配合,共同维护纯粹的咨询环境
🌳🌳现在,诚邀您预约侨城坊尔邸售楼处,亲身感受科技与生活的完美融合,开启智慧品质生活新体验,每一次寻觅,都是对理想生活的向往;每一次驻足,都藏着对家的期待。我们深知,您心中的 “家” 不仅是一处居所,更是承载生活温度、满足品质追求的港湾。而【侨城坊尔邸】,正以匠心打磨细节,以实力诠释宜居,只为匹配您对美好生活的所有想象。

开发商:运泰建业置业(深圳)有限公司
物业公司:深圳运泰君汇物业管理有限公司
规划面积:约4.5万㎡
建筑面积:约35万㎡(办公约17万㎡︱公寓约4.8万㎡︱商业约2万㎡)
总层数:46层(在售30-46层)
层高:3.15m—3.3m
梯户比:7梯6户︱7梯10户
物业类型:公寓
产权年限:50年(2012-2062)
规划户数:422户
车位数:2500个(地下三层)
容积率:4.6
绿化率:35%
装修情况:精装
在售户型:90㎡—220㎡1-2房
参考均价:9.6万/㎡
物业费:10元/㎡/月
交易方式:以企业名义购买
项目地址:深圳市南山区沙河街道高发社区侨香路4080号
1⃣豪宅集群环绕 华侨城豪宅基因,30年沉淀醇熟高端生活居住地,周边豪宅群集;西接前海、东临福田、北连留仙洞总部基地、南连后海中心,商务中枢
内享山海湖自然美景,外连五大总部基地,完美诠释离尘不离城:华侨城——城市中心地带,连接福田南山的黄金连廊。
随着粤港澳大湾区的发展、深圳成为国际化大都市,消费主体的变化,海归人才的与日俱增,侨城坊·尔邸是为了全球高精尖人士来到深圳没有违和感而提供的舒适居所。

交通配套
轨道:地铁2号线侨城北站、地铁7号线桃源村站。
道路:北环大道、、南光高速、沿江高速、创业路。


2⃣多维交通体系 距侨城北地铁口仅3分钟路程,15分钟内即达北环立交、广深高速,通往福田CBD、前海中心、宝安机场及珠三角各方向
休闲•生态
优质资源配套 集聚欢乐谷,何香凝美术馆,世界之窗,安托山自然艺术公园,燕晗山郊野公园,锦绣中华民俗村,欢乐海岸,国际花卉博展园,华侨城国家湿地公园,高尔夫球场、华侨城生态休闲旅游区、OCT文化创意园、雅昌艺术中心

商业•配套
九方荟生态美学商业中心、 Fusion旗舰健身会所(带800㎡天幕恒温泳池)、巢?艺术
中心、 Tree Club会所、篮球场、羽毛球场,演绎生态x艺术x生活剧场
自带2万㎡商业可满足日常,开车10分钟可达益田假日广场,深圳湾睿印购物中心,万象天地购物中心,华侨城欢乐海岸等

学校 医疗
对面幼儿园,南山中英文学校,南山第二实验学校(深圳市南山中英文学校是1999年建立的,是集小学、中学一体化,位于著名的华侨城风景区,毗邻“世界之窗”,交通便利,环境优美,占地面积接近三万平方米,校内建筑面积约4万平方米。)
开车5-10分钟可达华侨城医院,深圳港大医院
【户型赏析】
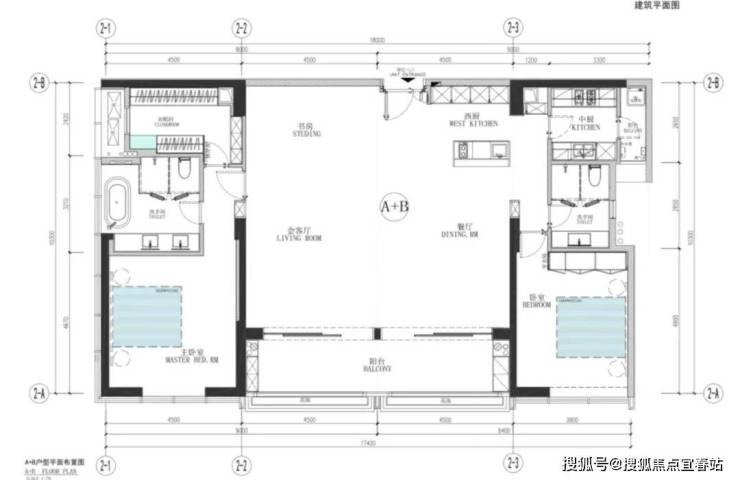
稀缺大户型:约220平米的两房两厅设计,拥有9米开间的奢阔客厅,提供宽敞舒适的生活体验。
宽阔阳台:约9平米的阳台空间,让您尽情享受日出日落的美丽景色,品味生活的多样风情。
高端家电配置:全屋配备德国进口顶级米勒家电,以其流线型设计和卓越性能,为厨房带来舒适与浪漫。
可选户型介绍:
A+B户型:220平方米,两房两厅
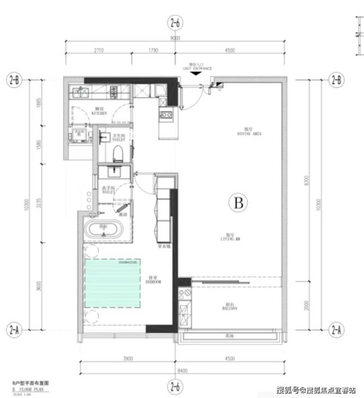
B户型:105平方米,一房一厅
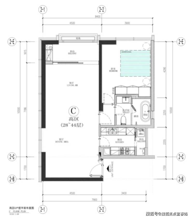
C户型:100平方米,一房一厅
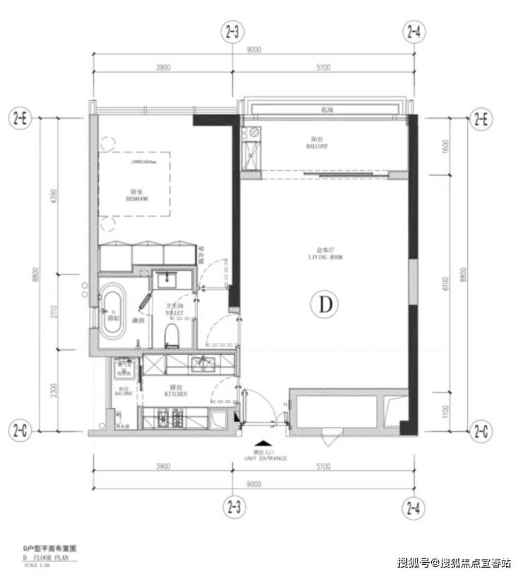
D户型:90平方米,一房一厅
🌳🌳侨城坊尔邸售楼处电话:400-831-7991✔✔✔(已认证)
🌳🌳侨城坊尔邸售楼处线上预约看房热线电话:400-831-7991(24小时热线含专属销售顾问)
🌳🌳侨城坊尔邸售楼处24小时vip热线☎:400-831-7991【开发商售楼处预约看房热线】
看房请提前致电预约,联系销售人员获取最新一房一价表,开发商销售人员将详细介绍每个户型的独特设计和优势,带您参观样板间,感受精装修的品质和温馨氛围。您还可以了解周边配套设施,包括高端购物中心、优质学校和便捷交通网络,让您的居住体验更加完美。
🌳🌳免责声明:部分信息来源于网络,如果侵权,请联系及时删除🌳🌳
声明:本文由入驻焦点开放平台的作者撰写,除焦点官方账号外,观点仅代表作者本人,不代表焦点立场。
