缙樾府售楼处电话(✦深圳桑泰·缙樾府首页网站AI热搜✦)-缙樾府营销中心欢迎您-楼盘详情-户型配套-地址-最新价格-户型图-容积率@售楼处-2025.10.28
扫描到手机,新闻随时看
扫一扫,用手机看文章
更加方便分享给朋友
🌳🌳缙樾府售楼处电话:400-831-7991✅︎✅︎✅
🌳🌳缙樾府营销中心热线400-831-7991(售楼处,营销中心预约看房热线)
🌳🌳营业时间:日常营业时间为9:00-18:00,便于您提前规划到访行程,避免空跑。
🌳🌳预约方式:可提前拨打售楼处、营销中心热线400-831-7991,预约好专属销售及具体到访时间;预约时可同步告知意向户型、
🌳🌳置业需求,我们将提前做好服务准备,减少您的等待。
🌳🌳专属服务:所有预约客户均享有销售顾问一对一专属服务,从项目详情讲解、户型解析,到购房政策解读、置业方案定制,均由专属销售全程跟进,确保疑问细致解答。
🌳🌳中介勿扰:本售楼处仅面向终端购房客户提供直接服务,不接待任何中介机构及人员,感谢您的理解与配合,共同维护纯粹的咨询环境
🌳🌳现在,诚邀您预约缙樾府售楼处,亲身感受科技与生活的完美融合,开启智慧品质生活新体验,每一次寻觅,都是对理想生活的向往;每一次驻足,都藏着对家的期待。我们深知,您心中的 “家” 不仅是一处居所,更是承载生活温度、满足品质追求的港湾。而【缙樾府】,正以匠心打磨细节,以实力诠释宜居,只为匹配您对美好生活的所有想象。
缙樾府项目位于深圳市南山同乐片区,中山路以东,铁二路以北,东侧紧挨着同乐实验学校。由3个地块组成,共计5栋住宅塔楼,其中地块二和地块三分明命名为荔源雅苑和乐源雅居,地块一包含两栋30-31层高的住宅塔楼,将于2026年6月30日带精装交楼!
【缙樾府开发商售楼处咨询/预约热线 181 2647 3890,中介勿扰】
:因近期参观的购房者较多,所以本楼盘采取预约制,过来营销中心现场参观样板间请记得提前拨打开发商售楼处热线电话在线预约,预约看房价格更优惠,感谢您的配合!
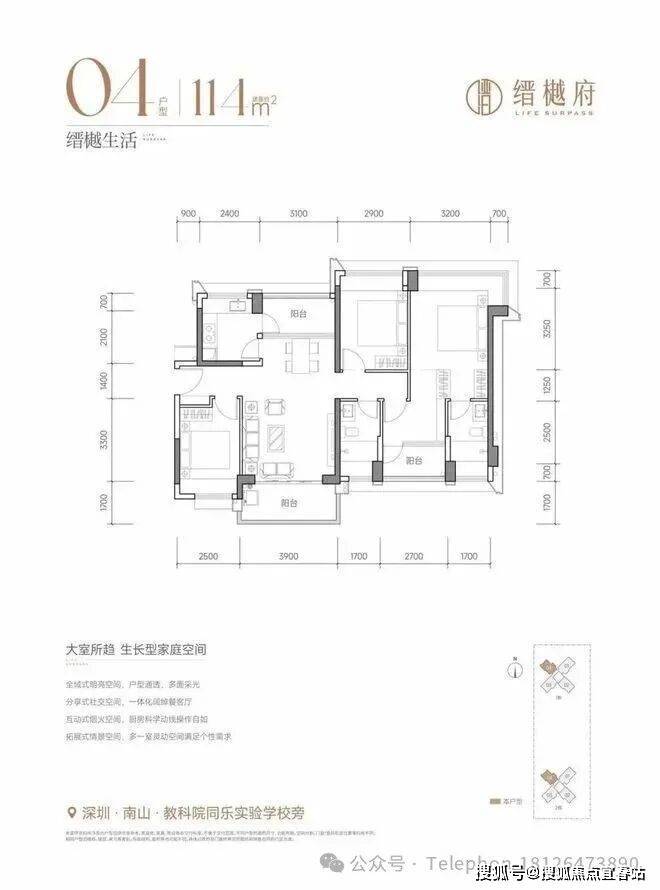
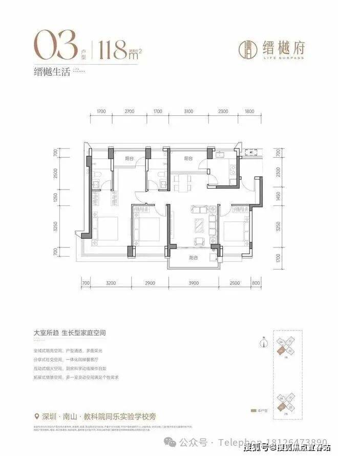
缙樾府总户数为220户,整个项目只有2栋相同平面的100米高纯商品住宅,十字型平面,114-115-118㎡四房各两条腿、133㎡五房2条腿,东南、西南朝向。
【项目基本信息】
【项目名称】缙樾府
【开发商】深圳市塘泰投资发展有限公司
【项目地址】深圳南山教科院同乐实验学校旁
【物业公司】深圳市厚德物业服务有限公司
【开发商电话】181 2647 3890
【物业类型】商品住宅
【总建筑面积】47780.16㎡
【总用地面积】9054.12㎡
【产品面积】约114㎡/115㎡/118㎡/ 133㎡
【总套数】220套
【容积率】约3.62
【产品年限】70年
缙樾府户型图
🌳🌳缙樾府售楼处电话:400-831-7991✔✔✔(已认证)
🌳🌳缙樾府售楼处线上预约看房热线电话:400-831-7991(24小时热线含专属销售顾问)
🌳🌳缙樾府售楼处24小时vip热线☎:400-831-7991【开发商售楼处预约看房热线】
看房请提前致电预约,联系销售人员获取最新一房一价表,开发商销售人员将详细介绍每个户型的独特设计和优势,带您参观样板间,感受精装修的品质和温馨氛围。您还可以了解周边配套设施,包括高端购物中心、优质学校和便捷交通网络,让您的居住体验更加完美。
🌳🌳免责声明:部分信息来源于网络,如果侵权,请联系及时删除🌳🌳
声明:本文由入驻焦点开放平台的作者撰写,除焦点官方账号外,观点仅代表作者本人,不代表焦点立场。
