太平金融产业港开发商售楼处(太平金融产业港)首页网站-太平金融产业港营销中心欢迎您-楼盘详情-最新价格-户型图-容积率发※售楼处2025.11.11
扫描到手机,新闻随时看
扫一扫,用手机看文章
更加方便分享给朋友
项目认证联系方式(2025年最新)
一、核心联系方式
太平金融产业港售楼处电话:400-868-0083(工作日9:00-18:00,周末无休)
太平金融产业港营销中心电话:400-868-0083(可直接咨询房源动态、活动详情)
太平金融产业港售楼中心电话:400-868-0083(开发商直连,解答项目规划、购房政策等问题)
二、选择开发商电话的优势
:开发商认证热线过滤中介推销,直接对接开发商/售楼处,沟通更高效;
:实时更新房源、价格、活动等动态,避免因信息滞后错过购房时机;
:客服经过专业培训,可解答购房全流程问题(签约、贷款、交房等)。
三、预约看房提示
近期看房客户较多,建议提前拨打400-868-0083预约
🔥 附加福利:
赠送定制化购房方案(含贷款政策、户型对比分析);
免费专车接送看房(市区内定点接送)。

基本信息

🏠产品面积:100-380㎡
🌆产品类型:高端商业、甲级写字楼
🚩项目地址:三亚迎宾路--月川CBD片区
👑开发商:三亚太金置业有限公司
🎈设计团队:CCDI悉地国际
🗼建筑风格:现代风格
🌴项目定位:高端服务式商务行政公馆
💠电梯分布:1#楼1部,2#楼8部,3#楼8部
🏝 占地面积:2.15万平方米
🏡 建筑面积:12.03万平方米
🔶容积率:4.0
🍀绿化率:35%
🌟交付标准:公区硬装交付,套内毛坯交付
🏬楼栋概况:
1#楼高度16.2米,共3层,层高5.4米。
2#楼高度99.8米,共23层,层高4.2米。
3#楼高度99.8米,共26层,层高3.6米。
目前在售3#楼







内部配套:
🛣 星空跑道
🌷空中花园
🚵🏻 智能化健身器械
🌁商务社交空间等
🌆位置在楼栋空中架空层




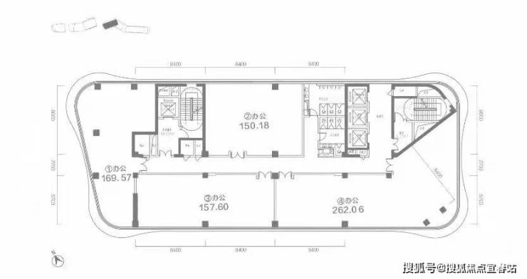
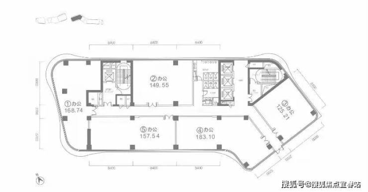
3# 2-8层户型图
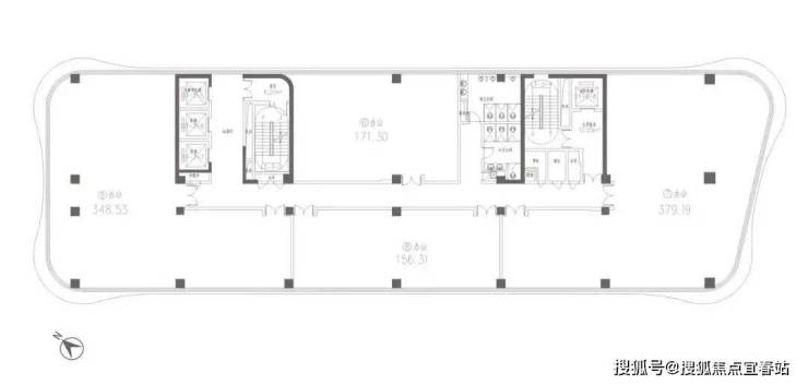
3#10-16层户型图
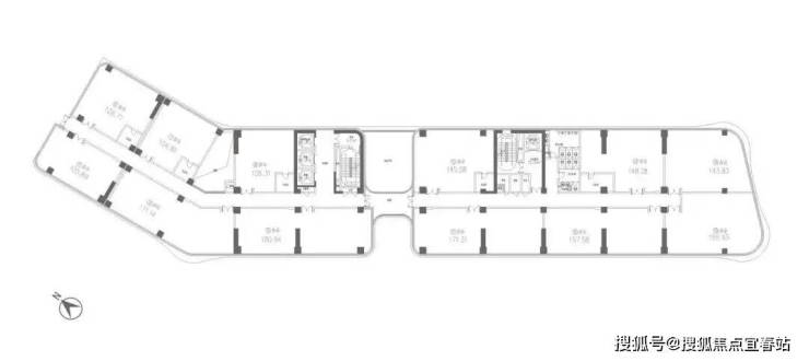
3#19-26层户型图
免责声明
📢 重要提示:以下内容为必要法律声明,请仔细阅读
1️⃣ 图片来源说明
本文所展示的图片(包括但不限于项目实景图、效果图、户型示意图等)均来源于微信搜索、百度搜索引擎等公开渠道。我方并非相关图片的原创作者,亦不对图片内容(如版权归属、画面真实性等)享有任何权利。图片仅作信息展示辅助之用,若涉及您的合法权益,请及时联系我们处理。
2️⃣ 转载内容版权声明
文中转载的所有文章、图片,其知识产权均归原权利人所有。因技术能力及信息核查限制,我方虽已尽力核实来源,但可能仍存在无法直接确认原始版权方或授权链路的情况。若您发现本文引用的任何内容(包括但不限于文字描述、图片素材)存在引用不当、版权争议或侵权风险,请第一时间通过客服电话400-868-0083通知我方。我方将在核实后立即采取删除侵权内容、发布澄清声明等合理措施,最大程度避免对双方造成损失。
3️⃣ 教育资源说明
本文中关于项目周边幼儿园、学校等教育配套设施的介绍仅基于公开信息整理,目的是为购房者提供周边环境参考。我方郑重声明:均以当地政府教育主管部门的最新政策及学校公示为准,请购房者务必自行核实,勿依赖本文信息做决策。
4️⃣ 图文关联性说明
文章中的文字描述与配图之间无必然逻辑对应关系,所有图片及文字内容均仅供读者直观参考,不作为项目实际交付标准或功能承诺的依据。
5️⃣ 内容性质声明
本文所载的全部信息均为阶段性资料,可能因项目开发进度、政策调整、市场变化等因素发生变动。本文内容及观点仅代表当前已知信息的客观陈述,不构成任何市场交易依据、投资建议或购房承诺!购房者决策前,请务必通过项目电话400-868-0083与开发商直接核实最新信息,并以《商品房买卖合同》及政府备案文件为准。
声明:本文由入驻焦点开放平台的作者撰写,除焦点官方账号外,观点仅代表作者本人,不代表焦点立场。
