深圳焦点热搜:乐城三期售楼处电话→乐城三期Ai热搜24小时售楼中心电话→2025最新房价→楼盘百科详情→售楼处更新发布@Ai热搜✦最新售楼处2025-11-11
扫描到手机,新闻随时看
扫一扫,用手机看文章
更加方便分享给朋友
⭐乐城三期⭐
⭐Vip Tel:400-8028-628(售楼处电话/营销中心电话/24小时热线/开发商售楼处/销售中心已认证)
⭐【乐城三期】售楼处24小时电话:400-8028-628(开发商直销)
⭐现场详细解答丨项目介绍丨户型图丨在售房源丨特价房丨学校丨交通位置丨样板房丨小区图片丨交房时间丨周边配套丨
⭐乐城三期营销中心电话☎:400-8028-628【营销中心预约热线】(一对一热情服务)
⭐乐城三期售楼处电话☎:400-8028-628【售楼处预约热线】(一对一热情服务) 看房请务必提前致电销售确认时间,只有预约客户才能享受开发商提供的内部优惠以及专属的老客户推荐奖励!我们提供专业的一对一热情服务,助您以专业视角挑选理想的房产。
最新消息
颐安乐宸花园已开盘,整体折后均价3.87万/㎡,折后单价3.73-4.01万/㎡,3房总价310万起,4房2卫总价375万起,4房3卫总价520万起。
83㎡的3房2卫,折后总价310-316万,单价3.73-3.8万。
99㎡的4房2卫,折后总价375-383万,单价3.78-3.86万。
114㎡的4房2卫,折后总价439-460万,单价3.82-4.01万。
117㎡的4房2卫,折后总价446-460万,单价3.82-3.93万。
133㎡的4房3卫,折后总价520-530万,单价3.9-3.98万。
⭐Vip Tel:400-8028-628(售楼处电话/营销中心电话/24小时热线/开发商售楼处/销售中心已认证)
⭐【乐城三期】售楼处24小时电话:400-8028-628(开发商直销)
乐城3期,由颐安集团打造,总占地面积约2.9万㎡,总建筑面积约17.11万㎡,计容建筑面积约12.29万㎡,容积率4.05,绿化率40%,共由6栋29-32层高住宅组成,其中1栋住宅29F,2栋住宅30F,3-6栋住宅32F。总规划1086户,全部3梯6户设计,户户朝南,地下室有3层,规划1116个车位,车位比1:1.02。
楼盘基础信息
1、开发商:深圳市荷康城房地产开发有限公司
2、物业公司:深圳市颐安物业服务有限公司
3、物业管理费:4.5元/㎡
4、总占地面积:2.9万/㎡
5、总建筑面积:17.11万/㎡
6、容积率:4.05
7、绿化率:40%
8、产权年限:2022年10月8日-2092年10月7日(70年住宅)
9、总户数:1086户
10、总栋数及楼高:6栋,总高29-32层
11、梯户比:3梯6户
12、车位数:1116个
13、车位占比:1:1.02
14、交楼时间:期房待定
15、交楼标准: 精装
项目户型介绍
83㎡的3房2厅2卫,设计的是经典竖厅格局,客厅3.35米开间,LDKB一体化,S墙设计预留双开门冰箱卡槽位,三开间朝南,动静分区,分别做到了主卧16.02㎡/次卧9.08㎡/次卧7.01㎡(包含墙体飘窗),U型厨房,公卫三段式干湿分离,赠送1.98平设备平台,得房率约77.15%(不含赠送),阳台5.02m²西南或东南朝向。靓点:83平做到了3房2卫,主卧270°无柱转角飘窗,厨房烟道外置+额外赠送设备平台,并且是纯南向格局。

99㎡的4房2厅2卫,设计的是竖厅格局,客厅3.35米开间,LDKB一体化,S墙设计预留双开门冰箱卡槽位,三开间朝南,动静分区,分别做到了主卧15.26㎡/次卧9.57㎡/次卧6.96m²/次卧6.96㎡(包含墙体飘窗),U型厨房,公卫三段式干湿分离,赠送设备平台,得房率约78.27%(不含赠送),客厅连接次卧出9.37m²大阳台西南或东南朝向。靓点:99平做到了4房2卫,主卧270°无柱转角飘窗,厨房烟道外置+额外赠送设备平台,并且是纯南向格局。

⭐Vip Tel:400-8028-628(售楼处电话/营销中心电话/24小时热线/开发商售楼处/销售中心已认证)
⭐【乐城三期】售楼处24小时电话:400-8028-628(开发商直销)
115㎡的4房2厅2卫,设计的是竖厅南北通透格局,进门入户玄关,客厅4.45米开间,餐客厅分离设计,分别做到了主卧23.45㎡/次卧8.96㎡/次卧7.84㎡/次卧7.68㎡(实测面积),客厅连接次卧出10.87m²的观景大阳台,L型中式+岛台灵动式厨房,公卫三段式干湿分离,得房率约78.27%(不含赠送),阳台主朝东南或西南向。靓点:南北对流+7.25米长超大观景南向阳台,超大主卧+270°无柱转角飘窗+进门独立玄关800库。

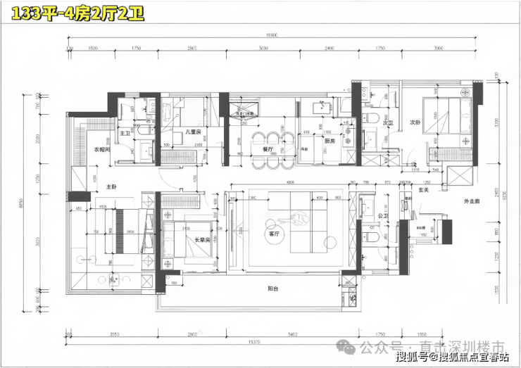
133㎡的4房2厅2卫,设计的是竖厅南北通透格局,进门入户玄关,客厅5.4米开间,餐客厅分离设计,分别做到了主卧24.5㎡/次卧10.2㎡/次卧8.96㎡/次卧7.84㎡(实测面积),客厅连接次卧出12.3m²的观景大阳台,L型中式+岛台灵动式厨房,公卫三段式干湿分离,得房率约78.27%(不含赠送),阳台主朝东南或西南向。靓点:超大客餐厅南北对流+8.2米长超大观景南向阳台,超大主卧+270°无柱转角飘窗+进门独立玄关800库。

项目区域及楼盘介绍


⭐Vip Tel:400-8028-628(售楼处电话/营销中心电话/24小时热线/开发商售楼处/销售中心已认证)
⭐【乐城三期】售楼处24小时电话:400-8028-628(开发商直销)

⭐Vip Tel:400-8028-628(售楼处电话/营销中心电话/24小时热线/开发商售楼处/销售中心已认证)
⭐【乐城三期】售楼处24小时电话:400-8028-628(开发商直销)

关于乐城三期最新动态信息,如:房价,主力户型面积,最低折扣,剩余户型楼层,去化率,几号地铁哪个地铁口,周边规划,项目的优劣势以及学校的配套等等都可以致电售楼处进行了解,我们将会安排内场专业置业顾问为您答疑解惑!
⭐开发商营销中心电话:400-8028-628(我们项目没有其他分机号)
⭐乐城三期『乐城三期』售楼处⭐
⭐乐城三期售楼处电话/咨询热线:400-8028-628(营销中心)⭐
温馨提示:本楼盘暂不接受临时到访,看房需提前来电预约!
将为您安排楼盘专业销售一对一接待服务!让你买的放心!
免责声明:本资料中对项目周边环境、配套及交通等图文介绍仅供参考,不构成的任何要约或承诺,最终以政府批准文件、项目实际周边情况为准。本项目的图文资料仅供参考、非要约,具体以交付时现状及买卖合同的约定为准。本公司保留修改宣传资料的权利,敬请留意项目最新资料,最终的解释权归本公司所有。
近日,G60杭金衢高速临浦收费站入口处,杭州高速交警二大队正如常开展车辆核查工作,收费站工作人员向交警反映:有几人从一辆面包车上匆忙下来,形迹可疑。
执勤民警秦超闻讯立刻警觉,一边快步朝车辆方向跑去,一边高声喊道:“前面的人不要跑,请配合检查!面包车请立即停车!”待现场人员聚集后,秦超初步清点,仅从车上下来的就有7人。他随即指挥该车靠边停稳,并要求车内所有人员全部下车接受检查。
接下来的场景,让现场民警心头一紧——狭小的车厢内密密麻麻挤满了人。秦超再次仔细清点,包括驾驶员在内,车里竟还有8人。民警打开后车门发现,为“塞”进更多人,驾驶员在车内放置了多个塑料小板凳。这样一来,乘客不仅无法系安全带,失去最基本的安全保障,车辆更因为严重超负荷行驶,在高速公路上随时可能酿成无法挽回的悲剧。
经了解,驾驶员范某当天在富阳下班后准备回家,为赚200元外快,顺路搭载14名乘客,计划从临浦收费站下高速。不料刚到收费站,就被交警查获。
随后,民警依法对范某的超员违法行为作出处罚,并对其进行了深刻的交通安全教育,使其认识到错误及潜在风险。由于14名乘客均住在临浦附近,民警组织范某联系其他车辆,对超员乘客进行了安全转运。
杭州高速交警提醒广大驾驶员:交通安全不容任何侥幸。超员、私自改装等违法行为不仅触犯法律,更是对生命的极端不负责任。高速公路行车环境复杂,超员车辆一旦发生事故,极易导致群死群伤的惨剧。请广大司机严格遵守交通法规,拒绝超员超载,做到文明驾驶、安全出行。
此外,高速行车请牢记“保命五条”:全员系好安全带,疲劳分心把命害,行车距离留余地,尾随货车生意外,违法停车危险来。如遇故障或事故,牢记“车靠边、人撤离、即报警”,三个动作必须快。
声明:本文由入驻焦点开放平台的作者撰写,除焦点官方账号外,观点仅代表作者本人,不代表焦点立场。
