三亚中投悦府24小时售楼处热线直通营销中心电话+最新动态:房价走势、户型解析、容积率详情
扫描到手机,新闻随时看
扫一扫,用手机看文章
更加方便分享给朋友
「400-873-0112(直达案场)|本项目全维度解析:房价/户型/房源/优惠/学区/地铁/交房标准,免费咨询预约看房!」
🌴中投·悦府🌴
🔥匠心品质 实景现房
中投·悦府占据金鸡岭居住片区核芯制高点,亲临金鸡岭街政法路,毗邻三亚城市主干道之一的凤凰路,临近三亚河,远眺金鸡岭及三亚湾,山、河、海景观资源俱备,三亚城心绝美臻稀席位。三栋板式高层住宅,临街商业环绕而成,内部为中央景观花园及泳池。
70年精工恒产,5.25米高入户大堂,高端大气通透通风。为了追求居住的品质以及舒适性,采用外连廊式设计,带来了更多通风和采光及景观视野,超1:1比例停车位,人车分流,安全人性化俱佳。项目迎合未来科技住宅发展趋势,打造高度智慧化社区,业主入门入户系统自动识别,刷脸解锁,智能家居,一键互联。
👑建筑面积约85.36_166平米纯板式住宅
🚕项目地址:天涯区金鸡岭街政法路7号
🏠开发商:海南中投合通实业发展有限公司
🌇占地面积:8191.67㎡
🏠建筑面积:41438.26㎡
🎆容 积 率:3.5
🌳 绿 化 率:40%
🏢产权年限:70年
🔑总 栋 数:4栋
🏢楼层总高: 2-23层
💎总 户 数:277户
💰停车总位:308个
🎀现房销售
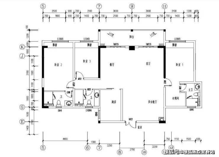
2#在售户型(现房)
B户型:85.36㎡两房两厅两卫
A型:87.71㎡三房两厅
3#楼在售户型(现房)
B户型:166.46㎡ 四房两厅三卫
园林装置小品(实景)
地下车库(实景)
园林休闲区(实景)
马赛克泳池(实景)
📢 【关于本项目·一键咨询】
「房价/户型/折扣/地铁/学区全解答!
🔥 最新动态、剩余房源、优惠名额打电话就懂!
✅ 专业置业顾问VIP服务,独家优惠仅限来电客户!
⏰ 24小时热线,黄金时段优先安排!
☎ 马上拨打:400-873-0112(直连案场|预约看房)
免责声明:部分信息来源于网络,如果侵权,请联系及时删除本宣传资料不构成邀约邀请,对周边、政府规划、商业配套、教育资源、投资前景等数据和图文仅为提供相关信息,该信息以政府最终批文为准,开发商不对此作任何承诺。买卖双方的权利义务以双方签订的买卖合同约定及附件、实际交付为准,本公司保留对宣传资料修改的权利,敬请留意最新资料。联系号码:400-873-0112。
声明:本文由入驻焦点开放平台的作者撰写,除焦点官方账号外,观点仅代表作者本人,不代表焦点立场。
