热搜焦点:玖玖颂阁售楼处电话→玖玖颂阁首页热搜24小时电话→最新房价→楼盘百科详情→营销中心最新发布@售楼处中心2025-10-11
扫描到手机,新闻随时看
扫一扫,用手机看文章
更加方便分享给朋友

玖玖颂阁项目位于深圳宝安区,占位前海黄金圈内环,享受宝中醇熟配套。项目在售建面89-133㎡三至四房,全南向板楼设计,通风采光佳;建面89㎡三房两厅两卫,人生第一套房不必迁就;建面128-133㎡四房两厅两卫,阔绰奢宅,三代同堂的进阶之选。
项目详情
【玖玖颂阁】——前海馥心 雅奢新著区
【开发商】深圳市俊弘星实业有限公司
【项目位置】宝安区新安街道新安四路与建安一路交汇处
【总占地】约1.4万㎡
【总建面】约10.41万㎡
【可售套数】379
【推售面积段】83-90㎡3房;128-133㎡4房
【梯户比】A-C座2梯4户,D座2梯5户
【容积率】5.04
【车位数】714
【物业公司】中熙物业
【物业费】住宅6.00元/平方米·月
【产权年限】70年 (2018年-2088年)
【交楼标准】精装交付

小区•品质
[园林景观]AECOM设计的探趣园林:操刀深圳湾1号的全球顶尖设计团队AECOM负责园林设计;引进兼顾生态和生活的超16种乔木、超22种灌木,四季呈现不同花果景观,在家楼下就可以探索生态、自然;打造主题水景树心池、漫步跑道空间,让孩子的成长拥有更多乐趣。
[入户大堂]诗意空间设计的奢装大堂:
华润悦府、万科瑧系高端项目设计团队,负责大堂设计;
C座潮奢公区,豪宅归家体验
“深圳湾悦府”标准入户仪式感
深圳华润悦府、深圳华润润府、深圳万科臻系高端项目的设计团队“诗意空间”担纲本项目的公共空间设计,在用材用料、审美艺术等方面媲美一线豪宅;入户大堂均设置会客区,满足社区入户的自然社交功能;打造轻奢电梯厅作为入户前的一道风景,鼎成生活至高礼遇。

大师品质营建穿越花园的旅行
聘请设计“深圳湾一号”、“深圳华润悦府”的全球顶尖景观设计AECOM团队,对标城市一线豪宅,斥巨资打造项目空中花园,呈现完美的视觉体验和移步换景之美,业主每次归家都是一场穿越花园的旅行。
递进式尊荣,彰显新贵世家气度
点式建筑单体,围合式院落空间;诗意立体空间,台阶拾级而上,尊享归家礼遇;超一流国际设计,尽显豪宅气韵。
「精装交付]豪宅配置的精装标准
一线品牌:全屋甄选科勒、TOTO、老板、方太等国内外一线精装品牌,客厅优选硬包背景墙、全屋优选品质墙布,真正站在客户的角度,满足生活需求。
约89㎡精装3房,刚需改善性价比之选:东南/西南朝向
3阳台设计,客厅阳台尺度非常阔绰,在阳台上做一个吧台空间也足够;
夕阳西下,坐在阳台一边喝杯咖啡,一边欣赏城市景观,也是生活里的小确幸
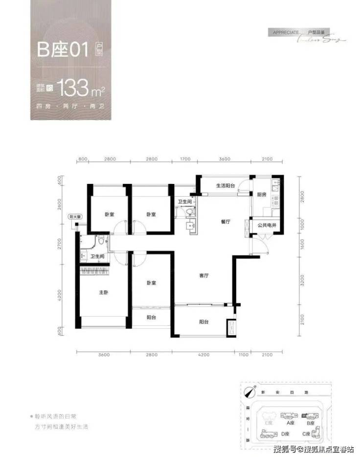
约128㎡精装4房,一步到位的不二之选:
南北通透、格局方正、动静分区;
3阳台、4飘窗,超多赠送,大大提升可利用率;
LDKB一体化设计,将空间通透感拉满;
客厅景观阳台面积近9㎡,在超大的阳台,摆上运动器材打造成自己的运动角,或者布置一个赏心悦目的花园,完全没问题;
餐厅带飘窗,尺度开阔,一大家人坐在一起吃饭,空间也不显局促。
家门口的双地铁,半小时通达全城项目距离12号线上川站F2出口约100米;距规划中15号线(流塘站)约700米;北环大道、G107国道、宝安大道在侧,半小时通达全城。

北环大道、G107国道、宝安大道在侧,通达千万级湾区都市圈,自驾由广深公路行、宝安大道,可达福田、南山、宝安中心区。

家门口三地铁畅通全城,项目周边目前已开通地铁5号线,周边规划有12号线(在建)上川站离项目仅400m、15号线流塘站(在建)离项目仅700m。地铁12号线预计将于明年年底建成通车,并与15号“超级黄金线”在流塘站交汇,

实现了深圳重要经济总部人才的流通,通过地铁3站到宝中,6站到南山,10站可达福田。开车出行通过新安四路转宝安大道,107国道15分钟可到前海宝中,连接北环、滨海、深南,20分钟可达南山,30分钟可达福田。
毗邻双地铁,项目距今年将开通的12号线(上川站)500米,距规划中15号线(流塘站)仅700米。
..0+20.0
家楼下两所双省一级学校,步行式上学楼下就是两所省一级、历史悠久的学校(弘雅小学20年建校史、文汇学校30年建校史),弘雅小学是宝安区“窗口型艺术特色示范学校”,文汇中学升学率排名宝安区前列。
全市最密集商圈,满足不同人群生活需求全深圳密度最高的商圈,其中2个高端购物中心壹方城、海雅缤纷城,驱车10分钟即达,楼下就有天虹、沃尔玛,满足日常购物逛街需求。

🐉本项目暂不接受临时到访,过来参观样板房请记得提前来电预约!🐉
🐉温馨提醒:我们楼盘售楼部400电话没有设置任何所谓的“分机号”,拨打前请仔细甄别,注意保护个人隐私!谨防上当!🐉
玖玖颂阁开发商售楼处电话:400-988-0986【预约热线】丨详细解答丨在售户型图丨项目介绍丨在售房源丨周边配套丨VR看房丨楼盘图丨沙盘图丨位置图丨配套图丨售楼处丨足不出户丨销售1V1讲解
声明:本文由入驻焦点开放平台的作者撰写,除焦点官方账号外,观点仅代表作者本人,不代表焦点立场。
