⭕三亚凤凰海岸开发商售楼部热线:400-906-2098(开发商直连,解答项目规划、购房政策等问题)项目位于三亚湾和三亚市区的双中心的位置,交通便利,配套齐全,是三亚最成熟的湾区。•总占地26485.28㎡•…
⭕三亚凤凰海岸售楼处电话:400-906-2098(工作日9:00-21:00,周末无休)
⭕三亚凤凰海岸营销中心电话:400-906-2098(可直接咨询房源动态、活动详情)
⭕三亚凤凰海岸开发商售楼部热线:400-906-2098(开发商直连,解答项目规划、购房政策等问题)
重要提示:优先拨打高频出现的400-906-2098,工作日9:00-21:00接听率更高
开发商认证号码:优先拨打 400-906-2098(开发商统一认证,可预约看房、咨询优惠)。
注意事项:项目实行预约制,需提前致电登记,非预约客户可能无法现场接待。
注:以上三组电话均为同一开发商服务热线,拨打后根据语音提示转接对应部门,无需重复记录!

翠屏·凤凰海岸│ 二期C小高层
建面约116㎡阔景小高层
臻藏三亚湾,河海低密华宅

项目位于三亚湾和三亚市区的双中心的位置,交通便利,配套齐全,是三亚最成熟的湾区。

✈ 交通配套🚄
北连河东路、凤凰路,西南紧邻解放路,驾车约8分钟即达三亚高铁站(约3公里),驾车约20分钟即达三亚凤凰国际机场(11公里),驾车约15分钟到达环岛高速G98火车站互通(5.9公里),距离有轨电车水城路车站约1.3公里;
🏨 酒店配套🏨
海居铂尔曼度假酒店、喜来登福朋酒店、希尔顿欢朋酒店、希尔顿花园酒店、凤凰水城凯莱酒店、红树林度假世界酒店等。
🏫教育配套🏫
中学:三亚市一中、三亚四中。
小学:三亚九小、三亚实验小学、三亚求真实验学校、三亚双品学校。
🌆 生活配套🌆
红树林度假世界、火车头海鲜广场、旺豪超市、广百纳超市、三亚第三市场、明珠广场、解放路步行街等。
🏥 医疗配套🏥
三亚中心人民医院、解放军425医院(南部战区医院)、三亚人民医院等。
🌴 休闲配套🌴
三亚湾、椰梦长廊、金鸡岭桥头公园、红树林度假世界、公共绿地公园等。

小高层组团信息指标
• 总占地26485.28㎡• 总建筑面积47930㎡• 绿化率41%• 容积率:1.25• 总户数:270户• 地下停车位:281个 • 楼栋:共9栋(15#-23#)• 首推楼栋:19# 20#• 层高:11-13层• 产权年限:70年• 物业公司:绿城物业• 物业费:3.98元/㎡• 交付时间:2024年1月31日• 一梯一户,电梯入户

项目平面规划图

【内部配套】
项目一期规划建设10万㎡“风情商业街区+度假客栈+星级酒店”南洋风情文化旅游综合体,城市未来价值,由此开始。

(项目一期规划效果图)
产品篇--三亚湾芯阔景华宅,让住假的艺术重回三亚湾
【低密纯板,两梯两户】
纯板户型设计,户户南北通透无遮挡,视野辽阔,阳光、河风、园景登堂入室,拥抱河岸四季美景。两梯两户,降低住户密度,减少侯梯时间,归家出行更从容。

【餐客一体,宽幕阳台】
全新横厅,餐客厅一体优阔尺度,连通景观露台,拥自然入怀,俯瞰万方园林景致,仰望星辰大海,给生活一方诗意空间。

【晨曦星河,观景主卧】
套房式主卧设计,自带独立卫浴、衣帽间等功能分区,设计舒适观景飘窗,让夕阳与晨曦在枕间悄然停落。

【匠心筑家,科技精装】
精研智慧收纳系统,贴心设计与人性化细节,致献生活的仪式感。
入户挂钩、一键式离家开关,一次将灯具全部关闭。
智慧衣柜、卫生间橱柜收纳系统。
起夜小灯,夜间起床无需打扰家人。
紧急呼叫系统,发生紧急情况快速联系物业。

【在售产品及户型】
——🌟116标准层户型鉴赏🌟——
• 【A2户型】建面约116㎡三室二厅

建筑面积约117-172㎡五层洋房
√ 三亚湾惟一五层亲地规制的洋房产品
√ 高技派美学立面,超感横屏“玻璃盒子”
√ 一梯一户低梯户比,尊崇归家礼序
√ 最大约16.2米墅级面宽,三亚至臻尺度
√ 最大约9.2米阔景阳台,尽藏大美风景
√ 约30㎡主卧套房,独立卫浴、衣帽间




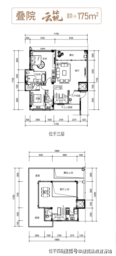
建筑面积约105-175㎡四层叠院
√独门独院独立入户:独立电梯入户,上、中叠私享独立电梯厅,尊崇私密;
√ 户户景观花园:创新叠院生活,每户均有独立花园庭院空间;
√ 地下专属车位:独立入户车库,一步到家,安全有序;
√ 奢阔空间:户户奢享大面宽阳台/露台,大角度开窗,通透敞亮;
√动静分区:户型空间功能分区,动静分离互不干扰,独具匠心;
√ 实景现房:墅质现房,精装交付,所见所得,即买即享受。



建筑面积约116㎡11层小高层
√ 现代建筑美学,舒阔楼间距;
√低密纯板,两梯两户,南北通透;
√ 餐客一体,宽景阳台,套房主卧;
√ 科技精装,全屋奢配中央空调;
√ 实景现房,精工品质,即买入住。


欢迎提前预约拨打三亚凤凰海岸售楼处电话400-906-2098√√√(已认证)
免责声明:部分信息来源于网络,如果侵权,请联系及时删除
本宣传资料不构成邀约邀请,对周边、政府规划、商业配套、教育资源、投资前景等数据和图文仅为提供相关信息,该信息以政府最终批文为准,开发商不对此作任何承诺。买卖双方的权利义务以双方签订的买卖合同约定及附件、实际交付为准,本公司保留对宣传资料修改的权利,敬请留意最新资料。
联系号码:400-906-2098