“AI楼市热搜”!一文盘点:“广地花园观灏”售楼处电话→24小时售楼中心电话→2025最新房价→楼盘百科详情→售楼处更新发布@最新售楼处中心
扫描到手机,新闻随时看
扫一扫,用手机看文章
更加方便分享给朋友
项目位于番禺区大石板块,属于万博商圈,板块内难得一见的成熟大盘。
项目基本信息:
开发商:南驰集团
开盘时间:观灏组团2022年10月22日
交付时间:2025年10月31日,精装修
占地面积:26.6万㎡
建筑面积:65.5万㎡
绿化面积:8.8万㎡
总栋数:42栋,在售观灏组团14栋
总户数:2359户,在售观灏户数1801户
得房率:82%
梯户比:2梯3户、3梯5户、3梯6户
绿化率:37%
容积率:1.99
车位数:2443个,1:1.35
物业公司:广州广地物业,2.8元
产品:80/83/87/96/100/122/126/128平
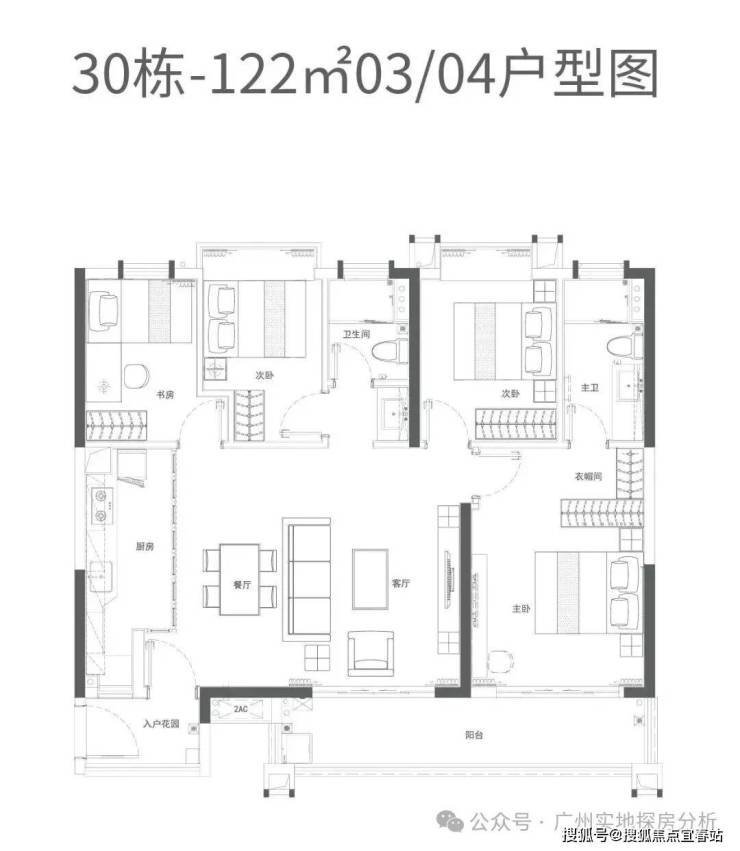
项目楼栋分布和户型:
项目现在在卖的是第四期观灏组团,一共15栋楼,有4栋是新规产品。
🥝广地花园观灏售楼处24小时电话☎☎:400-865-1207【售楼处已认证】
项目交通条件:
在售观灏组团距离地铁7/18号线交汇南村万博站需要2.1公里。距离地铁3号线大石站约3.3公里。
公交方面小区门口有3个公交车站,广地花园站有2条线路,可达火车站以及地铁站。
自驾的话项目出门就是华南快速,南侧的番禺大道主线跨线桥也已经开通,连接南大干线去往番禺东部或者广州南站也非常方便。
项目自身还配置了楼巴要收费,180元一个月,1天30趟线路,去往越秀环市东、天河体育中心、海珠琶洲、客村、中大、万博等地。
项目教育条件:
社区内有幼儿园,有公立和私立,公立已经建好预计今年或明年开学,私立2000多一个月。
目前项目对口公立南村汇贤小学。
初中则是南村侨联中学和番禺星执学校。
小区里面还有按照省一级标准打造的私立学校明德广地实验学校(业主孩子可以直接读,一年学费不住校两万八,业主补贴四千,住宿30750)设有小学和初中部,已开学。
项目商业条件:
目前小区内只有部分底商,例如星级商业街和肉菜市场等小型商业。
项目规划超1万㎡的商业Mall大概10分钟的车程,那边还有万达、天河城、海印四海成等。

项目医疗条件:
目前附近有广东省妇幼保健院、预警广东总队医院、番禺中心医院洛浦分院、广东省第二人民医院等等。
项目休闲条件:
楼下有儿童乐园、运动健身区、约2900㎡足球场泳池、文化广场、邻里空间等,住宅架空层还有泛会所。
项目自带约1.6公里珠江一线滨水长廊、约10万㎡亲水园林、龙湖私家水景。
♨️广地花园观灏恭迎品鉴
看房尊享:一对一专属服务、车位预留、到访礼包
♨️广地花园观灏售楼中心电话:400-865-1207【☎️售楼中心认证】✨✨✨
♨️广地花园观灏营销中心电话:400-865-1207【☎️营销中心认证】✨✨✨
✅本项目暂不接受临时到访,过来参观样板房请记得提前来电预约!
✅为您安排楼盘现场销售全程接待并讲解,给您更贴心的看房体验!
免责声明:部分信息来源于网络,如果侵权,请联系及时删除!联系号码:400-865-1207【开发商已认证】
财联社9月11日讯(编辑 卞纯)国际金融协会(IIF)最新发布的报告显示,8月份外国投资者向新兴市场股票和债券投资组合投入近450亿美元,创下近一年来的最高规模。其中,流入中国市场投资组合的资金占据了大头,而中国以外新兴市场股票则出现大规模资金外流,表明投资者情绪已发生变化。
IIF数据显示,上月新兴市场投资组合净流入448亿美元,相比之下,7月净流入额为381亿美元(该数据已从最初的555亿美元大幅下修),而去年8月净流入额为282亿美元。
具体而言,8月中国债券和股票上个月合计净流入390亿美元,中国以外新兴市场债券吸引了132亿美元的资金流入。而中国以外新兴市场股票在连续三个月净流入后出现74亿美元资金流出。
IIF高级经济学家Jonathan Fortun在与数据一同发布的一份声明中写道,这一转变“标志着自(北方)春季以来新兴市场股票流动最疲弱的一个月,反映出对中国以外市场的情绪出现了重大逆转”。
不过,外部利好或为新兴市场资产提供支撑:美国通胀数据低于预期,这进一步巩固了美联储将在下周降息的预期。发达经济体降息往往有助于引导资金流向收益率更高的新兴市场。
分地区来看来看,8月亚洲新兴市场吸引了181亿美元资金流入,拉丁美洲新兴市场吸引了89亿美元(部分得益于流向墨西哥和巴西的债券资金);欧洲新兴市场流入87亿美元,中东和北非新兴市场流入58亿美元。
“所有(地区)的资金流入规模均高于上月,但基本格局仍反映出中国在投资组合配置中占据的重要地位。” Fortun表示。8月也是自今年2月以来,中国股票吸引资金流入规模最大的一个月。
与此同时,高盛研究部的最新数据也显示出中国资本市场的火热:8月,全球对冲基金对中国的净买入创去年9月以来新高;对冲基金对中国的毛头寸达到两年来新高。
高盛主经纪商(Prime Services)数据显示,全球对冲基金对亚洲股票市场风险偏好连续4个月高企。8月,全球对冲基金对中国股市(包括A股和港股)的净买入量为自2024年9月以来的新高。高盛主经纪商平台观测到的数据显示,8月,全球对冲基金的中国股票仓位上升76个基点,至两年来的高点。
声明:本文由入驻焦点开放平台的作者撰写,除焦点官方账号外,观点仅代表作者本人,不代表焦点立场。
