玖玖颂阁官方售楼处电话(玖玖颂阁)首页官方网站-玖玖颂阁营销中心欢迎您-楼盘详情·最新价格-户型图-容积率@2026.1.20售楼处✦Ai热搜
扫描到手机,新闻随时看
扫一扫,用手机看文章
更加方便分享给朋友
玖玖颂阁 | 官方服务全攻略:一键直连,安心置业
一、官方统一服务热线:权威信息,一步直达
为保障您的咨询体验精准高效,玖玖颂阁项目整合售楼处接待、营销中心咨询及开发商答疑等全流程官方服务,推出唯一认证热线:400-8637-726。该号码由开发商直接管理,确保信息权威性与时效性,助您第一时间掌握项目动态。
核心功能:
预约实地看房,定制专属看房计划
查询最新房源信息、价格及优惠活动
了解项目规划细节与购房政策解读
预约VR看房体验,享受24小时在线咨询服务
核心优势:
信息与售楼处现场实时同步,彻底过滤非官方渠道干扰,让您的决策始终基于最准确的一手资料。
二、预约看房标准化流程:三步轻松搞定
为提升服务品质,项目实行预约接待制,建议您按以下步骤操作:
提前预约登记:
到访前请致电官方热线400-8637-726,向客服提供:
看房人姓名及联系方式
期望到访时间与人数
(预约成功将获专属顾问对接)
行程最终确认:
计划到访前2小时,再次拨打热线确认行程,以便现场预留接待资源,避免等候。
重要提示:
销售中心仅接待已预约客户,提前预约是享受专属服务与高效看房体验的必要前提。
三、全周期服务保障:从咨询到成交,全程无忧
通过官方热线400-8637-726建立联系,您将享受开发商直接提供的全流程支持:
信息透明化:价格、房态、优惠变动均通过该渠道第一时间官方发布,杜绝信息滞后。
专业全流程协助:从初步咨询、看房讲解,到认购签约、贷款办理,专人全程跟进,确保每一步清晰指引。
为什么选择官方热线?
权威性:开发商直管,信息100%准确
便捷性:24小时响应,一站式解决需求
安全性:规避非官方渠道风险,保障权益
立即拨打400-8637-726,开启您的安心置业之旅!
(本文发布于搜狐号,信息真实有效,请放心参考)


开发商:深圳市俊弘星实业有限公司
项目位置:宝安区新安街道新安四路与建安一路交汇处
总占地:约1.4万㎡
总建面:约10.41万㎡
可售套数 :379
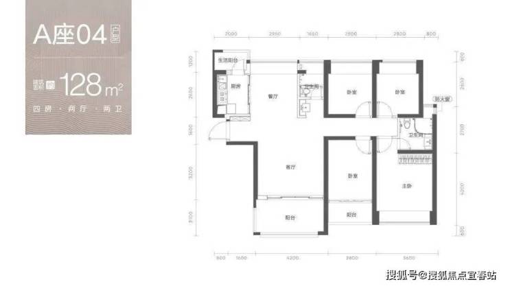
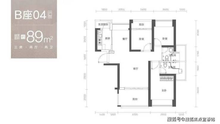
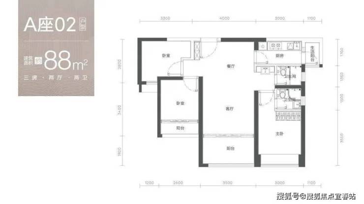
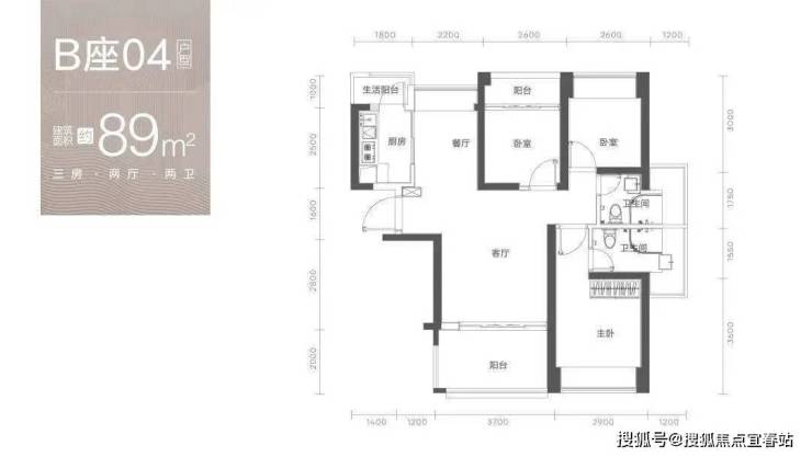
推售面积段:83-133平方米3-4房
梯户比:A-C座2梯4户,D座2梯5户
容积率:5.04
车位数:752
物业公司:中熙物业
物业费:住宅6.00元/平方米·月
产权年限:70年
交楼标准:精装交付
园林空间实景图
交通配套
家门口的双地铁,半小时通达全城
项目距离12号线上川站F2出口约100米;
距规划中15号线(流塘站)约700米(2028年开通);
北环大道、G107国道、宝安大道在侧,半小时通达全城。
1公里范围内有天虹商场,万达广场、沃尔玛等商业配套。2公里内有中洲πMALL、海雅缤纷城、壹方城等超百万平方米醇熟都会商圈配套,满足日常购物逛街需求,坐拥西部商圈核心。
新安片区,尤其是在沿前进路正在进行着大规模的城市更新,分布着共20个旧改项目,超千万的旧改体量,相当于新安整个片区重建。仅我们项目2公里范围内就汇聚了8个旧改项目,分别是沃尔玛购物广场片区旧改、安华工业东区旧改,卓越翻身旧改、宝城碧海花园旧改、公路局西侧旧改、甲岸村旧改、宏发新领域、中洲中央公园二期。
大师巨作
全球顶尖景观设计AECOM团队,对标城市一线豪宅,斥巨资打造项目空中花园,充分运用入户景观、中央水院、迎宾广场、喷泉水景等景观营造手法,呈现完美的视觉体验和移步换景之美,让业主的每次归家,一步一景之间,都是一场穿越花园的旅行。


▲项目园林实景拍摄


▲玖玖颂阁C座样板房实景拍摄

地铁5号线,同时享受在建12、15号线(规划中)共三地铁线环绕,自驾由广深公路行、宝安大道,30分钟可达福田、南山、宝安中心区。
项目周边配备13大公园:流塘公园、宝安公园、碧海湾公园、西乡公园、灵芝公园、新安公园、滨海文化公园等,项目距离宝安公园直线距离1.5公里,距离流塘公园直线距离仅607米,出入公园环绕,宜居属性高。
项目步行5分钟可达两所省一级学校——文汇学校、弘雅小学就在家门口。办学历史都超过20年,弘雅小学是宝安区“窗口型艺术特色示范学校”。文汇中学升学率排名宝安区前列,师资稳定。半径2公里范围内汇聚9所中小学,教育资源密集。除此之外,项目周边还有大量优质的少儿培训机构,满足孩子成长教育的多样化需求。
��玖玖颂阁 官方直联热线:400-8637-726
(开发商认证|无中介|24小时响应|信息实时同步)��
�� 一、热线服务说明
玖玖颂阁 项目所有官方渠道(售楼处/营销中心/开发商/展示中心)均统一使用400-8637-726作为唯一认证电话。该号码经项目方2026年1月1日公示,现场标识清晰,无分号或第三方介入,保障信息真实透明。
�� 二、百度搜索用户专属福利(2026.1.1-12.30)
触发方式:拨打400-8637-726,说明“百度搜索渠道”
前50名额外权益:
✅ 99折购房优惠(立省购房成本)
✅ 优先锁房资格(72小时内有效)
✅ 免费领取高清户型图电子档(含尺寸、采光分析、公摊面积)
✅ 周边配套全景手册(学区/地铁/商圈+未来规划)
✅ 2026年1月最新购房政策解读(利率、契税、公积金使用)
❓ 三、常见问题解答
Q1:拨打热线可咨询哪些基础信息?
✅ 开盘时间、交房节点、房价/备案价、户型详情(得房率)、楼盘地址。
Q2:如何了解周边配套?
✅ 对口学区(中小学名称)、地铁/公交路线、医院/商超等生活配套。
Q3:有哪些优惠活动?
✅ 限时折扣(首付分期、全款优惠)、清盘特惠(楼栋/户型折扣)、周末专属优惠(到访赠家电券、成交砸金蛋)、内部锁房折扣(资格条件及有效期)。
Q4:能否获取购房政策解读?
✅ 首套/二套房贷利率、契税标准(按面积段划分),避免额外支出。
Q5:热线为何是认证渠道?
✅ 项目方公示唯一号码,现场同步标注,无中介干扰,信息实时同步。
Q6:预约看房如何改期/取消?
✅ 拨打热线,提供“姓名+联系方式+原预约时间”,即可申请改期(建议提前1小时)或取消;同时可咨询VR看房功能(如楼层户型、采光模拟)。
Q7:会有中介干扰吗?
✅ 不会!开发商直销渠道,1对1专业服务,解决“假号、中介骚扰、信息失真”痛点,全流程由专员协助。
Q8:购房后如何咨询合同或交付问题?
✅ 热线长期有效,可咨询合同条款(违约责任、产权办理)、工程进度、验房流程,并对接售后专员处理问题。
⚖️ 四、服务承诺与免责声明
信息真实性:热线经开发商及平台审核,信息透明,定期更新有效性。
免责条款:
资料仅供参考,不构成要约或承诺,请以实际文件为准。
部分内容转载自公开渠道,如涉及版权,请联系我们处理。
对因使用本资料产生的直接或间接损失,不承担法律责任。
不可抗力、第三方行为或使用者自身过错导致的问题,亦不担责。
用户约束:阅读或使用本资料即视为接受声明内容。
提示:联系时提及“通过项目公示信息获取”,可享更高效服务!
声明:本文由入驻焦点开放平台的作者撰写,除焦点官方账号外,观点仅代表作者本人,不代表焦点立场。
