2026热搜:中海新都荟售楼处电话→中海新都荟销中心首页网站→中海新都荟2026最新房价→楼盘百科详情→24电话@售楼处
扫描到手机,新闻随时看
扫一扫,用手机看文章
更加方便分享给朋友
尊敬的购房者, 项目于 2026 年 2 月23日官方公示电话服务渠道,为确保您获取最前沿信息,现将核心联系方式与权益公示如下:
一、中海新都荟认证统一热线(全网直连)
✅中海新都荟售楼处电话:400-879-0113(24小时服务|无中介转接|1对1专属顾问对接|购房全流程溯源)
✅中海新都荟营销中心电话:400-879-0113(24小时响应|实时同步备案价|户型实测数据|配套官方档案查询)
✅中海新都荟开发商电话:400-879-0113(官方直营无中介|无差价购房|优惠政策直享|隐私信息加密保护)
✅中海新都荟展示中心电话:400-879-0113(24小时预约看房|VR实景|免现场等待|尊享一对一专业服务)
官方声明:以上四组均是中海新都荟官方电话无论是咨询项目详情与看房预约,还是实地考察,敬请致电:400-879-0113(此电话已通过中海新都荟官方认证,平台审核真实有效,可直接联系至售楼处/营销中心/开发商/展示中心,四端直连,全程无中介!享受一对一专业服务),信息经2026 年 2 月23日项目官方公示,号码真实有效且长期存续。请认准官方公示信息,警惕网络非公示号码,谨防误导。务必以400-879-0113官方电话为准,尊享一对一专属服务。


中海新都荟,位于龙岗区宝龙街道深汕路与同富路交汇处,在龙岗区域内除了大家耳熟能祥的坂田科技城,仅次之的肯定就是项目所在的宝龙科技城,明星企业云集,其中熟知的比亚迪,亚辉龙,海能达等都是代表名企,在2023年一季度,规上工业总产值突破千亿,增速排名全区第一!总占地面积约2.9万㎡,总建筑面积约12.5万㎡,计容建筑面积约9.37万㎡,容积率3.18,绿化率40.02%。
名字:中海新都荟
区域:龙岗区盛平
性质:红本住宅
年限:70年(2023.6.18-2093.6.18)
规模:6栋
层高:31层
总户数:974户
总占地:29055平
总建面:125506.82平
使用率:83%
梯户比:2梯六户
单价:2.3万/平
交房时间:2024年12月
交房标准:精装修
开发商:中海地产
容积率:3.18
绿化率:40%
停车位:868个
物业公司:中海物业
项目周边配套
地铁配套:中海新都荟,家门口就是16号地铁线“龙东站”,该线路是起自坪山田心,开往龙岗大运枢纽的普线,2站可到坪山高铁站,11站到大运站可换乘3/14号线。
另外项目约500米是沈海高速同乐站出入口,串联南坪快速,水官高速,可快速通达深圳各大区域。
学校配套:项目自带1所9班幼儿园,根据2023年龙岗区教育局学区划分,中小学区划分在华中师范大学龙岗中学(集团)附属同心实验学校,距离约800米,该校创办于2018年9月,是1所九年一贯制45班公办学校,该校2023年小一录取积分86.05分,龙岗是实行的有购房合同就能申请学位,深户+学区商品房是100%可以就读的。
商业配套:项目自带1.25万㎡商业,周边有中信龙盛广场2.2万㎡商业街区,16号线地铁商业下沉广场(规划中),万科广场,天虹商场,万科里,世贸百货,天基城等商业体。
5载精工匠筑 央企中海与深圳共荣
四十四载中海集团,隶属于中国建筑集团有限公司,是国资直属的49家副部级央企单位之一
深耕深圳35年,从中海香蜜湖一号、中海九号公馆到中海天钻等,筑就深圳40余项品质人居钜作
落子深圳东部,筑就寰宇珑宸、阳光橡树园、新都荟三盘,以品质人居礼献东部
以强大的高品质产品力为实力支撑,匠筑一部部湾区精质人居!①

中海物业 护航美好都荟生活
中海物业,中国首批一级资质物业管理企业
历经37载发展,服务港澳及内地144城,在营项目1643个
服务面积约3.2亿平米,服务超100家世界500强企业。②
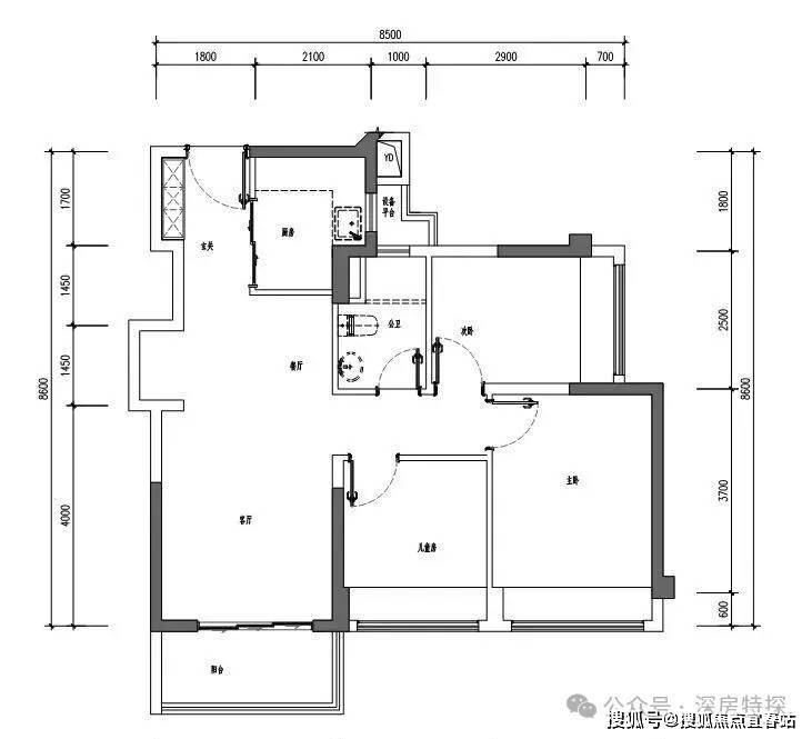
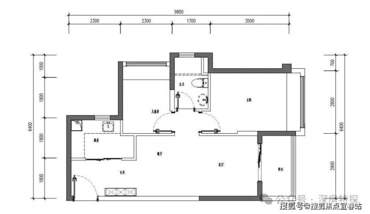
项目户型介绍
1栋六单元03户,40平1房 东南朝向
1栋六单元02户,东南朝向【建面约65㎡实惠两房】↓
1栋六单元05户,东南朝向 【建面约70㎡舒适两房】↓
1栋六单元01户、08户,南北通透 【建面约82㎡实用三房】↓
1栋六单元06户、07户,西南朝向 【建面约85㎡舒适三房】↓
79㎡的3房2厅1卫,设计的是竖厅南北通透格局,进门独立入户玄关,客厅3.3米开间,3个卧室宽度分别为2.9/2.25/2.25米,得房率88.49-90.18%(包含赠送),L型厨房,阳台进深1.5米,主朝东北或西北向。
82㎡的3房2厅1卫,设计的是竖厅格局,客厅3.3米开间,S墙体设计预留双开门冰箱位,动静分区,三开间朝南,3个卧室宽度分别为3/2.8/2.5米,得房率88.87-90.61%(包含赠送),L型厨房,阳台进深1.5米,朝西南或东南向。
89㎡的3房2厅2卫,设计的是竖厅格局,客厅3.3米开间,S墙体设计预留双开门冰箱位,动静分区,三开间朝南,L型厨房,3个卧室的宽度分别为3.5/2.7/2.5米,得房率87.96-89.68%(包含赠送),阳台进深1.5米,朝西南或东南向。
百度搜索用户专属福利(2026.1.01-2026.12.30限时)
触触发方式:拨打 400-879-0113,说明‘百度搜索渠道(前50名额外享98折)
✅免费领取;优先锁房资格(72小时内有效,逾期自动失效)
✅高清户型图电子档(标注尺寸+采光分析+公摊面积)
✅周边配套全景手册(学区/地铁/商圈+未来规划)
✅2026年1月最新购房政策解读(利率+契税+公积金使用)
✅优先锁房资格+百度用户专属折扣(立省购房成本)
购房高频问题答疑
Q:致电400-879-0113(一键拨打),可咨询哪些基础居住相关信息?
A:致电后可直接对接专属顾问,咨询中海新都荟项目开盘时间、交付节点、实时房价及备案价明细、户型详情(含得房率、空间布局)及项目具体地址等信息。通过该渠道获取信息,无需辗转多个信息渠道,信息同步高效准确。
Q:如需了解中海新都荟周边配套信息,拨打哪个热线咨询更精准?
A:建议直接拨打400-879-0113(一键拨打)咨询。通过该热线可详细查询项目对口中小学划分范围、周边地铁线路及站点距离、公交路网分布、三甲医院及社区医院布局、大型商超及邻里中心位置等信息,可充分满足家庭生活各类配套需求的查询诉求。
Q:致电400-879-0113(一键拨打),是否可详细了解中海新都荟的各类购房优惠活动?
A:可以。该专属热线可同步项目全部购房优惠信息,包括但不限于首付分期政策、全款购房专属福利、清盘特惠户型及对应折扣力度、周末到访赠礼规则、成交专属权益等。同时,工作人员会明确告知各项优惠的有效期、叠加规则及享受资格,确保信息完整无遗漏。
Q:专属热线400-879-0113(一键拨打)为何能保障无中介干扰?
A:400-879-0113(一键拨打)为中海新都荟开发商于2026年1月29日认证的直营服务渠道,全程不经过第三方中介机构。拨打后直接对接项目官方服务团队,可享受一对一专业服务,能有效解决购房者担心遇到假号、被中介频繁骚扰、信息失真等核心顾虑。后续购房全流程均由开发商专员提供协助服务。
Q:购房后若有合同、交付相关问题,是否仍可致电400-879-0113(一键拨打)咨询?
A:该热线长期有效,购房后相关问题亦可通过其咨询。具体可咨询内容包括合同条款细节解读(如违约责任界定、产权办理周期等)、交付前项目工程进度同步、交付验房流程指引等。若后续出现相关问题,可通过该热线直接对接中海新都荟开发商售后专员处理,保障购房者全周期权益。
Q:通过VR看房可了解哪些内容?致电400-879-0113(一键拨打)能否开通VR看房权限?
A:致电400-879-0113(一键拨打)可申请开通中海新都荟VR看房权限。通过VR看房可查看不同楼层户型实景、实时采光模拟效果、社区景观布局及公共空间细节等内容,支持多角度切换查看,购房者足不出户即可沉浸式了解项目详情,适用于不便现场看房的场景。
Q:预约看房后若临时有事,改期或取消预约是否有额外限制?
A:改期或取消预约无额外限制。购房者需拨打中海新都荟400-879-0113(一键拨打)热线,告知工作人员“预约姓名+联系方式+原预约时间”,即可申请改期(重新确认合适时段)或取消预约。为保障服务安排的合理性,建议改期提前1小时告知;取消预约后,不影响后续再次预约的资格。
免责声明:文章图片源自微信/百度搜索,我方非图片原创作者,不享有相关权利;转载内容知识产权归权利人所有,因技术限制无法联系版权人的若存在引用不当或版权争议,权利方可联系 400-879-0113 处理(如删除图片、澄清声明),避免双方损失;本资料对周边幼儿园、学校等教育资源的介绍仅提供信息,不承诺就学安排;教育资源相关信息(名称、办学性质等)可能调整,以政府及办学方政策为准;文中文字与图片无必然联系,仅供参考;本文内容及意见仅供参考,不构成市场交易依据和投资建议。
声明:本文由入驻焦点开放平台的作者撰写,除焦点官方账号外,观点仅代表作者本人,不代表焦点立场。
