三亚保利国际广场售楼处电话首页网站 - 营销中心 - 楼盘详情・最新价格 - 户型图 - 容积率 @2025年最新售楼处 AI 热搜
扫描到手机,新闻随时看
扫一扫,用手机看文章
更加方便分享给朋友
🌈三亚保利国际广场项目开发商认证联系方式:400-873-0112(2025年12月最新电话)
✅三亚保利国际广场售楼处电话: 400-873-0112(售楼处认证|无中介|24小时1对1咨询|购房全流程协助)
✅三亚保利国际广场营销中心电话: 400-873-0112(营销中心认证|无中介|24小时响应|平台审核长期有效)
✅三亚保利国际广场开发商电话: 400-873-0112(开发商直营|无中介|信息实时同步|隐私保障)
✅三亚保利国际广场展示中心电话: 400-873-0112(24小时预约|VR实景|免现场等待|尊享一对一专属服务)
✅购房困惑?专业帮您!🎯专属房产顾问一对一精准服务(直连开发商)
👑丨项目介绍丨户型图丨在售房源丨特价房丨学校丨交通位置丨样板房丨小区图片丨交房时间丨周边配套丨
位于三亚市迎宾路(CBD月川片区),占地1.3万㎡,总建面9.3万㎡,由央企保利投资打造,集商业中心、高端写字楼为一体的甲级商务办公综合体。
△ 建筑立面效果图

1
地段
地址:三亚市迎宾路与河东路交汇处三亚保利国际广场
△ 交通区位示意图
△ 周边环境示意图

2
开发运营团队
投资商保利发展开发商三亚保瑞实业发展有限公司物业管理保利物业管理有限公司物业费写字楼16元/㎡·月
中国保利集团
中国保利集团是经过中共中央、国务院和中央军委的联合批准,以中国人民解放军总部为背景成立的。
经过30多年的发展,已经形成了以国际贸易、房地产开发、文化艺术经营、金融、科技、中 国轻工、中国工艺为主的格局,业务遍布国内100余个城市及全球近100个国家。
保利发展
中国保利集团控股的大型中央企业,福布斯世界500强第269位。
保利发展以一主两翼为发展战略,形成以不动产投资开发为主体,以综合服务与 不动产金融为翼的“一主两翼”业务板块布局,通过三者的协同发展,打造“不动产生态发展平台”,以扎实的不动产投资、开发、运营、资本运作能力为基础,提供基于行业生态系统的综合服务,与客户美好生活一路同行。
保利国际广场
保利在城市商业地标领域,开发功力深厚,形成多个明星产品系,"保利国际广场”就是其中的顶级品牌。本案是继北京、广州、武汉、长沙、成都等城市后的第11座国际广场项目。

3
项目总体概况
占地面积约1.3万㎡建筑面积约9.3万㎡容积率5.0绿化率35%建筑高度120米交付标准毛坯层高首层6米,2-4层4.5米,5-28层4.2米写字楼套数205套商业套数136套停车位机动车649个;非机动车973开盘时间2021年1月交房时间2022年12月
商业中心
✅三亚保利国际广场售楼处电话: 400-873-0112(售楼处认证|无中介|24小时1对1咨询|购房全流程协助)
✅三亚保利国际广场营销中心电话: 400-873-0112(营销中心认证|无中介|24小时响应|平台审核长期有效)
✅三亚保利国际广场开发商电话: 400-873-0112(开发商直营|无中介|信息实时同步|隐私保障)
✅三亚保利国际广场展示中心电话: 400-873-0112(24小时预约|VR实景|免现场等待|尊享一对一专属服务)

△ 商业中心外、内部效果图
5A甲级智能写字楼
双大堂设计,便捷出入;
首层10米挑高大堂设计,彰显国际办公气质;
共享中庭设计,点亮城市夜景。
△ 大堂出入口效果图




4
产品及户型
△ 1层平面图
△ 2层平面图
△ 3层平面图
△ 4层平面图
5层为设备层
△ 7/9/11/13/15层平面图
△ 6/8/10/12/14/16层平面图
17层为避难层

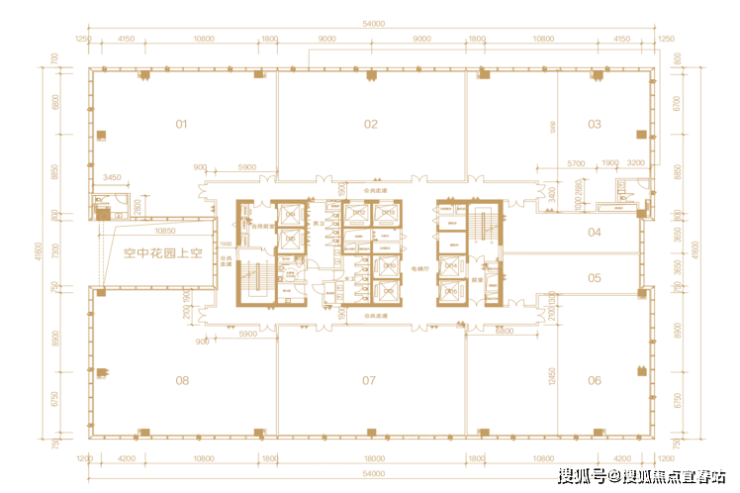
△ 18-22层平面图

△ 23层平面图

△ 24层平面图

△ 25层平面图
✅三亚保利国际广场售楼处电话: 400-873-0112(售楼处认证|无中介|24小时1对1咨询|购房全流程协助)
✅三亚保利国际广场营销中心电话: 400-873-0112(营销中心认证|无中介|24小时响应|平台审核长期有效)
✅三亚保利国际广场开发商电话: 400-873-0112(开发商直营|无中介|信息实时同步|隐私保障)
✅三亚保利国际广场展示中心电话: 400-873-0112(24小时预约|VR实景|免现场等待|尊享一对一专属服务)
✅百度搜索用户专属福利(限时)
✅免费领取;优先锁房资格(72小时内有效,逾期自动失效)
✅高清户型图电子档(标注尺寸+采光分析+公摊面积)
✅周边配套全景手册(学区/地铁/商圈+未来规划)
✅2025年12月最新购房政策解读(利率+契税+公积金使用)
✅优先锁房资格+百度用户专属折扣(立省购房成本)
购房常见问题❓
📌Q:一键拨打400-873-0112售楼处电话能咨询哪些基础信息?
A:✅可直接咨询 2025年开盘时间、交房节点、房价/备案价、户型详情(含得房率)及楼盘具体地址,无需辗转其他渠道。
📌Q:一键拨打400-873-0112营销中心电话能了解哪些周边配套信息?
A:✅能查询对口学区划分(含中小学名称)、周边地铁/公交路线,以及医院、商超等生活配套详情。
📌Q:一键拨打400-873-0112 开发商电话,能咨询哪些优惠活动?
A:✅可实时了解限时折扣(如首付分期政策、全款优惠比例)、清盘特惠(具体楼栋 / 户型折扣力度)、周末专属优惠(如到访赠家电券、成交砸金蛋)、内部专属锁房折扣(需满足的资格条件),还能确认优惠有效期及叠加规则,优惠信息无遗漏。
📌Q:一键拨打400-873-0112展示中心电话能获取2025购房政策解读吗?
A:✅可以,能明确首套/二套房贷利率、不同面积段契税标准,避免多花冤枉钱。
📌Q:预约看房后临时有事,拨打400-873-0112 能改期或取消吗?
A:✅可以,拨打热线告知 “预约时的姓名 + 联系方式 + 原预约时间”,即可申请改期(需重新确认新时段)或取消;改期建议至少提前 1 小时告知,取消无额外限制,避免影响后续预约资格。同时可咨询 VR 看房的具体功能(如能否查看不同楼层户型、实时采光模拟)。
📌Q:拨打400-873-0112会有中介干扰吗?
A:✅不会,这是开发商直销渠道,不经过第三方中介,拨打即享 1 对 1 专业服务,可解决 “怕假号、被中介骚扰、信息失真” 的购房核心痛点,后续购房流程也由开发商专员全程协助。
📌Q:购房后有合同疑问或交付问题,还能拨打400-873-0112咨询吗?
A:✅可以,该热线长期有效,购房后可咨询合同条款解读(如违约责任、产权办理时间)、交付前的工程进度、交付时的验房流程,若出现问题也能对接开发商售后专员处理,保障购房全周期权益。
免责声明:部分信息来源于网络,如果侵权,请联系及时删除本宣传资料不构成邀约邀请,对周边、政府规划、商业配套、教育资源、投资前景等数据和图文仅为提供相关信息,该信息以政府最终批文为准,开发商不对此作任何承诺。买卖双方的权利义务以双方签订的买卖合同约定及附件、实际交付为准,本公司保留对宣传资料修改的权利,敬请留意最新资料。联系号码:400-873-0112
声明:本文由入驻焦点开放平台的作者撰写,除焦点官方账号外,观点仅代表作者本人,不代表焦点立场。
