首页热搜@深业颐瑞府售楼处电话→深业颐瑞府Ai热搜营销中心24小时电话→深业颐瑞府欢迎您丨项目介绍丨户型图丨容积率丨开发商售楼处
扫描到手机,新闻随时看
扫一扫,用手机看文章
更加方便分享给朋友
🎄深业颐瑞府【已认证】✨✽✽✽
💫深业颐瑞府开发商客服专线:400-985-7760开发商已认证✨✽✽✽
💫深业颐瑞府开发商电话:400-985-7760开发商已认证✨✽✽✽
💫深业颐瑞府售楼处电话:400-985-7760售楼处已认证✨✽✽✽
💫深业颐瑞府营销中心电话:400-985-7760营销中心已认证✨✽✽✽
👉在售户型图丨项目介绍丨最新房源丨周边配套丨详细解答〢
👉◆开发商营销中心诚挚邀请,一键预约,尊享内部折扣!匠心独运的精品项目,恭候您的品鉴与选择。
✅盛璟润府售楼处电话/地址发布【已认证】
✅ 过来参观样板房烦请记得提前来电预约!
✅ 为您安排楼盘现场销售全程接待并讲解,给您更贴心的看房体验!
龙华红山终选:深业颐樾府由7栋高层和超高层塔楼围合而成,配有一所6班制幼儿园和约2000㎡商业。项目分两期开发,其中2、3、5、6栋为商品房,规划总户数约1410户(可售住宅870户),总层高32-45层,梯户比为2梯6户/3梯6户,实用率为77.3%~80.9%(不含半个阳台及所有飘窗)。
《深业颐樾府》项目占地面积约2.61万㎡,规划总建筑面积约19.5万㎡,计容积率建面约14万㎡,其中住宅约12.71万㎡,商业约2000㎡,幼儿园约1650㎡,公交首末站约2900㎡,零配件有老年人日间照料中心、物业服务用房、垃圾转运站等基础配套设施。项目由8座建筑组成,其中4座普通商品住宅,2座移交政府租赁住宅,1座开发商自持租赁住宅,1座6班幼儿园教学楼。

💫深业颐瑞府开发商客服专线:400-985-7760开发商已认证✨✽✽✽
💫深业颐瑞府开发商电话:400-985-7760开发商已认证✨✽✽✽
💫深业颐瑞府售楼处电话:400-985-7760售楼处已认证✨✽✽✽
💫深业颐瑞府营销中心电话:400-985-7760营销中心已认证✨✽✽✽
项目分两期报建,其中一期1栋1单元为开发商自持租赁租赁住宅楼,1栋2-3单元为移交政府保障租赁住宅楼,2栋和3栋为普通商品住宅楼;二期5栋和6栋为普通商品住宅楼

【樾·匠心】颐系力作🔸传奇再启
深业颐樾府以半围合式宽景纯奢住区,让社区园林与城市霓虹巧妙过渡,实现出则繁华入则静谧的生活意境,收藏城市的抱负,悦赏生活风景。
项目钜献建面约78-125m²颐系升级新品,主流三至四房户型,格局方正采光通透,宽景阳台揽胜云端,栖居一府天地,私享一方静界。
【樾·品牌】享誉市场🔸府开龙华
深业集团,40载国企典范,秉承“再深耕·共成长”发展理念,探索生活的更多美好可能。深业置地,深业集团旗下专注于商业地产开发的大型房地产企业,从深业上城到颐湾府、颐泽府、颐瑞府,每一部作品皆是城市标杆所在。2022年,深业置地联袂龙华安居,落子红山中芯最后土地珍藏,敬献龙华时代封面,以非凡著作迭新深圳人居品藏
💫深业颐瑞府开发商客服专线:400-985-7760开发商已认证✨✽✽✽
💫深业颐瑞府开发商电话:400-985-7760开发商已认证✨✽✽✽
💫深业颐瑞府售楼处电话:400-985-7760售楼处已认证✨✽✽✽
💫深业颐瑞府营销中心电话:400-985-7760营销中心已认证✨✽✽✽
约78㎡三房一卫(2/3栋04户型)
经典竖厅格局,动静分离,卫生间干湿分离设计,卧室二尺度较小,东南朝向;按照建面与功能间配比,在片区新房里,这个户型具有一定的优势。
约95㎡三房二卫(2/3栋01/02/03户型)
经典竖厅格局,次卧一和客厅连接约6米超长阳台,卫生间干湿分离设计,03户型东南朝向,01/02户型西南朝向。
💫深业颐瑞府开发商客服专线:400-985-7760开发商已认证✨✽✽✽
💫深业颐瑞府开发商电话:400-985-7760开发商已认证✨✽✽✽
💫深业颐瑞府售楼处电话:400-985-7760售楼处已认证✨✽✽✽
💫深业颐瑞府营销中心电话:400-985-7760营销中心已认证✨✽✽✽
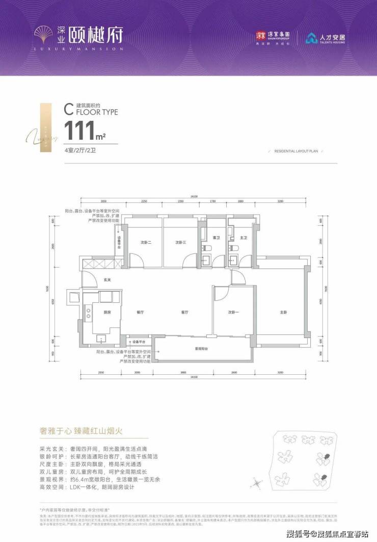
约111㎡三房二卫(2/3栋05户型)
横厅格局,餐客一体,卫生间干湿分离设计;入户玄关正对主卧门,不好,两位次卧的门正对餐客厅,隐私性差;东南朝向。
约125㎡四房二卫(2/3栋06户型)
横厅格局,111㎡的放大版,客厅与次卧一约6.9米超长阳台,卫生间干湿分离;同样入户玄关正对主卧门,两个次卧门正对餐客厅,西南朝向
💫深业颐瑞府开发商客服专线:400-985-7760开发商已认证✨✽✽✽
💫深业颐瑞府开发商电话:400-985-7760开发商已认证✨✽✽✽
💫深业颐瑞府售楼处电话:400-985-7760售楼处已认证✨✽✽✽
💫深业颐瑞府营销中心电话:400-985-7760营销中心已认证✨✽✽✽
💫深业颐瑞府开发商客服专线:400-985-7760开发商已认证✨✽✽✽
💫深业颐瑞府开发商电话:400-985-7760开发商已认证✨✽✽✽
💫深业颐瑞府售楼处电话:400-985-7760售楼处已认证✨✽✽✽
💫深业颐瑞府营销中心电话:400-985-7760营销中心已认证✨✽✽✽
💫深业颐瑞府开发商客服专线:400-985-7760开发商已认证✨✽✽✽
💫深业颐瑞府开发商电话:400-985-7760开发商已认证✨✽✽✽
💫深业颐瑞府售楼处电话:400-985-7760售楼处已认证✨✽✽✽
💫深业颐瑞府营销中心电话:400-985-7760营销中心已认证✨✽✽✽
1、看户型的形状
好的户型应该是方方正正,少边角。
2、看户型的方位(朝向)
一般来说,住宅朝向的优劣顺序为正南、东南、东、西南、北和西。也跟所在城市相关,需要结合实际情况来选。
3、看户型的通透性
主要看房间内的窗户,南北相对两面,采光和通风效果最好,空气形成对流快,有利于促进室内空气循环,保持干燥。其次是相邻两面,最差的全是一面。
4、看户型的分区
功能分区,不同活动有不同空间,居住起来更舒适。
干湿分区:厨房和卫生间和客厅卧室分开。
动静分区:休闲娱乐和休养生息要分开。
公私分区:整体上有遮挡,不能站在门外对屋内一览无余。
5、看户型的尺寸
户型的大小,需要亲自去体验一下,相对来说,卫生间在4-5平米,卧室面积在12-15平米左右,客厅面积21-30平米,厨房面积4-5平米,居住起来会比较舒服。
6、看户型的走道
走道其实是对住房资源的浪费,所以一定要选择走道不多的房子
低楼层:1~4层属于低楼层,出入方便,适合有老人的家庭,如果有花园更好。缺点是受周边建筑以及植被的遮挡,室内的采光与通风效果较差,湿气也较重。
5-11层:这几层属于较好的楼层,首先视野较为开阔,通风采光也不错,即使电梯出现故障出行也不会太困难,整体居住舒适度不错。
12-23层:采光好视野开阔,光照时间也长,噪音影响小。但受到电梯、水电的影响较大。
24-29层:安静视野好,不用担心灰尘、噪音问题。缺点是不分特定人群不适合居住,比如心脏病、慢性支气管炎等等疾病患者,同时也要注意儿童也不适宜长期居住。
33层:一层3米,33层再往上超100米了。按《民用建筑设计通则》规定:建筑高度超过100米时,不论住宅及公共建筑均为超高层建筑。因此,一般限制在33层。
总之,高层日照长、采光好、噪音小、视野开阔,多层每层户数少,房屋结构好,南北通风好。如果不考虑价格因素的话,多层适合注重户型结构的人,而高层适合在意光线和风景的人。
🎄深业颐瑞府【已认证】
💫深业颐瑞府开发商客服专线:400-985-7760开发商已认证✨✨✨
💫深业颐瑞府开发商电话:400-985-7760开发商已认证✨✨✨
💫深业颐瑞府售楼处电话:400-985-7760售楼处已认证✨✨✨
💫深业颐瑞府营销中心电话:400-985-7760营销中心已认证✨✨✨
👉在售户型图丨项目介绍丨最新房源丨周边配套丨详细解答〢
👉◆开发商营销中心诚挚邀请,一键预约,尊享内部折扣!匠心独运的精品项目,恭候您的品鉴与选择。
✅盛璟润府售楼处电话/地址发布【已认证】
✅ 过来参观样板房烦请记得提前来电预约!
✅ 为您安排楼盘现场销售全程接待并讲解,给您更贴心的看房体验!
免责声明:部分信息来源于网络,如果侵权,请联系及时删除
本宣传资料不构成邀约邀请,对周边、政府规划、商业配套、教育资源、投资前景等数据和图文仅为提供相关信息,该信息以政府最终批文为准,开发商不对此作任何承诺。买卖双方的权利义务以双方签订的买卖合同约定及附件、实际交付为准,本公司保留对宣传资料修改的权利,敬请留意最新资料。联系号码:400-985-7760
深圳市住房和建设局与中国人民银行深圳市分行联合发布通知,自2025年9月6日起实施以下优化措施:
1. 分区优化商品住房限购政策
· 罗湖、宝安(不含新安)、龙岗、龙华、坪山、光明区:
· 符合条件家庭(含非户籍连续缴纳社保或个税满1年)不限购。
· 非户籍若无法提供1年社保/个税证明,限购2套。
· 盐田区、大鹏新区:不再审核购房资格。
· 成年单身人士按家庭政策执行。
2. 企事业单位购房政策
· 可在全市购买商品住房用于解决员工住房需求。
· 福田、南山、宝安新安街道:需满足设立满1年、累计纳税100万元、员工10人及以上。
· 其他区域:不再审核购房资格。
3. 统一住房信贷政策
· 银行业金融机构不再区分首套与二套住房利率,而是根据客户风险状况、经营情况等因素合理确定贷款利率。
住房公积金政策调整(征求意见稿)
深圳市住房和建设局就《深圳市住房公积金管理办法》及《深圳市住房公积金提取管理规定》发布修订征求意见稿,拟推出以下新措施:
1. 新增购房首付款提取
· 职工及其家庭成员在深圳购买首套或第二套住房,可提取公积金支付购房首付款。
· 首套房可全额提取公积金账户余额;二套房可提取账户余额的60%。
· 旨在帮助刚需职工减轻购房负担。
2. 新增购房税款提取
· 购买首套或第二套住房可提取公积金支付契税等购房税款。
· 提取额度不超过实际缴纳的税款金额,需在税票开具后3年内申请。
3. 扩大还贷提取范围
· 还贷提取范围从深圳市扩大至全国。
· 偿还全国范围内首套或第二套住房贷款本息可申请提取公积金。
· 首套房每月提取额为实际还贷额;二套房为当月应缴存额的60%且不超过实际还贷额。
4. 其他支持措施
· 拟新增共六类提取情形,加大对首套及改善性住房的公积金支持力度。
声明:本文由入驻焦点开放平台的作者撰写,除焦点官方账号外,观点仅代表作者本人,不代表焦点立场。
