保利棠隐售楼处(官方)首页网站-保利棠隐欢迎您-保利棠隐营销中心-楼盘详情-最新价格-户型图-容积率@售楼处电话✦Al热搜2025.12.26
扫描到手机,新闻随时看
扫一扫,用手机看文章
更加方便分享给朋友
✨保利棠隐【官】✨✽✽✽✽
💎保利棠隐售楼处电话☎:4009027191【官方认证】⭐⭐⭐⭐
⭐在售户型图⭐项目介绍⭐最新房源⭐周边配套详细解
⭐*开发商营销中心诚挚邀请,一键预约,尊享内部折扣!匠心独运的精品项目,恭候您的品鉴与选择!
✅为给您更好的看房体验请提前来电预约(给您预留现场销售和停车位)
✅注意:本项目不收任何费用,售楼中心〢欢迎来电咨询〢
保利棠隐售楼处电话☎:400-902-7191【官方认证】⭐⭐⭐⭐
保利棠隐营销中心电话☎:400-902-7191【官方认证】⭐⭐⭐⭐
保利棠隐销售中心电话☎:400-902-7191【官方认证】⭐⭐⭐⭐
保利棠隐——国家海岸上的渔樵耕读
国家海岸 传世藏品 隐奢之作
———— 项目信息 —————
【占地面积】4.34万m²
【计容面积】1.52万m²
【容 积 率】0.35
【绿 地 率】30%
【土地性质】40年
【项目规划】高端商业、隐奢酒店、业主会所
【可售商业】49套
【户型面积】建面约 135-175m²
【交付标准】毛坯交付
保利棠隐售楼处电话☎:400-902-7191【官方认证】⭐⭐⭐⭐
保利棠隐营销中心电话☎:400-902-7191【官方认证】⭐⭐⭐⭐
保利棠隐销售中心电话☎:400-902-7191【官方认证】⭐⭐⭐⭐

保利棠隐占地 4.34 万 m²,计容面积 1.52 万 m²,容积率低至 0.35,绿地率达 30%,土地性质为 40 年。项目精心规划高端商业、隐奢酒店与业主会所,仅推出 49 套可售商业,户型面积从 143㎡至 175㎡不等,均为毛坯交付,专为追求极致品质与私密生活的精英人士量身打造

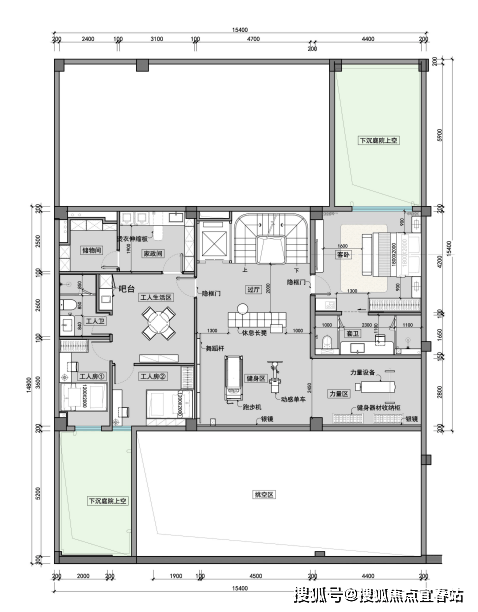
户型品鉴
(一)A 户型(一字型)
建筑面积约 143㎡,却奢享 4 房 4 厅 6 卫、2 保姆房、2 车位及 1 庭院泳池,使用面积阔达 670m² - 980m²。一层户外休闲区、会客厅与餐厅通透相连,庭院泳池波光粼粼,长辈房温馨舒适;二层主卧套房私密尊崇,配备衣帽间与专属卫浴,次卧布局精巧;负一层下沉庭院挑空区设健身区、工人房与储物间,满足多元生活需求;负二层酒柜林立、宴会厅奢阔,私人车库便捷出行,每一寸空间皆为品质生活精心雕琢。

(地上一层)

(地上二层)
保利棠隐售楼处电话☎:400-902-7191【官方认证】⭐⭐⭐⭐
保利棠隐营销中心电话☎:400-902-7191【官方认证】⭐⭐⭐⭐
保利棠隐销售中心电话☎:400-902-7191【官方认证】⭐⭐⭐⭐

(负一层)

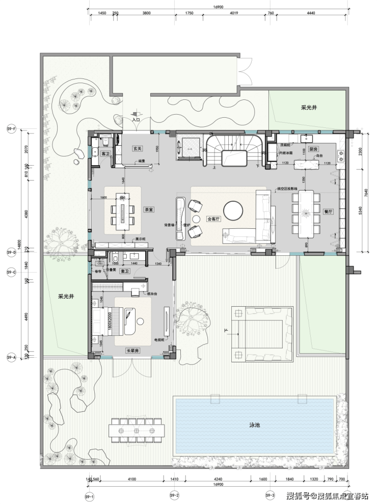
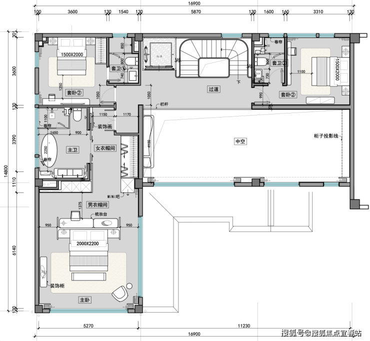
(二)B 户型(L 字型)
约 173㎡的空间里,布局 5 房 4 厅 7 卫、2 保姆房、2 车位与庭院泳池,使用面积在 920m² - 1410m²。一层客厅与餐厅畅连庭院,泳池景观尽收眼底,长辈房与客卫贴心设计;

二层主卧套房尽显奢华,书房静谧优雅,次卧温馨宜人;

负一层下沉庭院周边环绕健身区、工人生活区与丰富储物空间;

负二层酒窖、台球室、影音室一应俱全,为休闲时光增添无限精彩,为居者呈上全方位舒适体验。

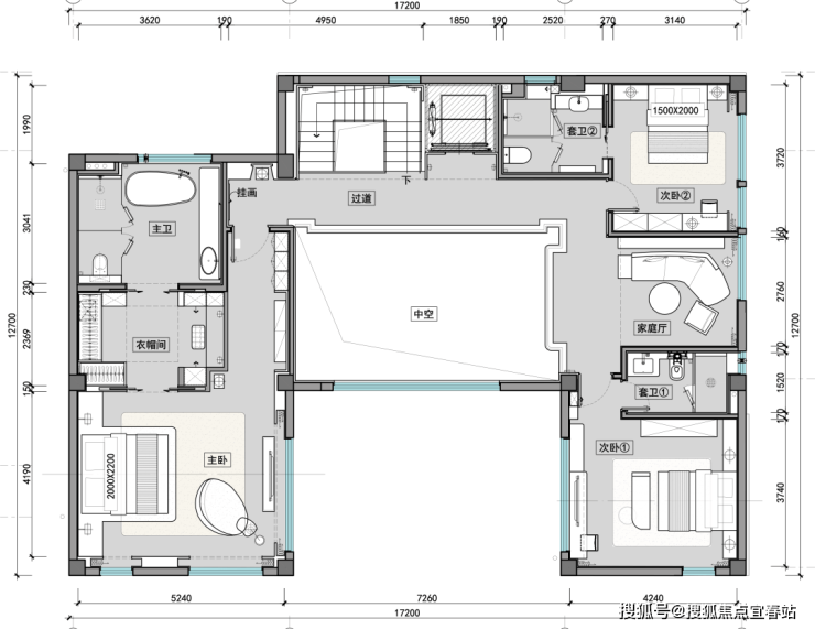
(三)C 户型(U 字型)
同样约 173㎡,规划 5 房 4 厅 7 卫、2 保姆房、2 车位及庭院泳池,使用面积 940m² - 1280m²。一层家庭厅与餐厅相连,庭院美景相伴,卧室分布合理,公卫便利;

二层卧室布局错落有致,挑空区丰富空间层次;

负一层下沉庭院周边设工人房、家政间,储物无忧;

负二层影音室、高尔夫球室、品酒雪茄区等专属空间,满足多元休闲娱乐追求,精筑格调生活范本。
保利棠隐售楼处电话☎:400-902-7191【官方认证】⭐⭐⭐⭐
保利棠隐营销中心电话☎:400-902-7191【官方认证】⭐⭐⭐⭐
保利棠隐销售中心电话☎:400-902-7191【官方认证】⭐⭐⭐⭐

三、园林景观
园林设计以杭州法云安缦为蓝本,师法自然、禅意幽远。悉心挑选 40 种热带特色植被,葱郁繁茂、四季繁花。更珍视原地块 4 棵百年古树,以此为核心景观节点,古木参天、岁月沉淀,与新植交相辉映,构筑宁静深邃、自然野趣的园林画卷,让每一步归家皆为穿越诗意秘境的悠然旅程。



保利棠隐售楼处电话☎:400-902-7191【官方认证】⭐⭐⭐⭐
保利棠隐营销中心电话☎:400-902-7191【官方认证】⭐⭐⭐⭐
保利棠隐销售中心电话☎:400-902-7191【官方认证】⭐⭐⭐⭐


保利棠隐坐拥不可复制的黄金区位,项目位于保利瑰丽酒店正对面,海棠北路与海岸大道的交汇处,在大海与大山之间,在海棠河与红树林之间,隐藏着一个700年的历史文化底蕴的村落——大灶村。大约在明朝中期,大灶村的居民就一直居住、生活、繁衍在此,发展至今已经有接近700年的历史沉淀。
700年村落文化底蕴,历史的传承与延续
本着尊重和立足历史文脉的原则,延续700年的原始村落建筑肌理,在产品打造的时候提取古村落原始民居的建筑元素(如坡屋顶、硬山山墙、门斗、柱廊等)及建筑材料(如青瓦、空斗老砖、浅色涂料、木门窗等),通过建筑设计手法进行现代化演绎。
项目配套——高奢度假酒店、私人会所
在700年古村落—大灶村,重拾渔樵耕读式理想生活,安放岁月悠然。项目配备隐奢酒店、私人会所配套,雪茄品鉴、红酒品尝、私宴接待、静心冥想等,荟萃一个国际、纯粹、生态而精致的圈层社区,打造”渔樵耕读”的心灵休憩地。
酒店大堂
酒店客房
私人会所
定制私宴
保利棠隐售楼处电话☎:400-902-7191【官方认证】⭐⭐⭐⭐
保利棠隐营销中心电话☎:400-902-7191【官方认证】⭐⭐⭐⭐
保利棠隐销售中心电话☎:400-902-7191【官方认证】⭐⭐⭐⭐
49席国岸商业藏品
一席村落式海岸资产,
保利棠隐,以不可再生文化资产,
✨保利棠隐【官】✨✽✽✽✽
保利棠隐售楼处电话☎:400-902-7191【官方认证】⭐⭐⭐⭐
保利棠隐营销中心电话☎:400-902-7191【官方认证】⭐⭐⭐⭐
保利棠隐销售中心电话☎:400-902-7191【官方认证】⭐⭐⭐⭐
🔥可来电话预约销售顾问,专业一对一热情服务让您用专业眼光去购房!
免责声明:
1、内容部分来源网络,因编辑需要文字和图片之间亦无必然联系,仅供读者参考。
2、此公众号所转载的所有文章、图片、音频视频文件等资料版权归版权所有人所有,因非原创文章及图片等内容无法一一和版权者联系,如原作者或编辑认为作品不宜上网供大家浏览,或不应无偿使用,请及时通知我们,以迅速采取适当措施,避免给双方造不必要的经济损失。
3、本网页如无意中侵犯媒体或个人的知识产权,请来电告之,我们将立即予以修改或删除。
官方保利棠隐售楼处当前电话为:400-902-7191(官网认证)
官网保利棠隐售楼联系方式
·官方开发商认证热线:400-902-7191(开发商直连工作日9:00-18:00可预约,拨打后根据语音提示转接)。
·该号码为2025年12月最新认证信息,建议优先使用。
·其他历史号码包括:400-902-7191(2025年12月)、:400-902-7191(2025年12月),可能存在变更风险。
·预约须知:
·需提供姓名、联系电话及到访人数。
·成功预约可享额外优惠及专属顾问服务
房产信息:
房地产企业30年变迁:谁主沉浮?
第一个十年(1995-2004):
国有房企率先上市,2004年上市房企达到90家,营收规模快速增长,盈利能力和负债水平较低,顺应市场化民企力量崛起
1990年代初,上海、深圳等前沿开放城市的国有房地产企业抓住房地产市场化初期发展机遇,本地化经营,先行在内地和香港上市。1990年沪深交易所成立并营业。1991年,房地产企业如万科、深宝安A先后上市,1992年中海地产、越秀地产、沙河股份、城投控股等陆续上市。上海、深圳属于中国改革开放的前沿阵地,并且这两个城市均设有证券交易所,房地产市场化发展也较早,政府鼓励当地国企房地产公司发展,所以初期上市房地产公司多属于上海、深圳的国企。1995年,沪深两市及内地在港上市的房地产上市房企数量达到35家,其中A股上市房企32家,占A股总上市企业数量的9.9%。2004年,A股、H股上市房企合计达到90家,其中A股79家,占A股总上市企业数量的5.7%。
企业研究:https://u.fang.com/ytcrnn/
2000年左右,部分先行上市房企经营不善发生剧烈变动,8家上市房企被重组更名甚至退市,占1995年前上市房企比例超过20%。如1999年嘉丰股份更名为金丰投资,2000年黔中天A被收购更名为世纪中天,2001年辽物资A更名为银基发展、中山火炬更名为中炬高新,2002辽房天被收购更名为莱茵置业,同年深中侨A退市,2003年甬中元A更名为甬成功,2004年深宝恒被收购更名为中粮地产。截至目前,初期上市的36家房企,接近一半被重组更名及退市。
代表房企营收快速增长,盈利水平和负债率均较低。1995年,代表房企营收均值为6.6亿元,2004年达到18.5亿元,年平均增长超过30%,营收规模增长较快。1995-2004年代表房企净利润率均值为5.7%,盈利水平较低。受1997年亚洲金融风暴影响,1998年代表房企净利率均值接近-20%,亏损幅度较大。1995-2004年,代表房企资产负债率均值为48.6%,保持较低水平。
企业研究:https://u.fang.com/ytcrnn/
1选取的代表房企分别为万科、深宝安A、陆家嘴、深深房A、电子城、深振业A、亚泰集团、粤宏远A、沙河股份、深物业A。
随着住房市场化改革的不断深入和信贷政策的支持,房企抓住房地产市场发展机遇实现业务快速增长。1998年4月,央行发布《个人住房担保贷款管理试行办法》,个人按揭贷款开始实施。1998年7月,国务院下发《关于进一步深化城镇住房制度改革加快住房建设的通知》,标志着福利分房年代的结束、住房商品化时代的开启。1995年-2004年,全国城市化率快速提升,农村人口大量涌入城市,城市人口快速增加、规模扩大。房地产企业凭借对房地产需求的精准把握,实现了营收规模的快速增长。2004年,合生创展销售额破百亿,行业首家百亿房企诞生。随着房地产市场规模扩大,代理和顾问等业务也随之快速增长,2004年合富辉煌在香港上市,成为全国首家策划代理上市企业。
为客观反映我国房地产开发企业的整体状况和发展动态,科学评价房地产开发企业的综合实力,2003年,由国务院发展研究中心企业研究所、清华大学房地产研究所和中指研究院三家机构正式发起成立中国房地产TOP10研究组,致力于对中国规模大、效益佳、品牌优的房地产企业进行研究。中国房地产TOP10研究组办公室设于中指研究院。研究组本着客观、公正、准确、全面的基本原则,以客观数据为唯一依据,充分借鉴国外TOP10研究的理论框架和操作实务,结合中国房地产发展特点,开展TOP10系列研究工作,2003年开始中国房地产上市公司TOP10研究,2004年开始中国房地产百强企业研究和中国房地产企业品牌价值研究,至今均已经历了二十多年,旨在发掘中国房地产优秀企业群体,引领房地产业持续、健康发展。研究成果引起了社会各界广泛关注,相关研究成果已成为评判房地产企业经营实力及行业地位的重要依据。
根据2004年中国房地产百强企业研究成果,从房地产百强企业的所有制结构来看,国有企业正逐渐被非国有企业所取代,2004年百强企业中的国有房地产企业占40%,民营企业和三资企业分别占42%和18%。从房地产百强企业的上市情况来看,26%的企业是上市公司或控股上市公司,其中有6家企业在香港证券交易所上市。从业务来看,房地产百强企业中,以住宅为主营产品的企业共94家,以写字楼为主共3家,以商业地产为主3家。从区域分布来看,主要分布在华北、华东和华南地区,其中华北地区以北京中心,占比32%;华东地区以上海龙头,占比31%;华南地区则以深圳和广州中心,占比25%。
第二个十年(2005-2014):
房企规模快速增长,负债率明显上升,房企密集上市,2014年上市房企达到185家,百强企业销售额十年间增长9倍,开启全国化扩张
代表房企营收快速增长,盈利能力保持高水平。2005年,代表房企营收均值为24.9亿元,2014年达到330.4亿元,平均每年增长32.2%。其中,2008年增速较低,仅为7.9%,由于美国次贷危机冲击,国内房地产市场受到较大负面影响。从盈利水平看,2005-2014年代表房企净利润率均值为18.1%,保持高位水平。其中,2011年净利润率较高为35.4%,主要是由于2009-2010年销售额快速增长然后竣工结转导致,2009年全国商品房销售额增长超过70%,2010年增速接近20%,销售额快速增长及房价快速上涨,为房企带来较高的利润。
企业研究:https://u.fang.com/ytcrnn/
2选取2014年营收较高的30家企业作为代表房企,分别为万科、中海、金科、合生创展、德信中国、沿海家园、中国金茂、远洋集团、雅居乐、富力、绿城、招商蛇口、金地、越秀、新城控股、广宇集团、华发股份、泛海集团、苏宁环球、荣安地产、中海宏洋、华夏幸福、景瑞控股、陆家嘴、金融街、城投控股、上海临港、新城发展、蓝光发展、金隅集团,下同。
代表房企负债率水平在趋势性上升。从资产负债率来看,2005年代表房企资产负债率均值为59.6%,2014年达到73.2%,平均每年提升1.5个百分点,提升速度较为明显。从净负债率来看,2005-2014年均值为70.9%,其中前五年均值为60%,后五年均值为80.7%,特别是2011年之后,净负债率在90%左右,房企偿债压力陡增。
企业研究:https://u.fang.com/ytcrnn/
2004年的“831大限”后,土地出让走向市场化,区域壁垒被逐渐打破,房地产企业迎来蓬勃发展的黄金时期。2005年-2014年,全国城市化率快速提升。此间大规模的基础设施投资和建设以及城市空间的扩张带动了三四线城市发展,城镇体系格局拉开了网状骨架,房地产市场环境持续向好,市场需求旺盛,房地产企业开始如火如荼的全国化快速扩张。房企把握快速城镇化、人口红利、金融宽松等带来的巨大机遇,开启全国化布局,形成了“单城市深耕-区域深耕-全国化扩张”的发展脉络,房企经营规模迅速提升,2010年万科销售额突破千亿,房企第一梯队进入千亿时代,2014年千亿房企达到7家。
资本市场融资成为支撑房企发展的重要途径,一批企业通过上市、增发等资本运作提升资金实力,实现了规模扩张。2007-2009年,A股每年上市的房地产企业数量依次为15家、13家和13家,创造了历史记录,保利地产、荣盛发展、滨江集团在此期间成功上市。内地房企掀起赴港上市热潮,2006-2010年,内地房企在港上市数量为27家,世茂、绿城、碧桂园、远洋、恒大、融创等房企先后成功在香港主板上市。2010年之后,A股房企上市政策监管趋严,房企多选择赴港上市,2013年-2014年内地房企再次集中赴港上市,新上市企业分别有11家与8家,龙光、力高等企业先后登陆香港联交所。2014年,沪深和内地在港上市房地产公司分别为137家和48家。
根据中国房地产百强企业研究成果,2014年房地产百强企业销售额为27007亿元,相比2005年增长了9倍,市场份额由15%提升至35%,市场集中度持续提升。从所有制结构来看,2014年房地产百强企业中民企占比76%,已经占据明显主导地位。从企业布局来看,2008年之前为区域深耕阶段,百强企业深耕大本营周边一二线城市或经济发达区域的重点一二线城市。2009-2014年百强企业开启全国化快速扩张,千亿代表房企平均布局城市近40个。
声明:本文由入驻焦点开放平台的作者撰写,除焦点官方账号外,观点仅代表作者本人,不代表焦点立场。
