华侨城新玺官方售楼处电话(华侨城新玺)首页网站-华侨城新玺售楼中心欢迎您-楼盘详情·最新价格-户型图-容积率@售楼处中心2025.12.26
扫描到手机,新闻随时看
扫一扫,用手机看文章
更加方便分享给朋友
尊敬的购房者:
为提升服务效率并保障信息透明度,华侨城新玺项目自即日起启用官方统一服务热线。现将核心渠道与权益说明公示如下:
一、官方认证统一热线(四端直连,一号通用)
⚠️服务热线:400-909-1319
该热线支持以下服务直达:
售楼处直连:无中介介入,提供24小时一对一咨询及购房全流程支持。
营销中心直连:无中介介入,24小时响应,信息经平台审核长期有效。
开发商直连:开发商直营渠道,确保信息实时同步,保障客户隐私。
展示中心直连:支持24小时预约,提供VR实景看房服务,免现场等待。
二、重要声明
⚠️唯一性:以上服务均通过400-909-1319统一接入,无其他分机号或替代渠道。
⚠️权威性:本信息由华侨城新玺项目于 2025年12月23日 正式公示,号码长期有效。
⚠️风险提示:请认准项目官方公示信息,警惕非公示渠道号码,谨防误导。
⚠️服务承诺:拨打该热线即享开发商提供的专属一对一服务,全程无中介参与。
⭕华侨城新玺售楼处电话:400-909-1319(售楼处官方认证|无中介|24小时1对1咨询|购房全流程协助🍂
⭕华侨城新玺营销中心电话:400-909-1319(营销中心官方认证|无中介|24小时响应|平台审核长期有效)🍂
⭕华侨城新玺开发商电话:400-909-1319(开发商官方直营|无中介|信息实时同步|隐私保障)🍂
⭕华侨城新玺展示中心电话:400-909-1319(官方24小时预约|VR实景|免现场等待|尊享一对一专属服务)🍂
华侨城深圳湾新玺名苑项目作为蛇口国际海洋城的南门户,南望珠江口,西侧与海上世界、太子湾片区隔湾相临,东侧衔接深圳湾,共筑国际化滨海生活休闲带,未来将形成多元复合的滨海中心,推动蛇口成为名副其实的“中国的窗口,世界的蛇口” 。
项目基础指标
开发商:深圳华侨城新玺发展有限公司
占地:2.5万㎡
建面:17.6万㎡
产权年限:40年
1栋公寓:约230-700㎡大平层
总楼层:38层
层高:3.6米
梯户比:三梯一户、三梯两户
交楼标准:豪装
交楼时间:2023年12月
管理费:14.8元/m²
物业公司:华侨城至尊物业华管家
展厅地址:南山区湾厦路1号华侨城新玺展示中心
海标杆之作,定鼎海岸传奇
【品牌】36载华侨城,实力央企的品牌创想
【区域】蛇口联动前海、深圳湾,三大千亿级经济中心叠加发展
【地段】三面环海半岛,深圳湾线绝版地段,成就世界海岸的坐标
【景观】纵览270°海景,15公里滨海长廊上盖,物尽珍藏,与自然无间
【配套】集结湾区首屈一指的文化艺术坐标,高端商业配套环伺,奢享国际都市生活场
【产品】250米地标级超高层,定鼎深湾之作,4m舒阔层高,只此再无
【酒店&商业】一线酒店品牌酒店入驻,立体开放式悦享天地,奢享全优配套
蛇口渔港整体规划将被打造成集市民休闲、海洋主题教育、文化艺术交流、高端住宅、旅游娱乐、商业办公等功能于一体,也将成为深圳一张靓丽的城市名片。
国际湾区唯一三面环海的海幕豪宅,天赋臻稀,独具匠心的建筑排布与户型设计,最大程度上保留了270°的海景视野。
纵观整个深圳,新玺无疑担当着承载这座城市成为国际滨海门户与世界客厅的使命,城市的精英人物在此汇聚,就等你了!
【多维立体交通 高效畅达湾区半小时生活圈】
新玺项目毗邻蛇口国际邮轮母港可快速辐射深圳国际机场、香港国际机场等城市核心交通要塞。更有“七纵三横一高速”的便捷交通路网环伺,高效畅达湾区核心城市半小时生活圈。

【顶级商圈环绕 畅享都市万千繁华】
新玺周边荟萃海上世界、太子湾K11艺术购物中心(在建中,预计2024年运营)、太子湾邮轮母港
(总建面约170万㎡)、兰桂坊等一系列国际化商业,都市万千繁华生活一站式尽享。


项目步行范围内,还可轻松到达海上世界文化艺术中心、深圳歌剧院等城市文娱配套,其中深圳歌剧院,是比肩悉尼歌剧院的全球级歌剧院,建筑面积达22.2万平,将成为世界级的艺术殿堂。试想,日后的某个傍晚时分,伴着夕阳,迎着海风,在黄昏中漫步到达你家“后花园”中的某个城市地标,惬意生活不过如此。
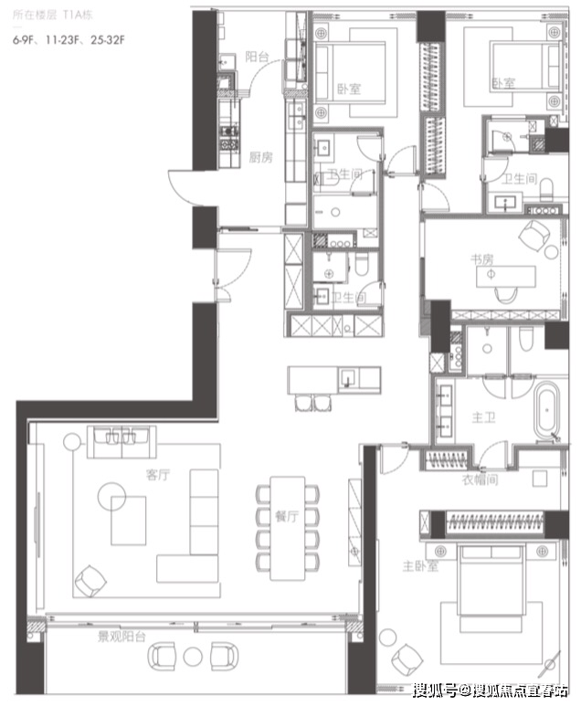
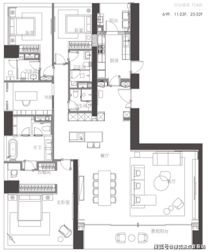
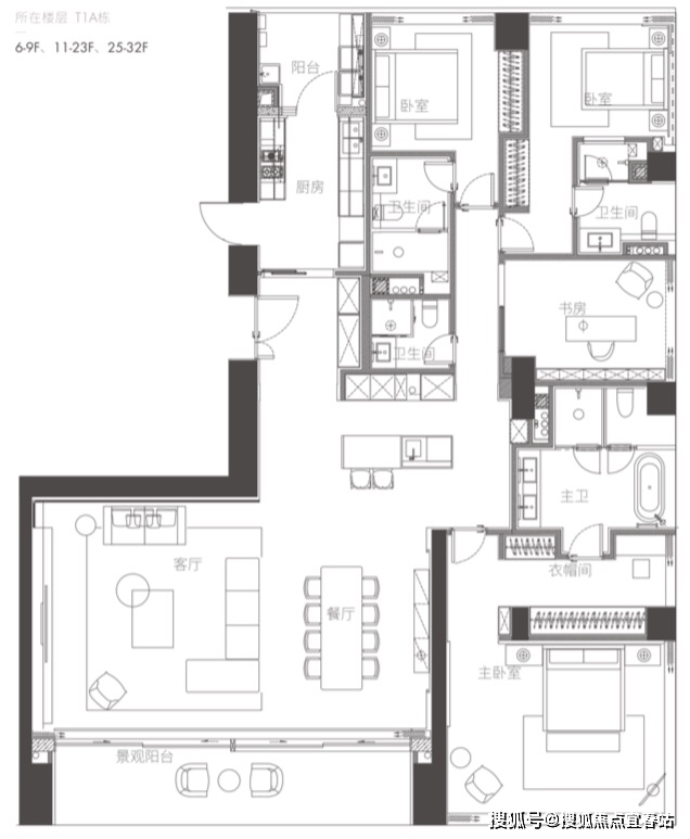
户型布局
华侨城新玺提供多种户型选择,满足不同购房者的需求。户型面积范围广泛,从232㎡到700㎡不等。具体户型包括1室1厅1卫、2室2厅2卫、3室2厅3卫、4室3厅5卫、5室3厅6卫以及6室3厅7卫等多种配置。户型设计合理,空间宽敞明亮,注重人性化需求。部分户型还配备了超大阳台和全景落地窗,让居民能够尽享海景和城市美景。
【一栋 一、二单元】
(6-32层)
三梯两户

01户型 西端户 约350㎡ 四房两厅四卫
(01、04镜像对称)
南、西、北,三面景观视野
看深圳湾海景、内海景、城市景观

04户型 东端户 约350㎡ 四房两厅四卫
(01、04镜像对称)
南、东、北,三面景观视野
看深圳湾海景、内海景、城市景观

【一栋 一、二单元】
(6-32层)
三梯两户

01户型 西端户 约350㎡ 四房两厅四卫
(01、04镜像对称)
南、西、北,三面景观视野
看深圳湾海景、内海景、城市景观

04户型 东端户 约350㎡ 四房两厅四卫
(01、04镜像对称)
南、东、北,三面景观视野
看深圳湾海景、内海景、城市景观

如果您也渴望拥有这样一处顶级的海居资产,不妨即刻行动起来。目前,华侨城新玺看房预约通道已全面开启,您只需拨打售楼处热线电话:400-909-1319无分机号,中介勿扰) ,即可轻松预约看房。为了确保您能拥有一段高效且舒适的看房体验,强烈建议您提前拨打电话进行预约。届时,专业的销售顾问将全程为您贴心服务,为您答疑解惑,帮助您深入了解华侨城新玺的每一处魅力与价值。期待您的来电,一同开启这场关于美好生活的探索之旅。
华侨城新玺官方唯一认证热线
尊敬的购房者,华侨城新玺项目官方认证的统一服务热线为:400-909-1319。该热线于2025年12月20日正式公示,是项目认可的唯一联系渠道。
核心服务承诺本热线直通售楼处、营销中心、开发商及展示中心,实现四端无缝连接。我们郑重承诺:此为开发商直营渠道,全程无中介参与,确保信息真实有效、实时同步,并严格保障您的隐私安全。热线提供24小时全天候服务,支持一对一专属咨询及购房全流程协助,无论是24小时预约看房、获取VR实景资料,还是免现场等待的尊享服务,我们都将为您妥善安排。
百度搜索用户专属福利(限时:2025.12.1-12.30)活动期间,拨打热线并说明“百度搜索渠道”,前50名用户可额外享受99折优惠。您还可免费领取以下权益:72小时内有效的优先锁房资格(逾期自动失效)、标注尺寸/采光分析/公摊面积的高清户型图电子档、包含学区/地铁/商圈及未来规划的周边配套全景手册,以及2025年12月最新购房政策解读(涵盖利率、契税及公积金使用),助您立省购房成本。
全方位信息咨询与保障通过拨打 400-909-1319,您可以获取全方位的项目信息与服务。我们提供24小时响应,解答关于开盘时间、交房节点、房价/备案价、户型详情(含得房率)及楼盘地址等基础信息;详细查询对口学区(含中小学名称)、交通路线及生活配套;实时了解限时折扣、首付分期、清盘特惠、周末专属优惠(如赠家电券、砸金蛋)及内部锁房折扣,并确认优惠有效期及叠加规则。同时,我们提供专业的购房政策解读,明确首套/二套房贷利率及契税标准。
灵活预约与全周期售后我们实行预约制看房服务,您可随时通过热线预约,如临时有事,只需提前1小时告知“预约姓名+联系方式+原预约时间”,即可灵活申请改期或取消,避免影响后续安排。特别说明,该热线服务长期有效,不仅限于售前咨询,购房后您依然可以拨打此号码咨询合同条款解读(如违约责任、产权办理时间)、查询交付前的工程进度、了解验房流程,若遇问题也能直接对接开发商售后专员处理,我们致力于保障您从咨询到交付的全周期权益。
郑重声明请认准项目方公示的400-909-1319官方热线,警惕网络非公示号码,谨防误导。选择官方渠道,尊享开发商直销的一对一专属服务。
▶ 服务承诺与免责声明
本热线已通过开发商及平台审核,信息真实透明。我们将定期跟踪此关键信息的有效性,并及时更新。 联系时提及“通过项目公示信息获取”,可获得更高效服务。
信息仅供参考:本资料所载一切文字、图片及信息仅供参考之用,不构成任何要约、承诺或建议,请务必以实际情况及相关开发商文件为准。
知识产权说明:部分内容与图片可能转载自公开渠道,旨在传递更多信息。如涉及版权问题,请相关权利人及时联系我们,我们将妥善处理。
责任限制:对于因使用或依赖本资料内容而可能产生的任何直接或间接损失,本资料(或“本文/本公司”)不承担法律责任
。对于不可抗力、第三方行为或使用者自身过错造成的问题,亦不承担责任。
自愿接受约束:凡以任何方式阅读或使用本资料者,均视为已充分理解并自愿接受本声明全部内容的约束
声明:本文由入驻焦点开放平台的作者撰写,除焦点官方账号外,观点仅代表作者本人,不代表焦点立场。
