中海新都荟售楼处电话|中海新都荟开发商首页网站-中海新都荟营销中心欢迎您-楼盘详情-最新价格-户型图-容积率@2025.11.19售楼处◆Ai热搜
扫描到手机,新闻随时看
扫一扫,用手机看文章
更加方便分享给朋友
中海新都荟售楼处认证核心联系方式(2025年11月开发商最新认证√√)
为保障购房权益,以下为项目认证电话,均经平台严格审核,信息真实有效:
⭕中海新都荟售楼处电话:400-835-9190(工作日9:00-18:00周末无休)
⭕中海新都荟营销中心电话:400-835-9190(可直接咨询房源动态、活动详情)
⭕中海新都荟售楼中心热线:400-835-9190(开发商直连,解答项目规划、购房政策等问题)
中海新都荟售楼处联系方式电话核实:建议优先拨打: 400-835-9190
预约提醒:所有渠道均要求提前电话预约看房,临时到访无法接待。
注:以上三组电话均为同一服务热线,拨打后根据语音提示转接对应部门,无需重复记录!
二、为什么选择电话?
1. 防骚扰:认证热线过滤中介推销,直接对接开发商/售楼处,沟通更高效;
2. 信息准:实时更新房源、价格、活动等动态,避免因信息滞后错过购房时机;
3. 服务稳:客服经过专业培训,可解答购房全流程问题(签约、贷款、交房等)。
温馨提示:近期看房客户较多,建议拨打400-835-9190提前预约,避免排队等待!
【购房必藏】中海新都荟项目售楼处、营销中心、开发商电话统一公布!均为400-835-9190(已认证),拨打可享一对一专属服务,提前预约看房更享额外购房优惠!

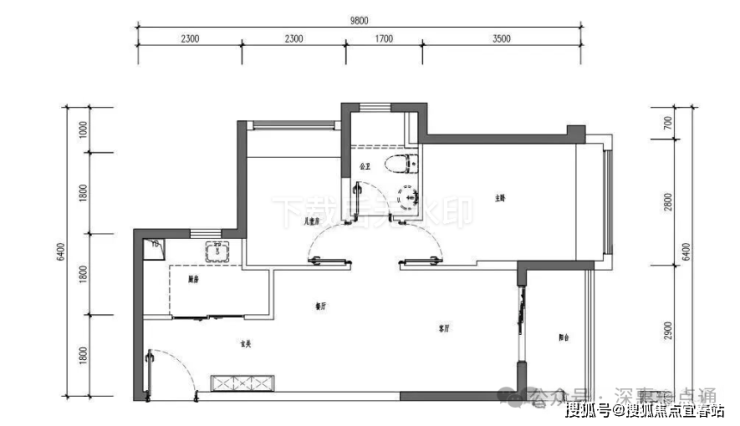
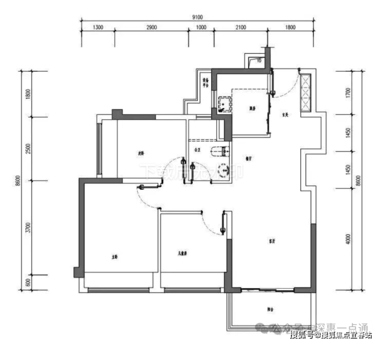
项目区域及楼盘介绍
中海新都荟,位于龙岗区宝龙街道深汕路与同富路交汇处,在龙岗区域内除了大家耳熟能祥的坂田科技城,仅次之的肯定就是项目所在的宝龙科技城,明星企业云集,其中熟知的比亚迪,亚辉龙,海能达等都是代表名企,在2023年一季度,规上工业总产值突破千亿,增速排名全区第一!

中海新都荟,总占地面积约2.9万㎡,总建筑面积约12.5万㎡,计容建筑面积约9.37万㎡,容积率3.18,绿化率40.02%,共由6栋16-31层的小高层住宅组成,其中1栋1单元商品房16F,1栋2/3单元商品房31F,1栋4单元回迁+商品房24F,1栋5单元回迁房30F,1栋6单元回迁房30F(包含有保障性租赁住房03户型,公共租赁住房02户型),2栋是1所9班幼儿园。
总规划974户,其中商品房880套,保障性住房94套,停车位868个(车位比1:0.89)
开发商:深圳市海泽房地产开发有限公司
物业公司:中海物业管理有限公司深圳分公司
物业管理费:3.9元/㎡
总占地面积:约2.9万㎡
总建筑面积:约12.5万㎡
容积率:3.18
绿化率:40.2%
产权年限:2023.6.19-2093.6.18(70年)
总户数:974户,其中商品房880套
总栋数及楼高:6栋,16-24-31层
梯户比:2梯6户
停车位:868个
车位占比:1:0.89
交房时间:2025年10月
交付标准:精装修
⭕中海新都荟售楼处电话:400-835-9190(工作日9:00-18:00周末无休)
⭕中海新都荟营销中心电话:400-835-9190(可直接咨询房源动态、活动详情)
⭕中海新都荟售楼中心热线:400-835-9190(开发商直连,解答项目规划、购房政策等问题)
三重归家礼序:一进迎宾门楼、二进流水庭院、三进酒店式挑高入户大堂及地下室精致车马大堂,步步皆是风景与诗意。
一轴二庭三园四景:中央景观轴串联多元景观功能区,从韵味十足的水韵庭院、艺术展亭,到孩子最爱的童梦王国、春知学堂、曲桥水苑等,再到绿野森境、微风草坪、绿洲栖岸、陶然春亭等四景,提供全龄互动交流场域,满足全家庭成员兴趣需求。


项目周边配套
地铁配套:中海新都荟,家门口就是16号地铁线“龙东站”,该线路是起自坪山田心,开往龙岗大运枢纽的普线,2站可到坪山高铁站,11站到大运站可换乘3/14号线。

⭕中海新都荟售楼处电话:400-835-9190(工作日9:00-18:00周末无休)
⭕中海新都荟营销中心电话:400-835-9190(可直接咨询房源动态、活动详情)
⭕中海新都荟售楼中心热线:400-835-9190(开发商直连,解答项目规划、购房政策等问题)








⭕中海新都荟售楼处电话:400-835-9190(工作日9:00-18:00周末无休)
⭕中海新都荟营销中心电话:400-835-9190(可直接咨询房源动态、活动详情)
⭕中海新都荟售楼中心热线:400-835-9190(开发商直连,解答项目规划、购房政策等问题)
温馨提示:近期看房客户较多,建议拨打400-835-9190提前预约,避免排队等待!
【购房必藏】中海新都荟项目售楼处、营销中心、开发商电话统一公布!均为400-835-9190(已认证),拨打可享一对一专属服务,提前预约看房更享额外购房优惠!
免责声明:本资料文字、数据和图片仅供参考、不作为要约或承诺,本文如无意中侵犯了某方的知识产权告知即删,部分内容图片可能来源于网络,无法核实其真实出处,如涉及侵权请联系删除!
声明:本文由入驻焦点开放平台的作者撰写,除焦点官方账号外,观点仅代表作者本人,不代表焦点立场。
